Рис. С.22. Право использования дороги, находящейся в пределах собственности кого-либо еще (II).
Ограничения на строительство зданий: Объект недвижимости в LADM
Название = «Охраняемая зона заправочной станции Гайя»
Идентификатор объекта =
|
|
Буфер по ограничению на строительство зданий: Пространственный объект в LADM
Идентификатор пространственного объекта = 151
|
|
Заправочная станция Гайя: Элемент здания в юридическом пространстве LADM
Идентификатор пространственного объекта = 150
|
|
Запрет на строительство зданий: Ограничения в LADM
Доля =1/1
Тип – Административный сервитут
|
|
Слой ограничения: Слой в LADM
|
|
Заправочная станция: Объект недвижимости
|
|
Слой элемента здания: Слой в LADM
|
|
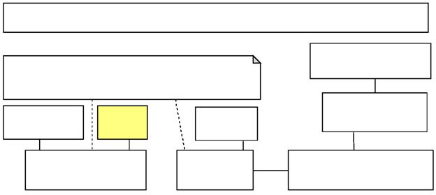
Пространственный объект, представляющий собой ограничение на строительство зданий (идентификатор этого объекта - 151) необходимо получить из пространственного объекта «Заправочная станция» (идентификатор этого объекта - 150) через пространственную буферную операцию. При выполнении этой задачи, используя простые характеристики и стандарт ISO 19125-2, операция ST_Буффер (200 метров) может дать необходимую геометрию.
|
|
Диаграмма объектов Case C23. Запрет на строительство зданий вокруг помещения. Запретная зона имеет свою геометрию: запрещено строительство в пределах 200 метров вокруг заправочной станции
|
|

Рис. С.23. Зона ограничения («Запрещено строить что-либо в пределах 200 метров от заправочной станции») с собственной геометрией.
Основная часть: Слой в LADM
Название = основные участки
Структура = топологическая
Тип = первичные права
Тип регистра = все
|
|
Участок А: Пространственный объект в LADM
|
|
Участок В: Пространственный объект в LADM
|
|
Целый ряд не примыкающих участков того же типа собственника, находящиеся в пределах того же объекта недвижимости, могут относиться к одному объекту недвижимости в той же самой юрисдикции,
|
|
Правовой титул комплексного участка: Объект недвижимости в LADM
Название - «плантации Чарльза»
Идентификатор объекта = 101000153
|
|
Чарльз: Субъект в LADM
Тип = физическое лицо
|
|
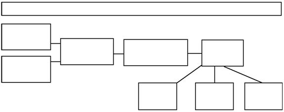
Диаграмма объектов Case C 24. Владелец комплексного участка
|
|

Рис. С.24. Комплексный пространственный объект с одним владельцем.
Примечание: Участки 1 и 2 комплекса не примыкают друг к другу: здание должно быть внутри участка 2.
Это можно проверить, прежде всего, проецируя внешнюю линию здания на слой участков.
|
|
Участок 1: пространственный объект в системе управления недвижностью
|
|
Участок 2: Пространственный объект в LADM
|
|
Аврора: Субъект в системе управления недвижимости
Тип = физическое лицо
|
|
Слой элемента здания: Слой в LADM
|
|
Вилла Авроры: Элемент здания в юридическом пространстве и в LADM
|
|
Комплексный участок: Объект недвижимости в LADM
|
|
Владение комплексным участком: Право в LADM
Тип = право собственности
Доля = 1/1
|
|
Диаграмма объектов Case C25. Комплекс участков, включающий здание, от одного владельца (Аврора)
|
|

Рис. С.25. Комплексный пространственный объект, включающий здание, одного владельца.
Vof 1: пространственный объект в LADM
|
|
Vof 2: пространственный объект в LADM
|
|
Vof 3: пространственный объект в LADM
|
|
Комплексный vof: Объект недвижимости
|
|
VOF: Право в LADM
Тип = право собственности
|
|
Коллективный субъект в LADM
Название = vof
|
|
Диаграмма объектов Case С26. Два владельца комплекса из нескольких участков
|
|

Рис. С.26. Комплекс участков с двумя владельцами.
Ферма с микро кредитом: обеспечение в LADM
Тип = микро кредит
|
|
Участок фермера: Участок в LADM
|
|
Фермерский объект: Объект недвижимости в LADM
|
|
Неформальный микро кредит: Взаимоотношения по Модели предметной области для систем коллективного владения недвижимостью
Тип = неформальный
|
|
Кооперация фермеров: Субъект в системе управлении недвижимостью
|
|
Диаграмма объектов Case C27. Пространственный объект с двумя микрокредитами
|
|

Рис. С.27. Пространственный объект с микрокредитом.
Лот А, 1А: Среда обитания: пространственный объект в LADM
Ярлык = 009550_2
Идентификатор объекта =
Объем = 210
Территория = 75
Размер = 3D
|
|
Лас Пальмас, Лот А: Элементы общего пользования: Пространственный объект в системе управления
|
|
Лас Пальмас, Лот А: Порог: пространственный объект в LADM Объем = 45
Идентификатор объекта = 9546
Ярлык = 009548
|
|
Лот А, В1: Элемент здания в юридическом пространстве в LADM
Тип =отдельная секция
Территория = 20
Объем = 45
Идентификатор объекта = 9546
Ярлык = 009548
|
|
Лас Пальмас, Лот А: Объект недвижимости в LADM
|
|
Пакет Мануэля: правовой титул: Объект недвижимости в LADM
Название = Лас Пальмас, Лот А, В1
Идентификатор объекта =
|
|
Объект общего пользования 2: право в LADM
Тип – право собственности
Доля = 2/30
|
|
Владелец пакета: право в LADM
Тип = право собственности
Доля = 1/1
|
|
Мануэль: Субъект в LADM
Тип = физическое лицо
|
|
Владелец апартаментов: право в LADM
Тип = право собственности
Доля = 1/1
|
|
Лот А, 1А: Услуги: пространственный объект в LADM
Ярлык = 009550_1
Идентификатор объекта:
Размер = 3D
Территория = 25
|
|
Апартаменты Мануэля: Правовой титул: Объект недвижимости
Название = Лас Пальмас, Лот А, 1А
Идентификатор объекта =
|
|
Лот А: Оценка В1:Внешняя оценка
Стоимость = 10 000
Дата оценки =
Тип оценки = рыночная
|
|
В настоящее время, класс оценки, также как и адреса улиц и зданий, и тип землепользования, считаются данными Внешних регистров, с которыми Модель предметной области управления недвижимостью имеет внешние связи. Это значит, что в процесс использования Модели, необходимо создать интерфейсы, чтобы обеспечить подсоединение к (в этом случае) регистрам
|
|
Лот А: Оценка А1:Внешняя оценка
Стоимость = 50 000
Дата оценки =
Тип оценки = рыночная
|
|
В этом случае, существуют более одного типа фискального использования, и пространственный объект разделяется на фискальные пространственные объекты, наподобие тех, что представлены здесь
|
|
Диаграмма объектов Case C28. расчет налога на право кондоминиума в Испании. Владелец элемента здания и соответствующих общих и индивидуальных частей обязан выплатить всю сумму налога, рассчитанную на основе данных под-территорий в рамках стандартных категорий использования
|
|
