(рекомендуемое)
Маршруты эвакуации зрителей из зрительных залов
И.1 Распределение зрителей по направлениям движения со зрительских мест
в рядах
к выходам из зала следует принимать согласно схемам, приведенным на рисунке И.1 (а, б). Распределение людей после выхода из зала на участки "неограниченной" ширины (вестибюли, фойе и т. п.) следует определять согласно схемам, приведенным на рисунке И.2.



а - с боковыми (продольными) проходами; б - с поперечным проходом
1 - Маршрутизация движения людских потоков при эвакуации из зрительных залов


а - при эвакуации в общий горизонтальный проход на уровне арены; б - при эвакуации вверх через дверной проем или на горизонтальный участок
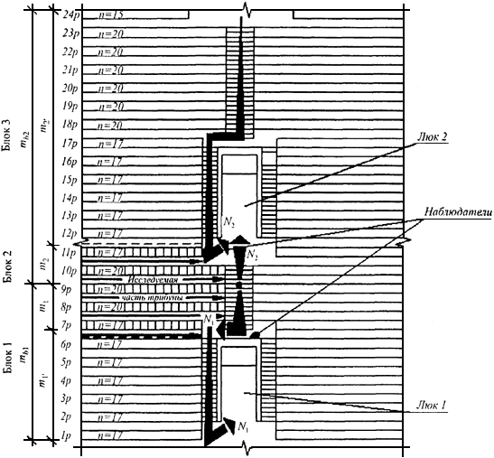
2 - Схемы разделения мест на блоки на трибунах спортивно-зрелищных и универсальных залов при расположении люков
И.2 Количество рядов, из которых зрители имеют возможность эвакуироваться (рисунок И.2, а) вниз (
) или вверх (
) при их общем количестве
.
И.3 Ряды зрительских мест на трибунах, эвакуация с которых может происходить через люки, размещенные на двух уровнях (рисунок И.2, б), следует разделять на две самостоятельные части ограждениями высотой не менее 0,7 м, не мешающими видимости. Эвакуация людей из рядов каждой части производится раздельно: рядов верхнего уровня
(от пола уровня до последнего ряда трибун) - в верхние люки, из рядов трибун нижнего уровня
- в нижние люки или выходы, расположенные против общего прохода блока мест.
И.4 Число блоков
, на которые целесообразно подразделить ряды ярусов трибун с числом мест на них
, и допустимое время эвакуации определяется по формулам:
при движении по общему проходу блока вниз по лестнице
; (И.1)
при движении по общему проходу блока вверх по лестнице
. (И.2)
И.5 Число рядов (
или
) при предполагаемой длине трибун
следует рассчитывать по формуле
. (И.3)
И.6 Расчетное время движения людей из блока зрительских мест (
) при превентивной эвакуации должно удовлетворять соотношению
, (И.4)
где
- длина общего прохода от выхода из наиболее удаленного ряда до выхода из зала.
И.7 Ширина общего прохода (поперек рядов) в блоке мест
в партере или на трибуне при их количестве
должна быть не менее
, (И.5)
где значение
следует принимать равным:
80 - если проход ведет вниз по лестнице, горизонтальный или идет по пандусу;
50 - если проход ведет вверх по лестнице.
И.8 Выбор направления дальнейшего движения людьми, вышедшими из зала, определяется согласно данным, приведенным на рисунке И.3.

а - схема распределения потока численностью
, чел.; б - влияние соотношения между расстояниями до выходов на распределение численности людей из общего потока, направляющихся:
1 - к ближайшему из двух одинаковых выходов
: наружу, в лестничные клетки, на открытые лестницы; 2 - к открытой лестнице
или в лестничную клетку ![]()
3 - Распределение численности зрителей между выходами
И.9 Схема людского потока при движении по участку неограниченной ширины (вестибюль, фойе, кулуары и т. п.) к выходу с него приведена на рисунке И.3.
При движении по участкам неограниченной ширины ширина потока
зависит от численности людей
и длины
участка:
4 м при
100 чел. и
6 м;
6 м - в остальных случаях.
И.10 Пропускная способность автоматических контрольно-пропускных пунктов составляет 1200 чел./ч.
Пропускную способность металлообнаруживателей следует принимать по паспортным данным на конкретное изделие.
Оптимальную провозную способность эскалатора следует определять в зависимости от скорости движения эскалаторного полотна: при скорости 0,6-0,8 м/с провозная способность составляет 7750-7840 чел./ч.
(Исключено, Изм. N 1).
Приложение Л*
(рекомендуемое)
Требования к внутреннему противопожарному водопроводу зданий культурно-зрелищных учреждений, библиотек, архивов и спортивных сооружений
Л.1 В зданиях культурно-зрелищных учреждений следует предусматривать:
в кинотеатрах и клубах с эстрадами при вместимости зрительного зала до 700 мест - пожарные краны; более 700 мест при наличии колосников - пожарные краны и дренчерные установки согласно Л.9 настоящего приложения;
в клубах со сценами размером 12,5x7,5 м; 15x7,5 м; 18x9 м и 21x12 м при вместимости зрительного зала до 700 мест - пожарные краны и дренчерные установки;
в клубах со сценами размером 18х9 и 21х12 м при вместимости зрительного зала более 700 мест, со сценами 18х12 и 21x15 м независимо от вместимости, а также в театрах - пожарные краны, дренчерные и спринклерные установки;
в демонстрационных комплексах театров вместимостью 600 мест и более со сценами панорамного, трехстороннего и центрального типов - установки пожаротушения.
Л.2 В производственных помещениях и резервных складах, размещаемых в отдельном корпусе на участке здания театра, или при размещении подсобно-производственных помещений в здании театра следует предусматривать внутренние пожарные краны и спринклерные установки в соответствии с требованиями Л.4 и Л.11 настоящего приложения.
При размещении производственных помещений и резервных складов в отдельном корпусе вне участка здания театра спринклерные устройства предусматриваются в соответствии с требованиями Л.11 настоящего приложения, а расходы воды пожарными кранами принимаются в соответствии с требованиями СП 30.13330.
Л.3 Расходы воды внутреннего пожаротушения из пожарных кранов следует принимать в зданиях:
кинотеатров и клубов с эстрадами при вместимости зрительного зала до 300 мест включительно - две струи с расходом не менее 2,5 л/с, более 300 мест - две струи с расходом не менее 5 л/с каждая;
клубов со сценами и театров независимо от вместимости - две струи с расходом не менее 2,5 л/с и две струи с расходом не менее 5 л/с каждая.
Л.4 Пожарные краны устанавливают у входов в зрительный зал и на сцену или эстраду, у входов на лестничные площадки.
В зданиях клубов со сценами размеров 18x12, 21x12, 21x15 м, а также в зданиях театров дополнительные пожарные краны диаметром 65 мм со спрыском 19 мм и длиной рукава 10 м устанавливают на планшете сцены.
Пожарные краны диаметром 50 мм со спрыском 16 мм и длиной рукава 10 м устанавливают на колосниках и рабочих галереях; то же во всех остальных помещениях театров, но с длиной рукава - 20 м.
Л.5 На планшете сцены при его площади до 500 м
устанавливают 3, а при большей площади - четыре пожарных крана.
На каждой рабочей галерее и колосниках размещают не менее двух пожарных кранов, по одному с правой и левой стороны сцены.
Установка кранов допускается открыто без шкафов.
Л.6 Пожарные краны следует располагать так, чтобы любая точка помещения орошалась двумя струями.
|
Из за большого объема этот материал размещен на нескольких страницах:
1 2 3 4 5 6 7 8 9 10 11 12 13 14 15 16 17 18 19 20 21 |



