Промышленные здания и их конструкции.
![]() |
1. ЭЛЕМЕНТЫ И КОНСТРУКТИВНЫЕ СХЕМЫ ПРОМЫШЛЕННЫХ ЗДАНИЙ
1.1 Классификация
промышленных зданий
Промышленные предприятия делят на отрасли производства, которые являются составной частью народного хозяйства. Промышленные предприятия состоят из промышленных зданий, которые предназначены для осуществления производственно-технологических процессов, прямо или косвенно связанных с выпуском определенного вида продукции.
Независимо от отрасли промышленности здания подразделяют на четыре основные группы: производственные, энергетические, здания транспортно-складского хозяйства и вспомогательные здания или помещения.
К производственным относят здания, в которых осуществляется выпуск
готовой продукции или полуфабрикатов. Их подразделяют на многие виды соответственно отраслям производства. Среди них механосборочные, термические, кузнечно-штамповочные, ткацкие, инструментальные, ремонтные и др.
К энергетическим относят здания ТЭЦ (теплоэлектроцентралей), котельных, электрические и трансформаторные подстанции и др.
К зданиям транспортно-складского хозяйства относят гаражи, склады готовой продукции, пожарные депо и др.
К вспомогательным зданиям относят административно-конторские, бытовые, пункты питания, медицинские пункты и др.
Характер объемно-планировочного
и конструктивного решения промышленных зданий зависит от их назначения и характера технологических процессов.
Здания подразделяют на четыре класса. причем к I классу относят те, к которым предъявляются повышенные требовании, а к IV классу — постройки с минимальными требованиями. Для каждого класса установлены свои эксплуатационные качества, а также долговечность и огнестойкость основных конструкций зданий.
Установлены три степени долговечности промышленных зданий: I степень — не менее 100 лет; II — не менее 50 лет и III — не менее 20 лет.
По степени огнестойкости здания и сооружения подразделяют на пять степеней. Степень огнестойкости, характеризуемая группой возгораемости и пределом огнестойкости основных строительных конструкций, принимается: для зданий I класса — не ниже II степени, для зданий II класса — не ниже III степени. Для зданий III и IV классов степень огнестойкости не нормируется.
По архитектурно-конструктивным признакам промышленные здания подразделяют на одноэтажные, многоэтажные и смешанной этажности. Производства, в которых технологический процесс протекает по горизонтали и характеризующиеся тяжелым и громоздким оборудованием, крупногабаритными изделиями и значительными динамическими нагрузками, целесообразно размещать в одноэтажных зданиях. В настоящее время в одноэтажных промышленных зданиях размещается около 75 % промышленных производств.
В зависимости от числа пролетов одноэтажные здания могут быть одно-и многопролетными (рис. 19.1). Пролетом называется объем промышленного здания, ограниченный по периметру рядами колонн и перекрытий по однопролетной схеме. Расстояние между продольными рядами колонн называют шириной пролета.
В многоэтажных зданиях размещают

Рис. 19.1. Основные типы одноэтажных промышленных зданий:
а — однопролетное бесфонарное, о — то же, с мостовым краном, в, г — многопролетные с фонарями,
производства с вертикально направленными технологическими процессами для предприятий легкой, пищевой, радиотехнической и аналогичных им видов промышленности (при поверхностных нагрузках на междуэтажные перекрытия 45 кН м2). Их, как правило, сооружают многопролетными (рис. 19.2). На первых этажах располагают производства, имеющие более тяжелое оборудование, выделяющие агрессивные сточные воды, в верхних — производства, выделяющие газовые вредности, пожароопасные, и др.
По наличию подъемно-транспортного оборудования здания бывают крановые (с мостовым или подвесным транспортом) и бескрановые.
По материалу основных несущих конструкций здания можно разделить: с железобетонным каркасом (сборным, сборно-монолитным и монолитным); со стальным каркасом; с кирпичными стенами и покрытием по железобетонным, металлическим или деревянным конструкциям.
Кроме перечисленных факторов промышленные здания классифицируют и по другим признакам: по системе отопления, вентиляции, освещения, по профилю покрытия. Ниже будут рассмотрены особенности проектирования зданий и с учетом этих признаков.
19.2
Требования
к промышленным зданиям
К промышленным зданиям предъявляют технологические, технические, архитектурно-художественные и экономические требования. Технологические требования обусловливают полное соответствие здания своему назначению, т. е. здание должно обеспечивать нормальное функционирование размещаемого в нем технологического оборудования и нормальный ход технологического процесса в целом. С этой целью при проектировании здания составляют технологическую часть проекта и решают все вопросы, связанные с выбором способа производства, типов оборудования, его производительности и т. д. В эту часть проекта входит так называемая технологическая схема, устанавливающая последовательность операций в технологическом процессе и, следовательно, последовательность расстановки оборудования и компоновки производственных помещений.
С учетом технологических требований выбирают вид и материал несущих и ограждающих конструкций, тип и грузоподъемность внутрицехового подъемно-транспортного оборудования, обеспечивают необходимые санитарно-гигиенические условия работающим в цехе, качество и характер отделки.
Решая вопросы объемно-планировочного и конструктивного решения здания, необходимо учитывать перспективы развития данного технологического процесса, что позволит изменять и совершенствовать производство без реконструкции самого здания.
К техническим требованиям относят обеспечение необходимых прочности, устойчивости и долговечности зданий, противопожарных мероприятий, а также возведение зданий индустриальными методами. Перечисленные качества, обеспечиваемые при проектировании и строительстве здания, характеризуют его надежность. Под надежностью здания или его отдельных конструктивных элементов обычно понимают их безотказную работу в заданных условиях и всего расчетного периода эксплуатации.
К техническим требованиям относят также требования по пожарной, взрывопожарной и взрывной опасности. Следует иметь в виду все повышающееся значение этого фактора в связи с усложняющейся технологией производства, применением дорогостоящего оборудования.
Архитектурно-художественные требования предусматривают необходимость придания промышленному зданию красивого внешнего и внутреннего облика, удовлетворяющего эстетическим запросам людей с учетом значимости здания. При этом особое внимание уделяют комплексности застройки, созданию цельного архитектурного промышленного ансамбля. Важную роль в этом играют фактура и цвет поверхностей ограждающих конструкций, художественное сочетание различных строительных материалов и высокое качество строительно-монтажных работ.
Экономические требования выдвигают задачу оптимального, научно обоснованного расхода средств на строительство и эксплуатацию проектируемого здания. Для этого обычно принимают несколько вариантов объемно-планировочных и конструктивных решений и сравнивают их по основным технико-экономическим показателям.
Для проектирования промышленных зданий используют автоматизированную систему проектирования объектов строительства (АСПОС). Составленные исходные данные на проектирование здания вводятся в ЭВМ, которая по соответствующей программе осуществляет многовариантный поиск с количественной оценкой проектных решений по критериям оптимальности, а также дает компромиссное решение. Окончательную оценку и выбор варианта объемно-планировочного решения здания производит проектировщик.
1.3. Подъемно-транспортное оборудование
Для перемещения сырья, полуфабрикатов и готовой продукции внутри цеха, облегчения труда рабочих и монтажа технологического оборудования применяют внутрицеховое подъемно-транспортное оборудование (ПТО), которое подразделяют на две группы: периодического и непрерывного действия. К первой группе относятся подвесные средства (тали, кошки, тележки и др.), мостовые краны и напольный транспорт (козловые краны, электрокары); ко второй — конвейеры (ленточные, пластинчатые, скребковые

Рис. 19.3. Схемы разрезов зданий с кранами: а — с подвесным краном, б — с мостовым краном, I - несущая балка, 2 - механизм передвижения, 3 — подвесной путь, 4 — электроталь, 5 - кабина крановщика, 6 — механизм передвижения вдоль кранового пути, 7 - несущий мост, 8 - тележка с грузоподъемным механизмом, 9 — подкрановый путь, 10 — токопровод
ковшовые, подвесные цепные, грузоведущие), нории, рольганги и шнеки, средства пневматического и гидравлического транспорта.
Наибольшее влияние на объемно-планировочные и конструктивные решения оказывают подвесные и мостовые краны, которые получили наиболее широкое распространение в промышленных зданиях.
Подвесные краны (кран-балки) могут транспортировать грузы массой от 0,25 до 5,0 т и состоят из легкого моста или несущей балки, подвешиваемой к несущей конструкции покрытия здания (балке или ферме); двух или четырех Катковых механизмов передвижения по подвесным путям и электротали, перемещающейся по нижней полке мостовой балки (рис. 19.3).
В зависимости от величины пролета и шага несущих конструкций покрытия по ширине пролета устанавливают один или несколько кранов. Для повышения надежности транспортных операций на одном пути обычно устанавливают не менее двух кранов. Управляют кранами с пола цеха или из кабины, подвешенной к мосту.
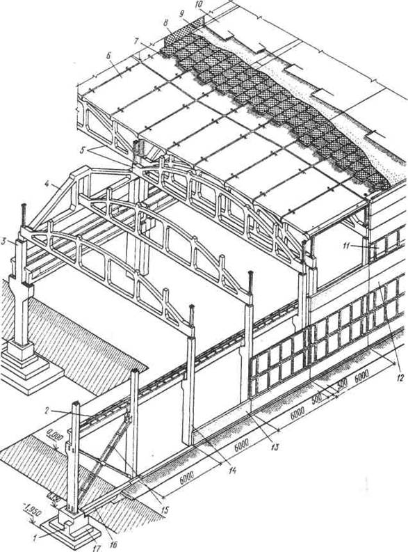
Мостовые краны (рис. 19.3,6) состоят из несущего моста, перекрывающего рабочий пролет цеха, механизма передвижения вдоль подкранового пути, передвигающейся вдоль моста тележки с механизмом подъема и кабины управления, подвешенной к мосту. Краны передвигаются по рельсам, уложенным по подкрановым балкам, которые монтируются на консоли колонн каркаса здания. На рис. 19.4 показано устройство служебной лестницы и посадочной площадки для мостового крана. Расстояния между осями крановых путей мостовых кранов унифицированы и приведены в соответствие с пролетами зданий. Так, для пролетов 12, 18, 24, 30, 36 м расстояния между осями крановых путей будут соответственно 10,5; 16,5; 22,5; 28,5; 34,5 м. Расстояние между координационной осью колонны и осью кранового рельса принимают чаще всего 750 мм. Могут быть и другие решения.
Грузоподъемность, габариты и основные технические параметры кранов определяются ГОСТами.
В промышленных зданиях применяют и другие специальные мостовые краны: консольно-поворотные, консольно-передвижные, с поворотной тележкой, колодцевые, для извлечения слитков, завалочные и др.
Технологические процессы зданий без кранов обслуживают напольными средствами транспорта: вагонетками, электрокарами, конвейерами, рольгангами, автомобильными кранами, погрузчиками и др. Применяют также козловые краны, передвигающиеся по уложенным в уровне пола цеха рельсам.
При выборе типа подъемно-транспортного оборудования цеха необходимо исходить не только из сравнения единовременных затрат, но и из приведенных затрат, включающих эксплуатационные расходы
![]() |
![]() |
7750, | '- ('—1 | IIIIIIIIIIH | ||||
*j | ш | P | »■ | |||
%, i! | -- 'r | |||||
-a-i | -, | 700 | :--- ,,--- , | 700 1- > |
Рис. 19.4. Устройство служебной лестницы и посадочной площадки для мостового крана у внутренней колонны цеха
1.4. Одно - и многоэтажные промышленные здания. Унификация
Одноэтажные здания могут иметь в плане простые и сложные формы. В основном преобладает прямоугольная форма, а сложные формы характерны для производств со значительными тепло - и газовыделениями, когда требуется организация притока и удаления воздуха.
В зависимости от характера технологического процесса одноэтажные здания по объемно-планировочному решению могут быть пролетного, зального, ячейкового и комбинированного типа.
Здания пролетного типа проектируют в тех случаях, когда технологические процессы направлены вдоль пролета и обслуживаются кранами или без них.
Основными конструктивными элементами современного одноэтажного пролетного промышленного здания являются (рис. 19.5): колонны, которые передают нагрузки на фундаменты; конструкции покрытия, которые состоят из несущей части (балки, фермы, арки) и ограждающей (плиты и элементы покрытия); подкрановые балки, устанавливаемые на консоли колонн; фонари, обеспечивающие необходимый уровень освещенности и воздухообмен в цехе; вертикальные ограждающие конструкции (стены, перегородки, конструкции остекления), причем конструкции стен опираются на специальные фундаментные и обвязочные балки; двери и ворота для движения людей и транспорта; окна, обеспечивающие необходимый световой режим в цехе.
Одноэтажные промышленные здания проектируют чаще всего по каркасной системе, образованной стойками (колоннами), заделанными в фундамент, и ригелями (фермами или балками).
Специальные связи (горизонтальные и вертикальные) обеспечивают пространственную жесткость каркаса.
Габариты сборных элементов для промышленных зданий унифицированы и соответственно унифицированы габариты конструктивных элементов на основе укрупненного модуля.
Пролет зданий (поперечное расстояние между колоннами) принимают 12, 18, 24, 30, 36 м и др.
Высота от пола до низа несущей конструкции покрытия устанавливается кратная модулю 6М (от 3,6 до 6,0 м), укрупненному модулю 12М (от 6,0 до 10,8 м) и модулю 18М (от 10,8 до 18,0 м).
Габаритные схемы маркируют шифром: Б-30 — 84 — бескрановое, пролетом 30 м, высотой 84 дм или К-24-144 — крановое, пролетом 24 м, высотой 144 дм.
Для каждой отрасли производства принимается своя габаритная типовая ячейка. Так, для пищевой промышленности принята высота 4,8 и 6,0 м и размеры ячеек установлены: при сетке колонн 6 х 12 мхм, 48 хм, 72 хм. В тех случаях, когда шаг колонн 12, 18
Рис. 19.5. Конструктивное решение одноэтажного многопролетного промышленного здания:
/ — бетонный подлив для опирания фундаментных балок, 2 — подкрановая балка, 3 — колонна среднего ряда, 4 — подстропильная железобетонная ферма, 5 — железобетонная безраскосная ферма, 6 - железобетонная плита покрытия, 7 - пароизоля-цня, 8 — слой утеплителя, 9 — цементная стяжка, 10 — многослойный рубероидный ковер, // — конструкция остекления. 12 — стеновая панель, 13 — цокольная стеновая панель, 14 - колонна крайнею ряда, 15 - металлическая крестовая вертикальная связь между колоннами, 16 — железобетонная фундаментная балка, 17 — железобетонный фундамент под колонну
Рис. 19.6. Конструктивное решение многоэтажного здания: / — вертикальная металлическая портальная связь между колоннами. 2 — балка (ригель). i — колонна. 4 — монтажный столик для опирания стеновых панелей, 5 — плита перекрытия железобетонная ребристая, 6 — железобетонная подкрановая балка, 7 — железобетонная двускатная балка покрытия, Я — железобетонная плита покрытия. 9 — стеновая панель, 10 — конструкции оконного остекления, // — отмоетка, 12 — фундаментная балка (ранд-балка), 13 — бетонный прилив для опирания фундаментных балок. 14 — песчаная подготовка
и 24 м, а длина панелей 6 м, несущие элементы покрытия укладывают на подстропильные фермы или балки. Здания зального типа применяют в том случае, когда технологический процесс связан с выпуском крупногабаритной продукции или установкой большеразмерного оборудования (ангары, цехи сборки самолетов, главные корпуса мартеновских и конверторных цехов и др.). Пролеты зданий зального типа могут быть 100 м и более.
Развитие и внедрение средств автоматизации и механизации технологических процессов вызывает потребность передвижения транспортных средств в двух взаимно перпендикулярных направлениях. Необходимость частой модернизации технологического процесса более легко осуществима в одноэтажных зданиях сплошной застройки с квадратной сеткой колонн. Такое объемно-планировочное решение получило название ячейковой, а здания — гибких или универсальных.
В зданиях комбинированного типа сочетаются основные признаки зданий зального, пролетного или ячейкового типа.
Многоэтажные промышленные здания находят преимущественное применение в легкой, пищевой, электротехнической и других видах промышленности.
По конструктивной схеме многоэтажные промышленные здания бывают с неполным каркасом и несущими наружными стенами или с полным каркасом (рис. 19.6). Основными элементами каркаса являются колонны, ригели, плиты перекрытий и связи. Междуэтажные перекрытия выполняют из сборных железобетонных конструкций двух типов: балочные и безбалочные.
Сборные каркасы могут быть решены по рамной, рамно-связевой или связевой системе. При рамной системе каркаса пространственная жесткость здания обеспечивается работой самого каркаса, рамы которого воспринимают как горизонтальные, так и вертикальные нагрузки. При рамно-связевой системе вертикальные нагрузки воспринимаются рамами каркаса, а горизонтальные — рамами и вертикальными связями (диафрагмами). При связевой системе вертикальные нагрузки воспринимаются колоннами каркаса, а горизонтальные — вертикальными связями.
Сетку колонн многоэтажных зданий принимают: 6x6, 6x9, 6 х 12, 6 х 18 и 6 х 24 м.
Высоты этажей многоэтажных производственных зданий унифицированы и могут быть 3,6; 4,8; 6,0 м, а для первых этажей допускается высота 7,2 м. Для вертикального транспорта
в многоэтажных зданиях предусматриваются грузовые и пассажирские лифты, которые вместе с лестницами объединяются в узлы.
При разработке проектов промышленных зданий обязательно применение номенклатуры сборных железобетонных изделий и конструкций заводского изготовления. Номенклатура содержится в каталогах сборных конструкций, утвержденных Госстроем СССР. Эта номенклатура постоянно обновляется путем исключения устаревших и замены их наиболее экономичными и прогрессивными решениями.
При проектировании производственных зданий и сооружений промышленных предприятий обязательным для применения является «Общесоюзный каталог типовых индустриальных железобетонных и бетонных изделий». Он включает сборник: К-1 «Одноэтажные здания», К-2 «Многоэтажные здания», К-3 «Инженерные сооружения».
Для более гибкого использования типовых габаритных схем разработаны унифицированные типовые секции (УТС) и пролеты (УТП) как части зданий (см. гл. 26).
При выборе конструктивных решений
Таблица 19.1. Ориентировочное соотношение
стоимости, % конструктивных элементов и
видов работ производственных зданий
Одноэтажные | |||
Конструктивные | Много - | здания | |
Элементы и виды работ | здания | с | без |
работ | Этажные здания | кранами | кранов |
Земляные рабо- | 0,6 | 0,9 | 0,8 |
ты | |||
Фундаменты | 6,0 | 6,7 | 4,3 |
Стены | 20.0 | П,1 | 11,0 |
Железобетон- | 31,0 | 34,5 | 28,6 |
ный каркас | |||
Лестницы | 1,3 | — | — |
Полы | 13,5 | 11.7 | 14,4 |
Перегородки | 0,7 | 3,7 | 4,5 |
Проемы | 13,2 | 4.8 | 4,5 |
Кровля | 6,0 | 16.3 | 20,3 |
Фонари | - | 6.7 | 7,7 |
Отделочные ра- | 6,5 | 0,6 | 0,7 |
боты | |||
Прочие работы | 1,2 | 3,0 | 3,2 |
Всего | 100 | 100 | 100 |
промышленных зданий необходимо иметь в виду экономическую значимость стоимости отдельных конструктивных элементов в общей сметной стоимости здания (табл. 19.1). Из таблицы видно, что для многоэтажных зданий наибольшее влияние на стоимость оказывают стены, каркас, полы и проемы, в одноэтажных — каркас, конструкции кровли, полы и стены.
|
Из за большого объема этот материал размещен на нескольких страницах:
1 2 3 4 |






