Для отапливаемых зданий применяют
асбестопенопластовые, асбестодере-
вянные, асбестометаллические, алюми
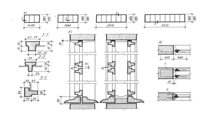
. 21.6. Стены из асбестоцементных листов и панелей:
/ — асбестоцементные листы, 2 — крюк. 3 — столик, 4 — стальной ригель. 5 — деревянный ригель, 6 ■
шуруп. 7. 8 — шайбы, 9 — пенопласт. 10 - деревянный каркас, 11 — минераловатные полужесткие плиты
ниевые, каркасные и бескаркасные (типа «сэндвич») панели.
Асбестопенопластовые панели (рис. 21.6, в) имеют размеры 1180 — 5980 и толщину 136 мм и состоят из асбестоце-ментных листов, обрамляющего профиля и пенопласта с воздушной прослойкой. Места стыков панелей тщательно проклеивают и промазывают водостойкой мастикой.
Асбестодеревянные панели (рис. 21.6, г) состоят из асбестоцементных листов, деревянного каркаса, утеплителя и пароизо-ляции.
Асбестометаллические панели состоят из алюминиевого каркаса, асбестоцементных обшивок и утеплителя из минераловатных полужестких плит и паро-изоляции. Размеры панелей 1190 х х 5980 х 147 мм.
Алюминиевые панели применяют размером 1190 х 5990 х 102 мм. Они состоят из рамы, плоских обшивочных листов толщиной 1 мм и эффективного утеплителя.
Каркасные панели шириной 3 м и длиной 3...12 м состоят из стальной рамы, обшивки из профилированных листов и утеплителя из пенопласта.
Бескаркасные панели типа «сэндвич» являются весьма эффективными. При этом обшивки из профилированных листов соединяются между собой утеплителем. Панели крепят к ригелям болтами за внутреннюю обшивку.
Анализ основных технико-экономических показателей различных типов стен (табл. 21.1) показывает преимущества облегченных конструкций.
Таблица 21.1. Основные технико-экономические показатели некоторых типов наружных стен (на 1 м:)
Тип стены | Масса, кг | Стоимость в деле, руб. | Трудозатраты при устройстве, чел-ч |
Из керамического кирпича Из керамзитобе-тонных панелей Из трехслойных панелей со стальной облицовкой и утеплителем из пенопласта Из асбестоцементных панелей с утеплителем из минераловатных плит | 1031 307 47,6 80,2 | 16,6 20,5 17,1 11,5 | 3,0 1,25 1,09 1,96 |
Вопросы для самопроверки
1. Основные типы стен промышленных зданий и требования к ним.
2. Конструктивные особенности устройства стен из мелкоразмерных элементов, крупных блоков и панелей.
В каких случаях устраивают облегченные конструкции стен? Их виды и особенности решений.
22. ОКНА,
ДВЕРИ И ВОРОТА
22 .1. Окна промышленных зданий и их конструктивные решения
Характер остекления, форму и размеры окон принимают на основе светотехнического расчета, исходя из условий обеспечения необходимого светового режима для работающих, обслуживающих технологический процесс.
Световые проемы могут иметь вид отдельных окон и лент. Может быть принято и сплошное остекление, которое, так же как и ленточное, устраивают в поме щениях, где необходимо иметь хорошее естественное освещение.
При проектировании оконных проемов необходимо обязательно учитывать, что излишняя площадь остекления является причиной перегрева помещений в летний период и переохлаждения зимой. Сплошное остекление целесообразно в основном для зданий с избыточным тепловыделением и взрывоопасными производствами.
Конструкции для заполнения оконных проемов производственных зданий изготовляют из дерева, стали, железобетона, легких металлических сплавов, пластмасс и прессованных материалов. Используют также стеклоблоки и стеклопрофилит,
Заполнение оконных проемов обычно состоит из коробок, переплетов с остеклением и подоконной доски.
Остекление может быть одинарное и двойное. Двойное остекление на высоту 4 м применяют обычно в случае, если рабочие места находятся у наружных стен на расстоянии не менее 2 м, а также в районах с расчетной зимней температурой -30 С и ниже при любом размещении рабочих мест. Размеры оконных про
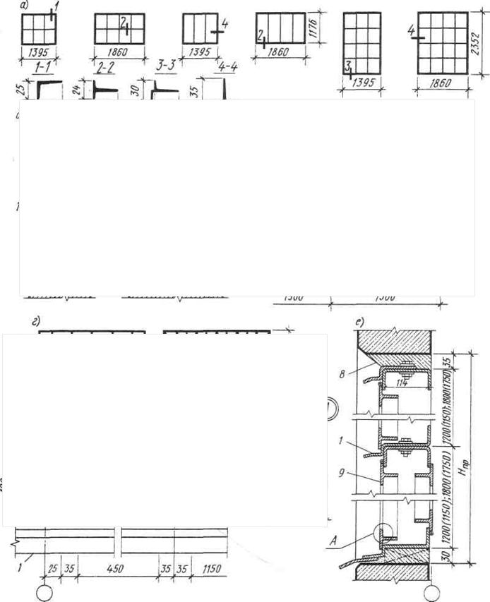
Рис. 22.1. Стальные переплеты из прокатных и гнутых профилей:
а — схемы переплетов, г — оконные панели из гнутых профилей, , е — горизонтальный и вертикальный разрезы проема с панельным заполнением, 1 — слив, 2, 3 — уголок, 4 — стальной лист, 5 — стойка-импост, 6 — колонна, 7 — крепежный уголок (панели к колонне). 8 - раствор. 9 - створка. 10 - стекло, //-резиновый профиль. 12 – кляммера
емов принимают кратными: по ширине — 600 и 300 мм, по высоте — 600 мм. По конструктивному решению оконные переплеты бывают глухие и створные. Створные переплеты, открывающиеся внутрь и наружу, устраивают в зданиях, где необходима естественная вентиляция. Проемы, предназначенные только для освещения, заполняют глухими оконными переплетами.
В зданиях с панельными стенами часто применяют ленточное остекление номинальной высотой, кратной 600 мм. Этот вид остекления может быть с открывающимися створками или лентами створок. Для открывания створок и лент приме
Рис. 22.2. Деревянные оконные блоки и панели:
а — схемы переплетов блоков с наружным открыванием створок, б — то же, с внутренним, в — сечение блока без наплава с одинарными переплетами и наружным открыванием створок, г — сечение блока с наплавом со спаренными переплетами и внутренним открыванием створок, д — глухая и створная оконные панели, е — заполнение проема глухими панелями, ж - то же, с открывающимися створками, / - стеновая панель, 2 — просмоленная пакля, 3 — колонна, 4 — остекление, 5 — упругая прокладка, б — деревянная прокладка
Рис. 22.3. Железобетонные оконные переплеты:
« — схемы переплетов, б — вертикальные разрезы заполнения проемов,
стержень диаметром 8 мм, 2 — закрепы
няют устройства дистанционного или автоматического управления.
Металлические переплеты изготовляют из прокатных и гнутых профилей (рис. 22.1). Стальные переплеты целесообразно устраивать из отдельных блоков-переплетов или панелей-. Деревянные переплеты применяют для зданий с нормальным температурно-влажностным режимом помещений (рис. 22.2).
Железобетонные переплеты устраивают обычно глухими. Створки выполняют из стали или дерева (рис. 22.3). Для зданий со стеновым ограждением из ас-бестоцементных волнистых листов принимают заполнение оконных проемов волнистым стеклом или стеклопластиком.
Для мытья и замены стекол на уровне парапета стены устраивают кронштейны, к которым крепят монорельс. По монорельсу передвигается тележка с подвешенной к ней люлькой.
Перспективным видом заполнения оконных проемов является беспереплетное из стеклоблоков и стеклопрофилита (рис. 22.4). Для заполнения проемов высотой до 3,6 м используют стеклопрофилит шириной 300 мм и высотой полки 50 мм. Стеклопрофилит швеллерного типа крепят в проеме кляммерами, а коробчатого типа — прижимными накладками длиной 1,5 м на самонарезающихся винтах. Стыки между стеклопрофилитом уплотняют с помощью полос или шнуров пористой резины или гернита.
Выбор типа остекления производят на основе тщательного технико-экономического анализа.
22.2. Ворота и двери. Их виды и конструктивные решения
Для пропуска средств напольного транспорта в наружных стенах промышленных зданий устраивают ворота. Их расположение и количество определяются с учетом специфики
технологического процесса, характера объемно-планировочного решения зданий
Рис. 22.4. Конструкции оконного заполнения из стеклопрофилита:
а —сечения стеклопрофилита, 6 — схемы заполнения проемов, в — общий вид и детали крепления стек-лопанелей, 1 — резиновая насадка, 2 — мастика, 3 — винт, 4 — стеклопрофилит, .5 — слив, 6 — полоса 30 х 4 мм, 7 — открывная створка, 8 — стеклопанель, 9 — уплотнитель. 10 — уголок, II — швеллер, 12 — смоляная пакля, 13 — раствор
Размеры ворот назначают из условия обеспечения пропуска транспортных средств, обслуживающих технологический процесс. Их величина должна превышать габариты транспорта в груженом состоянии по ширине не менее чем на 600 мм и по высоте на 200 мм.
Размеры проемов ворот принимают кратными модулю 600 мм. Установлены следующие типовые размеры ворот: 2,4 х 2,5; 3 х 3; 3,6 х 3; 3,6 х 3,6; 3,6 х 4,2 и 4,8 х 5,4 м. В отдельных цехах, выпускающих большеразмерные виды продукции, ворота могут иметь размеры до нескольких десятков метров. Снаружи здания перед воротами предусматривают пандусы с уклоном 1 : 10.
Во избежание больших теплопотерь отапливаемых зданий и появления в них сквозняков ворота оборудуют воздушно-тепловыми завесами.
По конструктивному решению ворота могут быть распашные, раздвижные, подъемные, откатные и др. (рис. 22.5). Полотна распашных и раздвижных ворот могут быть металлическими и металло-деревянными. Обвязку выполняют из металлических профилей. Часто в полотнах
Рис. 22.5. Основные виды ворот промышленных зданий:
а — распашные, б, в — раздвижные, г — подъемные, д — подъемно-поворотные, е — откатные
ворот устраивают калитки для пропуска людей.
Рамы ворот, обрамляющие проем, могут быть сборными и монолитными железобетонными (рис. 22.6). В пределах шага колонн, между которыми расположены ворота, фундаментную балку не укладывают.
Целесообразно устройство ворот качающегося типа. Полотна таких ворот выпо'лняют из резины или прозрачного упругого пластика, натягиваемых на раму. В этом случае пропуск транспортных средств осуществляется без задержек, а также до минимума сокращаются те-плопотери.
Двери промышленных зданий устраивают одно - и двупольными, распашными и откатными. По материалу дверные полотна бывают металлические, деревянные и стеклянные. Номинальные размеры проемов приняты: ширина 1; 1,5 и 2 м и высота 1,8; 2; 2,3 и 2,4 м. Их ширину и расположение определяют расчетом с учетом обеспечения безопасности эва куации людей из помещении и здания в целом. Около наружных дверей устраивают тамбуры глубиной на 0,4...0,5 м больше ширины дверного полотна.
Дверные проемы обрамляют коробками. Деревянные коробки крепят в проемах гвоздями и ершами, забиваемыми в деревянные пробки. Коробки стальных полотен изготовляют из уголков 75 х х 75 мм, а полотна штампуют из стальных листов толщиной 2 мм. Обрамления проемов при стеклянных дверях выполняют из алюминиевых профилей с пластмассовыми наличниками. Стеклянные двери устраивают качающегося типа.
Вопросы для самопроверки
1. Основные факторы, влияющие на характер и тип остекления промышленных зданий.
2. Основные типы оконных конструкций.
3. Типы ворот и дверей промышленных зданий.
4. Какие факторы определяют характер размещения и размеры ворот и дверей промышленных зданий?
23* ПОКРЫТИЯ И ФОНАРИ
23 • 1. Типы покрытий. Покрытия
из крупноразмерных элементов
Покрытия промышленных зданий состоят из несущей и ограждающей частей. Несущие конструкции покрытий рассмотрены в § 20.4.
В состав ограждающей части покрытия могут входить:
несущий настил, поддерживающий ограждающие вышерасположенные элементы ;
пароизоляция, предохраняющая вышерасположенный теплоизоляционный слой от увлажнения водяными парами, проникающими в ограждающую конструкцию покрытия из помещений;
теплозащитный слой, устраиваемый для защиты помещений от теплопотерь зимой и перегрева летом. Толщина теплозащитного слоя из эффективных теплоизоляционных материалов (легких бетонов, минераловатных плит и др.) определяется по расчету (см. § 17.1): выравнивающий слой (стяжка), предназначенный для выравнивания нижерасположенного слоя из цементного раствора или асфальта;
кровля (водо изоляционный слой из рулонных или листовых материалов), служащая для защиты помещений от атмосферных осадков;
защитный слой, устраиваемый из крупнозернистого песка или мелкозернистого гравия на битумной смазке для защиты кровли от воздействия прямых солнечных лучей.
В зависимости от конструктивного решения покрытия могут быть из крупноразмерных элементов, укладываемых по несущим конструкциям, и балочные, в которых плиты располагают по балкам, опирающимся на несущие конструкции покрытия.
В зависимости от температурно-влаж-ностного режима помещений покрытия могут быть утепленные и холодные (рис. 23.1).
Утепленные покрытия устраивают в отапливаемых помещениях, а также в зданиях с незначительными избыточны
Рис. 23.1. Основные типы покрытий с железобетонными плитами и рулонными кровлями: а—— невентилируемые, .\ 1- защитный слой, 2 — волоизоляционный ковер, 3 — стяжка, 4 — несущая плита, 5 — утеплитель, 6 — пароизоляиия, 7 — комплексная плита, 8 - каналы и борозды, 9 - перфорированный рубероид с гравием. 10 — воздушная прослойка
ми тепловыделениями (термические цехи, цехи горячей штамповки и др.), когда тепловыделения не превышают 23 ВтДм - • °С).
Над неотапливаемыми помещениями, а также в горячих цехах со значительными тепловыделениями устраивают холодные покрытия, в которых отсутствуют теплоизоляционный слой и па-роизоляция (рис. 23.1, а).
В зависимости от эксплуатационного режима ограждающая часть покрытий может быть вентилируемой, частично вентилируемой и нееентилируемой. Назначением вентиляционных продухов является отвод водяных паров из-под кровельного ковра Вентилируемые покрытия устраивают также в южных районах для обеспечения защиты помещений от перегрева. Кроме того, вентиляционные продухи обеспечивают повышение надежности и эксплуатационных качеств покрытия.
Наибольшее распространение получили покрытия по железобетонным настилам. В качестве несущих элементов применяют предварительно напряженные железобетонные ребристые плиты размерами 1,5 х 6; 1,5 х 12; 3 х 6 и 3 х 12 м (рис. 23.2).
Широкое распространение получают комплексные панели (рис. 23.2), когда в заводских условиях выполняют все работы по устройству покрытия, а на
Стоимость, | Масса, кг | Затраты труда на строительной площадке, чел-ч | Расход материалов | |||
Конструктивное решение | сталь, кг | бетон, М-< | утеплитель. кг | |||
Железобетонные плиты 3 х 12 м с утеплителем из пенобетона и трехслойной кровли Плиты размером 3x6 м с утеплителем из пенобетона с трехслойной кровлей Комплектная железобетонная плита размером 3x6 м с утеплителем из mhhl аловатных плит и трехслойной кровлей | 100 73.4 60,7 | 337,8 300 198 | 1,33 1.25 1,14 | 13,2 11,2 11,2 | 0,14 0,13 0,13 | 70 70 40 |
Рис. 23.2. Крупноразмерные железобетонные панели покрытий: а — размером 1.5x6 м, 6 — размером 3x6м, в — прокатная размером двоякой двоякой кривизны, д — предварительно напряженные размерами 1,5 х 12 и
размерами Зх6миЗх12м
строительной площадке только заделывают швы между панелями настила (рис. 23.3,6).
В табл. 23.1 приведены основные показатели утепленных покрытий из железобетонных плит различных размеров.
Высокие технико-экономические показатели и хорошие эксплуатационные качества имеет профилированный настил (рис. 23.4), изготовляемый из стального оцинкованного ребристого профиля толщиной 1 мм, утепленный слоем пенопо-листирола толщиной 50 мм. Высота настила 80 мм, ширина 600 мм и длина до 12 м. Настил крепят к стальным конструкциям покрытия болтами диаметром 6 мм. По сравнению с настилом го железобетонных плит стальной настил позволяет снизить трудоемкость изготовления и монтажа покрытия на 25...40%.
Перспективными являются крупнораз
мерные панели покрытий с использова
нием пластмасс. К ним относятся асбе-
стоцементные, асбестопластмассовые
и алюминиево-пластмассовые панели. Так, асбестоцементная панель ПАК (рис. 23.5, а), предназначенная для устройства вентилируемых покрытий, имеет размеры 1,5 х 6 м и высоту 300 мм. Панель монтируют на заводе из четырех продольных асбестоцементных швеллеров, трех поперечных асбестоцементных диафрагм, двух плоских листов толщиной 10 мм и минераловатного утеплителя толщиной 50мм.
Асбестопенопластовая панель (рис
Рис. 23.3. Конструкция комплексной панели покрытия:
а — общий вид, б — деталь сопряжения панелей, 1 — гидроизоляционный слой, 2 — теплоизоляция, 3 — пароизоляция, 4 — плита, 5 — стяжка, 6 — керамзитовый гравий. 7 — полоса рубероида, 8 — бетон на мелком заполнителе, 9 — комплексные плиты
23.5Асбестопенопластовая панель:
1 — мастика. 2 — пенопласт. 3 — рулонная кровля. 4 — минеральная вата, 5 — пороизол
23.5, б, в) имеет те же размеры и состоит из плоских асбестоцементных листов, продольных асбестоцементных профилей, торцовых заглушек и пенопластового утеплителя.
23.2. Покрытия по прогонам
Покрытия по прогонам (балкам) проектируют в тех случаях, когда настилами служат эффективные армоцементные и ячеисто-бетонные плиты, а также асбе-стоцементные и металлические маты и плиты.
Мелкоразмерные настилы укладывают по стальным или железобетонным прогонам (рис. 23.6).
Стальные прогоны изготовляют из прокатных или гнутых профилей, а желе зобетонные — швеллерного или таврового сечения (рис. 23.6, а, б). Длину прогонов принимают обычно 6 м, что соответствует шагу несущих конструкций покрытия, а при шаге 12 м применяют решетчатые прогоны (рис. 23.6, в, г).
По прогонам укладывают армоцементные, легкобетонные, асбестоце-ментные полые плиты, асбестоцементаые волнистые листы и др. (рис. 23.6, д, е, ж). Армоцементные плиты длиной 1,5 и 3 м и шириной 495 мм изготовляют из бетона В25 и армируют стальной сеткой. Легкобетонные плиты из бетона классов В2,5...В10 изготовляют тех же размеров толщиной 120мм. Асбестоце-ментные волнистые листы укладывают по стальным или железобетонным прогонам на расстоянии 1500 мм друг от друга при длине листов 1750 мм (рис. 23.6, г).
Рис. 23.6. Покрытия с прогонами: / — прогон. 2 — кляммеры. 3 — верхний пояс УМС-50, 6 - минеральный войлок, 7 - кладка. 10 — стальная накладка фермы (балки), 4 — асбестоцемен тный лист, 5 — мастика бобышка 40 х 102 х 120 мм. S - пароизоляция, 9-упругая про-
Неутепленные покрытия из асбестоце-ментных волнистых листов по стальным прогонам и фермам экономичнее по сравнению с железобетонными покрытиями. Так, при пролете 24 м они в 5...6 раз легче и имеют стоимость в 1,5...2 раза ниже.
Долговечность асбестоцементных покрытий повышается при их гидрофобили-зации и применении податливых креплений листов к прогонам или деревянным брускам.
Весьма эффективными являются покрытия со стальными настилами по прогонам с шагом 1,5...3 м.
При устройстве неутепленных покрытии из дерева мягкую рулонную кровлю приклеивают к дощатому настилу. Настил состоит из двух слоев: нижнего из досок толщиной 25...30 мм, шириной 100мм и с зазором между ними и верхнего слоя из реек шириной 50...80 мм, которые прибивают к рабочему настилу под углом 45'.
Z3.3. Кровли промышленных зданий. Водоотвод с покрытий

В промышленном строительстве для скатных и малоуклонных покрытий применяют рулонные кровли, волнистые ас
Рис. 23.7. Детали покрытий с различными видами кровель:
а-.' - рулонной, д - мастичной, с - водонаполненной, / - стена. 2 - костыли через 0,5 м, 3 - оцинкованная сталь. 4 - мастика, 5 - стальная полоса 40 х 3 мм, 6 - дюбель, 7 - рнствор, 8 - воронка, 9 - защитный слой, 10 - дополнительные слои кровли, //-основной ковер, 12 — выравнивающий слой. 13 — утеплитель, 14 -плита, 15 — парапетная плита, 16 — пароизоляция, /7—мастичные слои, 18 — слой воды
бестоцементные и алюминиевые листы. Для отапливаемых зданий наиболее экономичными являются рулонные или мастичные кровли, устраиваемые по покрытиям с уклоном от 1,5 до 12%.
Преимуществом плоских рулонных кровель является их водонепроницаемость; стойкость против растрескивания в связи с применением пластичных приклеивающих мастик; стойкость против механических и атмосферных воздействий. Материалами для устройства рулонных кровель служат толь, рубероид, гидроизол, стеклорубероид, пергамин, наклеиваемые на битумные или дегтевые мастики.
Для обеспечения водонепроницаемости кровлю укладывают в несколько слоев, количество которых зависит от уклона покрытия; при уклоне более 15% — двухслойные без защитного слоя; от 10 до 15 % — трехслойные без защитного слоя; от 2,5 до 10% — трехслойные с защитным слоем; до 2,5 % - четырех-слойные (и более) с защитным слоем.
Полотнища рулонных материалов при уклонах до 15% располагают параллельно, а при уклонах более 15% - перпендикулярно коньку с напуском полотнищ друг на друга 50м.
В местах примыкания рулонных кровель к выступающим элементам (рис. 23.7) и в местах устройства температурных швов в покрытии (рис. 23.8) укладывают дополнительные слои водои-золяционного ковра. Ковер заводят на выступающие элементы, прикрепляют к ним гвоздями или дюбелями, а стыки защищают промазкой или обивают оцинкованной сталью. На участках ендов всех скатных покрытий укладывают защитный гравийный или слюдяной слой (рис. 23.7, а, б).
В районах с расчетными температурами наружного воздуха в 13 ч. самого жаркого месяца +25° и выше целесообразно применение водонаполненных кровель. Слой воды до 300 мм обеспечивает надежную защиту зданий от перегрева. В зимний период воду спускают в специальные воронки, которые устраивают на покрытии (одна воронка на 1000 м2 площади).
Водоотвод с покрытий промышленных зданий бывает наружный и внутренний. Наружный водоотвод принимают неорганизованным при высоте здания не более 10 м, а также устраивают организованный через водосточные воронки (рис. 23.9, а, б). Для неотапливаемых зданий, как правило, проектируют свободный сброс воды с кровли. Внутренний отвод воды с покрытий неотапливаемых зданий допускается при наличии производственных тепловыделений, обеспечивающих положительную температуру в зда
Рис. 23.9. Конструкции водоотвода с покрытий промышленных зданий:
/ — карнизная плита, 2 — антисептированный брусок, 3 — фартук из оцинкованной стали, 4 — верх фартука (буртик), 5 — дополнительные слои кровли, 6 — основной рулонный ковер, 7 — цементная стяжка, 8 — утеплитель. 9 — пароизоляция, 10 — железобетонная плита покрытия, 11 — водоприемная воронка, 12 — лоток, 13 — настенные желоба, 14 — патрубок водосточной трубы, 15 — хомут из полуколец, 16 — воротник (чаша) воронки, 17 — прижимное кольцо, IS — защитный колпак, 19 — шпилька М-12, 20 — керамзитобетонный блок
нии, или при специальном обогреве водосточных воронок и труб.
При устройстве внутреннего водоотвода (рис. 23.9, в) расположение водоприемных воронок, отводных труб и стояков, собирающих и отводящих воду в ливневую канализацию, назначают в соответствии с размерами площади покрытия и поперечного профиля.
При устройстве покрытия необходимо создать уклон в сторону водоприемных воронок путем укладки в ендовах слоя легкого бетона переменной толщины.
Водонепроницаемость кровель в местах установки водосточных воронок достигается наклейкой на фланец чаши воронки слоев основного гидроизоляционного ковра с усилением тремя мастичными слоями, с армированием стеклохолстом или стеклосеткой.
Воронки должны быть равномерно размещены на плане кровли. Максимальное расстояние между ними не должно превышать 48...60 м. В поперечном направлении здания на каждой продольной координационной оси следует располагать не менее двух воронок (прилож. 4).
Расчетный расход воды с водосборной площади, приходящейся на водосточный стояк, не должен превышать: при диаметре воронки 80 мм — 5 л/с; 100 мм — 10 л/с; 200 мм — 80 л/с. При этом необходимо учитывать также 30 % суммарной площади стен, примыкающих к кровле (фонари, парапеты, перепады высот и др.).
Z3.4. Фонари.
Принципы проектирований, конструктивные решения
Фонарями называют остекленные или частично остекленные надстройки на покрытии здания, предназначенные для верхнего освещения производственных площадей, удаленных от оконных световых проемов, а также для необходимого воздухообмена в помещениях.
По назначению фонари подразделяют на световые, аэрационные и комбинированные (светоаэрационные).
По профилю сечения фонари бывают (рис. 23,10) прямоугольные, трапециевидные, треугольные, М-образные, ше-довые и зенитные.
Необходимость устройства фонарей должна быть обоснована путем тщательного технико-экономического сравнения и с учетом технологических и санитарно-гигиенических требований, а также природно-климатических условий района строительства. Так, для защиты помещений от попадания прямых солнечных лучей необходимо применять шедовые фонари с остеклением, обращенным на север. Комбинированные фонари для многопролетных зданий следует устраивать преимущественно одинаковой высоты во всех пролетах. В неотапливаемых зданиях с наружным водоотводом не рекомендуется применять М-образные фонари.
Обычно фонари располагают вдоль здания, и они не доходят до торцов наружных стен на 6 или 12 м.
В световых фонарях предусматривают разрывы по длине не реже чем через 84 м, шириной не менее 6 м. При невозможности устройства такого разрыва фонари оборудуют переходными пожарными лестницами.
Отвод воды с фонарей проектируют наружный и внутренний. Наружный водоотвод устраивают при ширине фонаря до 12 м при вертикальном остеклении и до 6 м — при наклонном.
Если водоотвод наружный, то в соответствующих местах надо защитить покрытие от повреждения стекающей с фонаря воды гравийной засыпкой по мастике или специальными бетонными плитами.
Фонари (кроме зенитных) изготовляют
Рис. 23.10. Основные профили световых и комбинированных фонарей:
а — прямоугольный, б, в — трапециевидный, г — треугольный, д — М-образный, с — шеловыи. .vi-
из стали. Железобетон применяют крайне редко.
Несущий каркас фонаря состоит из поперечных конструкций (ферм) и боковых панелей. Для повышения поперечной жесткости в контур фонаря вводят раскосы и устанавливают связи между рамами фонаря (рис. 23.11).
Переплеты применяют в основном стальные высотой 1250, 1500 и 1750 мм при шаге 6000 мм, которые по длине фо наря образуют ленточное остекление. В большинстве случаев фонарные переплеты оборудуют устройствами для механического открывания всей ленты переплетов или отдельных блоков.
Переплеты должны открываться до 70е. При наклонных переплетах целесообразно применение армированного листового стекла, которое устанавливают на месте. Крепят его специальными кляммерами (рис. 23.12)
Рис. 23.11. Конструкции стального фонаря
а - фонарная панель, б - фонарные фермы, в - панели тордов, г - фонарный переплет, I — ось ума стропильной фермы, 2 - фонарная панель, 3 - монорельс, 4 - резиновый профиль, 5 — металлический профиль, б - кляммера

Рис. 23.12. Деталь прямоугольного фонаря: / — кровельная оцинкованная сталь. 2 — слой теплоизоляции, 3 — бортовой элемент, 4 — деревянные бруски, 5 — переплет, 6 — асбестоцементная карнизная панель, 7 - железобетонная плита, 8 — крепежный анкер, 9 — швеллеры, 10 — фонарная ферма, 11 — фонарная панель
Учитывая, что рамные фонари имеют значительную сложность в устройстве, велики эксплуатационные затраты и те-плопотери зданий, не всегда обеспечивается требуемая освещенность вследствие загрязнения стекол или больших снеговых отложений в межферменных зонах. В последнее время разработаны эффективные конструкции зенитных фонарей (рис. 23.13), представляющих собой конструкцию для светопропускания в покрытии.
Светопрозрачные конструкции, которые выполняют из пластмасс, инду-стриальны в изготовлении, имеют незначительную массу, высокую прочность, простоту монтажа и удобство эксплуатации.
Зенитные фонари бывают точечные (устанавливаемые отдельно по площади покрытия) и секционного типа. Секции к несущим элементам прикрепляют шурупами. Купола зенитных фонарей имеют размеры 1400 х 1600 мм, а панели из органического стекла — 1600 х 6200 мм.
|
Из за большого объема этот материал размещен на нескольких страницах:
1 2 3 4 |



