Учитывая, что поступление и удаление воздуха при аэрации происходит вследствие разности давлений по одну и другую сторону приточных и вытяжных от
Рис. 23.13. Конструкция зенитного фонаря с куполом из стеклопластика:
а - продольный разрез, б - деталь опорного узла, 1 - купола, 2 - плита покрытия, 3 — керамзитобетонная плита, 4 — обрамляющая металлическая рама, 5 — резиновая прокладка, 6 — болты крепления, 7 — опорная рама, 8 — фартук из оцинкованной стали, 9 — утеплитель
верстий, проектируют аэрационные фонари (рис. 23.14). Для обеспечения одновременной работы вытяжных отверстий с обеих сторон фонаря применяют так называемые незадуваемые аэрационные фонари с вертикальным остеклением. Устанавливают, также специальные ветрозащитные панели (щиты) на некотором расстоянии от фонаря.
Незадуваемые аэрационные фонари работают на вытяжку при любом направлении ветра, так как с подветренной их стороны создается разрежение воздуха благодаря срыву струй ветра с ветрозащитных панелей. Высота проемов фонарей принята 1,25; 1,75; 2,4 и 3,4 м.
Для аэрации можно использовать зенитные фонари, в которых колпаки устраивают открывающимися или в стаканной части предусматривают щели с регулируемыми жалюзями.
Вопросы для самопроверки
1. Ограждающая часть покрытия промышленного здания и ее основные слои.
2. Особенности устройства утепленных и холодных покрытий.
3. Устройство покрытий из крупносборных элементов и по прогонам.
4. Кровли промышленных зданий.
5. Виды организации водоотвода с покрытий.
Основные виды фонарей промышленных зданий и особенности их устройства
24* полы
24 Л, Полы, их виды
и требования к ним
Полы, являясь конструктивным элементом, который постоянно подвергается эксплуатационным воздействиям, составляют от 5 до 25% от общей стоимости одноэтажных зданий, а для многоэтажных - от 5 до 12%. Их проектируют с учетом требований СНиП II-B.8 —71 «Полы. Нормы проектирования».
При выборе вида и конструктивного решения пола прежде всего необходим учет характера производственных воздействий на пол, а также требований, выполнение которых обеспечит эксплуатационную надежность и долговечность пола.
В связи с этим полы промышленных зданий должны удовлетворять следующим требованиям: обладать высокой механической прочностью; ровной и гладкой поверхностью; не скользить; быть мало истираемыми и не пылить при движении по ним транспортных средств и людей; иметь хорошую эластичность, устраняющую повреждение предметов при падении на пол; быть бесшумными; обладать малым коэффициентом те-плоусвоения; иметь водонепроницаемость, влагостойкость, стойкость против возгорания и стойкость против химических агрессивных веществ; обеспечивать возможность проведения быстрого и малотрудоемкого ремонта; быть индустриальными в устройстве; легко очищаться и долго сохранять красивый внешний вид.
Уровень пола первого этажа должен быть, как правило, выше планировочной отметки участка территории на 150 мм. В отдельных случаях, при высоком уровне грунтовых вод, уровень пола может быть поднят на 500 мм выше планировочной отметки.
Название пола зависит от материала его покрытия. В зависимости от конструкции и способа устройства покрытия полы разделяют на полы из штучных материалов и сплошные (монолитные).
В одноэтажных производственных зданиях полы устраивают обычно непосредственно на грунт основания, в многоэтажных — на перекрытия. В состав пола на грунте входят следующие конструктивные элементы: основание, подстилающий слой и покрытие. Другие слои устраивают в зависимости от требований. Основанием под полы для одноэтажных зданий обычно служит естественный грунт. В слабые грунты основания часто для усиления добавляют гравий или щебень, а затем этот слой грунта уплотняют катками, вибраторами или трамбовками. Подстилающий слой (подготовка) располагается поверх основания и предназначен для распределения нагрузки по основанию. Тип подготовки зависит от принятого вида покрытия и технологических требований, а ее толщина зависит от нагрузок и характера основания и может быть принята от 80 до 250 мм.
24,2. Конструктивные решения полов
К сплошным полам относятся глин<^-битные, гравийные и щебеночные, бетонные и цементно-песчаные, мозаичные и металлоцементные, асфальтобетонные, ксилолитовые и др. (рис. 24.1).
Глинобитные полы устраивают в некоторых горячих цехах. Покрытие пола состоит из смеси глины, песка и воды и совмещает в себе функции подстилающего слоя. Необходимая прочность материала покрытия составляем не менее 2 МПа (20 кгс/см2). Если в смесь добавить 2...3% маслянистых веществ и 55...65% гравия или щебня, то получается глинобитный пол с повышенными механическими качествами.
Гравийные и щебеночные полы устраивают в местах проезда транспорта. Выполняют их из смеси гравия или щебня крупностью 25...75 мм и песка, укладываемого слоями толщиной 100...200 мм. Слои выравнивают и уплотняют. Поверхность обрабатывают клинцом крупностью 15...25 мм и каменной мелочью 5мм. Щебеночные покрытия можно пропитывать горячим битумом. Покрытие также служит одновременно и подстилающим слоем.
Бетонные и цементно-песчаные полы устраивают в помещениях с повышенной
Рис. 24.1. Полы промышленных зданий;
а — глинобитный, й - гравийный или щебеночный, в — бетонный, г - асфальтобетонный, д, е - ксилолитовые, ж - брусчатый, з, и - кирпичные, к', л - торцовые, м, н - плиточные, о, п - металлические, р -дощатый, г —паркетный, т - из линолеума, ф - поливинилацетатный, х — из поливинилхлоридного линолеума, ц — из фенолитовых плиток
влажностью, а также где возможно попадание на пол минеральных масел, кислот и щелочей. Устраивают их по бетонной подготовке толщиной 20...50 мм (бетон классов В15...В30). Толщина цементно-песчаного покрытия 20...30 мм.
Мозаичные полы состоят из цементно-песчаного раствора, мелкого заполнителя из мрамора, гранита, базальта и песка. Толщина покрытия 20...25 мм.
Металлоцементные покрытия устраивают толщиной 15...20 мм из смеси стальной стружки (размер 1...5 мм), цемента и воды, укладываемой по прослойке толщиной 15 мм из цементно-песчано-го раствора. Иногда поверхности полов железнят. Для повышения прочности и уменьшения истираемости бетонные и цементно-песчаные покрытия пропитывают флюатами и уплотняющими составами.
Асфальтобетонные полы устраивают в складах, проездах и проходах толщиной покрытия 25...50 мм. Смесь состоит из битума с пылевидным заполнителем, песком и щебнем или гравием. Асфальтобетонные покрытия укладывают по бетонному, булыжному или щебеночному подстилающему слою.
Ксилолитовые полы устраивают в помещениях, к которым предъявляют специальные требования, и с длительным пребыванием людей. Толщина покрытия 15...20 мм из смеси каустического магнезита, опилок и водного раствора магния обеспечивает хорошие эксплуатационные свойства. Иногда добавляют пигмент минерального происхождения. Подстилающим слоем для ксилолитовых полов служит бетон.
К полам из штучных материалов относят брусчатые, клинкерные, торцовые, металлические и плиточные.
Брусчатые полы устраивают в помещениях, где возможны высокие температуры, воздействия химических веществ
Рис. 24.2. Детали полов:
а — полы из бетонных плит в зоне железнодорожных путей, 6 — то же, полы из торцовой шашки, в — д - конструкции температурных швов б полах сплошных, на перекрытиях и с оклеенной гидроизоляцией, е, ж — примыкание пола к вертикальным ограждениям, з, и - примыкания разных сплошных покрытий, к — то же, из штучных материалов, 1 - подстилающий слой, 2 - покрытие пола, 3 — плиты бетонные 500 х 500 х 80 мм, 4 — песчаный балласт, 5 — шпалы, 6 — покрытие из торцовой шашки, 7 — уголок, 8 — мастика или пакля, 9 - компенсатор, 10 - гидроизоляция, 11- плинтус из пластмассы, /2-,частика, 13 - плинтус из раствора, 14 - уголок, 15 — анкер, 16 - пробки, 17 - рейка. 18 - крюки, 19 — бетоный бортик
а также на путях движения тяжелого
транспорта. Размеры брусчатки
150 х 200 х мм из гранита, базальта, диабаза и других прочных материалов. Укладывают камни по бетонной или песчаной подготовке на подстилающий слой из песка, цементно-песчаной или мастичной прослойке.
Полы из клинкера устраивают аналогично брусчатым.
Торцовые полы представляют собой покрытие из деревянных прямоугольных или шестигранных шашек, изготовленных из пихты, березы, дуба или бука высотой 60 или 80 мм, устраиваемое по песчаной прослойке толщиной 10мм. Такие полы имеют малый коэффициент те-плоусвоения, бесшумны и эластичны. Их устраивают в механических, инструментальных, сборочных и других цехах.
Плиточные полы устраивают из бетонных, цементно-песчаных, мозаичных, ксилолитовых, асфальтобетонных, керамических и других плиток различных размеров. Их укладывают по прослойке це-ментно-песчаного раствора толщиной 10мм или из мастики I...3 мм.
Металлические полы устраивают на отдельных участках мартеновских, литейных, прокатных, термических и других цехов, где возможны падения на пол тяжелых предметов, воздействия высоких температур и требуется гладкая и непы-лящая поверхность пола.
Чугунные плиты размером 248 х 248 или 298 х 298 мм и толщиной 6 мм или стальные 300 х 300 мм укладывают на прослойку из песка или мелкозернистого бетона.
В промышленных зданиях используют и другие конструкции полов. Так, полы из полимерных рулонных, мастичных (бесшовных) и плиточных материалов обладают высокой прочностью, хорошим сопротивлением истиранию, водонепроницаемостью и эластичностью. Устройство этих полов и других видов аналогично рассмотренным в разделе «Гражданские здания».
При устройстве полов важно правильно обеспечить примыкание к вертикальным ограждающим конструкциям, переход от одного вида пола к другому, предусмотреть температурные швы и др. На рис. 24.2 показаны наиболее характерные и часто встречающиеся случаи устройства деталей полов.
Вопросы для самопроверки
1. Основные виды полов и требования к ним.
2. Устройство полов из штучных материалов.
Особенности устройства сплошных полов.
25 ПРОЧИЕ ЭЛЕМЕНТЫ ПРОМЫШЛЕННЫХ ЗДАНИЙ
25.1 Перегородки
Для разделения больших площадей производственных зданий на отдельные помещения, когда производственный или температурно-влажностный режим на отдельных участках имеет разные параметры, устраивают разделительные перегородки на всю высоту помещения. В отдельных случаях применяют так называемые выгораживающие перегородки, которые не доходят до потолка. Они предназначены для отделения цеховых складов, служебных помещений и других обслуживающих и подсобных помещений. Перегородки должны обладать про чностью, устойчивостью и отвечать противопожарным требованиям.
По материалу перегородки подразделяют на кирпичные, железобетонные, деревянные, металлические и стеклянные, при этом предпочтение отдают индустриальным конструкциям заводского изготовления. В этой связи устройство кирпичных перегородок (толщиной 1, '/2 или lU кирпича) является менее приемлемым, так как затрудняется модернизация технологического процесса, а также значительны трудоемкость и стоимость.
Железобетонные перегородки (рис. 25.1) изготовляют из тяжелого, легкого или ячеистого бетона. Панельные перегородки крепят непосредственно к колоннам или стойкам фахверка с помощью закладных деталей.
Панельные перегородки выполняют из
Рис. 25.1. Перегородки для промышленных зданий:
а — деревянные, й — железобетонные, / — направляющая рейка, 2 — верхняя обвязка, 3 — стекло или
сетка, 4 — плинтус, 5 - хомут, б — стойка-вкладыш, 7 - несущая стойка, 8 - обвязка, 9 — глухой щит
легких бетонов, фибролита в деревянной обвязке с облицовкой, гипсобетона, а также каркасно-щитовой конструкции. Каркасно-обшивные панели могут быть размером 1,2 х 6,0 х 0,08 и 1,8 х 6,0 х 0,08 м.
Каркасно-щитовые перегородки с деревянным каркасом и обшитые листами плоского асбестоцемента или гипсокар-тонными листами применяют для одноэтажных зданий с шумным производством. В качестве заполнителя может быть использован минераловатный войлок. Крепление осуществляют с помощью дюбелей.
Деревянные выгораживающие перегородки собирают из столярных щитов шириной 446, 946 и 1946 мм и стоек-вкладышей сечением 54 х 50 мм (рис. 25.1, я). Щиты и стойки устанавливают на направляющий брус, прикрепляемый к полу, а по верху щитов укладывают брус жесткости, который крепят к стене или колоннам. При протяженности перегородок более 6 м устойчивость перегородок обеспечивают постановкой щитов-ребер шириной 446 мм.
Стальные выгораживающие перегородки (рис. 25.2) состоят из стоек, устанавливаемых с шагом 1,5 м, основных щитов размерами 1,5 х 1,8 и 1,5 х 2,4 м и добротных щитов размерами 1,0 х 1,8 и 1,0 х 2,4 м, навешиваемых на стойки. Стойки выполняют из труб или уголков. Щиты заполняют стальной сеткой, а нижнюю часть — оцинкованными профилированными листами. Листы между собой крепят заклепками. В герметизированных зданиях перегородки можно монтировать из листовых материалов с уплотнителем из специального резинового профиля
Выбор типа перегородки осуществляют на основе технико-экономического анализа по основным показателям (табл. 25.1).
Таблица 25.1. Технико-экономические
показатели некоторых видов перегородок
(в расчете на 1 м2)
Стои- | Трудозат- | ||
Конструкция | Масса, | мость | раты при |
перегородки | кг | в деле, | монтаже, |
руб. | чел-ч | ||
Кирпичная толщиной | 518 | 8,4 | 2,3 |
250 мм | |||
Из железобетонных | 137 | 7,4 | 1,1 |
панелей толщиной | |||
80 мм | |||
Из фибролитовых | 59,6 | 6,4 | 0,6 |
плит | |||
Каркасная с заполне- | 35 | 15,8 | 0,66 |
нием асбестоцемент- | |||
ными листами | |||
Из стальных профи- | 22,5 | 8,4 | 0,41 |
лированных листов | |||
Из стеклопрофилита | 24 | 12,2 | 1,8 |
коробчатого сечения |
25.2. Внутрицеховые конструкции и лестницы
Для создания необходимых условий эксплуатации и ремонта технологического оборудования в промышленных зданиях устраивают технологические обслуживающие площадки, антресоли и этажерки.
Технологические площадки предназначены для обслуживания установленного в цехе оборудования, складирования материалов и сырья. Их устройство чаще всего необходимо в цехах, технологический процесс в которых организован по вертикали (пищевое, химическое и другие виды производства). Площадки могут опираться на основные конструкции каркаса здания, на самостоятельные опоры или технологическое оборудование и нередко представляют собой многоэтажные ярусы.
Антресоли предназначены для размещения оборудования, вспомогательных помещений (служебных и бытовых). Они представляют собой как бы полуэтаж, позволяющий увеличить производственную площадь цеха.
Этажерки (рис. 25.3) представляют собой чаще всего многоярусные сооружения внутри производственного здания, на котором устанавливается большегабарит-ное оборудование. Все эти виды устройств могут быть выполнены из железобетонных, металлических сборных или монолитных конструкций. Их пространственную жесткость обеспечивают установкой стальных связей. На уровне каждого яруса обязательно устраивают ограждения высотой не менее 1,0 м. Сообщение между ярусами осуществляется с помощью металлических лестниц.
Лестницы промышленных
зданий служат для связи между этажами многоэтажных зданий, а также для антресольных этажей, обслуживающих площадок и этажерок. В соответствии с назначением лестницы бывают основные, служебные, пожарные и аварийные.
Основные лестницы по своему конструктивному решению аналогичны лестницам гражданских зданий. Лестничные марши и площадки (рис. 25.4) изготовляют в виде цельных железобетонных элементов и реже из отдельных ступеней по косоурам и плоских площадочных плит. Уклон маршей чаще всего принимают 1:2 с размерами ступеней 300 х 150 мм. Марши имеют ширину 1350, 1500 и 1750 мм, а высоту подъема — от 1,2 до 2,1 м. Рядом с лестничными клетками устраивают пассажирские и грузовые лифты. Если лестница предназначена для эвакуации людей из здания, то расстояние от наиболее удаленного рабочего места до ближайшего эвакуационного выхода должно составлять от 30 до 100 м в зависимости от категории производства, степени огнестойкости зданий и их этажности. Двери, ведущие из производственных помещений наружу или в лестничную клетку, должны открываться в сторону выхода.
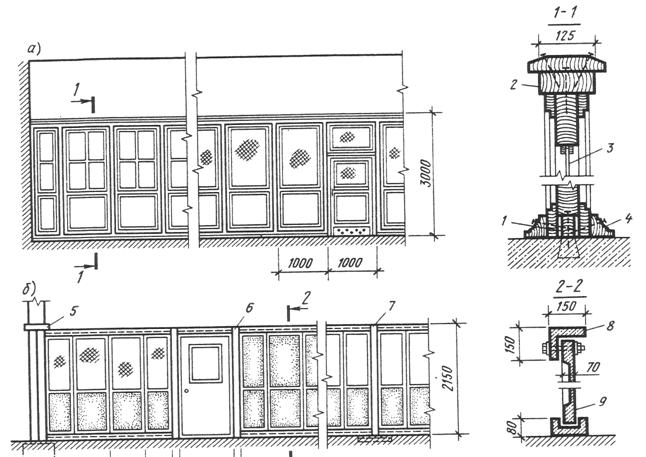
Служебные лестницы устраивают для осмотра и обслуживания оборудования и наиболее ответственных строительных конструкций. Чаще всего их выполняют из металлических профилей (швеллеров и уголков) и крепят к строительным конструкциям, полу и оборудованию. Служебные лестницы для интенсивного пользования ими (рис. 25.5) монтируют из маршей и переходных площадок. Угол наклона к горизонту 45 и 60е, ширина маршей 600мм и шаг проступей 200 и 300 мм. Высоту маршей принимают от 600 до 6000 мм. Марши имеют ограждения с поручнями. Если лестница предназначена для индивидуального пользования, то устанавливают вертикально стремянки шириной 600 мм. Шаг проступей из стержней принимают 300 мм.
Пожарные лестницы устраивают для зданий высотой более 10 м, а также в местах перепадов высот смежных пролетов. Их обычно размещают на глухих участках стен через 200 м по периметру здания. Для зданий высотой до 30 м эти лестницы располагают вертикально, а при большей высоте — наклонно с маршами под утлом не более 80\ шириной0,7 м и промежуточными площадками не реже чем через 8 м по высоте. Лестницы оборудуют поручнями. Крепят лестницы к стенам или каркасу анкерами из уголков или швеллеров через 2,4...3.6 м по высоте.
Рис. 25.5. Конструктивные решения служебных лестниц:
а - маршевая, 6 - верхний узел опирания марша, е-опирание марша на бетонную подготовку, г - стремянка, /-швеллер, 2 - лист, 3 - стальная полоса, 4 - стержень диаметром 18" мм через 300 мм. 5 — пластина 100 х 100 х 6 мм, 6 – уголок
Аварийные лестницы предназначены для эвакуации людей из здания во время пожара или аварии. Их размещают снаружи здания. Лестницы имеют много-маршевую конструкцию и сообщаются с помещениями через площадки или балконы, устраиваемые на уровне эвакуационных выходов. Ширину лестниц принимают не менее 700 мм и уклон маршей — не более 1:1. Ограждения должны иметь высоту не менее 0,8 м. Выполняют их из стали или железобетона, как и пожарные лестницы.
25.3. Противопожарные преграды
Для того чтобы предотвратить распространение огня при пожаре по всему производственному зданию, устраивают противопожарные преграды. К ним относятся противопожарные стены (брандмауэры), зоны и перекрытия.
Противопожарные стены возводят на всю высоту здания из несгораемых материалов с пределом огнестойкости не менее 2,5 ч. Эти стены опирают на самостоятельные фундаменты. Если имеется необходимость устройств проемов в противопожарных стенах, то они должны иметь площадь, не превышающую 25% площади стены. Заполнение проемов осуществляют из несгораемых или трудно сгораемых элементов с пределом огнестойкости не менее 1,2 ч. Проемы оборудуют самозакрывающимися устройствами и водяными завесами.
Материалом для заполнения проемов дверей и ворот служат стальные полотна с прослойкой из воздуха или минерального войлока. Оконное заполнение устраивают из пустотелых стеклянных блоков с армированием швов стержневой арматуры или из армированного стекла, вставляемого в стальные или железобетонные переплеты.
Противопожарные стены должны возвышаться над кровлей на 30...60 см.
Противопожарные зоны устраивают в случаях, когда по технологическим соображениям противопожарные стены возводить нельзя. Противопожарные зоны представляют собой несгораемую полосу (вставку) в стенах и покрытиях, ограниченную выступающими гребнями.
Несгораемые перекрытия устраивают в большинстве случаев над подвалами и цокольными этажами, а также над этажами, в которых повышенная пожарная опасность производства. Люки в таких перекрытиях предусматривают из несгораемых или трудносгораемых материалов с пределом огнестойкости не менее 1,5 ч.
Вопросы для самопроверки
1. Особенности устройства перегородок производственных зданий и их виды.
2 Лестницы промышленных зданий и особенности конструктивных решений.
3.Устройство противопожарных преград
|
Из за большого объема этот материал размещен на нескольких страницах:
1 2 3 4 |



