2. Адигамова гражданских зданий [Электронный ресурс]: учебное пособие/ , — Электрон. текстовые данные.— Оренбург: Оренбургский государственный университет, ЭБС АСВ, 2008.— 107 c.— Режим доступа: http://www. iprbookshop. ru/21645
Лекция 2.
Тема 1. Модульная система в проектировании и строительстве. Укрупненные и дробные модули.
В строительстве принята модульная координация размеров – это взаимное согласование размеров зданий, а также размеров и расположения их элементов, строительных конструкций, изделий и элементов оборудования на основе применения модулей.
ЕМС (единая модульная система) – это совокупность правил координации объема проектных и конструктивных размеров зданий, конструкций и строительных изделий на основе кратности этих размеров установленной единице – модулю.
Модуль - условная линейная единица измерения, применяемая для координации размеров зданий, их элементов, строительных конструкций, изделий и элементов оборудования.
Применяют: основной модуль (равный 100 мм, обозначается буквой М), производный модуль, укрупненный модуль (мультимодуль) – 3М, 6М, 12М и т. д; дробный модуль (субмодуль) – дробный модуль 1/2М, 1/5М, 1/10М и т. д.
Тема 2. Номинальные, конструктивные и натурные размеры.
В ЕМС предусматривается 3 вида размеров:
- номинальный,
- конструктивный,
- натурный.
Номинальный – условный размер, включающий швы и зазоры между конструкциями.
Конструктивный – проектный размер, отличается от номинального на толщину швов и зазоров.
Натурный – фактический размер отличающийся от конструктивного на величины определенные допусками (ТУ).

Тема 3. Основные параметры характеризующие ОПР.
Основными параметрами, характеризующими объемно-планировочное (ОПР) и конструктивное решение здания являются шаг, пролет и высота этажа.
Шаг – это расстояние между осями модульной сетки (координационными осями). Если шаг совпадает с габаритами элемента перекрытия он называется пролетом или шагом поперечного направления.
Высота этажа – это расстояние по вертикали от пола нижележащего этажа до пола вышележащего этажа.
Тема 4. Основные конструкции здания. Несущий остов здания.
Строительная конструкция – часть здания, выполняющая определенные несущие, ограждающие, несущее-ограждающие и (или) эстетические функции. Все строительные конструкции взаимоувязаны в процессе выполнения работ по возведению здания.
Строительными конструкциями здания являются: несущие элементы – фундаменты, стены, вертикальные несущие элементы (колонны) перекрытия, крыши, покрытия, лестницы, ненесущие элементы – перегородки, заполнения оконных и дверных проемов и т. д.
Совокупность основных конструктивных элементов (строительных конструкций) составляет единую пространственную конструктивную систему – несущий остов здания.
Несущий остов – воспринимает все силовые воздействия на здание (вес конструкций, оборудования, мебели, людей, снега, ветра и др) и обеспечивает прочность, жесткость и устойчивость здания.
Тема 5. Основные и комбинированные конструктивные системы зданий
Конструктивная система (конструктивная схема) – взаимосвязанная совокупность вертикальных и горизонтальных несущих, ограждающих и несущеограждающих конструкций, обеспечивающих выделение внутренних пространств, прочность, жесткость и устойчивость здания.
В конструктивной схеме здания можно выделить две основные подсистемы несущих конструкций: горизонтальную и вертикальную.
Горизонтальные конструкции (покрытия, перекрытия), обеспечивают неизменяемость системы в плане и передают приложенные к ним нагрузки на вертикальные конструкции.
Вертикальные конструкции воспринимают все приложенные к системе нагрузки и передают их на фундамент.
Вид вертикальных несущих конструкций служит основным признаком классификации конструктивных систем.
В зависимости от применяемого вида вертикальной несущей конструкции различают пять простых (одинарных) конструктивных систем:
каркасная, бескаркасная (пилонная); объемно-блочная; ствольная; оболочковая.
Контрольные вопросы:
1. Основные несущие и ограждающие конструкции зданий
2. Понятия: унификация, стандартизация, типовое проектирование, ЕМС в строительстве.
3. Перечислить все основные конструктивные системы здания, назвать несколько комбинированных.
Вопросы для самостоятельного изучения.
1. Понятия - унификация, стандартизация, типизация.
Список используемых источников:
1. Пономарев конструирование: учебник для вузов, 2-е издание / - М.: Архитектура-С, 2009. - 736 с.
2. Маклакова -конструктивное проектирование: учебник: допущено УМО – т.1. – М.: Архитектура – С. 2010. – 326 с.
Лекция 3 - 4
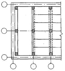
Тема 1. Стеновая (бескаркасная) конструктивная схема.
Стеновая КС (безкаркасная, диафрагмовая), несущими являются плоские вертикальные элементы – стены, диафрагмы.

Конструктивные схемы бескаркасных зданий:
А) с продольными несущими стенами;
Б) с поперечными несущими стенами;
В) со стенами несущими в обоих направлениях – перекрестно-стеновая несущая схема.
Стеновая конструктивная система существует с малым (3,0 – 3,6 м), с широким (до 9,0 м) или чередующимся шагом несущих поперечных стен отличается большей жесткостью, но ограничивает свободу планировочных решений.
Конструктивная схема в основном предназначена для строительства гостиниц и социального (муниципального) жилья. В сборном железобетонном и кирпичном варианте стен ограничивается также этажность застройки – предельная до 16-ти этажей.
Толщина внутренних несущих стен принимается 120, 140, 160, 180, 200 мм в зависимости от этажности.
Наибольшее расстояние между температурно-усадочными швами для зданий стеновой конструктивной схемы - 40 м.
ЗДАНИЯ С НЕСУЩИМИ СТЕНАМИ
ПРОДОЛЬНЫМИ ПОПЕРЕЧНЫМИ

Тема 2. Каркасная конструктивная схема.
- Каркасная КС, основными несущими элементами в ней являются стержневые вертикальные конструкции – колонны.

КАРКАСНЫЕ ЗДАНИЯ
С ПРОДОЛЬНЫМ РАСПОЛОЖЕНИЕМ РИГЕЛЕЙ
| С ПОПЕРЕЧНЫМ РАСПОЛОЖЕНИЕМ РИГЕЛЕЙ
|
Тема 3. Пилонная конструктивная система.
Конструктивная система с плоскими пилонами, представляет собой промежуточный между стеновой и каркасной схемой вариант конструктивного решения, в которой колонны заменены плоскими участками стен, развитыми в длину
Так же как и каркасная система, решения зданий с пилонными стенами обладает достаточной свободой в решениях планировочного пространства и могут быть решены как с устройством ригелей так и без них.
Конструктивное решение возводится в монолитном варианте, и применяется как для нижних нежилых, так и для верхних жилых этажей здания.
Минимальное значение средних (как наиболее нагруженных) колонн и пилонов для 20-ти этажного здания составляет:
- 600x600мм – для колонн 1-го этажа;
- 1800x300 мм – для пилонов 1-го этажа;
- 300x300 мм – для колонн верхних пяти этажей:
- 600x200 мм – для пилонов верхних 3-х этажей.

Тема 4. Ствольная система
Ствольная КС, в качестве основной несущей конструкции, воспринимающей нагрузки и воздействия применен вертикальный объемно-пространственный стержень – ствол жесткости (закрытого или открытого сечения) на всю высоту здания.
Ствол жесткости, располагающийся в геометрическом центре плана, называется «ядром жесткости».
Ствольная система наиболее распространена в высотном строительстве (25 – 70 этажей), удачно сочетаясь с планировочной схемой здания.

Распространены также – несколько стволов по длине здания, два ствола в сооружениях с планом в виде прямоугольника, три – треугольника, четыре – квадрата. см. рис.
Основная ствольная система получила внедрение в двух модификациях – с передачей всех нагрузок на ствол через подвески и оголовок (ствольно – подвесная система), или через мощную консоль в основании ствола (ствольно-консольная система). см. рисунок.
Тема 5. Объемно блочные здания
Объемно-блочная КС, несущими являются объемно-пространственные на всю высоту этажа блоки размером на комнату или две комнаты.

Тема 6. Оболочковые системы
Оболочковая КС составлена несущими вертикальными объемно-пространственными конструкциями, отнесенные к внешнему контуру здания.

Имея максимальную пространственную жесткость Оболочковая конструктивная система наиболее часто применяется при проектировании самых высоких зданий – 200 м и выше (в отдельных случаях 120 … 150 м).
Тема 7. Комбинированные конструктивные решения.
Наряду с основными широко применяют и комбинированные (смешанные) конструктивные системы (см. рис.). В таких системах могут сочетаться два или несколько типов вертикальных несущих элементов.
Применение комбинированных конструктивных систем позволяет упростить построечные работы, более рационально увязать конструктивную систему с планировочной.
|
Из за большого объема этот материал размещен на нескольких страницах:
1 2 3 4 5 6 7 8 9 10 |





