2-2
если ![]()
.
3-3
если ![]()
.
.
0,05 % [1].
3.2.4. КОНСТРУИРОВАНИЕ ПЛИТЫ.
Непрерывное армирование (рис. 9). Армируем плиту одной сеткой, которая подбирается по усилиям в средних пролетах, а в крайних пролетах устанавливаем дополнительную сетку. По сортаменту подбираем сетку С-1 с площадью
. Дополнительная сетка С-2 подбирается по сортаменту площадью
.
|
Рис. 9. Непрерывное армирование плиты
С-1 и С-2 - для крайнего пролета здания;
С-3 и С-4 - для среднего;
С-3 с площадью арматуры
;
С-4 - дополнительная сетка с площадью арматуры
.

Раздельное армирование (рис. 10). Плита армируется отдельными сварными сетками.
Рис. 10. Раздельное армирование плиты
Раскладка сеток.
![]() |
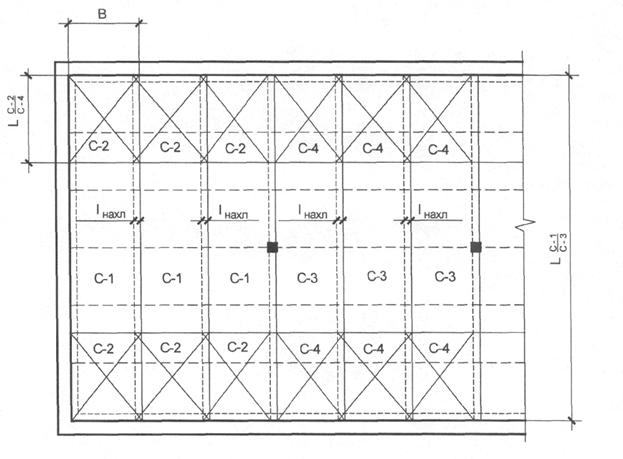
Рис. 11. Раскладка сеток при непрерывном армировании
С-1, С-2, С-3, С-5 - сетки для крайнего пролета здания; С-1, С-2, С-4, С-6 - сетки для среднего пролета здания.
При непрерывном армировании (рис. 11) необходимо рассчитать количество сеток, укладываемых в пролете. Сетки рулонные принимаются в соответствии с ГОСТ 8478-81 шириной В-900, 1100, 1300, 1400, 1500, 1700, 2300, 2500, 2700, 2900, 3500 мм.
Количество сеток, укладываемых в пролетах здания, можно определить следующим образом:
для крайних пролетов
,
;
для средних пролетов
,
,
;
где
принимается по [1] в зависимости от диаметра поперечной арматуры. Если d£4 мм,
³ 50 мм; если d³4 мм, то
³ 100 мм.
![]() |
При раздельном армировании (рис. 12) длина и ширина нижних сеток зависит от размеров ячеек в свету. Верхние сетки располагаются над второстепенными балками и заводятся на 1/4
Рис. 12. Расположение сеток при раздельном армировании
3.3. РАСЧЕТ И КОНСТРУИРОВАНИЕ ВТОРОСТЕПЕННОЙ БАЛКИ.
3.3.1. РАСЧЕТНАЯ СХЕМА ВТОРОСТЕПЕННОЙ БАЛКИ
И РАСЧЕТНЫЕ СЕЧЕНИЯ.
В расчетном отношении второстепенная балка представляет собой многопролетную неразрезную равнопролетную или с отличающимися пролетами менее 20 % балку, загруженную равномерно распределенной нагрузкой.
Расчетные длины определяются так же, как и в плите, и принимаются для крайних пролетов равными расстоянию от центра площадки опирания до грани главной балки; для средних пролетов - равными расстоянию между внутренними гранями главных балок.
Второстепенная балка рассчитывается на основные сочетания нагрузок. Сбор нагрузок на второстепенную балку ведется в табличной форме (табл. 4). Ширина грузовой площади А = Ssb.
Таблица 4
Вид нагрузки | Подсчет | Нормативная нагрузка, кН/м | Коэффициент надежности по нагрузке gf | Расчетная нагрузка, кН/м |
Постоянная нагрузка | ||||
Вес пола | gп ·Ssb |
| 1,3 |
|
Вес плиты | hs· Ssb ·25 кН/м3 |
| 1,1 |
|
Собственный вес ребра | (hsb-hs) ·bsb ·25 кН/м3= gsb |
| 1,1 | gsb =1,1 |
Итого | ||||
Временная нагрузка | ||||
Полезная нагрузка (по заданию) | v · Sb |
| gf | v=gf |
Если v < 2кПа | то gf =1,3 | |||
Если v ³2 кПа | то gf =1,2 | |||
Итого |
| v= gf · | ||
Полная нагрузка |
| q = g+v |
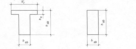
Расчетные сечения второстепенной балки принимаются: в пролете – таврового сечения, на опоре – прямоугольного (рис. 13).
В пролете На опоре
см. п. 3.16 [1]
![]() |
Рис. 13. Расчетные сечения второстепенных балок
Так как на опоре действует отрицательный момент и плита оказывается в растянутой зоне, расчет ведут как для прямоугольного сечения (см. приложение 4). Расчет таврового сечения см. в приложении 5.
3.3.2. СТАТИЧЕСКИЙ РАСЧЕТ ВТОРОСТЕПЕННОЙ БАЛКИ.
Огибающую эпюру моментов второстепенной балки строят для двух схем загружения:
1) полная нагрузка q = g + v в нечетных пролетах и условная постоянная нагрузка q¢= g+0,25v в четных ;
2) полная нагрузка q=g+v в четных пролетах, а условная постоянная нагрузка g¢=g+0,25v в нечетных.
Главная балка создает дополнительные закрепления, препятствующие повороту опор второстепенной балки, и этим уменьшает влияние полезной нагрузки загруженных пролетов на незагруженные. Условную нагрузку g¢ вводят в расчет для того, чтобы определить действительные отрицательные моменты в пролете второстепенной балки. Усилия во второстепенной балке определяют с учетом пластических свойств материалов.
![]() |
Огибающая эпюра моментов (см. рис. 15) строится в зависимости от сотношения v/g по рис.14 и табл. 5.
Рис. 14. Эпюры расчетных моментов для равнопролетных неразрезных второстепенных балок
Таблица 5
a/g | 5 | б | 7 | 8 | 9 | 10 | 11 | 12 | 13 | 14 | 15 |
0,5 | —0,0715 | —0.01 | +0,022 | +0,024 | —0,004 | —0,0625 | —0,003 | +0,028 | +0,028 | —0,003 | —0,0625 |
1 | —0,0715 | -0,02 | +0,016 | +0,009 | —0,014 | —0,0625 | —0,013 | +0,013 | +.0,013 | —0.013 | —0,0625 |
1,5 | —0,0715 | —0,026 | —0,003 | ±0 | —0.02 | —0,0625 | —0,019 | —0,004 | +0,004 | —0,019 | —0,0625 |
2 | —0,0715 | -.0,03 | —0,009 | -0,006 | —0,024 | —0,0625 | —0,023 | —0,003 | —0,003 | —0,023 | -0,0625 |
2,5 | —0,0715 | —0,033 | —0,012 | —0,009 | —0,027 | —0,0625 | -0.025 | -0,006 | -0,006 | -0.025 | -0,0625 |
3 | —0,0715 | —0,035 | —0,016 | —0,014 | —0,029 | —0,0625 | —0,028 | —0,01 | —0,01 | —0,028 | —0,0625 |
3,5 | —0,0715 | —0,037 | —0,019 | —0,017 | —0,031 | —0,0625 | —0,029 | —0,013 | -0,013 | —0,029 | —0,0625 |
4 | —0,0715 | —0,038 | -0.021 | -0,018 | -0,032 | —0,0625 | -0,03 | —0,015 | -0,015 | —0,03 | —0,0625 |
4,5 | —0,0715 | —0,039 | —0,022 | —0,02 | —0,033 | —0,0625 | —0,032 | —0,016 | —0,016 | —0,032 | —0,0625 |
5 | —0,0715 | —0,04 | —0,024 | -0,021 | —0,034 | —0,0625 | —0,033 | —0.018 | —0,018 | -0,033 | —0,0625 |
Ординаты эпюры строятся через 0,2
по формуле
|
Из за большого объема этот материал размещен на нескольких страницах:
1 2 3 4 5 |








