Здание представляет собой однопролетное сборное сооружение из металлических конструкций. Ширина – 18 м, длина – 28,5 м, высота в коньке – 4,9 м, высота стены – 3 м, уклон крыши - 12 гр, шаг между рамами – 6 м.

Рисунок 1. Схематический вид каркаса
Металлокаркас – изготовлен из Стали марки 245. Кровля двускатная, симметричная.
Фундаменты под рамы и колонны столбчатые монолитные с обратной засыпкой грунтом.
Цоколь бетонный монолитный hобщ.=0.7м, толщина=0.2м, верх на отм +0,4м.
Модульная бойня «12М»
Модульная бойня на базе одного контейнера поставляется в комплекте со всеми внутренними инженерными системами: электричество, вентиляции, водоснабжение и канализации. Необходим только внешний источник воды и электроэнергии.
Контейнер с внутренней стороны облицован сендвич-панелями серого цвета толщиной 80-100мм, которые обеспечивают утепление и легко моются при проведении дезинфекции. Пол выполнен с уклоном и предусматривает желоб для стока воды после мойки. Двери и окна изготовлены из алюминия и пластика с энергосберегающими стеклопакетами. В обязательном порядке присутствует разделение на «грязную» (убой) и «чистую» зоны.
Таблица 1. Характеристики модульной бойни «12М»
Показатель | Значение |
Габариты, мм | 12000Ч2400Ч2400 |
Масса (включая производственный комплекс), кг | 6000 |
Срок изготовления 2-3 месяца.
Приложение 6-2. Описание и характеристики оборудования
Производственный комплекс по содержанию и выращиванию бройлеров1.1 Вентиляция
Вентиляция в помещении осуществляется по принципу создания «разряжения» внутри птичника, при котором воздух поступает в здание через управляемые клапаны (форточки вентиляционные) без искусственного нагнетания за счет большего давления снаружи птичника, чем внутри.
В зимний период приток воздуха осуществляется через управляемые клапаны (форточки вентиляционные 582х482мм), равномерно расположенные в боковых стенах птичника, а вытяжка отработанного воздуха – через крышные шахты (группа №1), совместного производства PALRUS-Reserv, расположенные вдоль оси птичника, управляемые частотным преобразователем в зависимости от температуры в птичнике.
Привод управления приточными клапанами работает пропорционально работе вытяжных шахт.
В летний период, вентиляция птичника может осуществляется по принципу «туннеля», через управляемые жалюзи в одном конце птичника и вентиляторы в другом торце птичника, при необходимости реализуется комбинированный режим.
1.2 Управление
Система «Climat-2000» осуществляет контроль микроклимата четырьмя комбинированными датчиками температуры и влажности, одним датчиком уличной температуры. Управляет параметрами воздухообмена (приточно-вытяжная вентиляция), нагрева (имеется выход для управления вентиляторами калориферов), увлажнения, циркуляции и освещения.
Параметры поддержания всех режимов конфигурируются потребителем в зависимости от требований содержания конкретного кросса птицы.
Графики температуры, минимального воздухообмена, влажности и освещения вносятся в память контроллера на весь период высадки птицы и автоматически поддерживаются согласно заданной программе.
Предусмотрено ручное управление всеми исполнительными механизмами.
1.3 Отопление
Обогрев птичника осуществляется работающими на природном газе воздухонагревателями GN-75 (Munters), в количестве 2 шт.
1.4 Светодиодное освещение
Освещение птичника осуществляется светодиодными лампами мощностью 15 Вт, управляемыми при помощи блока управления освещением «LCB-05-LED». Цвет освещения теплый белый. Длина светильника 1,0 м. Блок управления освещением «LCB-05-LED» обеспечивает поддержание в автоматическом режиме предварительно заданных уровней освещения.
Значительно снижается расход электроэнергии на освещение. Установленные уровни освещенности сохраняются в энергонезависимой памяти блока.
1.5 Системы кормления и поения
1.5.1 Силосы – хранение кормов
1 силос объемом 4,4 м3.
1.5.2 Кормозаборник и шнековая подача
1 поперечная линия подачи с контролем, трехфазным (220/380 В - 50 Гц) моторедуктором мощностью 1,1 кВт.
1.5.3 Линии кормораздачи
1 линия кормораздачи тип «PALVITAL» 45 мм трубы, электродвигатель M08 с автоматическим контролем посредством емкостного электронного детектора.
1 система подъема линий с лебёдкой типа «Центральная упрощённая» с комплектом фиксации (шкив-блок, тросы, крепления) каждые 3 м.
Всего 97 кормушек, фронт кормления – 118 голов на кормушку.
Ниппельные линии и подготовка водыДля обеспечения бесперебойного снабжения птицы питьевой водой, а также для обеспечения подачи вакцин и медикаментов, вводимых через питьевую воду, применяется автоматизированная система подачи воды
С целью обеспечения возможности подъёма линий поения и с целью коррекции высоты подвеса в зависимости от возраста птицы, а также на период санитарного обслуживания птичника предусмотрена система подъема линий с ручной лебёдкой и комплектом фиксации (шкив-блок, тросы, крепления) каждые 3 м.
Общая мощность электрооборудования - 6,25 кВт, потребление газа – 14 м3.
Линия оборудования «12М»
Таблица 1. Описание составных частей линии оборудования «12М»
Наименование | Описание |
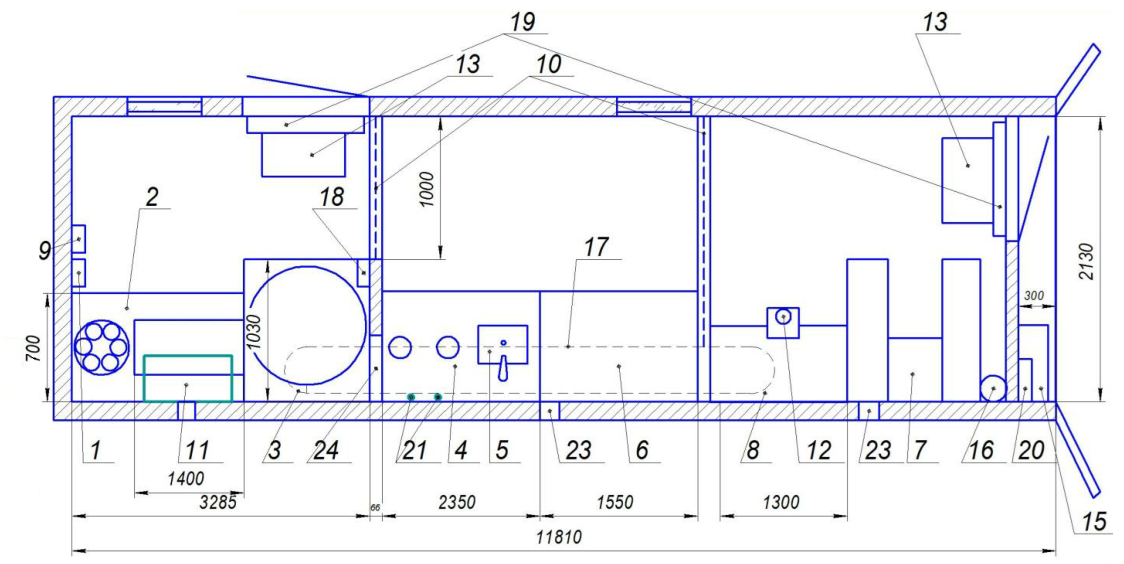
Схема расположения линии представлена на Рисунке 1.

Рисунок 1. Схема расположения линии (1-устройство оглушения птицы; 2-единый блок убоя на 6 конусов; 3-машиная для удаления оперения; 4-стол для нутровки; 5-умывальник с сенсорным включением; 6-ванна для охлаждения; 7-стол для установки дисковой пилы; 8-стол технологический; 9-шкаф управления шпарчаном; 10-ПВХ завеса; 11-вытяжка; 12-устройство для ручной разделки тушки; 13-дезковрик; 14-распределительный шкаф электропитания; 15-компрессорная станция; 16-бойлер; 17-подвесной путь; 18-шкаф управления центрифугой; 19-воздушная завеса; 20-шкаф управления электросетью модуля; 21-точки водозабора; 23-вытяжной вентилятор с обратным клапаном; 24-уголок стыковочный)
Таблица 2. Технические характеристики линии убоя
Показатель | Значение |
Потребляемая мощность, кВт | 37 |
Расход воды, м3 | 1 |
Обслуживающий персонал на смену, чел. | 2-5 |
Камера холодильная (среднетемпературная) ИПКС-033СТ-6

Рисунок 2. Внешний вид холодильной камеры
Предназначена для хранения при средних (-5…+10 °С) температурах предварительно охлажденного пищевого сырья или готовых продуктов. Собрана из пенополиуретановых панелей с теплоизолирующим слоем толщиной 80 мм; облицовка панелей с обеих сторон имеет стойкое полимерное покрытие. Оснащена моноблочным холодильным агрегатом марки Polair МM, обеспечивающим среднетемпературный режим хранения. Отличительными особенностями камеры являются удобная сборно-разборная конструкция, усиленный пол с допустимой статической нагрузкой до 1500 кг/кв. м и накладная дверь со специальным замком и силиконовым уплотнителем по периметру.
Таблица 2.Технические характеристики холодильной камеры
Показатель | Значение показателя |
Внутренний охлаждаемый объем, не менее, куб. м | 6 |
Диапазон рабочих температур, °С | -5…+10 |
Температура окружающего воздуха, не более, °С | 32 |
Допустимая статическая нагрузка на пол камеры, не более, кг/кв. м | 1500 |
Плотность загрузки товара, кг/куб. м | 300 |
Установленная мощность холодильного агрегата, кВт | 0,5 |
Габаритные размеры (без холодильного агрегата), не более, мм | 1960x1960x2200 |
Масса (без холодильного агрегата), не более, кг | 390 |
Приложение 7-1. Допущения и нормативы для расчётов
Таблица 1. Допущения и нормативы финансово-экономических расчётов
Показатель | Значение |
Планируемое поголовье бройлеры | |
Расходы на ветеринарные средства | |
Убойный выход | |
Средний вес бройлера к концу выращивания | |
Расход дезинфицирующих средств в месяц | |
Расход моющих средств в месяц | |
Амортизация помещений | |
Амортизация оборудования для содержания птицы | |
Амортизация оборудования по убою птицы | |
Ставка дисконтирования | |
Мощность оборудования в помещениях для содержания птицы | |
Мощность оборудования по убою | |
Мощность холодильного оборудования | |
Стоимость электроэнергии | |
Расход газа на обогрев помещений для содержания птицы | |
Стоимость газа | |
Срок существования проекта |
А) Амортизация
|
Из за большого объема этот материал размещен на нескольких страницах:
1 2 3 4 5 6 7 8 |



