2.7 Порядок разборки чистых полов и лаг:
2.7.1 Разборка чистого пола из шпунтованных досок и брусков.
Полы из шпунтованных досок и брусков разбираются в последовательности, как показано на рисунке 3:
- снимают с помощью ломиков плинтуса, галтели и половые вентиляционные решетки;
- удаляют одну из фризовых досок пола;
- разбирают рядовые доски пола, последовательно поднимая ломиками одну за другой;
- разбирают лаги из досок или пластин.

1, 2, 3 - очередность выполнения операций
Рисунок 3 - Схема разборки чистых полов из шпунтованных досок и брусков
В целях обеспечения сохранности досок пола (не повреждая шпунта или гребня и паза) для последующего использования их по своему прямому назначению эта работа выполняется в следующей последовательности: с помощью ломика доска незначительно отрывается от лаги и ударами молотка осаждается вниз. После выдергивания гвоздей освобожденная доска удаляется из помещения к месту складирования в колодце и укладывается в пакеты с последующим перемещением башенным краном за пределы ремонтируемого здания на приобъектный склад (площадку складирования) или в транспорт.
Рабочие трапы укладываются непосредственно на три смежные лаги и по мере разборки досок пола перемещаются по лагам к очередной разбираемой доске с помощью металлической скобы из арматурной стали A-I
12...14 мм длиной 1,0 м.
При разборке чистых полов из шпунтованных досок необходимо обеспечить устройство ходовых настилов из двух-трех досок через 1,5...2,0 м для прохода рабочих в безопасную зону при транспортировке груза. Ходовые доски сохраняют до полного удаления засыпки (смазки), подбора подшивки (накатов) и балок. С учетом фактического технического состояния разбираемых полов и лаг производителем работ может быть принято решение оставить 3...4 доски для этих настилов общей шириной до 0,5 м, а при несоответствии расположения досок - для создания соответствующей ширины ходового настила.
2.7.2 Разборка паркетного пола
Разборку реечного паркета начинают с плинтусов и фризов. Штучные паркетные клепки отрывают от основания в отдельности одна от другой с помощью ломиков. Щитовой паркет снимают целыми щитами с предварительным перепилом их по квадратам заклейки: каждый щит поднимают ломиками, отрывая целый щит от обрешетки и смежных щитов, как показано на рисунке 4. После снятия щиты складируются в штабеля, после чего разбирают обрешетку.

1 - подбор; 2 - балка перекрытия с черепными брусками; 3 - обрешетка из досок по балкам; 4 - засыпка; 5 - перепил по квадратам заклейки; 6 - паркетные щиты
Рисунок 4 - Разборка щитового паркетного пола
2.8 Подсобные рабочие совместно со стропальщиком разобранные паркетные щиты складывают в штабель для последующей транспортировки с помощью башенного крана на площадку складирования или в транспорт.
Накопление материалов от разобранных полов в пакетах выполняется на деревянных подкладках на площадках, отстоящих от несущих капитальных стен на расстоянии не более 1,5 м. Объем пакета определяется в ППР в зависимости от состояния балок перекрытия и грузоподъемности монтажного механизма.
Транспортировка пакета с пиломатериалами выполняется следующим образом: стропальщик зацепляет стропами пакет и условным сигналом дает команду машинисту башенного крана (при отсутствии прямой видимости между машинистом и стропальщиком с помощью радиосвязи) на подъем груза на высоту 20...30 см. Осмотрев пакет и убедившись в правильности и надежности строповки груза, стропальщик подает сигнал рабочим покинуть опасную зону, а машинисту башенного крана - на дальнейший подъем и транспортировку пакета на объектовую складскую площадку или в автотранспорт. Сам стропальщик также покидает опасную зону до начала подъема груза. Дальнейшее наблюдение за транспортируемым грузом ведет машинист башенного крана и стропальщик, находящийся у объектовой складской площадки.
2.9 Перед удалением засыпки (смазки) ее разрыхляют с помощью пневматического отбойного молотка или ломика, при сухой ветреной погоде по необходимости смачивают. Разрыхленную засыпку (смазку) удаляют совковыми лопатами в ящики, установленные на деревянных щитах, или контейнеры, которые устанавливают на подкладки из досок не далее 1,5-2 м от опор балок. Загруженные ящики или контейнеры транспортируются башенным краном в приемный объектовый бункер-мусоросборник (отвал) или непосредственно в автотранспорт. Щит под ящик-мусоросборник укладывается на две смежные балки перекрытия на расстоянии не более 1,5 м от их заделки в кирпичную стену и переставляется на смежные участки перекрытия по мере удаления засыпки с предыдущих участков. Работы выполняются с ходовых настилов, выполненных в период разборки полов. В целях максимального использования башенного крана по транспортировке засыпки с перекрытия на объектовый склад необходимо устанавливать несколько бункеров под загрузку засыпкой (определяется ППР, исходя из фактических объемов работ), как показано на рисунке 5. Для удаления строительногомусора допускается использование и мусоропроводов.

Рисунок 5 - Схема удаления звукотеплоизоляции (засыпки) перекрытия
2.10 Подбор снимают при помощи специального ломика с ходовых настилов и укладывают в пакеты на прокладки, уложенные на балки перекрытия. При наличии балок с пазами доски подбора разбирают, поворачивая в горизонтальной плоскости перекрытия до полного выхода его концов из пазов балок. Снятые подборы укладывают в штабель и удаляют с помощью башенного крана. Схема разборки подбора приведена на рисунке 6.
а) по балкам с черепными брусками | б) по балкам с пазами |
|
1, 2 - очередность и направление для разбираемой пластины подбора
Рисунок 6 - Схема разборки деревянного подбора
2.11 Разборка дощатой подшивки потолка выполняется следующим образом: с площадок монтажника (проект N 1999 "Мосоргстрой") по периметру помещений на нижележащем этаже в примыканиях стен к потолку штукатурным молотком отбивается штукатурка полосами шириной не менее 200 мм. Мусор убирается от стен и окучивается с таким расчетом, чтобы не мешал установке площадок монтажника.
С ходовых трапов, ранее уложенных на балки перекрытия, одновременными ударами ломами по подшивке у балок производят отрыв обрезанных участков подшивки от этих балок перекрытия на нижележащее перекрытие. При разобранным таким способом участке подшивки шириной не менее 1,0 м дальнейшую разборку подшивки выполнять ломиками-гвоздодерами на отдельные доски непосредственно на нижележащем перекрытии.
Во избежание возможного травмирования торчащими гвоздями в досках последние выдергиваются или загибаются, а доски равномерно распределяются на нижележащем перекрытии с последующим пакетированием и удалением из захватки башенным краном на объектовый склад или в автотранспорт через участки, освобожденные от балок перекрытия.
Выход рабочих в безопасную зону при перемещении башенным краном пакета с подшивкой и возвращение обратно на рабочее место выполняется по сигналу стропальщика по ходовым настилам.
2.12 Удаление деревянных балок выполняется по одному из нижеприведенных вариантов:
- распиливание балок у опор (стен) согласно рисункам 7 и 8, при удовлетворительном состоянии балок, с предварительной строповкой и последующим удалением за пределы ремонтируемого здания;

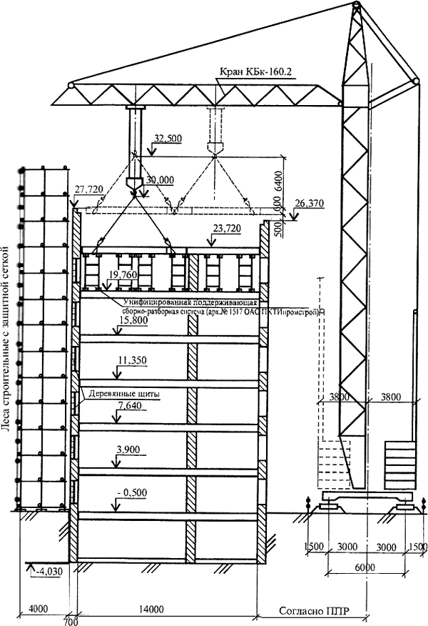
Рисунок 7 - Схема привязки крана на период разборки перекрытий


Рисунок 8 - Схема разборки междуэтажного перекрытия по деревянным балкам
- дополнительное распиливание балок посередине пролета в случае значительного повреждения балок гнилью или жучком.
Разборка балок выполняется в следующей последовательности:
- балка подпирается в трех местах со стороны опор (у стен) и в середине ее пролета инвентарной переставной сборно-разборной поддерживающей системой или телескопическими стойками;
- с помощью пневматического молотка освобождаются концы балок, заделанные в кирпичные стены;
- ломами отгибаются металлические анкеры на концах балки в сторону;
- выполняются поперечные перепилы балки;
- застроповываются балки двухветвевым стропом и соответствующими кольцевыми в двух точках на расстоянии
L от мест поперечного перепила балки и удаляются за пределы здания;
- удаляют оставшиеся концы.
В случае отсутствия внутренних стен для обеспечения пространственной жесткости и устойчивости здания при разборке перекрытий необходимо сохранить не потерявшую прочность каждую четвертую балку, заделанную и заанкерную в стенах, до установки металлических связей.
Все операции по разборке балок производят с временного настила из двух-трех досок, которые опирают на соседние балки. Последние две-три балки на захватке разбирают с временных подмостей, устанавливаемых (после удаления подшивки потолка) на нижележащем перекрытии.
|
Из за большого объема этот материал размещен на нескольких страницах:
1 2 3 4 5 |




