Утечку на стояках и других трубопроводах, расположенных выше водомерного узла, выявляют путем присоединения к патрубку контрольно-спускного крана резинового шланга со стеклянной трубкой, которую поднимают выше уровня испытуемого трубопровода. При закрытой водоразборной арматуре и задвижке на вводе наблюдают за уровнем воды в трубке. Понижение уровня свидетельствует об утечке.
При пневматическом способе в трубопровод подается сжатый воздух от баллона или компрессора. Место утечки обнаруживается по выходу пузырьков воды с воздухом.
Большие непроизводительные расходы воды требуют снижения избыточного давления и обеспечения расчетной температуры (50 °С) у всех потребителей. Избыточное давление в системе уменьшают установкой регуляторов давления на вводе или поэтажных стабилизаторов. Эффективна установка диафрагм на подводах к водоразборной арматуре.
2.4.3. Мероприятия по борьбе с шумом
Шум отрицательно действует на здоровье и является причиной таких заболеваний, как гипертония, нервные расстройства, переутомления и некоторые другие, поэтому санитарные нормы ограничивают уровень шума в различных помещениях, жилых и общественных зданиях до 25–40 дБа (децибел).
Увеличение машин и механизмов, используемых в производстве и быту, как правило, приводит к увеличению уровня шума. Одним из источников шума в здании является инженерное оборудование, и в частности система водоснабжения.
При движении воды по трубам в арматуре возникают вихреобразования, турбулентность, кавитация, сопровождающиеся шумоизлучением на средних и высоких частотах. Вращающиеся части насосных агрегатов, колебания подвижных элементов (клапанов, прокладок и т. д.), возникающие при обтекании их потоком, создают сильный широкополосный шум с преобладанием колебаний на низкой частоте.
Наиболее опасным является постоянный шум насосных агрегатов, который даже при малых уровнях неблагоприятно действует на человека. Дебаланс вращающихся деталей, шум в подшипниках, кавитация создают уровень шума 60–90 дБа.
Шум водоразборной арматуры непродолжителен (только во время пользования) и при исправной арматуре составляет 30–50 дБа. Он резко увеличивается до 70–80 дБа при плохом креплении клапана, износе прокладки, которые начинают вибрировать. Уровень шума также возрастает на 5–10 дБа при больших давлениях перед арматурой. Регулирующая арматура излучает шум в основном при малом открытии, когда в дросселирующем сечении возникает кавитация.
Шумы, образующиеся при движении воды по трубам, появляются при скоростях 3–4 м/с, т. е. значительно больших, чем принимаемые в системах водоснабжения. Шум от насосов, арматуры по трубам, фундаментам, креплениям передается строительным конструкциям и распространяется по всему зданию.
Для уменьшения шума систем водоснабжения можно использовать активные и пассивные методы.
Активные методы ликвидируют возможность образования шума в самом источнике путем применения малошумного оборудования, обеспечения работы системы и оборудования в режимах с минимальным шумообразованием; устранения причин шумообразования в оборудовании (закрепление клапанов, подкладок в арматуре, балансировка насосов, двигателей и т. д.).
Пассивные методы ограничивают распространение шума путем звукоизоляции и виброизоляции трубопроводов, насосных агрегатов арматуры, устранения путей передачи звука и вибраций от оборудования к строительным конструкциям (звуковиброизоляция фундаментов насосных агрегатов, трубопроводов); улучшения звукоизоляции ограждающих конструкций; размещения оборудования с минимальным уровнем шума в жилых помещениях (отдельно стоящие насосные установки).
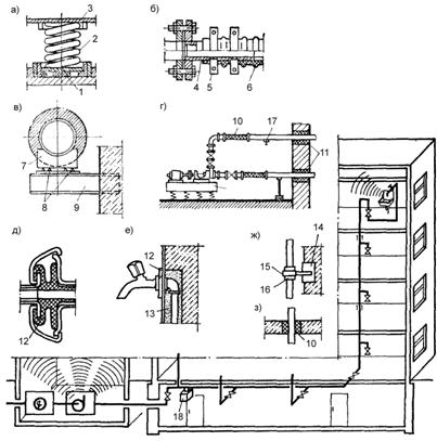
Максимальное уменьшение шума может быть достигнуто комплексным использованием активных и пассивных методов. Устройства для борьбы с шумом показаны на рис. 18. Насосные агрегаты (рис. 18, г) устанавливают на массивные фундаменты, которые опираются на пол через пружинные амортизаторы. Для эффективной изоляции амортизаторы (рис. 18, а) состоят из пружин, которые через шайбу опираются на перфорированные резиновые прокладки. Применение песчаной прокладки между фундаментом насоса и строительными конструкциями также способствует снижению уровня шума. Для уменьшения вибраций, передаваемых от насосного агрегата к трубам, используют гибкие вставки (рис. 18, б) из армированного резинового шланга длиной 1 м, закрепляемого на патрубках хомутами.
Колебания трубопровода на резонансной частоте (или близкой к ней), вызывающие сильный шум, могут быть снижены применением массивного груза 18, жестко закрепленного на трубе, который изменяет резонансную частоту трубопровода.
Крепление труб к строительным конструкциям необходимо осуществлять через изолированные прокладки из дерева (рис 18, в), резины; при пересечении стены (рис. 18, г), перекрытия (рис.,18,з) зазор следует заполнять прокладками из войлока, минеральной ваты и т. д. Крепление трубопровода к стене (рис. 18, ж) желательно производить через звукоизолирующие вставки. Между трубой и креплением устанавливают прокладку из листовой резины.
|
|
Рис.18. Устройства по борьбе с шумом.
1 – перфорированная резиновая прокладка; 2 – пружина; 3 – фундамент насоса;
4 – патрубок; 5 – хомут; 6 – резиновый армированный шланг; 7 – деревянный башмак; 8 – резиновые призматические прокладки; 9 – кронштейн; 10 – гибкая вставка; 11 – прокладка из войлока, минеральной ваты, 12 – резиновая шайба;
13 – звукопоглощающий материал; 14 – звукопоглощающая вставка;
15 – крепление; 16 – прокладка; 17, 18 – груз.
Водоразборную арматуру изолируют от стены (рис 18, е) резиновой шайбой, и пространство между трубой и стеной заполняют звукоизолирующим материалом (пенопластом, опилками, торфом и т. д.).
Эффективно снижает шум (на 8–10 дБа) монтажная вставка (рис. 18, д), размещаемая между арматурой и водопроводной сетью. Резиновая манжета не позволяет распространяться шуму, возникающему при работе арматуры.
Вопросы для самопроверки
1. От чего зависит срок службы инженерных систем?
2. В связи с чем осуществляется реконструкция инженерных систем здания?
3. Кто входит в группу специалистов, осуществляющих предпроектное обследование?
4. Кем разрабатывается техническая документация по реконструкции инженерных систем?
5. Какие проектные решения не допускаются при реконструкции систем водоснабжения жилых зданий?
6. Где прокладывают микрорайонные сети для уменьшения затрат на ремонт и обслуживание?
7. Как называется регулирующая емкость, входящая в состав схем водоснабжения зданий?
8. Какие задачи являются основными при эксплуатации систем канализации зданий?
Приложение
Словарь терминов
Надежность– свойство объекта выполнять заданные функции в заданном объеме при определенных условиях функционирования.
Примечание.
1. Применительно к городским водопроводным сетям в числе заданных функций рассматривается бесперебойное снабжение потребителей водой требуемого количества и качества под требуемым напором, а так же недопущение ситуаций, опасных для людей и окружающей среды.
2. Надежность является комплексным свойством, которое в зависимости от назначения объекта и условии эксплуатации может включать ряд свойств, основными из которых являются: безотказность, долговечность, ремонтопригодность, сохраняемость, устойчивоспособность, живучесть и безопасность.
3. В качестве объекта в данной книге рассматривается участок трубопровода городской водопроводной или водоотводящей (канализационной) сети.
Безотказность – свойство объекта непрерывно сохранять работоспособность в течение некоторого времени или некоторой наработки.
Долговечность – свойство объекта сохранять работоспособность до наступления предельного состояния при установленной системе технического обслуживания и ремонтов.
Ремонтопригодность – свойство объекта, заключающееся в приспособленности к предупреждению и обнаружению причин возникновения его отказов, повреждений и устранению их последствий путем проведения ремонтов и технического обслуживания.
Сохраняемость – свойство объекта непрерывно сохранять исправное и работоспособное состояние в течение и после хранения, а также транспортирования.
Исправное состояние, исправность – состояние объекта, при котором он соответствует всем требованиям, установленным нормативно-технической документацией.
Неисправное состояние – состояние объекта, при котором он не соответствует хотя бы одному из требований, установленных нормативно-технической документацией.
Работоспособное состояние – состояние объекта, при котором он способен выполнять все или часть заданных функций в полном или частичном объеме.
Полностью работоспособное состояние – работоспособное состояние объекта, при котором он способен выполнять все заданные функции в полном объеме.
Частично работоспособное состояние – работоспособное состояние объекта, при котором он способен выполнять часть заданных функций в полном или частичном объеме или все заданные функции, но при этом хотя бы одну из них в частичном объеме.
Неработоспособное состояние – состояние объекта, при котором он не способен выполнять все заданные функции.
Предельное состояние – состояние объекта, при котором его дальнейшая эксплуатация должна быть прекращена из-за неустранимого нарушения требований безопасности, или неустранимого отклонения заданных параметров от установленных пределов, или неустранимого снижения эффективности эксплуатации ниже допустимой, или необходимости проведения среднего или капитального ремонта.
Повреждение – событие, заключающееся в нарушении исправности объекта или его составных частей вследствие влияния внешних воздействий, превышающих уровни, установленные в нормативно-технической документации на объекте.
Отказ – событие, заключающееся в нарушении работоспособности объекта.
Примечание.
Применительно к участку трубопровода водопроводной или водоотводящей сети событие, заключающееся в нарушении работоспособности участка, для восстановления которой необходим ремонт (с раскопкой котлована) и отключение участка трубопровода называется отказом.
|
Из за большого объема этот материал размещен на нескольких страницах:
1 2 3 4 5 6 7 8 9 10 |



