М Е Ж Г О С У Д А Р С Т В Е Н Н Ы Й С Т А Н Д А Р Т
=========================================================================================
СИСТЕМА ПРОЕКТНОЙ ДОКУМЕНТАЦИИ ДЛЯ СТРОИТЕЛЬСТВА
ВОДОСНАБЖЕНИЕ И КАНАЛИЗАЦИЯ. НАРУЖНЫЕ СЕТИ
РАБОЧИЕ ЧЕРТЕЖИ
ГОСТ 21.604-82
Издание официальное
ГОСУДАРСТВЕННЫЙ КОМИТЕТ СССР ПО ДЕЛАМ СТРОИТЕЛЬСТВА
Москва
РАЗРАБОТАН
Государственным ордена Трудового Красного Знамени проектным институтом «Промстройпроект» Госстроя СССР
Государственным ордена Трудового Красного Знамени проектным институтом «СОЮЗВОДОКАНАЛПРОЕКТ» Госстроя СССР
Центральным научно-исследовательским и проектно-экспериментальным институтом инженерного оборудования городов, жилых и общественных зданий (ЦНИИЭП инженерного оборудования) Госгражданстроя
ИСПОЛНИТЕЛИ
(руководитель темы), ,
ВНЕСЕН Государственным ордена Трудового Красного Знамени проектным институтом «Промстройпроект» Госстроя СССР
Директор
УТВЕРЖДЕН И ВВЕДЕН В ДЕЙСТВИЕ Постановлением Государственного комитета СССР по делам строительства от 01.01.01 г. № 000
Сдано в наб. 20.11.82 Подп. к печ. 03.03п. л. 0.68 уч.-изд. л. Тир. 100000 Цепа 3 коп.
Ордена «Знак Почета» Издательство стандартов, Москва. Новопресненский пер., 3. Калужская типография стандартов, . Зак. 3156
УДК 628.11/.21:002:006.354 Группа Ж01
М Е Ж Г О С У Д А Р С Т В Е Н Н Ы Й С Т А Н Д А Р Т
==========================================================================
Система проектной документации для строительства
ВОДОСНАБЖЕНИЕ И КАНАЛИЗАЦИЯ. ГОСТ
НАРУЖНЫЕ СЕТИ
Рабочие чертежи 21.604-82
System of building design documents.
Water supply and sewerage. Outside networks.
Working drawings
Постановлением Государственного комитета СССР по делам строительства от 01.01.01 г. № 000 срок введения установлен
с 01.07.83
Несоблюдение стандарта преследуется по закону
Настоящий стандарт устанавливает состав и правила оформления рабочих чертежей наружных сетей водоснабжения и канализации объектов строительства всех отраслей промышленности и народного хозяйства,
1. ОБЩИЕ ПОЛОЖЕНИЯ
1.1. Рабочие чертежи наружных сетей водоснабжения и канализации (далее — сети) выполняют в соответствии с требованиями настоящего стандарта и других стандартов системы проектной документации для строительства.
1.2. В состав рабочих чертежей сетей (основной комплект рабочих чертежей марки НВК) включают:
общие данные по рабочим чертежам;
чертежи (планы, профили и элементы) сетей;
схемы напорных сетей.
К основному комплекту рабочих чертежей марки НВК составляют спецификацию оборудования по ГОСТ 21.110-82.
1.3. Основной комплект рабочих чертежей марки НВК, при необходимости, может быть расчленен на основные комплекты рабочих чертежей марки НВ (наружные сети водоснабжения) и НК (наружные сети канализации).
1.4. Для трубопроводов сетей принимают условные обозначения по ГОСТ 21.106—78.
Допускается обозначать невидимые (например, подземные, в перекрытых каналах) трубопроводы сплошной толстой основной линией при отсутствии на чертежах видимых участков трубопроводов с необходимым пояснением в общих данных по рабочим чертежам или на соответствующих чертежах.
Подоснову чертежа выполняют сплошной тонкой линией.
1.5.Элементам сетей присваивают обозначения, состоящие из марок, номеров элементов в пределах каждой сети (например, ПГ7, ПГ8, Д1, Д2)
1.6.Обозначение диаметра трубопро-вода на планах и схемах наносят над трубопроводом или на полке линии-выноски
Наименование элементов сети |
Марки |
|
Колодцы и камеры с пожарным гидрантом Дождеприемники Точки разрывов, присоединенные без колодцев |
ПГ Д Т |
2. ОБЩИЕ ДАННЫЕ ПО РАБОЧИМ ЧЕРТЕЖАМ
2.1. В состав общих данных по рабочим чертежам, кроме сведений, предусмотренных ГОСТ 21.102—79, включают:
ситуационный план, сетей (при необходимости);
основные показатели по системам водоснабжения и канализации по форме 1.
Издание официальное Перепечатка воспрещена
© Издательство Стандартов, 1983
Стр. 2 ГОСТ 21.604—82
![]() |
2.2. В общих указаниях, входящих в состав общих данных по рабочим чертежам марки НВК, кроме сведений, предусмотренных ГОСТ 21.102—79, приводят:
инженерно-геологическую характеристику;
требования по антикоррозионной защите и теплоизоляции трубопроводов;
особые требования к сетям (например, взрывобезопасность, кислотостойкость).
3. ЧЕРТЕЖИ СЕТЕЙ
3.1. П л а н ы с е т е й
3.1.1. Для разработки планов сетей в качестве подосновы используют рабочие чертежи генерального плана, автомобильных и железных дорог или топографические планы.
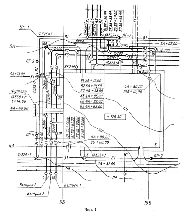
3.1.2. На планах сетей (черт. 1) указывают:
существующие и проектируемые здания и сооружения, сети водоснабжения и канализации с координатами или привязками к координационным осям зданий (сооружений) или постоянным базисам, инженерные сети другого назначения, влияющие на прокладку проектируемых сетей;
диаметры проектируемых трубопроводов до и после точек их изменения;
сооружения на сети (например, колодцы, камеры, дождеприемники, переходы по эстакадам и под автомобильными и железнодорожными путями, дюкеры) с соответствующей их нумерацией;
координаты проектируемых сетей.
3.1.3. Допускается вместо плана сетей выполнять отдельные фрагменты этого плана, размещая их под изображениями соответствующих профилей сетей (черт. 2).
3.1.4. Планы сетей выполняют в масштабе 1:500—1:5000, узлы сетей — в масштабе 1:20 – 1:50 по ГОСТ 2.302—68.
3.2. П р о ф и л и с е т е й
3.2.1. Профиль сети изображают в виде ее развертки по оси трубопровода.
3.2.2. Над профилем (черт. 3) указывают:
надземные сооружения (например, эстакады, насосные станции);
глубину заложения трубопроводов от планировочной поверхности земли до низа трубопровода — для напорных трубопроводов и до лотка трубопровода — для самотечных;
номера буровых скважин.
3.2.3. На профиле указывают:
поверхность земли (проектную — тонкой сплошной линией, натурную — тонкой штриховой линией);
уровень грунтовых вод (ур. г. в.) — тонкой штрихпунктирной линией;
пересекаемые автомобильные дороги, железнодорожные и трамвайные пути, кюветы, подземные инженерные сооружения и сети, влияющие на прокладку проектируемых трубопроводов, с указанием их габаритных размеров и высотных отметок;
данные о грунтах. В зависимости от протяженности трубопровода и характера напластования данные о грунтах приводят либо в отдельных точках (в местах заложения буровых скважин или шурфов), либо по всей трассе трубопровода;
ГОСТ 21.604-82 Стр.3
![]() |
проектируемый трубопровод, колодцы, дождеприемники, камеры и подземные части зданий и сооружений, связанные с проектируемым трубопроводом;
футляры на трубопроводах с указанием диаметров, длин и привязок их к оси дорог или проектируемым сетям и сооружениям.
3.2.4. Под профилем помещают таблицу основных данных для прокладки трубопровода по форме 2.
Допускается дополнить таблицу другими данными (например, пикеты, план трассы, схема сети), а также характеристикой грунтов в основании трубопровода (например, просадочность, набухание, коррозионность).
3.2.5. Длину трубопровода, расстояние между колодцами, точками и углами поворотов, а также глубину заложения трубы указывают в метрах с точностью двух десятичных знаков, отметки низа или лотка трубы – в метрах с точностью трех десятичных знаков после запятой, величину уклона – в процентах или промилле.
![]() |
ГОСТ 21.604-82 Стр.4
ГОСТ 21.604-82 Стр.5

ГОСТ 21.604—82 Стр. 6
3.2.6. Профили сетей выполняют в масштабе 1:500—1:5000 по горизонтали и 1:100—1:500 по вертикали по ГОСТ 2.302—68.
3.2.7. Принятый масштаб изображения профилей указывают слева от профиля.
3.3. С х е м ы н а п о р н ы х с е т е й
3.3.1. Схемы напорных сетей выполняют в плане без масштаба.
3.3.2. На схемах напорных сетей указывают:
трубопроводы и длины их участков, диаметры и толщины стенок (при необходимости) труб, фасонные части, арматуру, упоры и другие элементы сетей;
колодцы с размерами в плане и привязкой оси труб к внутренним граням колодцев. Элементам трубопровода присваивают позиционные обозначения.
3.3.3. Трубопроводы на схемах напорных сетей изображают одной сплошной очень толстой линией, элементы сети и трубопроводную арматуру — условными графическими обозначениями по ГОСТ 2.784—70 и ГОСТ 2.785—70.
3.3.4. При необходимости на листах со схемой напорных сетей выполняют планы, разрезы или схемы отдельных элементов сети в масштабе 1:10—1:100 по ГОСТ 2.302—68 (черт. 4).
3.3.5. Допускается выполнение рабочих чертежей напорных сетей без схемы, но с обязательным выполнением схем колодцев с привязкой осей труб к внутренним граням колодцев.







