Задание принял к исполнению ___________________
(подпись дипломника)
Календарный план
№ п/п | Наименование этапов ВКР | Сроки выполнения этапов | Примечание |
1 | Архитектурно-строительная часть | ||
2 | Экология городской среды и комплексное благоустройство территорий | ||
3 | Основания и фундаменты | ||
4 | Расчетно-конструктивная часть | ||
5 | Технология и организация производства работ в городском строительстве и хозяйстве | ||
6 | Инженерные сети и оборудование | ||
7 | Техническая эксплуатация и обеспечение безопасности зданий и территорий | ||
8 | Экономика ГСХ | ||
9 | Научно-исследовательская часть |
Дипломник ____________ Руководитель ______________
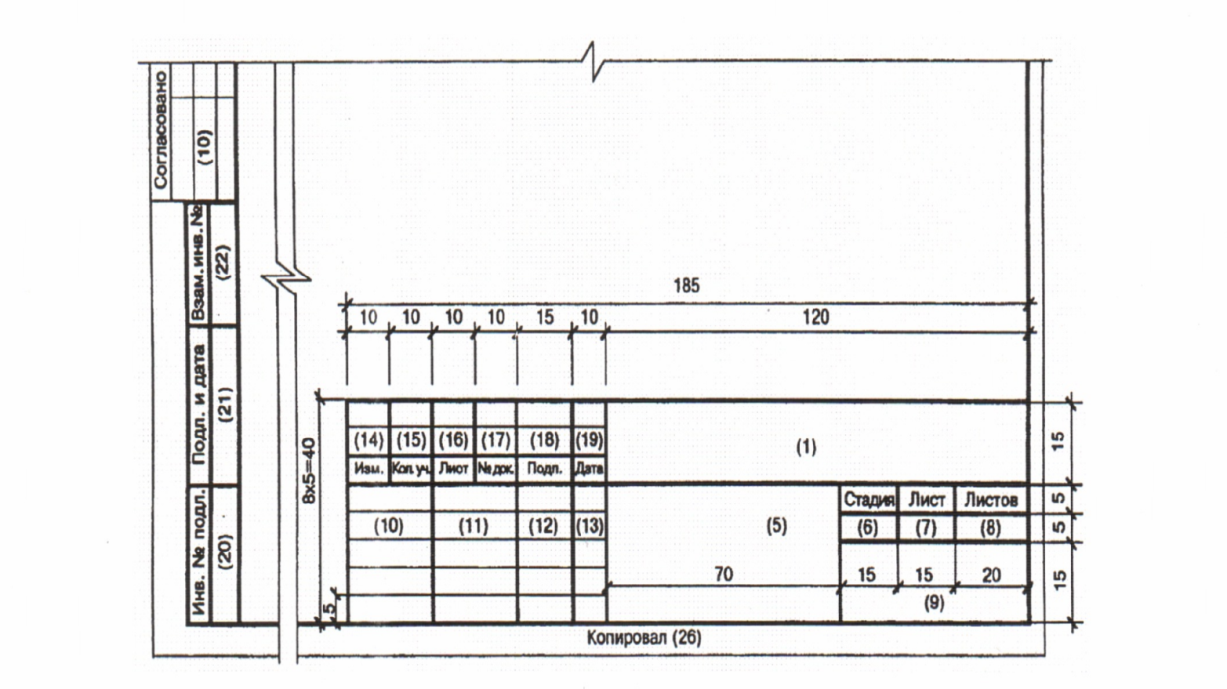
а) основная надпись для титульных листов ПЗ

б) основная надпись для всех последующих листов ПЗ



минобрнауки России
ФЕДЕРАЛЬНОЕ ГОСУДАРСТВЕННОЕ БЮДЖЕТНОЕ ОБРАЗОВАТЕЛЬНОЕ УЧРЕЖДЕНИЕ ВЫСШЕГО ПРОФЕССИОНАЛЬНОГО ОБРАЗОВАНИЯ
«БЕЛГОРОДСКИЙ ГОСУДАРСТВЕННЫЙ
ТЕХНОЛОГИЧЕСКИЙ УНИВЕРСИТЕТ им. »
(БГТУ им. )
Кафедра «Городское строительство и хозяйство»
ОТЗЫВ РУКОВОДИТЕЛЯ
НА ВЫПУСКНУЮ КВАЛИФИКАЦИОННУЮ РАБОТУ
Дипломника ___________________________________________
Ф. И. О. (полностью)
Специальности 270105 «Городское строительство и хозяйство»
Тема ВКР:
Объём представленной на отзыв ВКР:
количество чертежей листов; пояснительной записки ____ стр.
1. Актуальность темы ВКР:
2. Заключение о соответствии выполненной работы утверждённому заданию на проектирование, в т. ч. полноты изложения материала по каждому разделу: Выпускная квалификационная работа выполнена в соответствии с утвержденным заданием. Все разделы выполнены в полном объеме, качественно и в сроки, определенным календарным планом. Выпускная квалификационная работа удовлетворяет требованиям, предъявляемым к выполнению и оформлению ВКР.
3. Характеристика выполнения каждого раздела работы, степень применения дипломником последних достижений науки и техники и передовых методов технологии производства
4. Оценка графического оформления чертежей и пояснительной записки
5. Замечания по работе
6. Оценка работы
7. Заключение о соответствии дипломника квалификации инженера
Отзыв составил:
(должность, место работы, фамилия, имя, отчество)
|
Из за большого объема этот материал размещен на нескольких страницах:
1 2 3 4 5 6 7 8 9 10 11 |



