ЛЕКЦИЯ 10
НАГРЕВАНИЕ, ИСПАРЕНИЕ, ОХЛАЖДЕНИЕ И КОНДЕНСАЦИЯ
10.1. НАГРЕВАНИЕ
Нагреванием называется процесс повышения температуры материалов путем подвода к ним теплоты. Широко распространенными методами нагревания в пищевой технологии являются нагревание горячей водой или другими жидкими теплоносителями, насыщенным водяным паром, топочными газами и электрическим током.
Для этих целей применяют теплообменники различных конструкций.
Нагревание водой используют для повышения температуры и пастеризации пищевых продуктов при температурах ниже 100 0С. Для нагревания до температуры выше 100 °С применяют перегретую воду, находящуюся под избыточным давлением. Вода является доступным и дешевым, некоррозиеактивным теплоносителем, имеющим высокие теплоемкость и коэффициент теплоотдачи. Обычно обогрев водой осуществляется через разделяющую теплоноситель и продукт стенку аппарата.
При нагревании водой или другими жидкостями, например маслом, органическими теплоносителями, часто применяют циркуляционный способ обогрева. По этому способу горячая вода (либо другой теплоноситель) циркулирует между нагревателем и теплообменником, в котором она отдает теплоту. Циркуляция может быть естественной или принудительной. Естественная циркуляция происходит за счет разности плотностей горячего и холодного теплоносителей.
Более эффективным является способ обогрева при принудительной циркуляции, которую осуществляют с помощью насоса.
Для обогрева теплиц при выращивании огурцов, томатов и других овощей используют горячую воду, отходящую от заводских теплоиспользующих установок.
Другим способом нагревания горячими жидкостями является обогрев с помощью обогревательных бань, представляющих собой аппараты с рубашками. Рубашка нагревается топочными газами, с помощью электрообогрева или насыщенным водяным паром высокого давления, подаваемым в змеевик.
Из высококипящих органических жидкостей для создания высоких температур применяют минеральные масла (до 250...300 °С), тетрахлордифенил (до 300 °С), глицерин, кремнийорганические соединения и др. Наибольшее распространение имеет дифенильная смесь, которая используется для нагревания по циркуляционному способу, а также для заполнения обогревательных бань. Коэффициент теплоотдачи для жидкой дифенильной смеси в условиях естественной циркуляции составляет 200...350 Вт/(м2 *К). Дифенильная смесь обеспечивает обогрев до 260...400 °С.
Расход воды или другого теплоносителя на нагревание определяют из теплового баланса
(10.1)
где: Gв и Gп – массовые расходы соответственно воды и продукта, кг/ч; св и сп – теплоёмкости соответственно воды и продукта, кДж/(кг*К),
и
- начальные температуры соответственно воды и продукта, 0С; Qп - потери теплоты в окружающую среду, кДж/ч.
Gв=
(10.2)
Нагревание водяным насыщенным паром получило широкое распространение, что объясняется следующими его достоинствами: большим количеством теплоты, выделяющейся при конденсации водяного пара (2024...2264 кДж на 1 кг конденсирующегося пара при абсолютных давлениях соответственно 0,1... 1,0 МПа); высоким коэффициентом теплоотдачи от конденсирующего пара к стенке — порядка кДж/(м2*ч*К); равномерностью обогрева.
При нагревании водяным насыщенным паром применяют два способа: нагревание «глухим» насыщенным паром и «острым» паром.
При нагревании «глухим» паром теплота от конденсирующегося насыщенного водяного пара к нагреваемому теплоносителю передается через разделяющую их стенку. Греющий «глухой» пар конденсируется и выводится из парового пространства теплообменника в виде конденсата. При этом температуру конденсата принимают равной температуре насыщенного греющего пара.
Массовый расход пара (в кг/ч) при нагревании жидкости определяют из теплового баланса
(10.3)
Расход «глухого» пара
(10.4)
где: D – массовый расход пара, кг/ч; G – массовый расход жидкости, кг/ч; с – удельная теплоёмкость жидкости, кДж/(кг*К); tн и tк – соответственно начальная и конечная температура жидкости, 0С;
- удельные энтальпии соответственно греющего пара и конденсата, кДж/ч.
Чтобы пар полностью конденсировался в паровом пространстве теплообменника, на отводной линии конденсата устанавливают конденсатоотводчики различных конструкций (рис. 10.1). Конденсатоотводчик пропускает конденсат, но не пропускает пар, поэтому пар полностью конденсируется в паровом пространстве теплообменника, что приводит к существенной его экономии.

Рис. 10.1. Схема установки конденсатоотводчика:
1 – теплообменник; 2 – продувочный вентиль; 3 – конденсатоотводчик; 4 – вентили; 5 – отводная линия
При нагревании «острым» паром водяной пар вводится непосредственно в нагреваемую жидкость. Пар конденсируется и отдает теплоту нагреваемой жидкости, а конденсат смешивается с жидкостью. Пар вводится через барботер, представляющий собой во многих случаях трубу с отверстиями, согнутую по спирали Архимеда либо по окружности. Впуск пара по барботеру обеспечивает одновременно с нагреванием жидкости ее перемешивание с паром.
Расход «острого» пара определяют из теплового баланса
(10.5)
Обозначения здесь те же, что и в уравнении (10.3).
Расход «острого» пара
D=
(10.6)
Нагревание «острым» паром применяют в тех случаях, когда допустимо разбавление нагреваемой среды водой. Этот способ часто используют для нагревания воды и водных растворов.
Нагревание топочными газами, образующимися при сжигании твердого, жидкого или газообразного топлива в специальных печах, используется, например, для обогрева сушилок.
Недостатками обогрева топочными газами являются: низкий коэффициент теплоотдачи, равный 60...120 кДж/(м2*ч*К), значительные температурные перепады и неравномерный нагрев; сложность регулирования температуры; окисление стенок аппаратов, а также наличие вредных продуктов сгорания, что делает недопустимым применение топочных газов для нагревания пищевых продуктов при непосредственном соприкосновении с ними.
Кроме топочных газов, полученных в специальной печи, используют также отработавшие газы от печей, котлов и т. д. температурой 300...500 °С. Применение отработавших газов не требует дополнительного расхода топлива, поэтому использование их для нагревания весьма рационально.
Нагревание электрическим током осуществляется в электрических печах сопротивления прямого и косвенного действия.
В печах прямого действия тело нагревается при прохождении через него электрического тока.
Нагревание токами высокой частоты основано на том, что при воздействии на диэлектрик переменного электрического тока молекулы диэлектрика приходят в колебательное движение, при этом часть энергии затрачивается на преодоление трения между молекулами диэлектрика и превращается в теплоту, нагревая тело. Количество выделяющейся теплоты пропорционально квадрату напряжения и частоте тока. Обычно применяют частоту тока 1*106Гц.
Для получения токов высокой частоты используют генераторы различных конструкций.
Достоинства диэлектрического нагревания: непосредственное выделение теплоты в нагреваемом теле; равномерный быстрый нагрев всей массы материала до требуемой температуры; простота регулирования процесса.
В печах косвенного действия теплота выделяется при прохождении электрического тока по нагревательным элементам. Выделяющаяся при этом теплота передается материалу тепловым излучением, теплопроводностью и конвекцией.
Количество теплоты, которое необходимо подвести в процессе нагревания электрическим током, определяется из теплового баланса
(10.7)
где:
- количество теплоты, выделяющееся в нагревательном электрическом устройстве при прохождении электрического тока, кДж/ч; G – количество перерабатываемого в обогреваемом аппарате продукта, кг/ч; c – удельная теплоёмкость перерабатываемого продукта, кДж/(кг*К);
и
- соответственно начальная и конечная температуры перерабатываемого продукта, 0С;
- потери теплоты в окружающую среду, кДж/ч.
Из уравнения (10.7)
(10.8)
Мощность нагревательных элементов (в кВт)
(10.9)
10.2. ИСПАРЕНИЕ
Испарение — процесс превращения жидкости в пар путем подвода к ней теплоты. Наиболее эффективно испарение жидкостей происходит при кипении. Испарение в пищевой технологии используют для охлаждения и опреснения воды, концентрирования растворов, например сахарных, и для разделения жидких смесей. Испарение происходит в испарителях.
Аппараты, применяемые для опреснения воды, называют опреснителями, для повышения концентрации растворов — выпарными аппаратами.
Расход теплоты на испарение (в кДж)
Q=Wr (10.10)
где: W – масса испаренной жидкости, кг; r – теплота парообразования, кДж/кг.
Например, для испарения 1 кг воды при атмосферном давлении следует затратить 2264 кДж.
10.3. КОНДЕНСАЦИЯ
Конденсация — переход вещества из паро - или газообразного состояния в жидкое путем отвода от него теплоты. Конденсация происходит в конденсаторах.
Процессы конденсации широко применяют в пищевой технологии для ожижения различных веществ.
Конденсацию можно проводить при отводе теплоты от конденсируемых веществ с помощью охлаждающего теплоносителя, отделенного стенкой, либо при непосредственном смешивании конденсируемых паров с охлаждающим теплоносителем — водой. В первом случае имеет место поверхностная конденсация, во втором — конденсация смешением.
Количество теплоты, выделяемое при конденсации, определяется по формуле Q=Dr, где D — масса конденсирующегося пара, кг; г — теплота конденсации, кДж/кг. Например, при конденсации 1 кг водяного пара при атмосферном давлении выделяется 2264 кДж.
Поверхностная конденсация осуществляется в теплообменниках, называемых поверхностными конденсаторами.
Рассмотрим процесс конденсации перегретого пара водой. Тепловой баланс процесса
(10.11)
где: D – массовый расход поступающего в конденсатор пара, кг/ч; i – удельная энтальпия пара, кДж/кг; св, ск – удельные теплоёмкости соответственно воды и конденсата, кДж/(кг*К);
,
- соответственно начальная и конечная температуры воды, 0С; tк – температура конденсата на выходе из аппарата, 0С;
– потеря тепла в окружающую среду, кДж/ч.
Отсюда найдем массовый расход охлаждающей воды (в кг/ч)
(10.12)
Удельная энтальпия поступающего перегретого пара (в кДж/кг)
(10.13)
где:
- удельная теплоёмкость перегретого пара, кДж/(кг*К);
- температура поступающего перегретого пара, 0С;
- температура насыщения (конденсации) пара, 0С; r - теплота конденсации пара (теплота испарения жидкости), кДж/кг.
Площадь поверхности теплопередачи конденсатора рассчитывают отдельно для трех зон: зоны F1 охлаждения перегретого пара, зоны F2 конденсации и зоны F3 охлаждения конденсата: Fобщ=F1 +F2+F3. Площадь поверхности каждой зоны определяется по основному уравнению теплопередачи (10.1).
Конденсация при смешении теплоносителей осуществляется в мокрых и сухих конденсаторах.
В мокрых конденсаторах охлаждающую воду, конденсат и неконденсирующиеся газы, например воздух, выводят из нижней части конденсатора с помощью мокровоздушного насоса.
В сухих конденсаторах охлаждающая вода вместе с конденсатом выводится из нижней части, а воздух отсасывается вакуум-насосом из верхней части конденсатора.
Мокрые и сухие конденсаторы делятся на прямоточные и противоточные.
10.4. ОХЛАЖДЕНИЕ ДО ОБЫКНОВЕННЫХ ТЕМПЕРАТУР
Охлаждение — процесс понижения температуры материалов путем отвода от них теплоты.
Для охлаждения газов, паров и жидкостей до 15...20 °С в пищевой технологии используют воду и воздух. Для охлаждения продуктов до низких температур используют низкотемпературные хладагенты — холодильные рассолы, хладоны (фреоны), аммиак, диоксид углерода и др.
В этом разделе рассмотрим охлаждение до обыкновенных температур.
Охлаждение водой осуществляется в теплообменниках, в которых теплоносители разделены стенкой либо обмениваются теплотой при смешивании. Например, газы охлаждают разбрызгиванием в них воды.
Для охлаждения применяется обычная вода температурой 15...25 °С либо артезианская температурой 8...12 0С. С целью экономии свежей воды часто для охлаждения используют оборотную воду, охлажденную за счет ее испарения в градирнях. Оборотная вода имеет температуру, достигающую летом 30 °С.
Массовый расход воды на охлаждение W (в кг/ч) определяется из теплового баланса
(10.14)
Откуда
(10.15)
где: G – массовый расход охлаждаемого теплоносителя, кг/ч; с, св – удельные теплоёмкости соответственно теплоносителя и воды, кДж/(кг*К); tн, tк - соответственно начальная и конечная температуры теплоносителя, 0С;
,
- соответственно начальная и конечная температуры охлаждающей воды, 0С; Qп – потери теплоты в окружающую среду, кДж/ч.
Охлаждение льдом применяют для охлаждения ряда продуктов, например мороженого, до температуры, близкой к нулю. Лед, отдавая теплоту, нагревается до 0 °С и плавится, отнимая теплоту от охлаждаемого продукта. Для определения продолжительности охлаждения используются экспериментальные данные.
При непосредственном охлаждении (например, жидкости льдом) со льдом вносится холод
Q=L(-r) (10.16)
где: L – масса льда, кг; r – теплота плавления льда, (кДж/кг); принимают r с учётом переохлаждения его на 1…3 0С равным 335 кДж/кг.
С охлаждаемой жидкостью вносится теплота в количестве
Qж=Gctн (10.17)
где: G – масса охлаждаемой жидкости, кг; с – удельная теплоёмкость жидкости, кДж/(кг*К); tн – начальная температура жидкости, 0С.
Примем конечную температуру охлаждаемой жидкости и воды, образовавшейся при таянии льда, tк. Тогда тепловой баланс можно записать так:
(10.18)
где: св – удельная теплоёмкость воды, кДж/(кг*К).
Отсюда расход льда
(10.19)
Охлаждение воздухом проводят естественным и искусственным способами. При естественном охлаждении горячий продукт охлаждается за счет потерь теплоты в окружающее пространство. Наиболее эффективно естественное охлаждение в зимнее время при низкой температуре воздуха.
Искусственное охлаждение воздухом применяют для охлаждения воды в градирнях, в которых охлаждаемая вода стекает сверху вниз навстречу подаваемому снизу воздуху. При этом охлаждение происходит не только за счет теплообмена, но в значительной степени за счет испарения части жидкости.
10.5. ОХЛАЖДЕНИЕ ДО ТЕМПЕРАТУР НИЖЕ ТЕМПЕРАТУРЫ
ОКРУЖАЮЩЕЙ СРЕДЫ
Для охлаждения, замораживания и хранения пищевых продуктов при температурах ниже температуры окружающей среды (от +4 до - 40 °С) используют холодильники. Охлаждение в холодильниках осуществляется холодильными машинами.
Для получения холода в холодильных машинах применяют обратный круговой термодинамический цикл, состоящий из процессов сжатия газа, конденсации и испарения.
Согласно второму закону термодинамики охлаждение до температур ниже температуры окружающей среды, которое связано с переносом теплоты с низшего температурного уровня на высший, возможно только при затрате энергии. Такой перенос теплоты осуществляется по обратному циклу Карно.
Энергетический баланс прямого цикла Карно выражается уравнением
Q=L+Q0 (10.20)
согласно которому при переходе теплоты с более высокого температурного уровня Т на более низкий температурный уровень Т0 совершается работа L и на низком температурном уровне сохраняется теплота Q0.

Рис. 10.2 Обратный цикл Карно:
площадь L численно равна затраченной работе; Q0 – холоднопроизводительности
Рассмотрим обратный цикл Карло (рис. 10.2). Газообразное рабочее тело с температурой Т0 адиабатически сжимается с затратой работы, нагреваясь при этом до температуры Т. Этот процесс изображается вертикальной линией 1 — 2. После сжатия газ изотермически конденсируется при температуре Т (линия 2 — 3), отдавая теплоту Q, а затем образовавшаяся жидкость адиабатически расширяется. При расширении жидкость охлаждается до температуры Т0 (линия 3 — 4), производя при этом полезную работу, после чего испаряется при температуре Т0 (линия 4 — 1) при пониженном давлении, отнимая теплоту Q0 от охлаждаемого объекта.
Полезная работа газа согласно уравнению (10.20)
(10.21)
Количества теплот Q и Q0 можно выразить через энтропии рабочего тела до и после конденсации S1 и S2 согласно рис. 10.2, т. е.
(10.22)
Подставляя значения Q и Q0 в предыдущее выражение, получим
(10.23)
Холодильный коэффициент
(10.24)
показывает, какое количество теплоты Q0 можно перенести с низшего температурного уровня Т0 на высший Т за счет единицы затраченной работы L. Теплота Q0 называется холодопроизводительностью холодильной машины.
На рис. 10.3 приведены диаграммы состояния воздуха в координатах Т — s. Линии жидкости и пара сходятся в точке Ткр, которая является критической температурой. В области b — Ткр — а, лежащей левее кривой, находится жидкость. Область b—Ткр — с, лежащая под кривой, является областью сосуществования пара и жидкости, а область а — Ткр — с выше и правее кривой соответствует состоянию газа или перегретого пара.

Рис. 10.3. Т— S - диаграмма для воздуха
10.6. ПРОЦЕССЫ В ХОЛОДИЛЬНЫХ МАШИНАХ
Для искусственного охлаждения газов применяют следующие холодильные машины: паро - и газокомпрессионные, абсорбционные, пароводяные, эжекторные и термоэлектрические.
В холодильных машинах продукты могут охлаждаться непосредственно хладагентом либо с помощью промежуточных хладоносителей, которые отводят теплоту от объектов охлаждения, находящихся вне холодильной машины, и отдают ее хладагенту.
При использовании хладоносителей испаритель холодильной машины размещают в емкости, заполненной хладоносителем - рассолом. В результате испарения хладагента рассол охлаждается до заданной температуры и насосом подается в общий трубопровод, из которого насосом распределяется по охлаждающим элементам холодильника. Отработанный рассол собирается в общий трубопровод и вновь поступает на охлаждение в емкость.
Для охлаждения до температур не ниже - 15 °С используется раствор хлорида натрия.
В парогазокомпрессионных холодильных машинах используют аммиак, хладоны (фреоны), диоксид углерода. Принцип действия этих машин основан на сжатии хладагента компрессором и конденсации сжатого газа.
В холодильных машинах, работающих с аммиаком и хладонами, не требуется создавать высокие давления. В отличие от аммиака хладоны не имеют раздражающего носоглотку запаха и взрывобезопасны. Такие машины применяют для охлаждения до - 80 °С.
Схема парокомпрессионной машины представлена на рис. 10.4. Она состоит из компрессора Км, конденсатора, дросселирующего вентиля В, испарителя И. Хладагент, циркулирующий в машине (рис. 10.5), сжимается компрессором до рабочего давления по адиабате 1—2 до состояния насыщения и конденсируется при температуре Т в конденсаторе (линия 2—3), который охлаждается водой. Вода при этом отводит от хладагента теплоту
. После переохлаждения (линия 3—3') образовавшаяся жидкость поступает в дросселирующий вентиль, где дросселируется по изоэнтальпе 3—4 (или 3'—4, если отсутствует переохлаждение) и испаряется затем в испарителе при температуре То (линия 4—1) за счет теплоты
, отнимаемой от охлаждаемого объекта. Переохлаждение хладагента способствует увеличению отводимой теплоты .

Рис. 10.4. Схема парокомпрессионной холодильной машины:
Км — компрессор; К — конденсатор; В — дросселирующий вентиль; И — испаритель (состояние хладагента в точках 1...4 отображено на рис. 10.5 и 10.6)

Рис. 10.5. Цикл парокомпрессионной холодильной машины со сжатием влажного газа в компрессоре
Выше был описан процесс со сжатием в компрессоре влажного, пара, но в большинстве случаев холодильные машины работают со сжатием сухого пара (рис. 10.6). Процесс адиабатического сжатия пара в компрессоре отражается линией 1 - 2. Затем следуют охлаждение перегретого пара до состояния насыщения по изобаре 2 - 2', конденсация при температуре Т по изотерме 2 '- 3', переохлаждение 3' - 3, дросселирование по изоэнтальпе 3 - 4 и испарение по изотерме 4 - 1.
Из сопоставления приведенных циклов работы парокомпрессионных машин следует, что термодинамический цикл с влажным паром ближе к циклу Карно и холодильный коэффициент для него выше. Однако при сжатии влажного пара в компрессоре возникает опасность гидравлического удара и снижается коэффициент подачи компрессора, что делает такой цикл менее выгодным по сравнению с циклом сжатия сухого пара. Коэффициент подачи компрессора, зависящий от степени сжатия р/р0, определяют на основании экспериментальных данных.
S
Рис. 10.6. Цикл парокомпрессионной холодильной машины со сжатием сухого пара
Удельную холодопроизводительность (в кДж/кг) можно определить из рис. 10.6
(10.25)
а массовый расход циркулирующего в холодильной машине хладагента (в кг/с) — по формуле
(10.26)
Холодильный коэффициент
(10.27)
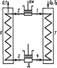
В газокомпрессионных холодильных машинах (рис. 10.7) хладагентом служит воздух. В рабочем цикле машины (рис. 10.8) воздух не конденсируется и не испаряется. Воздух засасывается турбокомпрессором и сжимается по адиабате 1—2. Затем охлаждается водой в холодильнике от температуры Т2 до Т3 по изобаре 2—3, охлажденный воздух расширяется адиабатически в детандере, при этом его температура снижается до Т4. Из детандера воздух поступает в теплообменник, в котором отнимает на низшем температурном уровне теплоту при постоянном давлении по изобаре 4—1. Эти машины характеризуются повышенным расходом энергии и применяются только для создания температур ниже - 100 °С.

Рис. 10.7. Схема газокомпрессионной холодильной ной машины:
Км — компрессор; Т — теплообменник; X — холодильник; Д — детандер (расширитель); точки 1...4 соответствуют точкам на диаграмме Т—S (рис. 10.8)

Рис. 10.8. Цикл газокомпрессионной холодильной машины
В абсорбционных холодильных машинах (рис. 10.9) хладагентом служит водоаммиачный раствор. Эти машины применяют для охлаждения до - 60 °С.

Рис. 10.9. Схема абсорбционной холодильной машины:
1 - кипятильник; 2 - конденсатор; 3, 8 - дросселирующие вентили; 4 - испаритель; 5 - абсорбер; 6 - насос; 7 - теплообменник
Машина состоит из кипятильника 1, который обогревается водяным паром, конденсатора 2, охлаждаемого водой, дросселирующего вентиля 3, испарителя 4, абсорбера 5, теплообменника 7 и насоса 6 (см. рис. 10.9). В кипятильнике из водоаммиачного раствора при нагревании выделяется большая часть газообразного аммиака, который под избыточным давлением поступает в конденсатор, где охлаждается водой и конденсируется при высокой температуре Т. При конденсации аммиак отдает теплоту
охлаждающей воде. Сжиженный аммиак дросселируется в дросселирующем вентиле 3 (при этом его давление снижается) и испаряется в испарителе 4, отнимая теплоту от охлаждаемой среды на низком уровне То. После испарителя газообразный аммиак поступает в абсорбер, охлаждается и абсорбируется водой. Полученный высококонцентрированный раствор подается насосом в теплообменник, где нагревается, и затем в кипятильник. Не испарившаяся часть аммиака в количестве 20 % подается в теплообменник и затем через дроссельный вентиль поступает на орошение в абсорбер. В результате абсорбции газообразного аммиака, поступающего из испарителя, вновь получают концентрированный водоаммиачный раствор, поступающий в кипятильник, и процесс повторяется. В абсорбционной холодильной машине функции компрессора выполняет термокомпрессор, который состоит из кипятильника, абсорбера и теплообменника.
Количество циркулирующего в машине водоаммиачного раствора можно определить из уравнений материального баланса термокомпрессора:
(10.28)
(10.29)
где: Ок, Оа - массовые расходы раствора, поступающего соответственно в кипятильник и абсорбер, кг/ч; хк, ха - концентрации раствора, поступающего соответственно в кипятильник и абсорбер, мас %;
- массовый расход циркулирующего газообразного аммиака, кг/ч.
Из этих уравнений определяют
![]()
![]()
В пароводяных эжекторных холодильных машинах хладагент сжимается в паровом эжекторе, а пар конденсируется в конденсаторах смешения с водой или в поверхностных конденсаторах. Хладоносителем здесь служит рассол или чистая вода. С помощью рассолов достигается охлаждение до - 15 °С, а с помощью воды — до +5°С.
Схема пароводяной эжекторной холодильной машины приведена на рис. 10.10. Водяной пар высокого давления, поступающий в эжектор 2, отсасывает пар из испарителя 1. В результате этого давление в испарителе снижается до 25Па и циркулирующий рассол охлаждается до -10...+ 15 °С. Охлажденный рассол откачивается насосом 5 и направляется на охлаждение объектов. Водяной пар из эжектора поступает в конденсатор смешения 3, где конденсируется и отводится в виде конденсатора мокровоздушным насосом 4.

Рис. 10.10. Схема пароводяной эжекторной холодильной машины:
1 — испаритель; 2 — эжектор; 3 — конденсатор смешения; 4, 5 — насосы.
Пароводяные эжекторные холодильные машины, работающие на воде, имеют высокий холодильный коэффициент благодаря небольшой разности температурных уровней. Такие машины просты, надежны, компактны и удобны в эксплуатации.
10.7. УСТРОЙСТВО ТЕПЛООБМЕННОЙ АППАРАТУРЫ
Теплоиспользующие аппараты, применяемые в пищевых производствах для проведения теплообменных процессов, называют теплообменниками. Теплообменники характеризуются разнообразием конструкций, которое объясняется различным назначением аппаратов и условиями проведения процессов.
По принципу действия теплообменники делятся на рекуперативные, регенеративные и смесительные (градирни, скрубберы, конденсаторы смешения и т. д.).
В рекуперативных теплообменниках теплоносители разделены стенкой и теплота передается от одного теплоносителя к другому через разделяющую их стенку.
В регенеративных теплообменниках одна и та же теплообменная поверхность омывается попеременно горячим и холодным теплоносителями. При омывании горячим теплоносителем поверхность нагревается за счет его теплоты, при омывании поверхности холодным теплоносителем она охлаждается, отдавая теплоту. Таким образом, теплообменная поверхность аккумулирует теплоту горячего теплоносителя, а затем отдает ее холодному теплоносителю.
В смесительных аппаратах передача теплоты происходит при непосредственном взаимодействии теплоносителей.
Рекуперативные теплообменники в зависимости от конструкции разделяются на кожухотрубчатые, типа «труба в трубе», змеевиковые, пластинчатые, спиральные, оросительные и аппараты с рубашками. Особую группу составляют трубные выпарные аппараты.
Кожухотрубные теплообменники наиболее широко распространены в пищевых производствах.
Кожухотрубный вертикальный одноходовой теплообменник с неподвижными трубными решетками (рис. 10.11,а) состоит из цилиндрического корпуса, который с двух сторон ограничен приваренными к нему трубными решетками с закрепленными в них греющими трубами. Пучок труб делит весь объем корпуса теплообменника на трубное пространство, заключенное внутри греющих труб, и межтрубное.

Рис. 10.11 Схема вертикального одноходового кожухотрубного теплообменника с неподвижными трубными решетками и размещение труб в трубной решетке:
1 - корпус; 2 - трубная решетка; 3 - греющая труба; 4 - патрубок; 5 - днища; 6 - опорная лапа; 7 - болт; 8 - прокладка; 9 - обечайка
К корпусу прикреплены с помощью болтового соединения два днища. Для ввода и вывода теплоносителей корпус и днища имеют патрубки. Один поток теплоносителя, например жидкость, направляется в трубное пространство, проходит по трубкам и выходит из теплообменника через патрубок в верхнем днище. Другой поток теплоносителя, например пар, вводится в межтрубное пространство теплообменника, омывает снаружи греющие трубы и выводится из корпуса теплообменника через патрубок.
Теплообмен между теплоносителями осуществляется через стенки труб.
Греющие трубы соединены с трубной решеткой сваркой либо развальцованы в ней (см. узел Б на рис. 10.11,а). Греющие трубы изготовляют из стали, меди или латуни.
Размещают греющие трубы в трубных решетках несколькими способами: по сторонам и вершинам правильных шестиугольников (в шахматном порядке), по сторонам и вершинам квадратов (коридорное) и по концентрическим окружностям. Такие способы размещения обеспечивают создание компактной конструкции теплообменника. Шаг размещения труб зависит от внешнего диаметра трубы. При развальцовке труб в трубной решетке шаг определяют по формуле t=(l,3...1,5)dн.
Диаметр корпуса теплообменника
D= (1,3...1,5)(b-1)dн+4dн, (10.30)
где b - число труб, расположенных по диагонали наибольшего шестиугольника; b =2а-1 (здесь а - количество труб, расположенных по стороне наибольшего шестиугольника);
dн - наружный диаметр трубы.
Общее количество труб в теплообменнике
n=3a(а-1)+1 (10.31)
Длину труб при известном диаметре вычисляют в зависимости от площади поверхности теплообмена
(10.32)
С целью интенсификации теплообмена в кожухотрубных теплообменниках пучок труб секционируют, т. е. разделяют на несколько секций (ходов), по которым теплоноситель проходит последовательно. Разбивка труб на ряд ходов достигается с помощью перегородок в верхнем и нижнем днищах.
На рис. 10.12 показан такой многоходовой теплообменник, в котором теплоноситель проходит трубное пространство за четыре хода. Этим достигается повышение скорости теплоносителя, что приводит к увеличению коэффициента теплоотдачи в трубном пространстве. Целесообразно увеличивать скорость того из теплоносителей, который имеет большее термическое сопротивление.
Секционировать можно и межтрубное пространство за счет установки направляющих перегородок (рис. 10.13).
Приведенные на рис. 10.11кожухотрубные теплообменники надежно работают при разностях температур между корпусом и трубами 25...30°С. При более высоких разностях температур между корпусом и трубами возникают значительные температурные напряжения, которые могут привести к выходу теплообменника из строя. Поэтому при больших разностях температур применяют конструкции теплообменников, в которых предусмотрена компенсация температурных удлинений.
Простейшее устройство для компенсации температурных удлинений - линзовый компенсатор (рис. 10.14,а), который устанавливается в корпусе теплообменника и компенсирует температурные деформации осевым сжатием или расширением.
Теплообменники с U - образными греющими трубами (рис 10.14,б) имеют одну трубную решетку, в которой закреплены оба конца U - образных труб. Каждая труба при нагревании может удлиняться независимо от других, тем самым компенсируя температурные напряжения.

Рис. 10.12. Схема многоходового теплообменника (по трубному пространству):
1 - корпус; 2 - греющая труба; 3 - днище; 4 - перегородки

Рис. 10.13. Схема многоходового теплообменника (по межтрубному пространству):
1 - корпус; 2 - перегородки; 3 - греющая труба; 4 – днище
Кожухотрубные теплообменники используют для теплообмена между конденсирующимся паром и жидкостью. Жидкость пропускается по трубам, а пар — в межтрубном пространстве.
Преимущества кожухотрубных теплообменников заключаются в компактности, невысоком расходе металла, легкости очистки труб изнутри (за исключением теплообменника с U-образными трубами).

Рис. 10.14. Устройство теплообменников с компенсацией температурных напряжений:
а — с линзовым компенсатором: 1 - корпус; 2 - греющая труба; 3 - линзовый компенсатор; б - с U-образными греющими трубами: 1 - крышка; 2 - корпус; 3 - U-образные греющие трубы
Недостатки этих теплообменников: сложность достижения высоких скоростей теплоносителей, за исключением многоходовых теплообменников; трудность очистки межтрубного пространства и малая доступность его для осмотра и ремонта; сложность изготовления из материалов, не поддающихся развальцовке и сварке, например из чугуна и ферросилида.
Теплообменники типа «труба в трубе» состоят из ряда наружных труб большего диаметра и расположенных внутри их труб меньшего диаметра (рис. 10.15). Внутренние и внешние трубы элементов соединены друг с другом последовательно с помощью колен и патрубков. Один из теплоносителей — I — движется по внутренней трубе, а другой — II — по кольцевому каналу, образованному внутренней и внешней трубами. Теплообмен осуществляется через стенку внутренней трубы.
В этих теплообменниках достигаются высокие скорости теплоносителей как в трубах, так и в межтрубном пространстве. При необходимости создания больших площадей поверхностей теплопередачи теплообменник составляют из нескольких секций, получая батарею.

Рис. 10.15. Теплообменник типа «труба в трубе»:
1 - наружная труба; 2 - внутренняя труба; 3 - колено; 4 - патрубок; I , II — теплоносители

Рис. 10.16. Погружной змеевиковый теплообменник:
1 - змеевик; 2 - корпус

Рис. 10.17. Оросительный теплообменник:
1 - распределительный желоб; 2 - труба; 3 - колено; 4 - стойка; 5 - сборный желоб
Преимущества теплообменников типа «труба в трубе»: высокий коэффициент теплопередачи вследствие большой скорости обоих теплоносителей, простота изготовления.
Недостатки этих теплообменников заключаются в громоздкости, высокой металлоемкости, трудности очистки межтрубного пространства.
Теплообменники типа «труба в трубе» применяют при небольших расходах теплоносителей для теплообмена между двумя жидкостями и между жидкостью и конденсирующимся паром.
Погружные змеевиковые теплообменники представляют собой трубу, согнутую в виде змеевика и погруженную в аппарат с жидкой средой (рис. 10.16). Теплоноситель движется внутри змеевика. Змеевиковые теплообменники изготовляют с плоским змеевиком или со змеевиком, согнутым по винтовой линии.
Преимущество змеевиковых теплообменников - простота изготовления. В то же время такие теплообменники громоздки и трудно поддаются очистке. Погружные теплообменники применяют для охлаждения и нагрева конденсата, а также для конденсации паров.
Оросительные теплообменники используют для охлаждения жидкостей, газов и конденсации паров. Состоят они (рис. 10.17) из нескольких расположенных одна над другой труб, соединенных коленами. По трубам протекает охлаждаемый теплоноситель. Охлаждающая вода поступает в распределительный желоб с зубчатыми краями, из которого равномерно перетекает в верхнюю трубу теплообменника и на расположенные ниже трубы. Часть охлаждающей воды испаряется с поверхности труб. Под нижней трубой находится желоб для сбора воды. Коэффициент теплопередачи в таких теплообменниках невелик.
Оросительные теплообменники просты по устройству, но металлоемки. Обычно их устанавливают на открытом воздухе.
Спиральные теплообменники состоят из двух спиральных каналов прямоугольного сечения, образованных металлическими листами (рис. 10.18). Внутренние концы спиралей соединены перегородкой. С торцов каналы закрыты крышками и уплотнены прокладками. У наружных концов каналов предусмотрены патрубки для входа и выхода теплоносителей, два других патрубка приварены к плоским боковым крышкам.

Рис. 10.18. Спиральный теплообменник:
1 - крышка; 2 - перегородка; 3,4 - металлические листы
Такие теплообменники используют для теплообмена между жидкостями и газами. Эти теплообменники не забиваются твердыми частицами, взвешенными в теплоносителях, поэтому их применяют для теплообмена между жидкостями со взвешенными частицами, например для охлаждения бражки на спиртоперегонных заводах.
Спиральные теплообменники компактны, позволяют проводить процесс теплопередачи при высоких скоростях теплоносителей с высокими коэффициентами теплопередачи; гидравлическое сопротивление спиральных теплообменников ниже сопротивления многоходовых аппаратов при тех же скоростях теплоносителей.
Недостаток спиральных теплообменников — сложность изготовления, ремонта и очистки.
Пластинчатые теплообменники (рис. 10.19,а) монтируют на раме, состоящей из верхнего и нижнего несущих брусов, которые соединяют стойку с неподвижной плитой. По направляющим стяжным шпилькам перемещается подвижная плита. Между подвижной и неподвижной плитами располагается пакет стальных штампованных гофрированных пластин, в которых имеются каналы для прохода теплоносителей. Уплотнение пластин достигается с помощью заглубленных прокладок, которые могут выдерживать высокие рабочие давления. Теплоносители к каналам, образованным пластинами, проходят по чередующимся каналам сквозь разделенные прокладками отверстия.
Принцип действия пластинчатого теплообменника показан на рис. 10.19,б. Как видно из этой схемы, теплообмен происходит в противотоке, причем каждый теплоноситель движется вдоль одной стороны пластины.
|
|
Рис. 10.19 Пластинчатый теплообменник (а) и принцип его действия (б):
1 – верхний несущий брус; 2 – неподвижная плита; 3 – пластина; 4 – подвижная плита; 5 – нижний несущий брус; 6 – направляющая стяжная шпилька; 7 - стойка
Разновидность описанного пластинчатого теплообменника — коробчатый конденсатор, который представляет собой пластинчатый теплообменник, помещенный в коробчатый паросборник (рис. 10.20). Пакет пластин лежит на боку, а верхние кромки чередующихся пластин не имеют прокладок, чтобы обеспечить вход пара, который конденсируется охладителем, протекающим по «слоистой» системе закрытых каналов.
Пластинчатые теплообменники используют в качестве нагревателей, холодильников, а также комбинированных теплообменников для пастеризации (например, молока) и стерилизации (мелассы). Эти теплообменники можно собирать в виде многоступенчатых агрегатов.
Пластинчатые теплообменники компактны, обладают большой площадью поверхности теплопередачи, что достигается гофрированием пластин.
Значительная эффективность обусловлена большой величиной отношения площади поверхности теплопередачи к объему теплообменника. Это достигается благодаря высоким скоростям теплоносителей, а также турбулизации потоков гофрированными поверхностями пластин и низкому термическому сопротивлению стенок пластин.
Эти теплообменники изготовляют в виде модулей, из которых может быть собран теплообменник с площадью поверхности теплопередачи, необходимой для осуществления технологического процесса.
К недостаткам относятся сложность изготовления, возможность забивания поверхностей пластин взвешенными в жидкости твердыми частицами.

Рис. 10.20 Принцип действия коробчатого конденсатора
Теплообменники с ребристыми поверхностями теплообмена позволяют увеличить площадь поверхности теплопередачи со стороны теплоносителя с низким коэффициентом теплоотдачи.

воздух
Рис. 10.21. Секция калорифера:
1 - коробка; 2 - ребро; 3 - труба
Для оребрения поверхности используют стальные круглые или прямоугольные шайбы, которые приваривает в основном к трубам. В трубчатых теплообменниках применяют поперечные или продольные ребра.
Примером оребренного теплообменника может служить калорифер, используемый для нагрева воздуха греющим водяным паром. На рис. 10.21 показана секция парового калорифера. Пар поступает в трубы, где конденсируется, отдавая теплоту воздуху, который омывает пластины калорифера. Коэффициент теплоотдачи со стороны насыщенного водяного пара к стенке трубы α1=12 000 Вт/ (м2*К), а от стенки к воздуху α2=12...50 Вт/(м2*К). Оребрение внешней поверхности труб значительно увеличивает количество теплоты, переданной от пара к воздуху.
В теплообменных аппаратах с рубашками (автоклавах) передача теплоты от теплоносителя к стенкам аппарата происходит при омывании внешних стенок корпуса теплоносителем. На рис. 10.22 представлен аппарат с рубашкой, которая приварена к стенкам аппарата. В пространстве между рубашкой и корпусом циркулирует теплоноситель, который обогревает среду, находящуюся в аппарате. Иногда вместо сплошной рубашки к корпусу аппарата приваривают змеевик. На рис. 10.23 показаны варианты приваренных к корпусу аппарата змеевиков.

Рис. 10.22. Аппарат с рубашкой:
1 - корпус; 2 – рубашка
|
|
Рис. 10.23. Варианты приварных змеевиков
Регенеративные теплообменники состоят из двух секций, в одной из которых теплота передается от теплоносителя промежуточному материалу, в другой — от промежуточного материала технологическому газу. Примером регенеративной теплообменной установки является установка непрерывного действия с циркулирующим зернистым материалом (рис. 10.24), который выполняет функцию переносчика теплоты от горячих топочных газов к холодным технологическим. Установка состоит из двух теплообменников, каждый из которых представляет собой шахту с движущимся сверху вниз сплошным потоком зернистого материала. В нижней части каждого теплообменника имеется газораспределительное устройство для равномерного распределения газового потока по сечению теплообменника. Выгрузка зернистого материала из теплообменника происходит непрерывно с помощью шлюзового затвора. Охлажденный зернистый материал из второго теплообменника поступает в пневмотранспортную линию, по которой воздухом подается в бункер — сепаратор, где частицы осаждаются и вновь поступают в первый теплообменник.
Газ

Рис. 10.24. Установка с циркулирующим зернистым материалом:
1,2 - теплообменники; 3 - шлюзовой затвор; 4 - газодувка; 5 - пневмотранспортная линия; 6 - распределитель газа; 7 - сепаратор

Рис. 10.25. Прямоточный конденсатор:
1 - корпус; 2 - крышка; 3 - распыливающее сопло; 4 - мокровоздушный насос; 5 - штуцер
Смесительные теплообменники бывают мокрого и сухого типов. Теплота в них передается от одного теплоносителя к другому при их смешении.
Мокрый прямоточный конденсатор (рис. 10.25) предназначен для конденсации пара водой. Охлаждающая вода вводится в конденсатор через сопла. Распыление воды значительно увеличивает площадь поверхности теплообмена между паром и водой. При взаимодействии капелек воды с паром пар конденсируется. Конденсат, вода и несконденсировавшиеся газы откачиваются из конденсатора мокровоздушным насосом.
Тепловой баланс процесса выражается уравнением
Di+Wcвtв. н.=(D+W)cвt в. к.,
откуда
(10.33)
где: D - массовый расход конденсирующегося пара, кг/ч; i - энтальпия конденсирующегося пара, кДж/кг; W - массовый расход охлаждающей воды, кг/ч; св - теплоемкость воды, кДж/(кг*К); tв. н и t в. к - соответственно начальная и конечная температуры воды, ºС.
Считают, что 1 кг воды содержит 0,000025 кг воздуха и на 1 кг конденсирующего пара приходится в среднем 0,01 кг воздуха, проникающего в конденсатор через неплотности.
Массовый расход воздуха (в кг/ч), отсасываемого из конденсатора смешения,
GB=25·106(D+W)+0,01D, (10.34)
а его объем (в м3) определяют по уравнению состояния:
VB=288GB(273+tB)/pB, (10.35)
где: 288 - газовая постоянная воздуха, Дж/(кг*К); tB - температура отсасываемого из конденсатора воздуха, 0С; рв=р—рп — парциальное давление воздуха в конденсаторе, Н/м2 (здесь рп — парциальное давление пара в отсасываемом воздухе, которое принимается равным давлению насыщенного пара при температуре tB.
Температуру воздуха принимают равной температуре охлаждающей воды на выходе из конденсатора: tB=tB K.
В противоточном сухом конденсаторе смешения (рис. 10.26) взаимодействие пара и охлаждающей воды происходит в противотоке. Охлаждающая вода поступает на верхнюю перфорированную тарелку конденсатора, а пар — под нижнюю тарелку. Вода протекает с тарелки на тарелку в виде тонких струй через отверстия и борта. Взаимодействие пара с жидкостью происходит в межтарельчатом объеме конденсатора. Образовавшийся в результате конденсации пара конденсат вместе с водой выводится через барометрическую трубу, конец которой опущен в колодец, а воздух отсасывается через ловушку вакуум-насосом. В связи с этим такие конденсаторы иногда называют барометрическими.
Процесс конденсации в барометрических конденсаторах протекает под вакуумом. Обычно абсолютное давление в них составляет 0,01...0,02 МПа.
Для уравновешивания разности давлений в барометрическом конденсаторе и атмосферного служит столб жидкости, находящейся в барометрической трубе.
Высота (в м) барометрической трубы
Hтр=hз+hд+0,5, (10.36)
где hз - высота столба жидкости, уравновешивающего разность давлений в конденсаторе и атмосферного, м; hз =103,3 В (здесь В— разрежение в конденсаторе, МПа); hд — высота столба жидкости, необходимая для создания динамического напора, который обеспечивает движение жидкости в трубе; hд =(υ2 /2g)(2,5+λH тр /d). Здесь υ — скорость движения жидкости по трубе, принимается равной 1…2 м/с; λ — коэффициент гидравлического сопротивления;
- диаметр трубы, м;
D и W - массовые расходы пара и воды, поступающих в конденсатор, кг/ч; 0,5 — высота, предотвращающая заливание водой штуцера для ввода пара, м.

Рис. 10.26. Барометрический конденсатор:
1 - корпус; 2 - тарелка; 3 - барометрическая труба; 4 - колодец; 3 - ловушка
Размеры барометрического конденсатора зависят от диаметра барометрической трубы и определяются по соответствующим справочным материалам.
Для выбора вакуум-насоса необходимо знать количество воздуха, содержащегося в паре и воде, количество воздуха, подсасываемого в конденсатор и коммуникации через неплотности уплотнений.
Расход воздуха рассчитывают по уравнениям (10.34) и (10.35).
Температура воздуха
tв = tв н +0,1(tв к - tв н )+4
10.8. ПОДБОР ТЕПЛООБМЕННИКОВ
При выборе конструкции теплообменного аппарата следует исходить из следующего: аппарат должен соответствовать технологическому процессу, быть высокоэффективным (производительным), экономичным и надежным в работе, иметь низкую металлоемкость; материал теплообменника должен быть коррозиестойким в рабочих средах.
Высокие значения коэффициентов теплопередачи достигаются, когда теплоносители движутся через теплообменник с большими скоростями. Для достижения высокого коэффициента теплопередачи поверхность теплообмена должна быть чистой. При увеличении скорости одного из теплоносителей коэффициент теплопередачи заметно повышается лишь в том случае, если коэффициент теплоотдачи со стороны другого теплоносителя достаточно высок, а термические сопротивления стенки и загрязнений невелики. Так, если коэффициент теплоотдачи в межтрубном пространстве значительно ниже, чем в трубах, то возрастание скорости теплоносителя в трубах почти не влияет на величину коэффициента теплопередачи; в этом случае следует увеличить коэффициент теплоотдачи в межтрубном пространстве, например путем установки в нем перегородок.
При решении вопроса о том, какой из теплоносителей пропускать по трубам, какой — с наружной стороны труб, надо придерживаться следующих правил:
для достижения большего коэффициента теплопередачи теплоноситель с меньшим коэффициентом теплоотдачи следует пропускать по трубам;
теплоноситель, оказывающий коррозионное действие на аппаратуру, целесообразно пропускать по трубам, так как в этом случае применение антикоррозийного материала необходимо только для труб, решеток и камер, кожух не может быть сделан из обычного материала;
для уменьшения потерь теплоты теплоноситель с высокой температурой целесообразно пропускать по трубам;
теплоноситель, из которого выделяются осадки, рекомендуется пропускать с той стороны поверхности теплообмена, которую легче очищать;
теплоноситель с высоким давлением следует направлять в трубное пространство, чтобы корпус теплообменника не находился под давлением.
Конструкцию теплообменника выбирают на основании технико-экономического, расчета. При этом сопоставляют капитальные затраты на изготовление и годовые эксплуатационные расходы. В ряде случаев идут на увеличение капитальных затрат, если они быстро окупаются за счет экономии эксплуатационных затрат.
Когда проектируют теплообменник для технологического процесса, задача расчета заключается в определении площади его теплообменной поверхности и габаритных размеров аппарата.
Расчет начинают с составления теплового баланса теплообменника, из которого определяют количество переданной теплоты. Например, тепловой баланс для нагрева теплоносителя от температуры tH до температуры tк насыщенным водяным паром (рис. 10.27) запишется так:
GctH+Di"=GctK+Di'+Qп;
Q=Gc(tK-tH )+Qп=D(i"-i')+Qп.
Расход греющего пара D=Q/(i"-i').
Коэффициент теплопередачи определяют по формуле (3.1.47), а входящие в эту формулу коэффициенты теплоотдачи α1 и α2 — по соответствующим критериальным уравнениям.
Среднюю движущую силу рассчитывают по формулам (3.1.53) и (3.1.54).
Площадь поверхности теплопередачи определяют по основному уравнению теплопередачи (3.1.3).
Количество труб в теплообменнике n=4F/(πd2вl), где dB - внешний диаметр труб, м; l - длина труб, м. Если количество труб вычисляют по массовому расходу и скорости теплоносителя в трубах, то по этому уравнению рассчитывают длину труб.
Трубки в трубной решетке кожухотрубного теплообменника размещаются в шахматном порядке либо по концентрическим окружностям.

Рис. 10.27. К составлению материального баланса
Диаметр кожухотрубного теплообменника определяют по уравнению (10.30).
Гидравлическое сопротивление теплообменника (в Н/м2 или Па) находят по формуле Дарси — Вейсбаха
![]()
где: λ - коэффициент трения; l - длина трубы, м; d - диаметр трубы, м;
- сумма коэффициентов местных сопротивлений;
- скорость среды, м/с; ρ - плотность среды, кг/м3.
Значения коэффициентов местных сопротивлений для разных участков теплообменника приведены ниже.
Входная или выходная камера (удар и поворот) 1,5
Поворот (180°) между ходами или секциями 2,5
Вход в трубы и выход из них 1
Вход в межтрубное пространство и выход из него 1,5
Поворот в U - образных трубах 0,5
Поворот (180°) через перегородку в межтрубном пространстве 1,5
Поворот (180°) через калач 2
Поперечное движение в межтрубном пространстве
(i — количество рядов труб) 3i/Re 0,2
Круглые змеевики (n — количество витков) 0,5 n
Для выяснения пригодности имеющегося теплообменника для определенного технологического процесса проводят поверочный расчет. Исходными данными для него являются известная площадь поверхности теплообмена F, габаритные размеры, заданная по технологическим условиям тепловая нагрузка Q, температурные условия, скорости движения и физические параметры теплоносителей. Расчет включает определение термического сопротивления при фактических условиях теплообмена и заданной тепловой нагрузке; требующейся средней разности температур Δt тp; располагаемой средней разности температур Δt p; запаса производительности аппарата.
Среднюю разность температур (движущая сила) определяют по заданной тепловой нагрузке и площади поверхности теплопередачи: Δt тp =Q/(KF).
Располагаемую среднюю разность температур находят, исходя из значений температур теплоносителей, определяемых по технологическим требованиям.
Отношение располагаемой средней разности температур к требующейся называется коэффициентом запаса производительности теплообменника: x= Δtp/Δtтp.
Требуемую среднюю разность температур обычно находят для среднеэксплуатационных условий работы теплообменника с учетом коэффициента использования поверхности теплопередачи.
Контрольные вопросы
1. Какие методы нагревания применяют в пищевых производствах? Дайте их краткую характеристику. 2. Из какого уравнения определяют расход теплоносителя для нагревания? 3. Какие способы нагревания насыщенным водяным паром применяют в пищевых производствах? Когда можно применять нагревание острым паром? Как определить расход греющего пара? 4. В каких случаях применяют нагревание топочными газами? Какие недостатки присущи нагреванию топочными газами? 5. Какие способы нагревания электрическим током используют в пищевых производствах? Дайте краткую характеристику этим способам нагревания. 6. Для каких целей применяют испарение в пищевой технологии? Как определить расход теплоты на испарение? 7. Какие хладагенты используют для охлаждения газов, паров и жидкостей? Как вычислить расход охлаждающей воды? 8. При каких условиях происходит конденсация паров и газов? Перечислите виды конденсации. 9. В каких аппаратах осуществляется поверхностная конденсация? От чего зависит расход охлаждающей воды? 10. Чем различаются мокрые и сухие конденсаторы? 11. На каком термодинамическом цикле основана работа парокомпрессионных холодильных машин? 12. Какой цикл компрессора термодинамически более выгоден (сухой или влажный)? 13. Как увеличить холодильный коэффициент парокомпрессионной холодильной машины? 14. Чем газокомпрессионные холодильные машины отличаются от парокомпрессионных? 15. Опишите принципы работы абсорбционной холодильной машины. 16. В каких случаях применяют холодильные растворы, например хлорид натрия? 17. Как классифицируются теплообменники по принципу действия?' 18. На какие типы делятся рекуперативные теплообменники в зависимости от конструкции? 19. Как устроен одноходовой кожухотрубный теплообменник? 20. За счет чего достигается интенсификация в многоходовых кожухотрубных теплообменниках? 21. Какие преимущества и недостатки присущи кожухотрубным теплообменникам? 22. Какой из теплоносителей пропускают по трубам, а какой — в межтрубном пространстве? 23. В каких случаях применяют теплообменники типа «труба в трубе»? Какие преимущества и недостатки присущи этим теплообменникам? 24. Как устроен спиральный теплообменник? Какими преимуществами и недостатками он обладает? 25. Как устроен пластинчатый теплообменник? Какие преимущества и недостатки присущи пластинчатым теплообменникам? 26. В каких случаях применяют теплообменники с ребристыми поверхностями теплообмена? 27. Приведите примеры регенеративных теплообменников. 28. Какие теплообменники по принципу действия относятся к смесительным? 29. Как устроен и работает мокрый прямоточный конденсатор? От чего зависят расход охлаждающей воды и объем воздуха, отсасываемого из конденсатора? 30. Как устроен и работает противоточный сухой конденсатор смешения? 31. От каких величин зависит высота барометрической трубы? В чем ее назначение? 32. Из чего исходят при выборе конструкции теплообменных аппаратов? 33. В чем заключается конструктивный расчет теплообменника? 34. Чем различаются конструктивный и поверочный расчеты теплообменников?







