ГОСТ 8269.0-97
УДК [69+691.224:54](084.74) Ж19
МЕЖГОСУДАРСТВЕННЫЙ СТАНДАРТ
ЩЕБЕНЬ И ГРАВИЙ ИЗ ПЛОТНЫХ ГОРНЫХ ПОРОД И ОТХОДОВ ПРОМЫШЛЕННОГО ПРОИЗВОДСТВА ДЛЯ СТРОИТЕЛЬНЫХ РАБОТ.
МЕТОДЫ ФИЗИКО-МЕХАНИЧЕСКИХ ИСПЫТАНИЙ
MAUNTAINOUS ROCK ROAD-METAL AND GRAVEL,
INDUSTRIAL WASTE PRODUCTS FOR CONSTRUCTION WORKS METHODS OF PHYSICAL AND MECHANICAL TESTS
ОКС 91.100.20
ОКСТУ 5709
Дата введения 1998—07—01
ПРЕДИСЛОВИЕ
1 РАЗРАБОТАН институтом ВНИПИстромсырье с участием институтов Союздорнии, НИИЖБ, АО «ЦНИИС», АО «НИИЭС» Российской Федерации
ВНЕСЕН Госстроем России
2 ПРИНЯТ Межгосударственной научно-технической комиссией по стандартизации, техническому нормированию и сертификации в строительстве (МНТКС) 10 декабря 1997 г.
За принятие проголосовали
Наименование государства | Наименование органа государственного управления строительством |
Азербайджанская Республика Республика Армения | Госстрой Азербайджанской Республики Министерство градостроительства Республики Армения |
Республика Беларусь | Минстройархитектуры Республики Беларусь |
Республика Казахстан | Агентство строительства и архитектурно-градостроительного контроля Министерства экономики и торговли Республики Казахстан |
Кыргызская Республика | Минархстрой Кыргызской Республики |
Республика Молдова | Министерство территориального развития, строительства и коммунального хозяйства Республики Молдова |
Российская Федерация Республика Таджикистан Украина | Госстрой России Госстрой Республики Таджикистан Госкомградостроительства Украины |
3. ВЗАМЕН ГОСТ 3344-83, ГОСТ 7392-85 в части методов физико-механических испытаний, ГОСТ 8269-87
4 ВВЕДЕН в действие с 1 июля 1998 г. в качестве государственного стандарта Российской Федерации постановлением Госстроя России от 6 января 1998 г. № 18-1
Внесены Поправка (ИУС № 4 1999 г.); Изменение № 1, утвержденное Постановлением Госстроя РФ № 000 от 01.01.2001; Поправки (ИУС № 2 2003 г.; ИУС № 1 2004 г.)
ВВЕДЕНИЕ
При разработке настоящего стандарта использованы международные стандарты: ИСО 6274—82 «Бетон — Ситовой анализ заполнителей», ИСО 6782—82 «Заполнители для бетона — Определение насыпной плотности», ИСО 6783—82 «Заполнители крупнозернистые для бетона — Определение плотности частиц и поглощения воды — Метод гидростатического взвешивания».
В подразделе 4.3 использованы положения ИСО 6274—82 в части требований к набору сит и методике испытания при определении зернового состава; в подразделах 4.16, 4.18 — ИСО 6783—82 в части требований к методике испытания при определении средней плотности зерен щебня (гравия) и водопоглощения; в подразделе 4.17 — ИСО 6782—82 в части требований к методике испытания при определении насыпной плотности.
1 ОБЛАСТЬ ПРИМЕНЕНИЯ
Настоящий стандарт распространяется на щебень и гравий [(далее—щебень (гравий)] из плотных горных пород (в том числе попутно добываемых вскрышных и вмещающих пород и некондиционных отходов горных предприятий) и отходов промышленного производства (в том числе из шлаков черной и цветной металлургии и тепловых электростанций) со средней плотностью зерен от 2,0 до 3,0 г/см3, применяемых в качестве заполнителей для тяжелого бетона, а также дорожных и других видов строительных работ, и устанавливает порядок выполнения физико-механических испытаний.
Область применения физико-механических испытаний приведена в приложении А.
2 НОРМАТИВНЫЕ ССЫЛКИ
Используемые в настоящем стандарте ссылки на нормативные документы приведены в приложении Б.
3 ТЕРМИНЫ И ОПРЕДЕЛЕНИЯ
В настоящем стандарте применены следующие тepмины с соответствующими определениями.
Проба — определенное количество материала, отобранное для испытаний от партии горной породы, щебня (гравия).
Точечная проба — проба материала, взятая единовременно из установленных нормативными документами мест партии.
Объединенная проба — проба материала, состоящая из точечных проб и характеризующая партию в целом.
Лабораторная проба — проба материала, приготовленная из объединенной пробы и предназначенная для всех лабораторных испытаний, предусмотренных для данного вида горной породы, щебня (гравия).
Аналитическая проба — проба материала, приготовленная из лабораторной пробы и предназначенная для нескольких видов испытаний. Из аналитической пробы отбирают отдельные навески в соответствии с методикой испытаний. Допускается использование одной аналитической пробы для проведения нескольких видов испытаний, если в процессе предшествующих испытаний другие свойства материала не подвергаются изменению.
4 МЕТОДЫ ФИЗИКО-МЕХАНИЧЕСКИХ ИСПЫТАНИЙ
4.1 ОБЩИЕ ПОЛОЖЕНИЯ
4.1.1 Пробы взвешивают с погрешностью до 0,1 % массы, если в стандарте на щебень (гравий) не даны другие указания.
4.1.2 Пробы, образцы и навески в воздушно-сухом состоянии (состоянии естественной влажности) высушивают до постоянной массы в сушильном шкафу при температуре (105±5) °С до тех пор, пока разница между результатами двух последовательных взвешиваний будет не более 0,1 % массы навески. Каждое последующее взвешивание проводят после высушивания в течение не менее 1 ч и охлаждения не менее 45 мин.
4.1.3 Образцы горной породы для испытаний изготавливают цилиндрической или кубической формы. Линейные размеры образцов измеряют штангенциркулем с погрешностью до 0,1 мм.
Площадь каждого из оснований образца цилиндрической формы вычисляют по среднеарифметическому значению двух взаимно перпендикулярных диаметров.
Для определения площади нижней и верхней граней образца кубической формы определяют среднеарифметические значения длины каждой пары параллельных ребер данной грани.
Высоту образца цилиндрической формы определяют как среднеарифметическое значение результатов измерений четырех образующих цилиндра, расположенных в четвертях его окружности.
Высоту образца кубической формы определяют как среднеарифметическое значение результатов измерений четырех вертикальных ребер.
Площадь поперечного сечения образца определяют как среднеарифметическое значение площадей нижнего и верхнего оснований.
Объем образца определяют как произведение площади поперечного сечения на высоту.
Грани образцов, к которым прикладывают нагрузку пресса, обрабатывают на шлифовальном станке (круге), при этом должна быть обеспечена их параллельность. Правильность формы образцов проверяют стальным угольником, измеряя линейкой или щупом образовавшийся просвет, величина которого не должна превышать 2 мм на 100 мм грани образца.
4.1.4 Результаты испытаний рассчитывают с точностью до второго знака после запятой, если не даны другие указания относительно точности вычисления.
4.1.5 В качестве норм точности результатов испытаний используют ошибку повторяемости Rmах, характеризующую возможные расхождения между результатами испытаний одного материала одним методом в одной лаборатории.
Для вычисления ошибки повторяемости используют не менее 20 пар результатов испытаний в данной лаборатории за последнее время.
Среднеквадратическую (стандартную) ошибку повторяемости Sn определяют по формуле
Sn = 0,886 ·
, (1)
где
— средний размах по всем парам параллельных результатов испытаний.
Средний размах
определяют по формуле
, (2)
где Ri. — абсолютное значение разности между результатами параллельных испытаний i-той пары (размах);
n — общее число пар результатов испытаний (n³20).
Размах Ri определяют по формуле
Ri = X1i - X2i, (3)
где Х1i и Х2i — соответственно первый и второй результаты испытаний в i-й паре.
Правильность определения единичных результатов испытаний оценивают по расхождению между двумя параллельными результатами испытаний Rmax при доверительной вероятности 95 %, которое определяют по формуле
, (4)
Значения Sn и Rmax для соответствующего метода испытаний зависят от конкретной величины результатов испытаний. При попадании результатов испытаний в смежные интервалы для данного метода испытаний Rmax принимают как среднеарифметическое значение величин расхождений.
4.1.6 Для определения зернового состава отдельных фракций щебня (гравия) должны применяться сита с круглыми или квадратными отверстиями на круглых или квадратных обечайках с диаметром или стороной не менее 300 мм. Стандартный набор сит для щебня (гравия) КСИ должен включать сито с квадратными отверстиями размером 1,25 мм по ГОСТ 6613 и сита с круглыми отверстиями диаметрами 2,5; 5(3); 7,5; 10; 12,5; 15; 17,5; 20; 22,5; 25; 30; 40; 50; 60; 70(80) мм.
Для определения размера зерен крупнее 70(80) мм следует применять проволочные кольца-калибры различного диаметра в зависимости от ожидаемой крупности щебня (гравия): 90; 100; 110; 120 мм и более.
(Измененная редакция, Поправка 2003 г.)
4.1.7 При определении показателей качества смеси фракций испытывают отдельно каждую фракцию и определяют средневзвешенное значение X определяемого показателя в соответствии с содержанием фракции в смеси по формуле
, (5)
где х1, х2, ... , xi — значения определяемого показателя;
а1, a2 ... , ai, — содержание данной фракции, %.
4.1.8 Испытания на сжатие образцов горной породы или щебня (гравия) на дробимость в цилиндре должны проводиться на гидравлических прессах по ГОСТ 28840.
Предельная нагрузка пресса Рmax должна быть такой, чтобы ожидаемое значение максимального усилия в процессе испытания укладывалось на шкале пресса от 0,3 до 0,8 Рmax.
4.1.9 Температура помещения, в котором проводят испытания, должна быть (20±5) °С. Перед началом испытания горная порода, щебень (гравий) и вода должны иметь температуру, соответствующую температуре воздуха в помещении.
4.1.10 Воду для проведения испытаний применяют по ГОСТ 23732, если в стандарте не даны указания по использованию дистиллированной воды или других жидкостей.
4.1.11 При использовании в качестве реактивов опасных (едких, токсичных) веществ следует руководствоваться требованиями безопасности, изложенными в нормативных и технических документах на эти реактивы.
4.1.12 Для испытаний (измерений) допускается использование аналогичного импортного оборудования.
Применяемые для испытаний средства измерений и испытательное оборудование, в том числе импортного производства, должны быть поверены, откалиброваны и аттестованы по ГОСТ 8.513, ГОСТ 8.326, ГОСТ 24555.
Нестандартные средства контроля должны пройти метрологическую аттестацию в соответствии с требованиями ГОСТ 8.326.
4.2 ОТБОР ПРОБ
4.2.1 Пробы отбирают с целью проведения приемочного контроля на предприятии (карьере)-изготовителе, входного контроля на предприятии-потребителе, а также для определения свойств горных пород и получаемых из них щебня и гравия при геологической разведке.
4.2.2 Если в правилах приемки конкретного вида продукции не предусмотрен иной порядок отбора проб, то при приемочном контроле на предприятии-изготовителе отбирают точечные пробы, из которых путем смешивания получают одну объединенную пробу от сменной продукции каждой технологической линии.
4.2.3 Отбор точечных проб с технологических линий, транспортирующих продукцию на склад или непосредственно в транспортные средства, осуществляют путем пресечения потока материала на ленточном конвейере или в местах перепада потока материала с помощью пробоотборника или вручную.
При ручном способе пробы отбирают на перепаде потока материала с помощью ручного пробоотборника или с ленты конвейера совком или совковой лопатой при его остановке.
Места отбора проб выбирают для каждого предприятия в зависимости от условий технологического процесса и соблюдения требований техники безопасности.
4.2.4 Точечные пробы отбирают через каждый час. Интервал отбора точечных проб при ручном отборе может быть увеличен, если предприятие-изготовитель выпускает продукцию стабильного качества.
Для установления допустимого интервала отбора проб ежеквартально определяют коэффициент вариации показателей зернового состава и содержания пылевидных и глинистых частиц в течение смены. Для этого отбирают через каждые 15 мин в течение смены точечные пробы массой не менее указанной в 4.2.5. Определяют зерновой состав (полный остаток на контрольном сите с отверстиями диаметром D и содержание зерен размером менее d, равное разности между 100 % и полным остатком на контрольном сите с отверстиями диаметром d), содержание пылевидных и глинистых частиц и определяют среднеарифметическое значение показателя
и коэффициента вариации V показателя по формулам:
; (6)
, (7)
где Хi — результат испытания точечной пробы;
— среднеарифметическое значение показателя;
n — число испытаний.
В зависимости от полученного значения коэффициента вариации устанавливают следующие интервалы отбора точечных проб в течение смены:
2 ч — для коэффициента вариации св.10 до 15 %;
3 ч — » » » до 10 %.
4.2.5 Масса точечной пробы должна быть не менее:
2,5 кг — для щебня (гравия) с наибольшим номинальным размером зерен 10 мм и менее;
5,0 кг — для щебня (гравия) с наибольшим номинальным размером зерен 20 мм и более.
Примечания
1 Если при использовании для отбора проб механического пробоотборника масса точечной пробы окажется меньше указанного значения, то необходимо увеличить число отбираемых проб.
2 При увеличении интервала отбора проб, указанного в 4.2.4, масса отбираемой точечной пробы должна быть увеличена:
при интервале 2 ч — в два раза;
при интервале 3 ч — в четыре раза.
При ручном отборе проб точечную пробу массой не более 10 кг отбирают частями с интервалом не более 1 мин.
(Измененная редакция, Поправка 1999 г.)
4.2.6 После отбора точечные пробы объединяют, тщательно перемешивают и перед отправкой в лабораторию сокращают методом квартования. Для квартования пробы (после ее перемешивания) конус материала разравнивают и делят взаимно перпендикулярными линиями, проходящими через центр, на четыре части. Две любые противоположные четверти берут в пробу. Последовательным квартованием сокращают пробу в два, четыре раза и т. д. до получения такой массы пробы, которая была бы представительной для усредненного качества всей партии, но не менее указанной в таблице 1.
4.2.7 Масса лабораторной пробы при приемочном контроле на предприятии (карьере)-изготовителе должна быть не менее указанной в таблице 1.
Таблица 1
Наибольший номинальный размер зерен Д, мм | Масса пробы, кг |
10 | 5,0 |
20 | 10,0 |
40 | 20,0 |
Св. 40 | 40,0 |
Указанную пробу используют для всех испытаний, предусмотренных при приемочном контроле.
4.2.8 При входном контроле точечные пробы щебня (гравия) отбирают от проверяемой партии при разгрузке железнодорожных вагонов, судов или автомобилей в соответствии с требованиями ГОСТ 8267.
4.2.9 При арбитражной проверке качества щебня (гравия) на складах точечные пробы отбирают с помощью совка или совковой лопаты в местах, расположенных по всей поверхности склада, со дна выкопанных лунок глубиной 0,2—0,4 м. Лунки должны размещаться в шахматном порядке. Расстояние между лунками не должно превышать 10 м.
4.2.10 При проведении ведомственного контроля и государственного надзора за качеством продукции на проверяемых технологических линиях отбирают в течение смены точечные пробы и получают объединенную пробу в соответствии с 4.2.4—4.2.6.
При неудовлетворительных результатах испытаний этой пробы отбирают таким же способом вторую объединенную пробу. При неудовлетворительных результатах испытаний второй пробы партия бракуется.
При удовлетворительных результатах испытаний второй пробы отбирают и испытывают третью пробу, результаты испытаний которой являются окончательными. Оценку качества щебня (гравия) проводят по двум положительным результатам, полученным последовательно.
4.2.11 При проведении периодических испытаний, предусмотренных приемочным контролем, а также при входном контроле и при определении свойств горных пород и получаемых из них щебня и гравия при геологической разведке масса лабораторной пробы должна обеспечивать проведение всех предусмотренных стандартом испытаний, при этом масса лабораторной пробы должна быть не менее чем в два раза больше суммарной массы, необходимой для проведения испытаний.
4.2.12 Для каждого испытания из лабораторной пробы квартованием готовят аналитическую пробу. Из аналитической пробы отбирают навески в соответствии с методикой испытаний.
4.2.13 На каждую лабораторную пробу, предназначаемую для периодических испытаний, в центральной лаборатории объединения или в специализированной лаборатории, а также для контрольных испытаний у потребителя составляют акт отбора проб, включающий наименование и обозначение материала, место и дату отбора пробы, наименование и обозначение предприятия-изготовителя, обозначение пробы и подпись ответственного за отбор пробы лица.
Отобранные пробы упаковывают таким образом, чтобы масса и свойства материалов не изменялись до проведения испытаний.
Каждую пробу снабжают двумя этикетками с обозначением пробы. Одну этикетку помещают внутрь упаковки, другую — на видном месте упаковки.
При транспортировании должна быть обеспечена сохранность упаковки от механического повреждения и намокания.
4.3 ОПРЕДЕЛЕНИЕ ЗЕРНОВОГО СОСТАВА
4.3.1 Зерновой состав щебня (гравия) определяют путем рассева пробы на стандартном наборе сит.
4.3.2 Средства контроля и вспомогательное оборудование
Весы настольные циферблатные по ГОСТ 29329 или лабораторные по ГОСТ 24104.
Шкаф сушильный.
Сита и проволочные круглые калибры с отверстиями, соответствующими номинальным размерам зерен данной фракции: 1,25Д; Д; 0,5 (Д+d); d, а также 2,5 и 1,25 мм.
(Измененная редакция, Поправка 2003 г.)
4.3.3 Порядок подготовки и проведения испытания
Для испытания используют лабораторную пробу без ее сокращения по таблице 1, высушенную до постоянной массы.
Пробу просеивают ручным или механическим способом через сита с отверстиями указанных выше размеров, собранные последовательно в колонку, начиная снизу с сита с отверстиями наименьшего размера, при этом толщина слоя щебня (гравия) на каждом из сит не должна превышать наибольшего размера зерен щебня (гравия).
Продолжительность просеивания должна быть такой, чтобы при контрольном интенсивном ручном встряхивании каждого сита в течение 1 мин через него проходило не более 0,1 % общей массы просеиваемой пробы. При механическом просеивании его продолжительность для применяемого прибора устанавливают в соответствии с указанным выше условием.
При ручном просеивании допускается определять окончание просеивания следующим способом: каждое сито интенсивно трясут над листом бумаги. Просеивание считают законченным, если при этом не наблюдается падение зерен щебня (гравия).
4.3.4 Обработка результатов испытания
По результатам просеивания определяют частный остаток на каждом сите аi, %, по формуле
, (8)
где mi — масса остатка на данном сите, г;
т — масса пробы, г.
Определяют полные остатки на каждом сите в процентах массы пробы, равные сумме частных остатков на данном сите и всех ситах с большими размерами отверстий.
Примечание — После рассева пробу вновь объединяют и используют для приготовления аналитических проб для проведения остальных испытаний.
Рассев несортированного щебня (гравия), а также песчано-гравийной смеси производят с применением полного набора стандартных сит в соответствии с 4.1.6 в порядке, установленном в 4.3.3.
При испытании гравия, загрязненного глиной, рассев производят после предварительной промывки с определением содержания пылевидных и глинистых частиц по 4.5. Содержание пылевидных и глинистых частиц включают при расчете результатов рассева в массу частиц, проходящих через сито с размером отверстий 1,25 мм.
4.4 ОПРЕДЕЛЕНИЕ СОДЕРЖАНИЯ ДРОБЛЕНЫХ ЗЕРЕН В ЩЕБНЕ ИЗ ГРАВИЯ
Содержание дробленых зерен в щебне из гравия оценивают количеством зерен, поверхность которых околота более чем наполовину.
4.4.1 Средства контроля
Весы настольные циферблатные по ГОСТ 29329. Лупа минералогическая по ГОСТ 25706.
4.4.2 Порядок подготовки и проведения испытания
Из лабораторной пробы от каждой фракции испытываемого щебня берут аналитические пробы массой не менее:
0,25 кг — для щебня размером фракции от 5(3) до 10 мм;
1,0 кг — то же св. 10 до 20 мм;
5,0 кг — » св. 20 до 40 мм;
10,0 кг — » св. 40 мм.
Пробу в воздушно-сухом состоянии просеивают через сита с отверстиями размерами, равными D и d, и взвешивают остаток на сите с отверстиями, равными d.
Визуальным осмотром (применяя в необходимых случаях лупу) определяют дробленые зерна, поверхность которых околота более чем наполовину.
4.4.3 Обработка результатов испытания
Дробленые зерна взвешивают и определяют их содержание Щ, %, с точностью до 1% по формуле
, (9)
где т1 — масса дробленых зерен, г;
т — масса остатка на сите с отверстиями, равными d, г.
4.5 ОПРЕДЕЛЕНИЕ СОДЕРЖАНИЯ ПЫЛЕВИДНЫХ И ГЛИНИСТЫХ ЧАСТИЦ
4.5.1 Метод отмучивания
Содержание пылевидных и глинистых частиц в щебне (гравии) определяют по изменению массы пробы после отмучивания пылевидных и глинистых частиц (размер частиц менее 0,05 мм).
4.5.1.1 Средства контроля и вспомогательное оборудование
Весы настольные циферблатные по ГОСТ 29329 или лабораторные по ГОСТ 24104.
Шкаф сушильный.
Сосуд для отмучивания (рисунок 1) или цилиндрическое ведро высотой не менее 300 мм с сифоном.
4.5.1.2 Порядок подготовки и проведения испытания
Берут аналитическую пробу щебня (гравия) массой не менее 5 кг, высушенную до постоянной массы. При этом для испытания щебня (гравия) фракции от 5(3) до 10 мм используют целиком пробу, применяемую при определении зернового состава.
Пробу щебня (гравия) помещают в сосуд для отмучивания или ведро, заливают водой несколько выше уровня щебня и оставляют в таком состоянии до полного размокания глинистой пленки (определяется визуально) на зернах щебня (гравия) или комков глины, если они имеются в пробе.
После этого в сосуд или ведро со щебнем (гравием) доливают воду в таком количестве, чтобы высота слоя воды над щебнем была 200 мм; содержимое сосуда перемешивают деревянной мешалкой и оставляют в покое на 2 мин. Через 2 мин сливают полученную суспензию. При сливе суспензии необходимо оставлять слой ее над щебнем (гравием) высотой не менее 30 мм.
Затем щебень (гравий) вновь заливают водой до указанного выше уровня. Промывку щебня (гравия) в указанной последовательности повторяют до тех пор, пока вода после промывки не будет оставаться прозрачной.
Воду в сосуд для отмучивания щебня (гравия) наливают до верхнего сливного отверстия. Суспензию сливают через два нижних отверстия.

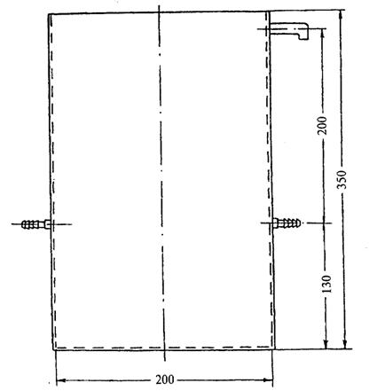
Рисунок 1 — Сосуд для отмучивания
Из ведра суспензию сливают с помощью сифона, конец которого должен быть на расстоянии не менее 30 мм от поверхности щебня (гравия).
После окончания отмучивания промытую пробу высушивают до постоянной массы.
4.5.1.3 Обработка результатов испытания
Содержание в щебне (гравии) пылевидных и глинистых частиц П, % по массе, определяют с точностью до 0,1 % по формуле
, (10)
где т — первоначальная масса пробы, г;
т1 — масса пробы после отмучивания, г.
4.5.2 Пипеточный метод
Содержание пылевидных и глинистых частиц определяют путем выпаривания отобранной пипеткой пробы суспензии, полученной при промывке щебня (гравия), и взвешивания остатка.
4.5.2.1 Средства контроля и вспомогательное оборудование
Весы настольные циферблатные по ГОСТ 29329 или лабораторные по ГОСТ 24104.
Сосуд цилиндрический с двумя метками (поясами) на внутренней стенке, соответствующими объему 5 и 10 л.
Сосуд цилиндрический без меток.
Шкаф сушильный.
Сита с отверстиями размером 3 или 5 и 0,315 мм.
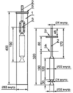
Цилиндры металлические вместимостью до 1000 мл со смотровым окном (рисунок 2) — 2 шт.
Пипетка мерная металлическая вместимостью 50 мл (рисунок 2).
Чашка или стакан для выпаривания по ГОСТ 9147.
Пикнометр по ГОСТ 22524.

1 — цилиндр; 2 — пипетка; 3 — метка на цилиндре (1000 мл);
4 — уровень суспензии в цилиндре; 5 — опорная крышка пипетки
Рисунок 2 — Металлический цилиндр и мерная пипетка
(Измененная редакция, Поправка 2004 г.)
4.5.2.2 Порядок подготовки и проведения испытания
Аналитическую пробу щебня (гравия) массой не менее 5 кг, высушенную до постоянной массы, взвешивают, помещают в сосуд без меток и заливают 4,5 л воды, оставляя около 500 мл воды для последующего ополаскивания ведра.
Залитый водой щебень (гравий) выдерживают в воде 10—15 мин, перемешивая несколько раз деревянной мешалкой, после чего тщательно отмывают его в той же воде от приставших к зернам глинистых частиц. Затем содержимое сосуда осторожно выливают на два сита: верхнее — с отверстиями диаметром 3 или 5 мм, нижнее — с сеткой № 000, поставленные на второе ведро с метками. Суспензии в сосуде с метками дают отстояться и осторожно сливают осветленную воду в первый сосуд. Слитой водой вторично промывают щебень (гравий) на ситах над сосудом с метками, после чего первое ведро ополаскивают оставленной водой и эту воду сливают также во второй сосуд. При этом используют такое количество оставленной воды, чтобы уровень суспензии во втором сосуде не превышал метки 5 л.
Если объем суспензии меньше 5 л, то в нее добавляют воду, доводя объем точно до 5 л (до отметки).
После этого суспензию тщательно перемешивают в сосуде и немедленно наполняют ею два металлических цилиндра вместимостью до 1000 мл. Уровень суспензии в каждом цилиндре должен соответствовать метке на смотровом окне.
Суспензию в каждом цилиндре перемешивают стеклянной или металлической палочкой и несколько раз опрокидывают их, закрывая крышкой, для лучшего перемешивания.
После перемешивания оставляют цилиндр в покое на 1,5 мин. За 5—10 с до окончания этого срока в цилиндр опускают мерную пипетку так, чтобы опорная крышка пипетки опиралась на верхний обод цилиндра, при этом низ воронки пипетки будет находиться на Уровне отбора суспензии —190 мм от поверхности. По истечении 5—10 с открывают трубку пипетки и после ее заполнения закрывают трубку пальцем, извлекают пипетку из цилиндра и, открыв трубку, выливают содержимое пипетки в предварительно взвешенные чашку или стакан. Наполнение пипетки контролируют по изменению Уровня суспензии в смотровом окне.
Суспензию в чашке (стакане) выпаривают в сушильном шкафу при температуре (105±5) °С. Чашку (стакан) с остатком порошка взвешивают с погрешностью до 0,1 г. Аналогично отбирают и обрабатывают пробу из второго цилиндра.
4.5.2.3 Обработка результатов испытания
Содержание пылевидных и глинистых частиц П, % по массе, вычисляют с точностью до 0,1 % по формуле
, (11)
где т — масса аналитической пробы щебня (гравия), г;
т1 — масса чашки или стакана для выпаривания суспензии, г;
m2 — масса чашки или стакана с остатком порошка после выпаривания суспензии, г.
Примечания
1. В случае испытания сильно загрязненного пылевидными и глинистыми частицами щебня (гравия) объем воды для промывки берут равным 10 л. Соответственно увеличивают до 10 л объем суспензии в ведре с метками. При этом П определяют по формуле
, (12)
2. Вместо металлических цилиндров со смотровым окном и специальной пипетки допускается применять стеклянные мерные цилиндры вместимостью 1 л по ГОСТ 1770 и стеклянную пипетку вместимостью 50 мл по ГОСТ 29227 или ГОСТ 29228, которую опускают в цилиндр на глубину 190 мм.
3 Допускается массу остатка порошка после выпаривания суспензии m2 — m1 определять по плотности суспензии по формуле
, (13)
где т3 — масса пикнометра с суспензией, г;
т4— масса пикнометра с водой, г;
r — плотность суспензии, г/см3 (принимается равной 2,65 г/см3).
Результаты определения массы остатка порошка после выпаривания суспензии вносят в формулу (11) или (12).
4.5.3 Метод мокрого просеивания
Содержание пылевидных и глинистых частиц в щебне (гравии) определяют процеживанием через сито суспензии, полученной при промывке щебня (гравия), и вычислением разности в массе пробы до и после испытания.
4.5.3.1 Средства контроля и вспомогательное оборудование
Весы настольные циферблатные по ГОСТ 29329 или лабораторные по ГОСТ 24104.
Сосуд для получения суспензии или цилиндрическое ведро высотой не менее 300 мм с сифоном.
Противень.
Шкаф сушильный.
Сита с сетками № 1,25 и 0,05 по ГОСТ 6613.
4.5.3.2 Порядок подготовки и проведения испытания
Подготовку к испытанию проводят по 4.5.1.2.
Высушенную до постоянной массы пробу щебня (гравия) помещают в сосуд и заливают водой так, чтобы она покрывала пробу. Содержимое сосуда интенсивно перемешивают для того, чтобы пылевидные и глинистые частицы образовали суспензию.
Полученную суспензию осторожно сливают с помощью сифона на набор сит. Щебень (гравий), оставшийся в сосуде, промывают водой и образовавшуюся суспензию также сливают на набор сит. Процесс повторяют до тех пор, пока вода не станет прозрачной. После этого щебень (гравий), находящийся в сосуде для промывки, соединяют с частицами, оставшимися на обоих ситах, и высушивают на противне в сушильном шкафу до постоянной массы.
4.5.3.3 Обработка результатов испытания
Содержание в щебне (гравии) пылевидных и глинистых частиц П, % по массе, определяют с точностью до 0,1 % по формуле
, (14)
где т — масса пробы до промывки, г;
т1 — масса пробы после промывки, г.
4.5.4 Ускоренный фотоэлектрический метод
Метод основан на сравнении степени прозрачности чистой воды и суспензии, полученной при промывке щебня (гравия).
|
Из за большого объема этот материал размещен на нескольких страницах:
1 2 3 4 5 |



