Вычисляем момент инерции стенки

Требуемый момент инерции полок
![]()
Здесь наибольший требуемый момент инерции балки
определяется по двум значениям из условий прочности и жесткости:
· из условия прочности
![]()
· из условия жесткости ![]()
Требуемая площадь сечения полки

Толщина полки из условия обеспечения ее местной устойчивости:

В расчете было принято 
Ширину полки рекомендуется назначать равной
.
Вычисляем
Принимаем
мм что соответствует ширине листа универсальной стали по сортаменту. Подобранное сечение балки показано на рис. 10.
Уточняем собственный вес балки по принятым размерам. Площадь поперечного сечения балки
![]()

Вес погонного метра балки:
![]()
здесь
– удельный вес стали;
– конструктивный коэффициент, учитывающий вес ребер жесткости и сварных швов. Вес главной балки на участке между вспомогательными балками
![]()
Уточняются нагрузки на балку, полученные в табл. 5:
· нормативная
;
· расчетная
![]()
Уточняются усилия.
Изгибающие моменты от нормативных и расчетных нагрузок:
![]()
![]()
Перерезывающая сила на опоре (для пяти грузов в пролете):

Геометрические характеристики сечения балки:
· момент инерции

· момент сопротивления

В зависимости от соотношения площадей полки и стенки
уточняется коэффициент
, учитывающий развитие пластических деформаций. В соответствии с [1, п. 5.18]
а при наличии зоны чистого изгиба (случай четного числа грузов на балке),
Коэффициент
определяется интерполяцией по [1, табл. 66].
В данном примере 
Интерполируя по [1, табл. 66], находим коэффициент ![]()
2.2.3. Проверка прочности главной балки
1. Нормальные напряжения:

В соответствии с требованиями по экономии стали [1, п. 1.9] в составных сечениях недонапряжение не должно превышать 5 %. Недонапряжение равно

2. Касательные напряжения (проверка стенки на срез).
Касательные напряжения проверяются в стенке, в месте крепления опорного ребра без учета работы на срез полок (рис. 11):

а б

Рис. 11. Эпюры касательных напряжений
в стенке балки: а – на опоре; б – в пролете
2.2.4. Проверка прогиба главной балки
Относительный прогиб балки при действии максимального изгибающего момента определяем как

Условие жесткости балки удовлетворяется.
2.2.5. Определение типа сопряжения
вспомогательной и главной балок
Cуммарная высота элементов перекрытия: настила, балки настила, вспомогательной и главной балок
мм.
Ранее была найдена наибольшая строительная высота перекрытия
мм.
Так как
поэтажное сопряжение невозможно. Принимаем сопряжение вспомогательной и главной балок в пониженном уровне (рис. 12).
|
Рис. 12. Схема сопряжения балок в пониженном уровне
2.2.6. Проверка общей устойчивости главной балки
В соответствии с [1, п. 5.16(а)] при наличии стального настила, непрерывно опирающегося на сжатый пояс балки и надежно с ним связанного электросваркой, проверять общую устойчивость балки не требуется.
2.2.7. Изменение сечения балки
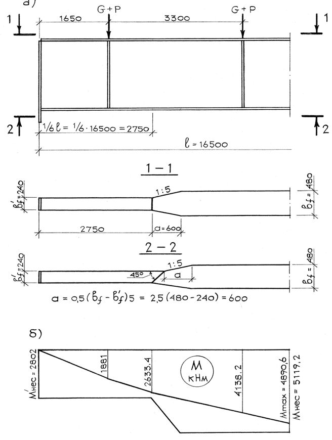
С целью экономии металла уменьшаем сечение приопорного участка балки за счет уменьшения ширины поясов на участке балки от опоры до сечения, расположенного на расстоянии, равном 1/6 пролета балки: 16,5:6 = 2,75 м (рис. 13).
Ширина пояса балки
должна соответствовать ширине листа универсальной стали по сортаменту и быть не менее:
![]()
Здесь
– ширина полки балки в пролете;
– высота главной балки.
В данном примере ![]()
По сортаменту принимаем 
Геометрические характеристики сечения балки на приопорных участках:
– площадь сечения
![]()
– момент инерции

– момент сопротивления
;
– статический момент полки относительно оси x – x
;
– статический момент полусечения относительно оси x – x
.
Расчетные усилия в месте изменения сечения.
Изгибающий момент
![]()
Здесь
– опорная реакция главной балки. Определена ранее.
Перерезывающая сила
![]()
|
|
|
|
|
|
|
|
Рис. 13. Изменение сечения балки (а) и эпюра материалов (б)
Проверка напряжений:
а) в месте изменения сечения:
· максимальные нормальные напряжения

· нормальные напряжения в стенке под полкой (сечение а – а, рис. 14)

· касательные напряжения в стенке под полкой

Приведенные напряжения в стенке под полкой

б) касательные напряжения в опорном сечении балки
.

Рис. 14. Нормальные и касательные напряжения
2.2.8. Проверка прогиба балки с учётом уменьшения её сечения
на приопорных участках
Применяем формулу [3] при изменении сечения балки на расстоянии 1/6 от опоры:

Условие жёсткости балки удовлетворяется.
2.2.9. Расчет поясных сварных швов
Полки составных сварных балок соединяют со стенкой на заводах автоматической сваркой. Сдвигающая сила на единицу длины балки (рис. 15):

|
|
| |||

Рис. 15. К расчету поясных швов: а – сдвиг поясов и стенки при изгибе; б – сдвигающие напряжения t в поясных швах; в – сдвигающая сила Т на единицу длины балки
Для стали С255 по [1, табл. 55] принимаем сварочную проволоку марки Св-08А для выполнения сварки под флюсом. Определяем требуемую высоту катета
углового поясного шва.
1. Расчет шва по металлу
Коэффициент глубины провара шва
[1, табл. 34].
Коэффициент условия работы шва
[1, п. 11.2].
Расчетное сопротивление металла шва
[1, табл. 56]
![]()
2. Расчет шва по металлу границы сплавления
Коэффициент глубины провара шва
[1, табл. 34].
Коэффициент условия работы шва
[1, п. 11.2].
Расчетное сопротивление по металлу границы сплавления
[1, табл. 3 и 51],
тогда ![]()
Сравнивая полученные величины, находим, что
![]()
Высота катета поясного шва должна быть не менее

При толщине более толстого из свариваемых элементов
по [1, табл. 38] принимаем ![]()
2.2.10. Проверка местной устойчивости сжатой полки балки
Местная устойчивость полки будет обеспечена, если отношение
свеса полки
к ее толщине
не превышает предельного значения [1, с. 34, табл. 30]:
где расчетная ширина свеса полки
(рис. 16):


Так как
местная устойчивость поясного листа обеспечена.
2.2.11. Проверка местной устойчивости стенки балки
Для обеспечения устойчивости стенки вдоль пролета балки к стенке привариваются поперечные двусторонние ребра жесткости (рис. 17).

Рис. 17. Поперечные ребра жесткости:
1 – поперечные ребра; 2 – опорное ребро
Расстояние между поперечными ребрами при условной гибкости стенки
не должно превышать
. Условная гибкость стенки определяется по формуле
Ширина ребра
должна быть не менее
а толщина ребра 
В расчете проверяется устойчивость участков стенки – пластинок, упруго защемленных в поясах и ограниченных поперечными ребрами. Потеря их устойчивости может произойти от совместного действия нормальных и касательных напряжений. Устойчивость стенки балки проверять не требуется, если при выполнении условий [1, формула (33)] условная гибкость
при отсутствии местного напряжения.
Вычисляем условную гибкость
.
При
необходима проверка местной устойчивости стенки с установкой поперечных ребер жесткости с шагом не более
![]()
Так как сопряжение балок выполняется в пониженном уровне, предусматриваем установку поперечных ребер с шагом 3,3 м в месте крепления вспомогательных балок. При шаге, равном
, необходима установка дополнительных промежуточных ребер. Поэтому назначаем шаг поперечных ребер жесткости
(рис. 17).
Ширина ребра должна быть не менее:
.
Принимаем 
Толщина ребра 
Принимаем 
Проверка местной устойчивости стенки балки во втором отсеке в месте изменения сечения. Критические нормальные напряжения по [1, формула (75)]:
.
Здесь по [1, табл. 21 и 22] определяем
при
и 
Критические касательные напряжения по [1, формула (76)]:

где
– отношение большей стороны отсека к меньшей (в данном случае
);
– приведенная гибкость стенки

где
– меньшая из сторон отсека (
или
).
Нормальные и касательные напряжения в верхней фибре стенки
(см. рис. 14):
а) нормальные 
б) касательные 
Проверка местной устойчивости стенки по [1, формула (79)]:
;
. Проверка выполняется.
Проверка местной устойчивости стенки балки в первом отсеке (в данном примере на расстоянии 90,5 см от опоры. Изгибающий момент
![]()
где
– опорная реакция главной балки.
Нормальные и касательные напряжения:

.
Проверка местной устойчивости стенки:

Проверка на местную устойчивость выполняется.
Так как к середине пролета нормальные напряжения s возрастают, а касательные напряжения t уменьшаются, проверку устойчивости стенки следует выполнить для всех отсеков. В учебной работе ограничимся выше приведенными проверками.
2.2.12. Расчет опорного ребра главной балки
Принимаем сопряжение балки с колонной шарнирным, с опиранием на колонну сверху. Опорное ребро жесткости крепится сварными швами к стенке балки. Нижний торец опорного ребра балки остроган для непосредственной передачи давления на колонну (рис. 18).
![]() |
Рис. 18. Схема к расчету опорного ребра балки
Толщина опорного ребра определяется из расчета на смятие его торца:

где
– опорная реакция;
– расчетное сопротивление стали смятию торцевой поверхности
[1, табл. 1, 2, 51];
– ширина опорного ребра (принимается равным ширине полки балки на опоре).
Принимаем толщину опорного ребра
а опорный выступ ![]()
Проверка ребра на устойчивость. Площадь расчетного сечения ребра

Момент инерции

здесь 
Радиус инерции сечения ребра 
Гибкость ребра 
Условная гибкость 
Коэффициент продольного изгиба по формуле [1, п. 5.3] при ![]()

Проверка опорного ребра на устойчивость:

Проверка выполняется.
Расчет катета сварных швов крепления ребра к стенке балки (полуавтоматическая сварка)

где
– получено при расчете поясных швов балки.
При толщине более толстого из свариваемых элементов (толщина ребра
) по [1, табл. 38] принимаем катет шва
.
2.2.13. Расчет болтового соединения в месте примыкания
вспомогательной балки к главной
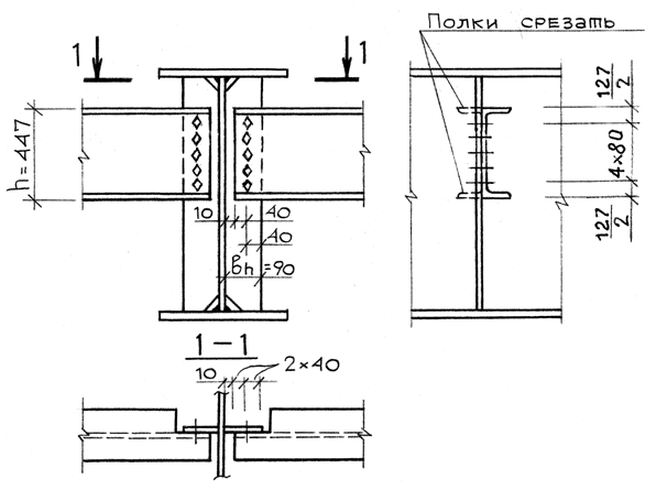
Сопряжение вспомогательной балки с главной выполняется в пониженном уровне (рис. 19).
При шести грузах в пролете опорная реакция вспомогательной балки 
Принимаем болты нормальной точности (класс точности В), класс по прочности – 4.6, диаметром 20 мм (номинальные диаметры болтов, мм: 10, 12, 16, 20, 24, 30). По [1, табл. 58] определяем расчетное сопротивление срезу болтов для класса по прочности 4.8: ![]()

Рис. 19. Соединение вспомогательной балки с главной
Расчетные усилия, которые может выдержать один болт:
а) на срез
![]()
где
– коэффициент условия работы соединения определяется по [1, табл. 35]);
– число срезов болта;
– расчетная площадь сечения болта;
б) на смятие
![]()
где
– коэффициент условия работы соединения [1, табл. 35];
– расчетное сопротивление на смятие для стали при
по [1, табл. 59];
– толщина ребра жесткости (принимается меньшая из толщин: стенки балки или ребра).
Сравнивая пп. а) и б), выбираем меньшее:
Требуемое количество болтов в соединении:

Принимаем 5 болтов диаметром 20 мм, диаметр отверстия d = 22 мм.
Размещая болты, назначаем расстояния вдоль и поперек усилия (опорной реакции вспомогательной балки
): от центра болта до края элемента вдоль усилия
; между центрами болтов вдоль усилия
от центров болтов до торца балки (поперек усилия)
что соответствует требованиям [1, табл. 39] по величине
(![]()
); по величине b (
(
); по величине ![]()
Проверка касательных напряжений в стенке вспомогательной балки с учетом ослабления отверстиями диаметром
под болты по [1, формула (29)]:

Здесь
– перерезывающая сила (опорная реакция вспомогательной балки), 
– высота стенки балки,
– коэффициент ослабления сечения стенки,
– шаг отверстий,
– диаметр отверстий. Проверка стенки вспомогательной балки на срез выполняется.
Для проверки результатов расчетов главной балки на ЭВМ составляются исходные данные (табл. 6).
Строительная высота перекрытия (рис. 20)
![]()
Таблица 6
Исходные данные для проверки расчета
главной балки на ЭВМ
№ | Вводимые параметры | Величина |
1 | Шифр по заданию | 768 |
2 | Высота стенки главной балки hw | 1490 мм |
3 | Толщина стенки tw | 12 мм |
4 | Ширина полки bf | 480 мм |
5 | Толщина полки tf | 22 мм |
6 | Толщина покрытия по главным балкам hп | 613 мм |
7 | Пролет балки настила Lбн | 3300 мм |
8 | Расход металла по главным балкам m | 86,05 кг/м2 |
9 | Толщина настила tн | 6 мм |

|
Из за большого объема этот материал размещен на нескольких страницах:
1 2 3 4 5 6 7 8 |




