Утверждены приказом Минспорттуризма России
от «29 » апреля 2010 г. № 000
ПРАВИЛА ВИДА СПОРТА «ГАНДБОЛ»
ЧАСТЬ 1. ГАНДБОЛ
Правила игры
Правило 1 |
Игровая площадка
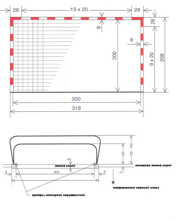
1:1 Игровая площадка (смотри рисунок 1) представляет собой прямоугольник 40 метров длиной и 20 метров шириной, который включает две площади ворот (смотри 1:4 и 6) и игровую зону. Длинные ограничительные линии называются боковыми линиями, короткие называются линиями ворот (между стоек ворот) или внешними линиями ворот (по обеим сторонам ворот).
Вокруг игровой площадки должна располагаться зона безопасности, ширина которой составляет не менее 1 метра вдоль боковых линий и 2 метров за линией ворот.
Характеристики игровой площадки не могут быть изменены в процессе игры в пользу одной из команд.
1:2 Ворота (смотри рисунок 2a и 2b) устанавливают по центру каждой внешней линии ворот. Ворота должны быть надежно закреплены к полу или к стенке сзади них. Внутренние размеры ворот: высота - 2 метра, ширина 3 метра.
Стойки ворот скреплены горизонтальной перекладиной. Задняя кромка стоек ворот должна совпадать с внешней кромкой линии ворот. Стойки ворот и перекладина имеют квадратное сечение со стороной 8 см. Три поверхности ворот, которые можно видеть со стороны площадки, должны быть окрашены поперечными полосами в два контрастных цвета, четко отличающимися от цвета площадки.
Ворота должны иметь сетку, которая крепится таким образом, чтобы мяч, брошенный в ворота, обычно, оставался в воротах.
1:3 Все линии на площадке являются составной частью зон, которые они ограничивают. Линии ворот между стойками ворот должны быть 8 см. шириной (смотри рисунок 2а), в то время как все другие линии должны быть 5 см. шириной.
Линии разделения между двумя соседними зонами могут быть образованы границей различных цветов этих зон.
1:4 Перед каждыми воротами располагается площадь ворот (смотри рисунок 5). Площадь ворот ограничивается линией площади ворот (6-метровая линия), которая проводится следующим образом:
a) непосредственно напротив ворот проводится линия длиной 3 метра параллельно линии ворот на расстоянии 6 метров от нее (измерения проводятся от внешней кромки линии ворот до внешней кромки линии площади ворот);
b) 3-метровую линию соединяют с внешней линией ворот две четверти окружности каждые радиусом 6 метров (измерения проводятся от внутреннего угла внешней стороны стоек ворот); (смотри рисунок 1 и 2а).
1:5 Линия свободных бросков (9-метровая линия) является пунктирной линией и проводится на расстоянии 3-х метров от внешней стороны линии площади ворот. Размеры сегментов линии, как и расстояние между сегментами составляют 15 см. (смотри рисунок 1).
1:6 7-метровая линия – линия длиной 1 метр, проведенная непосредственно напротив ворот, параллельно линии ворот на расстоянии 7 метров от нее (измерения проводятся от внешней кромки линии ворот до внешней кромки 7-метровой линии); (смотри рисунок 1).
1:7 Линия ограничения вратаря (4-метровая линия) – это линия 15 см. длиной, проведенная непосредственно напротив ворот, параллельно линии ворот на расстоянии 4-х метров от нее (измерения проводятся от внешней кромки линии ворот до внешней кромки 4-метровой линии); (смотри рисунок 1).
1:8 Центральная линия соединяет середины двух боковых линий (смотри рисунок 1 и 3).
1:9 Линия замены (часть боковой линии) для каждой команды включает участок боковой линии от центральной линии до точки, расположенной на расстоянии 4,5 метра от центральной линии. Линия замены заканчивается линией, которая проводится параллельно центральной линии на 15 см внутрь от боковой линии и на 15 см с внешней ее стороны (смотри рисунок 1 и 3).
Замечание:
Более подробные технические требования, предъявляемые к игровой площадке и воротам, можно найти в Руководстве по игровой площадке и воротам со страницы 95.
Рисунок 1: Игровая площадка
Игровая площадка: смотри также рис. 5 (Размеры даны в см).

Рисунок 2a: Ворота
Рисунок 2b: Ворота – вид сбоку

Рисунок 3: Линии и площадь замены

Стол секундометриста и секретаря и скамейки запасных расположены таким образом, чтобы секундометрист / секретарь могли видеть линии замены. Стол должен быть расположен ближе к боковой линии чем скамейки запасных, но не ближе 50 см. от нее.
Правило 2 |
Игровое время,
Финальный сигнал и Тайм-аут
Игровое время
2:1 Основное время игры для всех команд с игроками в возрасте от 16 лет и старше составляет два тайма по 30 минут. Время перерыва между таймами составляет 10 минут.
Основное время игры для детских команд в возрасте 12-16 лет составляет 2 х 25 минут, для детских команд в возрасте 8-12 лет составляет 2 х 20 минут. В обоих случаях время перерыва между таймами обычно составляет 10 минут.
2:2 Дополнительное время игры назначается после пятиминутного перерыва, если после основного времени игра закончилась вничью и необходимо выявить победителя. Дополнительное время включает два тайма по 5 минут с одноминутным перерывом между ними.
Если же после первого дополнительного времени вновь не будет выявлен победитель, то после пятиминутного перерыва назначается второе дополнительное время. Это дополнительное время также включает два тайма по 5 минут с одноминутным перерывом.
Если же и в этом случае игра закончилась вничью, то победитель определяется в соответствии с регламентом данных соревнований. Если же для определения победителя необходимо будет использовать 7-метровые броски, то эта процедура должна быть следующей.
Комментарий:
Если используются 7-метровые броски при ничейном счете, то удаленные, дисквалифицированные и исключенные игроки не имеют право принимать участие до конца игры. Каждая команда назначает по 5 игроков. Эти игроки имеют право выполнить по одному броску поочередно с игроками соперника. При этом в команде не требуется устанавливать заранее поочередность выполнения бросков игроками. Вратари команд могут свободно меняться и допускается замена вратаря игроком, который имеет право принимать участие в игре. Игроки могут принимать участие как в выполнении 7-метрового броска, так и в качестве вратаря.
Выбор ворот производят судьи. Судьи также определяют команду, которая будет выполнять бросок первой или второй с помощью жеребьевки. Данная очередность сохраняется и для последующих бросков, даже если после первой серии не будет выявлен победитель.
В этом случае каждая команда опять назначает по пять игроков для выполнения бросков. Допускается использовать всех игроков или некоторых из тех, которые принимали участие в первой серии. Методика назначения по пять игроков для выполнения бросков используется до момента определения победителя. Однако, теперь для определения победителя достаточно разницы в один гол после каждой серии по одному броску.
Если в этот период игроки допускают грубое или повторяющееся неспортивное поведение, то они подлежат дисквалификации (16:13). Если этот игрок входит в состав пяти игроков, которые будут выполнять 7-метровые броски, то его заменяют на другого игрока данной команды.
Финальный сигнал
2:3 Игровое время начинается по свистку судьи в поле на исходный начальный бросок. Оно заканчивается по финальному сигналу, который срабатывает автоматически по информационному счетчику времени или по сигналу секундометриста. В случае отсутствия такого сигнала, судья подает свисток на окончание времени игры самостоятельно (17:9).
Комментарий:
В случае отсутствия информационного счетчика времени с автоматической финальной сиреной, секундометрист использует настольные часы или секундомер и сам подает финальный сигнал (18:2, 2-й абзац).
2:4 Если имело место нарушение правил или неспортивное поведение до или во время финального сигнала (на окончание тайма или игры, аналогично и при добавочном времени), то наказания должны быть и после сигнала, также если назначенный свободный бросок (согласно Правилу 13:1) или 7-метровый бросок не был выполнен до финального сигнала.
Аналогично, бросок необходимо повторить, если финальный сигнал (на окончание тайма или игры, также и при добавочном времени) прозвучал во время выполнения свободного или 7-метрового броска, или когда мяч находился уже в воздухе.
В обоих случаях судьи заканчивают игру только после того, как свободный или 7-метровый бросок будет выполнен (или повторен), и его результат будет установлен.
2:5 При выполнении свободных бросков (или при их повторе) в соответствии с Правилом 2:4, имеют место специальные ограничения для размещения игроков и их замене. В отличие от обычной ситуации, описанной в Правиле 4:4, разрешена замена одного игрока и только команде, выполняющей бросок. Игроки, нарушившие данное требование, подлежат наказанию согласно Правилу 4:5, 1-й абзац. Кроме этого, все игроки команды, выполняющей бросок, должны находиться не ближе 3 метров от игрока, выполняющего бросок, и за пределами линии свободных бросков соперника (13:7, 15:6; смотри также Методические рекомендации № 1).
Расположение игроков защиты описано в Правиле 13:8.
2:6 Игроки или официальные лица подлежат персональному наказанию за нарушения правил или неспортивное поведение, которые имели место при выполнении свободного или 7-метрового броска, что подробно изложено в Правиле 2:4-5. Однако, за нарушения, которые имеют место во время выполнения таких бросков, не может быть назначен свободный бросок в противоположном направлении.
2:7 Если судьи констатируют, что секундометрист подал финальный сигнал (на окончание тайма или игры) слишком рано, то они обязаны оставить игроков на площадке и доиграть оставшееся время.
Команда, которая владела мячом, когда прозвучал преждевременный сигнал, сохраняет право владения мячом при возобновлении игры. Если мяч не был в игре, то игра возобновляется броском в соответствии с прерванной ситуацией. Если же мяч был в игре, то игра возобновляется свободным броском в соответствии с Правилом 13:4a-b.
Если первый тайм игры (или тайм дополнительного времени) продолжался дольше положенного времени, то второй тайм должен быть сокращен на соответствующее время. Если же второй тайм игры (или тайм дополнительного времени) продолжался дольше, то судьи в этом случае не вносят каких-либо изменений.
Тайм-аут
2:8 Тайм-аут является обязательным, при:
a) 2-минутном удалении, дисквалификации или исключении;
b) предоставлении командного Тайм-аута;
c) свистке секундометриста или технического делегата;
d) обсуждении судьями создавшейся ситуации в соответствии с Правилом 17:7.
Тайм-аут также предоставляется в определенных других ситуациях, в зависимости от создавшихся условий (смотри Методические рекомендации № 2).
Нарушения во время Тайм-аута должны иметь такие же последствия, как и в игровое время (16:13, 1-й абзац).
2:9 В принципе, судьи решают, когда останавливать время и предоставлять тайм-аут. Секундометрист останавливает игровое время, когда судьи подают три коротких свистка, сопровождая их жестом № 16.
Однако, когда тайм-аут является обязательным, после свистка секундометриста или технического делегата (2:8 b-c), секундометрист обязан остановить часы немедленно сразу же по свистку без вмешательства судей.
Свисток на возобновление игры после тайм-аута является обязательным (15:5 b).
Комментарии:
По свистку секундометриста / технического делегата игра должна быть остановлена. Даже если судьи (игроки) сразу же не поняли, что игра остановлена, любые события на площадке после свистка считаются недействительными. Это означает, что если даже заброшен мяч в ворота после свистка от столика, то гол не должен быть засчитан. Соответственно и решения судей назначить 7-метровый бросок, свободный бросок, бросок из-за боковой линии, начальный бросок или бросок вратаря являются также недействительными. Игра возобновляется в соответствии с ситуацией на площадке, которая имела место в момент сигнала секундометриста / технического делегата. (Необходимо помнить, что типичными случаями прерывания игры по свистку от столика являются запрос на командный Тайм-аут и нарушение замены).
Однако, все персональные наказания, которые имели место в период между свистком от столика и моментом остановки игры судьями, остаются в силе. Это правило действует независимо от типа нарушения и строгости наказания.
2:10 Каждая команда имеет право на получение минутного командного тайм-аута по одному в каждом тайме основного времени игры, но не в дополнительное время (Методические рекомендации № 3).
Правило 3.
Мяч
3:1 Мяч изготавливается из кожи или из синтетического материала. Он должен быть круглым. Оболочка не должна быть скользкой и блестящей (17:3).
3:2 Размеры мяча, т. е. его окружность и вес, для различных возрастных категорий команд должны быть следующими:
- 58-60 см и 425-475 г (Размер 3 ИГФ) для мужских и юношеских команд (старше 16 лет);
- 54-56 см и 325-375 г (Размер 2 ИГФ) для женских команд, команд девушек (старше 14 лет) и команд юношей (от 12 до 16 лет);
- 50-52 см и 290-330 г (Размер 1 ИГФ) для команд девочек (от 8 до 14 лет) и мальчиков (от 8 до 12 лет).
Комментарии:
Технические требования для мячей, используемых во всех официальных международных и континентальных соревнованиях, содержатся в Регламенте ИГФ по мячам.
Размер и вес мячей, используемых для Мини-Гандбола, не регламентируются в обычных правилах игры.
3:3 На каждую игру должно быть предоставлено, по крайней мере, два мяча. Запасные мячи должны находиться непосредственно у стола секундометриста на протяжении всей игры. Мячи должны соответствовать требованиям Правил 3:1-2.
3:4 Судьи решают, когда необходимо будет использовать запасной мяч. В этих случаях судьи должны ввести в игру запасной мяч как можно быстрее, чтобы уменьшить время перерыва и избежать тайм-аута.
Правило 4 |
Команда, Запасные игроки, Игровая форма.
Команда
4:1 Команда состоит из 14 игроков.
Не более 7 игроков одновременно могут находиться на игровой площадке. Остальные игроки являются запасными.
На протяжении всего времени игры команда должна иметь на площадке одного из игроков в качестве вратаря. Игрок, который является вратарем, может в любое время стать полевым игроком. Аналогично и полевой игрок может в любое время стать вратарем (смотри, однако, Правила 4:4 и 4:7).
В начале игры команда должна иметь не менее 5 игроков на игровой площадке.
Количество игроков команды может быть увеличено до 14 в любой момент на протяжении игры, включая и дополнительное время.
Игра может быть продолжена, если даже число игроков команды на игровой площадке становится меньше 5. Только судьи могут принять решение, где и когда игра должна будет окончательно остановлена (17:12).
4:2 На протяжении всей игры в команде может быть не более 4 официальных лиц. Эти официальные лица не могут быть заменены на протяжении всей игры. Один из них должен быть заявлен как «официальный представитель команды». Только он имеет право обращаться к секундометристу / секретарю и, возможно, к судьям (смотри, однако, Методические рекомендации № 3: командный тайм-аут).
В основном, официальным лицам команды не разрешается выходить на игровую площадку во время игры. Нарушения этого правила рассматриваются как неспортивное поведение (смотри 8:4, 16:1с, 16:3d и 16:6а). Игра возобновляется выполнением свободного броска командой соперника (13:1a-b; смотри, однако, Методические рекомендации № 9).
«Официальный представитель команды» несет ответственность, чтобы во время игры на скамейке запасных не было никого кроме записанных в протоколе матча (максимум 4) официальных лиц команды и игроков, которые имеют право принимать участие в игре (смотри 4:3). За нарушение этого правила «официальный представитель команды» подлежит прогрессивному наказанию (16:1с, 16:3d и 16:6а).
4:3 Игрок или официальное лицо команды имеет право принимать участие в игре, если его фамилия внесена в протокол матча, и он присутствует перед началом матча.
Игроки и официальные лица команды, которые прибыли после начала матча, должны получить разрешение на участие у секретаря или секундометриста, и их фамилии должны быть внесены в протокол.
Игрок, имеющий право играть, в принципе, может в любое время выйти на игровую площадку через линию собственной зоны замены (смотри, однако, 4:4 и 4:6).
«Официальный представитель команды» несет ответственность, чтобы на игровую площадку выходили только игроки, имеющие право играть. Случаи нарушения этого требования рассматриваются как неспортивное поведение «официального представителя команды» (13:1a-b, 16:1c, 16:3d и 16:6а; смотри, однако, Методические рекомендации № 9).
Запасные игроки
4:4 Запасные игроки могут многократно и в любое время выходить на игровую площадку (смотри, однако, Правило 2:5) без разрешения секундометриста / секретаря, как только заменяемые игроки покинут игровую площадку (4:5).
Заменяемые игроки должны всегда выходить на игровую площадку и покидать ее только через линию собственной зоны замены (4:5). Эти требования также относятся и к замене вратарей (смотри также 4:7 и 14:10).
Правила замены действуют также и при тайм-ауте (за исключением командного тайм-аута).
Комментарии:
Наличие “линии замены” дисциплинирует процесс замены. Но при этом не следует наказывать в ситуациях, когда игрок заступает за боковую линию или внешнюю линию ворот в безобидной ситуации, не получая при этом никакого преимущества. Например, чтобы взять воду или салфетку со скамейки запасных за пределами линии замены, или когда удаленный игрок выходит с игровой площадки, пересекая боковую линию напротив скамейки запасных, но за пределами линии замены. Незаконное использование зоны за пределами игровой площадки отдельно рассматривается в Правиле 7:10.
4:5 Игрок, допустивший нарушения правил замены, удаляется на 2 минуты. Если более одного игрока одной команды нарушают правила замены в одной ситуации, то только первый игрок, допустивший нарушения, должен быть наказан.
Игра возобновляется свободным броском командой соперника (13:1a-b; смотри, однако, Методические рекомендации № 9).
4:6 Если дополнительный игрок вышел на игровую площадку без замены, или если игрок противозаконно вмешивается в игровую ситуацию из зоны запасных, то он должен быть удален на 2 минуты. Команда на игровой площадке в течение следующих 2-х минут сокращается на одного игрока (независимо оттого, что вышедший на площадку дополнительный игрок должен будет покинуть игровую площадку).
Если удаленный игрок вышел на игровую площадку до окончания времени 2-минутного удаления, то он должен быть удален дополнительно на 2 минуты. При этом, кроме удаленного игрока, команда сокращается еще на одного игрока в течение времени, которое оставалось у удаленного игрока до выхода на игровую площадку после первого удаления.
В обоих случаях игра возобновляется свободным броском команды соперника (13:1a-b; смотри, однако, Методические рекомендации № 9).
Игровая форма
4:7 Все полевые игроки команды должны иметь единую игровую форму. Комбинация цветов и дизайн формы двух команд должен четко отличаться друг от друга. Все игроки, которые выполняют функцию вратаря, должны иметь одинаковую по цвету форму, цвет которой четко отличается от цвета формы полевых игроков обеих команд и вратаря(ей) команды соперника (17:3).
4:8 Игроки должны иметь номера по крайней мере 20 см высотой на спине футболки и по крайней мере 10 см впереди. Используемые номера должны быть от 1 до 20. Игроки, которые выполняют обязанности как полевого игрока, так и вратаря, должны иметь один и тот же номер.
Цвет номеров должен четко отличаться от цветов и дизайна футболки.
4:9 Игроки должны быть обуты в спортивную обувь.
Не разрешается использовать предметы, которые могли бы быть опасными для игроков. Например, к ним относятся защита для головы, маски для лица, браслеты, наручные часы, кольца, видимые пирсинги, ожерелья и цепочки, серьги, очки без защиты или в жесткой оправе или любые другие предметы, которые могут быть опасными (17:3). Можно допустить ношение плоских колец, маленьких сережек, видимых пирсингов, если они закрыты таким образом, что больше не будут представлять опасности для других игроков. Также допускается ношение мягкой повязки на голове из синтетического материала.
Игроки, которые не выполняют эти требования, к игре не допускаются, пока не устранят указанные недостатки.
4:10 Если имеет место кровотечение у игрока или наличие крови на его теле или форме, то этот игрок должен самостоятельно и немедленно покинуть игровую площадку (согласно правилам замены), чтобы остановить кровотечение, обработать рану, удалить кровь с тела или формы. Игрок не имеет права возвращаться на игровую площадку, пока не будут выполнены эти требования.
Если же игрок пытается не выполнить решение судей в соответствии с изложенными требованиями, то его поведение считается неспортивным (8:4, 16:1с и 16:3с).
4:11 Если имеет место травма игрока, то судьи могут разрешить (используя жесты №16 и 17) двум лицам, которые имеют право участвовать в игре (смотри 4:3), выйти на игровую площадку во время тайм-аута с целью оказания помощи травмированному игроку своей команды.
Если же на игровую площадку выйдут дополнительные лица после того, как два представителя команды уже вышли на игровую площадку, то они должны быть наказаны за нарушения правила выхода на игровую площадку. Если это игроки, то они подлежат наказанию в соответствии с Правилом 4:6 и 16:3а, если это официальные лица, то они подлежат наказанию в соответствии с Правилами 4:2, 16:1с, 16:3d и 16:6а. Если представители команды, которым было разрешено выйти на игровую площадку, вместо того, чтобы оказывать помощь травмированному игроку, консультируют игроков, приближаются к соперникам, судьям и т. д., то они должны быть немедленно наказаны за неспортивное поведение (16:1с, 16:3c-d и 16:6а).
Правило 5 |
Вратарь
Вратарю разрешается:
5:1 касаться мяча любой частью тела в процессе защиты в пределах площади ворот;
5:2 передвигаться с мячом в пределах площади ворот без соблюдения ограничений для полевых игроков (7:2-4, 7:7); однако, вратарю не разрешается задерживать выполнение броска вратаря (6:4-5, 12:2 и 15:5b);
5:3 покидать площадь ворот без мяча и принимать участие в игре в игровой зоне; при этом вратарь подчиняется общим правилам для игроков в игровой зоне;
Считается, что вратарь покинул площадь ворот, как только он любой частью тела коснется площадки за пределами линии площади ворот;
5:4 покидать площадь ворот с мячом и снова играть им в игровой зоне, если он не контролировал мяч.
Вратарю не разрешается:
5:5 подвергать опасности соперника в процессе защиты ворот (8:2, 8:5);
5:6 покидать площадь ворот с мячом, находящимся под его контролем; при нарушении этого требования назначается свободный бросок (согласно 6:1, 13:1а и 15:7, 3-й абзац), если судьи уже подали свисток на выполнение броска вратаря; иначе бросок вратаря следует просто повторить (15:7, 2-й абзац); однако, смотри трактовку правила преимущества согласно 15:7, если вратарь теряет мяч за пределами площади ворот, после того как он пересек линию площади ворот с мячом в руках;
5:7 касаться мяча, находясь в пределах площади ворот, если мяч лежит в игровой зоне или катится по ней за пределами площади ворот (6:1, 13:1а);
5:8 брать мяч, находясь в пределах площади ворот, если он лежит или катится по полу за пределами площади ворот (6:1, 13:1а);
5:9 возвращаться с мячом в площадь ворот из игровой зоны (6:1, 13:1а);
5:10 касаться мяча стопой или ногой ниже колена, когда он лежит на полу в пределах площади ворот или движется в направлении игровой зоны (13:1а);
5:11 пересекать линию ограничения вратаря (4-метровая линия) или ее продолжение по обе стороны, пока мяч не покинул руку соперника, выполняющего 7-метровый бросок (14:9).
Комментарий:
Пока одна стопа вратаря находится на полу на линии ограничения или перед нею (4-метровая линия), ему разрешается переносить другую стопу или любую часть своего тела по воздуху над этой линией и за ее пределы.
Правило 6 |
Площадь ворот
6:1 Только вратарю разрешается находиться в площади ворот (смотри, однако, 6:3). Считается, что полевой игрок заступил в площадь ворот, которая включает и линию площади ворот, если он касается ее любой частью своего тела.
6:2 Если полевой игрок заступает в площадь ворот, то должны быть приняты следующие решения:
а) бросок вратаря, если полевой игрок команды нападения с мячом заступил в площадь ворот, или если игрок без мяча заступил в площадь ворот и тем самым создал себе преимущество (12:1);
b) свободный бросок, если полевой игрок команды защиты заступил в площадь ворот и тем самым создал себе преимущество, но не сорвал голевую атаку (13:1b; Смотри также Методические рекомендации № 5:1);
c) 7-метровый бросок, если полевой игрок команды защиты заступил в площадь ворот и благодаря этому сорвал явную возможность взятия ворот (14:1а).
6:3 Использование площади ворот не наказывается, если:
а) игрок заступает в площадь ворот после передачи мяча, и это не приводит к потере преимущества для соперника;
b) игрок одной из команд без мяча заступает в площадь ворот и не получает преимущество;
6:4 Мяч считается “вне игры”, если вратарь контролирует его своими руками в площади собственных ворот (12:1). Мяч должен быть возвращен в игру броском вратаря (12:2).
6:5 Мяч остается в игре, пока он катится по полу в пределах площади ворот. Он будет принадлежать команде вратаря, как только вратарь сможет коснуться его. Вратарь может поднять его, после чего мяч считается вне игры, и затем возвратить его в игру согласно 6:4 и 12:1-2 (смотри, однако, 6:7b). Если к катящемуся мячу прикоснется игрок команды вратаря, то назначается свободный бросок (13:1a, смотри, однако, 14:1а в связи с Методическими рекомендациями № 8с), если же к мячу прикоснется игрок соперника, то игра будет продолжена броском вратаря (12:1 (iii)).
Мяч находится вне игры, если он лежит на полу в площади ворот (12:1 (ii)). Он принадлежит команде вратаря и только вратарь имеет право касаться его. Вратарь должен возвратить мяч в игру согласно 6:4 и 12:2 (смотри, однако, 6:7b). Бросок вратаря также выполняется, если к мячу прикоснулся любой другой игрок той или иной команды (12:1, 2-й абзац, 13:3).
Разрешается касаться мяча, если он находится в воздухе над площадью ворот.
6:6 Игра должна быть продолжена (броском вратаря в соответствии с 6:4-5), если игрок защищающейся команды в процессе защиты касается мяча, который затем ловит вратарь, или если мяч остается лежать в площади ворот.
6:7 Если игрок отыгрывает мяч в площадь собственных ворот, то решения должны быть следующие:
а) гол, если мяч попадает в ворота;
b) свободный бросок, если мяч остается лежать в площади ворот, или если вратарь касается мяча и он не попадает в ворота (13:1а-b);
c) бросок из-за боковой линии, если мяч выходит за пределы внешней линии ворот (11:1);
d) игра продолжается, если мяч пересек площадь ворот и вернулся обратно в игровую зону, при этом вратарь не касался его.
6:8 Мяч, вернувшийся в игровую зону из площади ворот, остается в игре.
Правило 7 |
Игра мячом, Пассивная игра.
Игра мячом
Разрешается:
7:1 бросать, ловить, останавливать, толкать или ударять мяч, используя ладони (открытые или закрытые), руки, голову, корпус, бедра и колени;
7:2 держать мяч максимально 3 секунды, даже если он лежит на полу (13:1а);
7:3 делать максимально 3 шага с мячом (13:1а); один шаг считается сделанным, если:
а) игрок, стоящий обеими ногами на полу, отрывает одну ступню от пола и вновь ставит ее на пол, или передвигает одну ступню с одного места на другое;
b) игрок, касаясь пола только одной ступней, ловит мяч, а затем касается пола другой ступней;
c) игрок после прыжка касается пола только одной ступней, затем сделал прыжок на той же ступне или коснулся пола другой ступней;
d) игрок после прыжка касается пола обеими ступнями одновременно и после этого отрывает одну ступню и снова ставит ее на пол, или передвигает одну ступню с одного места на другое.
Комментарий:
Считается только один шаг, если одну ступню передвинуть с одного места на другое, а затем другую ступню подтянуть к ней.
7:4 в статическом положении или в движении:
а) ударить мяч об пол один раз и снова поймать его одной или двумя руками;
b) многократно ударять мяч об пол одной рукой (дриблинг), а затем поймать или поднять его снова одной или двумя руками;
c) Катить мяч по полу, многократно касаясь его одной рукой, а затем поймать или поднять его снова одной или двумя руками.
Как только мяч после этого будет пойман одной или двумя руками, то необходимо будет сыграть им в течение трех секунд или после не более трех шагов (13:1а).
Ведение или дриблинг начинается с того момента, когда игрок касается мяча любой частью тела и направляет его к полу.
После того как мяч коснулся другого игрока или ворот, игроку вновь разрешается поймать мяч или сделать ведение и вновь поймать его (смотри, однако, 14:6).
7:5 перекладывать мяч из одной руки в другую;
7:6 играть мячом, стоя на коленях, сидя или лежа на полу; это означает, что можно выполнить и броски из такого положения (например, свободный бросок), но при этом надо помнить, что, согласно Правилу 15:1, часть стопы одной ноги должна находиться на полу.
Не разрешается:
7:7 после того как мяч взят под контроль, касаться мяча более одного раза, прежде чем он коснется пола, другого игрока или ворот (13:1а); однако касание более одного раза не наказывается, если игрок не смог сразу взять мяч под контроль при попытке поймать или остановить его;
7:8 касаться мяча ступней, ногой ниже колена, за исключением случая, когда мяч брошен соперником в ногу игрока (13:1а-b);
7:9 Игра продолжается, если мяч коснулся судьи на игровой площадке.
7:10 Выходить игроку с мячом за пределы игровой площадки одной или двумя ногами (пока мяч еще остается в пределах игровой площадки), например, при уходе от игрока защиты. В этом случае назначается свободный бросок в пользу команды защиты (13:1а).
Если же игрок команды, владеющей мячом, использует зону за пределами игровой площадки без мяча, то судьи жестом должны заставить данного игрока вернуться на игровую площадку. Если же игрок не выполняет требование судьи, или же он повторяет данное нарушение через некоторое время, то назначается свободный бросок для соперника (13:1а) без каких либо предупреждений. Персональные наказания в этом случае не применяются согласно Правилам 8 и 16.
Пассивная игра
7:11 Команде не разрешается удерживать мяч без видимых попыток атаковать или выполнить бросок по воротам. Аналогично, команде не разрешается многократно затягивать выполнение начального броска, свободного броска, броска из-за боковой линии или броска вратаря (смотри Методические рекомендации № 4). Это расценивается как пассивная игра, и команда, владеющая мячом, наказывается свободным броском, если она не прекращает пассивную игру (13:1а).
Свободный бросок выполняется с места, где находился мяч в момент остановки игры.
7:12 Если имеет место тенденция к пассивной игре, то используется предупредительный жест (жест № 18). Тем самым команде, владеющей мячом, предоставляется возможность изменить методы ведения атаки и избежать потери мяча. Если атакующие действия не изменились после предупредительного жеста и нет броска по воротам, то назначается свободный бросок против команды, которая владеет мячом (смотри Методические рекомендации № 4).
В определенных ситуациях судьи могут назначить свободный бросок против команды, владеющей мячом, и без использования предупредительного жеста, например, когда игрок умышленно отказывается от попытки использовать явную возможность взятия ворот.
Правило 8 |
Нарушения и Неспортивное поведение
Разрешается:
8:1 а) использовать руки и кисти рук для блока или овладения мячом;
b) использовать открытую ладонь для отбора мяча у соперника с любой стороны;
c) использовать корпус для заслона сопернику, даже если он не владеет мячом;
d) вступать в физический контакт с соперником спереди и касаться его руками для контроля за его передвижениями.
Не разрешается:
8:2 а) вырывать или выбивать мяч из рук соперника;
b) блокировать или отталкивать соперника ладонями, руками или ногами;
c) задерживать или держать (за корпус или за форму), толкать, набегать и напрыгивать на соперника;
d) подвергать соперника опасности (с мячом или без мяча).
|
Из за большого объема этот материал размещен на нескольких страницах:
1 2 3 4 5 6 |




