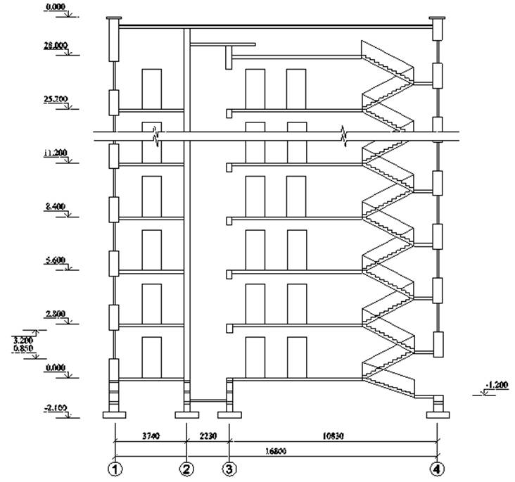
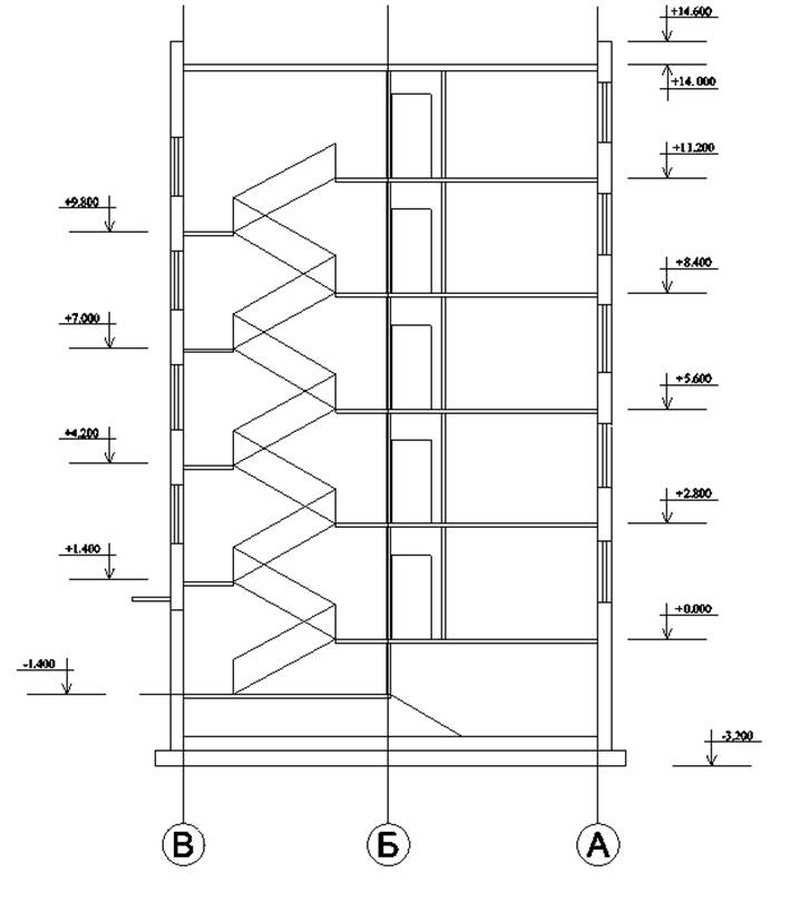
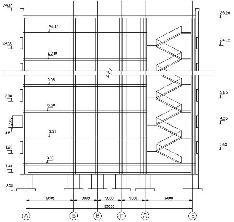
Разрез в осях 1-4

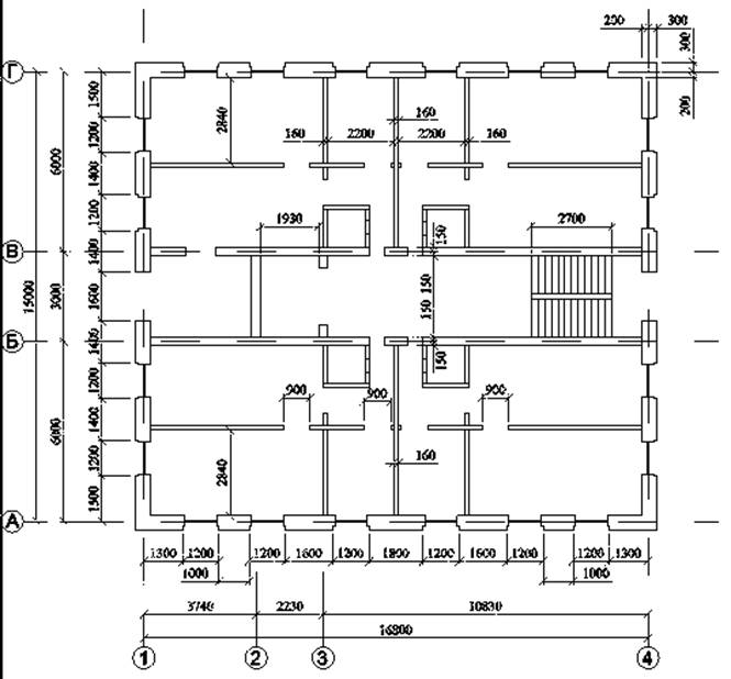
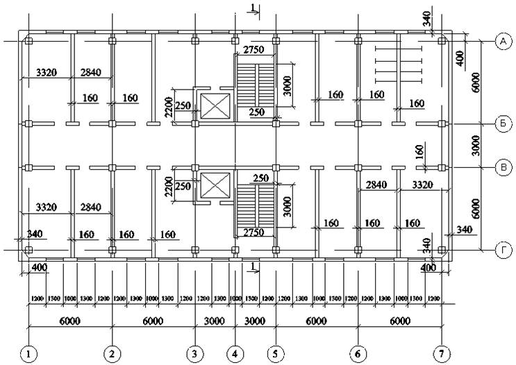
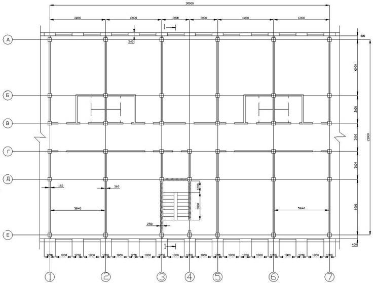
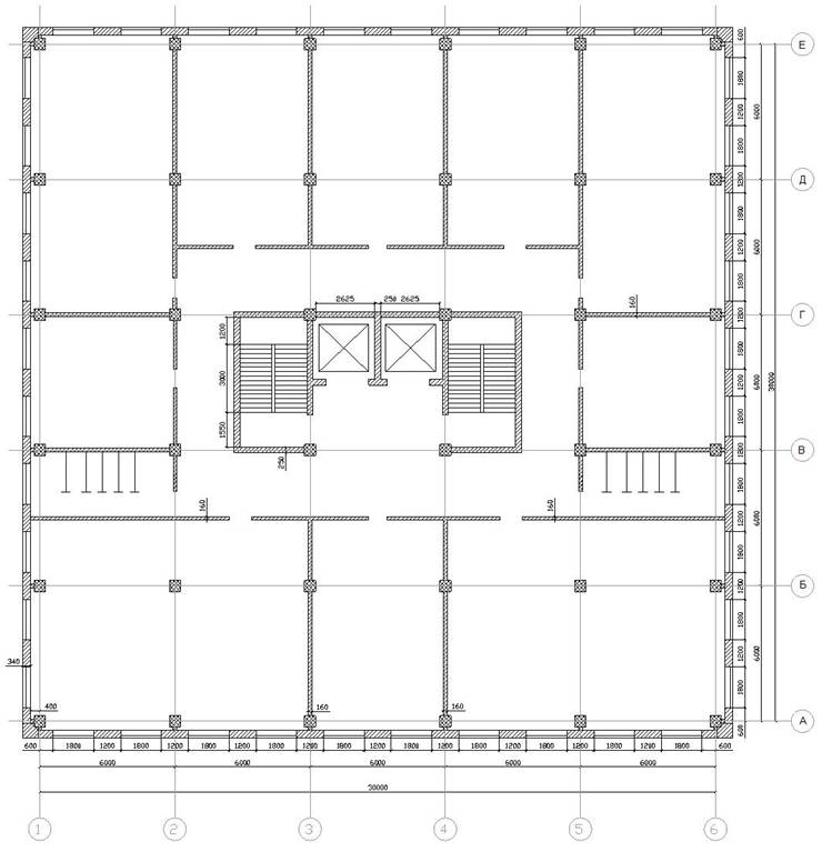
План типового этажа

Конструкции
1. Простеночные блоки наружных стен: 2180х 990х 500мм, вес= 1,9т.; 2180х 1590х 500мм, вес= 3,2т.; 2180х 1790х 500мм, вес= 3,5т.; 2180х 1400х 500мм, вес= 3,0т. 2. Перемычечные блоки: 580х 3180х 500мм, вес= 1,66т.; 580х 2780х 500мм, вес= 1,45т.; 580х 2380х 500мм, вес= 1,24т. 3. Подоконные блоки: 840х 1190х 500мм, вес= 0,9т.; 840х 1600х 500мм, вес= 2,2т. 4. Блоки внутренних стен: - вертикальные блоки 2180х 1190х 300мм, вес= 1,4т.; 2180х 1590х 300мм, вес= 1,9т.; 2180х 2390х 300мм, вес= 2,8т.; - поясные блоки 340х 1190х 300мм, вес= 0,2т.; 340х 1590х 300мм, вес= 0,3т.; 340х 2390х 300мм, вес= 0,44т. | 5. Фундаментные стеновые блоки: 580х 780х 600мм, вес= 0,54т.; 580х 2380х 600мм, вес= 1,65т. Блоки подушки: 300х 1200х 780мм, вес= 0,7т.; 6. Плиты перекрытий: 6000х 2400х 220мм, вес= 4,0т.; 3000х 2400х 220мм, вес= 2,0т. 7. Лестничные марш, вес= 3,0т; Лестничная площадка: 1200х 1500х 150мм, вес= 0,8т. 8. Элемент лифтовой шахты, вес= 3,24т. 9. Карнизные блоки: 580х 990х 500мм, вес= 0,52т. |
ВАРИАНТ 14
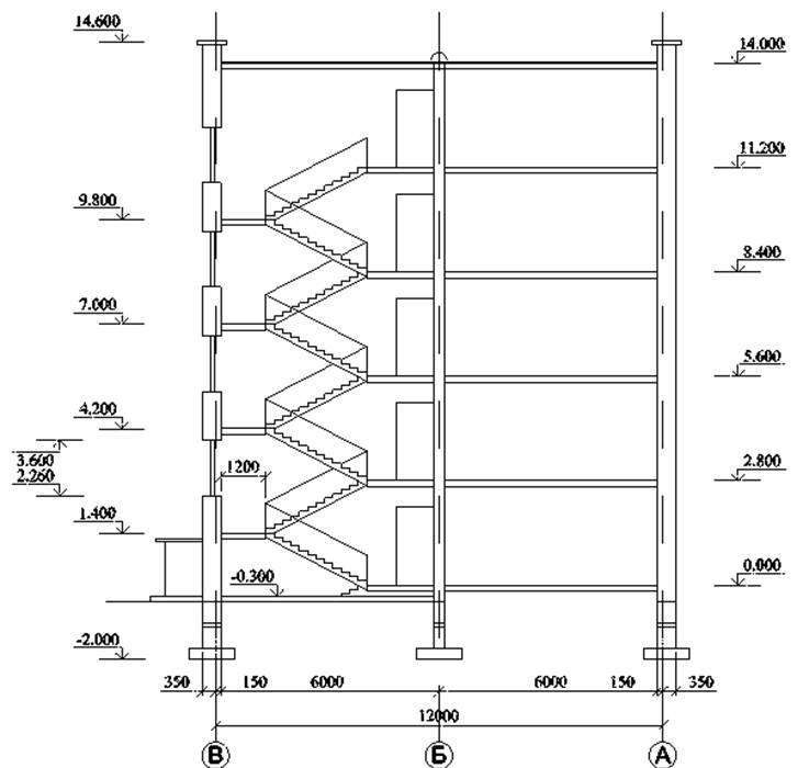
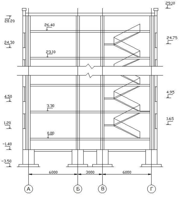
Разрез 1-1

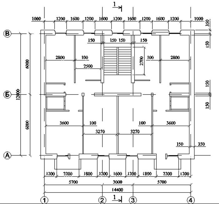
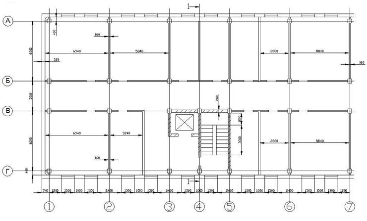
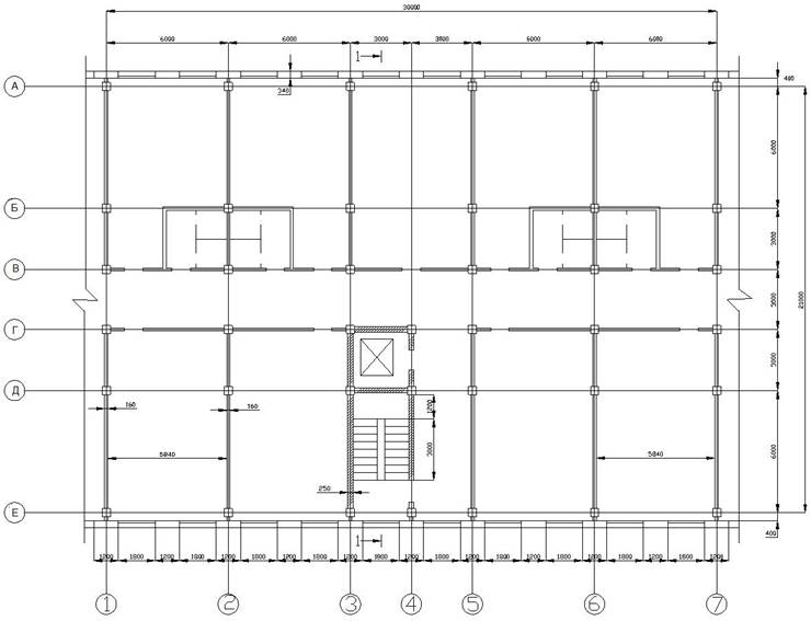
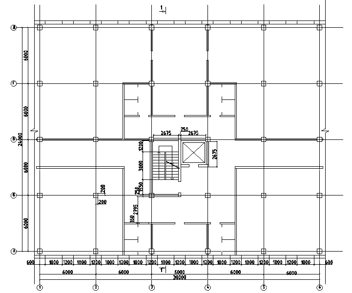
План типовой секции

Конструкции
1. Простеночные блоки наружных стен: 2180х 1190х 500мм, вес= 2,3т.; 2180х 1590х 500мм, вес= 3,2т.; 2180х 1790х 500мм, вес= 3,5т. 2. Перемычечные блоки: 580х 3180х 500мм, вес= 1,66т.; 580х 2780х 500мм, вес= 1,45т.; 580х 2380х 500мм, вес= 1,24т. 3. Подоконные блоки: 840х 1190х 500мм, вес= 0,9т. 4. Блоки внутренних стен: - вертикальные блоки 2180х 1190х 300мм, вес= 1,4т.; 2180х 1590х 300мм, вес= 1,9т.; 2180х 2390х 300мм, вес= 2,8т.; - поясные блоки 340х 1190х 300мм, вес= 0,2т.; 340х 1590х 300мм, вес= 0,3т.; 340х 2390х 300мм, вес= 0,44т. | 5. Фундаментные стеновые блоки: 580х 780х 500мм, вес= 0,45т.; 580х 2380х 500мм, вес= 1,4т. Блоки подушки: 300х 1200х 780мм, вес= 0,7т.; 300х 1200х 2400мм, вес= 2,16т. 6. Плиты перекрытий: 6000х 2400х 220мм, вес= 3,48т.; 6000х 800х 220мм, вес= 1,3т.; 6000х 1000х 220мм, вес= 1,65т. 7. Лестничные марш, вес= 3,0т; Лестничная площадка: 1200х 1500х 150мм, вес= 0,8т. 8. Балконная плита, вес= 1,5т. 9. Карнизные блоки: 580х 990х 500мм, вес= 0,52т. |
Вариант 15
Разрез 1-1

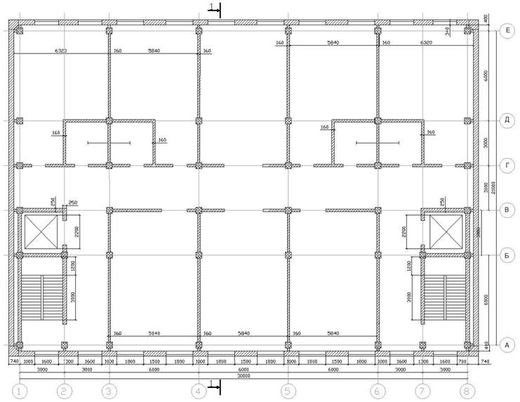
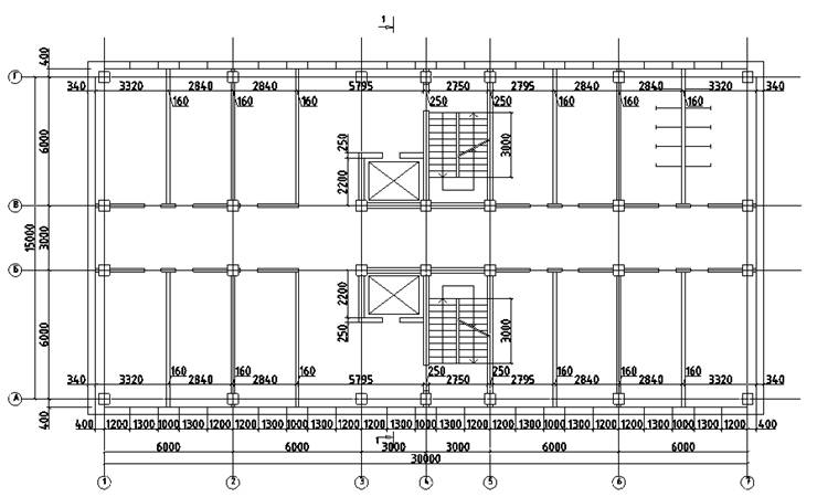
План типовой секции (10 секций)

Конструкции
1. Наружные стеновые панели: 2715×3190×320 мм; вес 2,52т
2. Внутренние панели: 2825×5000×180 мм; вес 5т
3. Плиты перекрытий: 3200×1000×120 мм; вес 0,9т
4. Лестничный марш: 3т
Лестничная площадка: 1200×3200×150 мм; вес 1,44т
Вариант 16
Разрез 1-1

План типового этажа (10 этажей)

Конструкции
1. Фасадные стеновые панели:
1800×6000×340, вес 6,6тн;
1200×6000×340, вес 4,4тн;
1500×6000×340, вес 5,5тн.
2. Простеночные фасадные панели:
1500×1000×340, вес 0,92тн;
1500×1200×340, вес 1,1тн.
3. Угловые стеновые панели: вес 0,7тн
4. Колонны:
400×400×3300, вес 1тн;
400×400×5900, вес 1,88тн;
400×400×4500, вес 1,44тн
5. Ригели расположенные поперек здания, размеры:
300х400х6000,вес 1,44тн;
300×400×3000, вес 1тн.
6. Лестничный марш: вес=3,5тн;
лестничная площадка:
1200×3000×150, вес 1,35тн;
2200×3000×150, вес 2,1тн.
7. Фундаменты стаканного типа:
размер подошвы:2400х2400,
высота: 1800, вес=7,5тн.
8. Фундаментные балки:
200×300×5950, вес 0,7тн.
9. Элементы лифтовых шахт: вес=2,3тн, высота = высоте этажа.
10. Парапетные плиты:
300×3000×500, вес 0,8тн.
11. Плиты перекрытия:
6000×1200×220, вес 1,6тн;
6000×1000×220, вес 1,32тн.
ВАРИАНТ 17
Разрез 1-1

План

Конструкции
ВАРИАНТ 18
Разрез 1-1

План типового этажа

Конструкции
ВАРИАНТ 19
Разрез 1-1

План типовой секции

Конструкции
ВАРИАНТ 20
Разрез 1-1

План типовой секции

Конструкции
ВАРИАНТ 21
Разрез 1-1

План типового этажа

Конструкции
1. Фасадные стеновые панели:
1800x6000x340мм, вес 6,6 т
1200×6000×340 мм, вес 4,4 т
600×600×340 мм, вес 2,2 т
2. Простенные фасадные панели:
1500×1000×340 мм, вес 0,918 т
1500×1200×340 мм, вес 1,1 т
3. Угловые стеновые панели: вес 0,7 т
4. Колонны:
400×400×3300 мм, вес 1т
400×400×5900 мм, вес 1,88 т
400×400×4500 мм, вес 1,44 т
5. Ригели, расположенные поперек здания:
300×400×6000 мм, вес 1,44 т
6. Лестничный марш: вес 3,5 т
- лестничная площадка:
1200×3300×150 мм, вес 1,35 т
2200×3200×150 мм, вес 2,1 т
7. Элементы лифтовых шахт: вес 2,3 т; высота 2790 мм
8. Парапетные плиты: 300×3000×500 мм, вес 0,8 т
9. Плиты перекрытия: 6000×1200×220 мм, вес 1,6 т
10. Ригели:
300×400×3000 мм, вес 1,44 т
6000×1000×220 мм, вес 1,32 т
ВАРИАНТ 22
Разрез этажей)

Конструкции
1. Фасадные стеновые панели:
1800×6000×340мм, вес 6,6 т
1200×6000×340 мм, вес 4,4 т
600×600×340 мм, вес 2,2 т
1500×6000×340 мм, вес 5,5т
2. Простенные фасадные панели:
1500×600×340 мм, вес 0,55 т
1500×1200×340 мм, вес 1,1 т
3. Угловые стеновые панели: вес 0,7 т
4. Колонны:
500×500×3300 мм, вес 1,65т
500×500×6200 мм, вес 3,1 т
500×500×4500 мм, вес 2,25 т
5. Ригели, расположенные поперек здания:
300×400×6000 мм, вес 1,44т
6. Лестничный марш: вес 3,5 т
- лестничная площадка:
1200×3000×150 мм, вес 1,2 т
2200×3000×150 мм, вес 1,7 т
7. Парапетные плиты: 300×3000×500 мм, вес 0,8 т
8. Плиты перекрытия:
6000×2000×220 мм, вес 2,64 т
6000×800×220 мм, вес 1т
9. Ригели: 300×400×3000 мм, вес 1,44 т
План типового этажа

ВАРИАНТ 23
Разрез 1-1

План типовой секции (4 секции, 10 этажей)

Конструкции


ВАРИАНТ 24
Разрез 1-1

План типовой секции (4 секции)

Конструкции


ВАРИАНТ 25
Разрез 1-1

План типовой секции

Конструкции
ВАРИАНТ 26
Разрез 1-1

План типового этажа

Конструкции

Приложение 2.
5.2. Технико-экономические параметры
стреловых кранов
Марка крана | Грузоподъемность, т | Вылет крюка, м | Высота подъема крюка, м | Время работы крана в году, час | Инвентарная расчетная стоимость крана, руб. | Себестоимость работы крана, руб. |
1 | 2 | 3 | 4 | 5 | 6 | 7 |
Автомобильные краны | ||||||
КС-3571 | 0,3-10 | 4-18,7 | 1,2-20 | 2526 | 22150 | 36,23 |
КС-3561А | 0,4-10 | 4-20 | 5-22 | 2526 | 17440 | 36,52 |
МКА-10М | 0,45-10 | 4-16 | 5-18 | 2526 | 19790 | 34,50 |
КС-3562А, В | 0,5-10 | 4-17,55 | 4-17 | 2526 | 20010 | 35,38 |
СМК/19 | 0,8-10 | 4-16 | 5,5-16,5 | 2526 | 16690 | 35,48 |
КС-4561А | 0,3-16 | 3,75-14 | 4,5-27,3 | 2526 | 24900 | 38,80 |
КС-4571 | 0,3-16 | 3,8-24 | 1,5-24 | 2526 | 28990 | 41,15 |
МКА-16 | 0,5-16 | 4,1-22 | 6-25 | 2526 | 26540 | 39,52 |
Пневмоколесные краны | ||||||
МКП-16 | 0,75-16 | 5-22 | 6-26 | 3075 | 33700 | 35,30 |
КС-4361А | 3,4-16 | 3,8-10 | 5,3-10 | 3075 | 27800 | 44,00 |
КС-4362 | 3,4-16 | 3,8-10 | 8,5-12,1 | 3075 | 27800 | 45,13 |
МПК-25 | 0,5-25 | 4-20 | 6,8-30,3 | 3075 | 38520 | 43,80 |
КС-5363 | 3,5-25 | 4,5-13,8 | 8-14 | 3075 | 40700 | 52,36 |
МПК-30-5 | 4-40 | 5-9,5 | 7-15 | 3075 | 44100 | 50,92 |
МПК-30 | 4-30 | 5-9,8 | 7-15,5 | 3075 | 44600 | 51,58 |
МКТ-40 | 4,5-40 | 4,5-15 | 7,5-15,5 | 3075 | 61000 | 70,15 |
КС-7362 | 5-63 | 5-14 | 8,1-14,1 | 3075 | 89200 | 65,80 |
КС-8362 | 9-100 | 5,2-18 | 10-18 | 3075 | 183400 | 129,8 |
Гусеничные краны | ||||||
МКГ-16М | 4-16 | 4-16 | 6-10 | 3075 | 30700 | 35,40 |
ДЭК-251 | 4,3-25 | 4,75-14 | 7-13,5 | 3075 | 28300 | 47,86 |
РДК-251 | 4,7-25 | 4-12,4 | 6,4-12 | 3075 | 27740 | 65,80 |
МГК-25 | 5,2-25 | 4-11,9 | 7-12 | 3075 | 31100 | 37,34 |
МКГ-256Р | 6-25 | 2,5-13 | 6-13,5 | 3075 | 36600 | 51-20 |
СКГ-30 | 4-30 | 5-23 | 4-15 | 3075 | 38600 | 39,50 |
1 | 2 | 3 | 4 | 5 | 6 | 7 |
СКГ-30А | 4-30 | 5-14 | 4-14,9 | 3075 | 45900 | 40,43 |
МКГ-40 | 8-40 | 5-14 | 9-13,5 | 3075 | 59200 | 64,90 |
ДЭК-50 | 14,8-50 | 6-14 | 8,4-13,3 | 3075 | 69700 | 68,40 |
СКГ-40/60 | 15-63 | 3,3-10 | 7,3-11,2 | 3075 | 51000 | 61,65 |
СКГ-63/100 | 29-100 | 4-10 | 7,7-10,7 | 3075 | 85100 | 85,40 |
КС-8162 | 16,5-90 | 6-18 | 12-19,6 | 3075 | 138400 | 108,7 |
СКГ-1000ЭМ | 6,5-100 | 8,4-34 | 37,2-48 | 3075 | 246400 | 148,3 |
Приложение 3.
|
Из за большого объема этот материал размещен на нескольких страницах:
1 2 3 4 5 6 7 |



