БАНЯ
Баня от фундамента до крыши
Удивительное дело! Есть у человека квартира, а в ней величаво отливающая хромом импортных смесителей ванная... Джакузи поставил... Мало. Хочется чего-то большего?
Идти далеко не надо — зовут, приглашают сауны. Предлагают все удовольствия — от тренажёрных залов и баров с напитками до самых экзотических видов массажа.
Но... Приобретается, по случаю, или, как осуществление давней мечты участок, и освоение его начинается именно со строительства бани.
Не стройте замков на песке.
Бани — можно
Строительство бани, как и любого дома, начинается с фундамента. От его конструкции и качества выполнения работ во многом зависит прочность и долговечность других частей здания.
Конструкцию выбирают, исходя из особенностей грунта и материала стен (чем они тяжелей, тем фундамент «серьёзнее»).
В большинстве случаев, выбор останавливают на ленточном или столбчатом, но, возможны и другие варианты. Например, т. н., песчаные фундаменты.
Они особенно уместны, если баня представляет собой небольшое деревянное одноэтажное здание, не создающее значительной нагрузки на грунт, а сам грунт — непучинистый, с низким уровнем грунтовых вод и хорошим естественным дренажём.
Песчаный фундамент потребует минимум земляных работ и расхода дорогостоящих строительных материалов.
Удалив почвенно-растительный слой, можно приступать к отсыпке песка. Нижнюю часть фундамента сформируют несколько последовательно уложенных слоёв толщиной по 15-20 см.
Каждый, после укладки, трамбуется и проливается водой. Верхняя часть выполняется из, скреплённых цементным раствором, гравия, щебня или кирпичного боя.
Ленточные фундаменты (см. Рис. 1) обычно устраивают, при возведении зданий с тяжёлыми (кирпичными или бетонными) стенами и подвалом — для деревенской или «дачной» бани вариант нехарактерный, но возможный, при строительстве бани кирпичной.
В этом случае, не избежать значительного объёма земляных работ и на материалы придётся потратиться. Особенно дорогим становится такой фундамент на пучинистых грунтах.
Но, на грунтах сухих и непучинистых и, при отсутствии подвала, можно использовать вариант не столь дорогостоящего мелко заглубленного (когда подошва находится выше глубины промерзания) ленточного фундамента.
Для столбчатого фундамента (см. Рис. 2, 3) бетона потребуется, примерно, вдвое меньше, да и земляных работ заметно убавится. Поэтому, для деревянных бань такой фундамент наиболее предпочтителен.
Дешёвым, хотя и не слишком долговечным, является фундамент из деревянных столбов (или, как их ещё иначе называют, стульев), применяющийся в деревянном строительстве уже не одну сотню лет (см. Рис. 4).
Наилучшей древесиной для изготовления стульев является дуб или лиственница.
Если таковой нет, вполне сгодится обычная сосна — чтобы она прослужила дольше, её обугливают на костре, промазывают битумом и оклеивают рубероидом.
Если размеры бани невелики (а наиболее часто встречающийся вариант — рубленый пятистенок 6х4 м, иногда, плюс веранда 2х4 м), достаточно установить столбы под всеми углами сооружения и в местах сочленения наружных стен и перегородок.
Рекомендуемый минимальный размер столбов, выполненных из камня, кирпича или бетона — 50х50 см. Но, каким бы ни был фундамент, он, всего лишь, основание для стен.
Незыблемость деревянных традиций
Стены в «классической» русской бане, конечно же, деревянные. Как, впрочем, и в финской сауне.
Сруб рубят в «лапу» и изнутри обтёсывают. Несколько дороже обойдётся строительство бани из бруса. В наших широтах, как правило, используется сосна. Пригодны и некоторые другие породы древесины.
Главное — чтобы они содержали минимум смолистых веществ, которые создают прекрасный запах, но в жаркой и влажной атмосфере бани начинают безостановочно «потеть».
По технике работ, возведение бревенчатой бани немногим отличается от строительства бревенчатой жилой избы, разве что, повышенными требованиями к качеству брёвен: необходимо брать прямые, выдержанные, способные, после обработки, обеспечить плотное соединение.
Особое внимание уделяется герметичности конструкции. В бане неоправданные потери тепла будут особенно заметны. Избежать их поможет конопачение.
Выполняют его дважды — сразу после постановки сруба и через 1-2 года, после прекращения осадки. Уплотнителями служат пакля или мох.
Баня из брёвен или бруса смотрится внушительно, но зато и стоит достаточно дорого. Намного дешевле обойдётся баня, выполненная по каркасно-панельной технологии.
На неё и древесины пойдёт не так много, и с фундаментом забот будет меньше, поскольку, при использовании эффективного утеплителя (обычно применяется минеральная вата), стены такой бани будут лёгкими.
Возводятся стены на основе жёсткого деревянного каркаса, собираемого из заранее заготовленных рам. Их устанавливают на фундамент и обшивают досками (снаружи — сосновыми или еловыми), заполнив пространство между обшивками утеплителем.
При работе используются оцинкованные гвозди. Дополнительно обшиваются наличниками углы, коробка двери и окна с внешней и внутренней сторон. Снаружи стены покрывают олифой и окрашивают.
Безусловное достоинство каркасных стен — отсутствие осадки. Но есть и очевидный недостаток — в каркасную стену во время дождей и снежных заносов может проникнуть вода.
Вода образуется и при конденсации паров, стремящихся наружу из тёплого помещения. Поэтому, для защиты каркаса и утеплителя от увлажнения со стороны внутренних помещений устраивается пароизоляция.
Для неё желательно, под внутренней облицовкой, использовать материалы, нагревание которых не сопровождается появлением неприятных запахов.
Производители саун предпочитают алюминиевую фольгу, но возможно и применение полимерных плёнок. Особенно тщательно выполняется пароизоляция в местах соединения потолка со стенами.
Если сопротивление потолка теплопередаче недостаточно, то, помимо потерь тепла, это приведёт к образованию неприятной капели.
Интерьер бани
При отделке парильного помещения русской бани, желательно применять доски, полученные из древесины, не содержащей большого количества смолистых веществ и не коробящихся, при воздействии влаги.
Из пород наших широт таким требованиям отвечают лиственные породы — берёза, осина, липа. Используется и кедр из семейства сосновых, а после соответствующей обработки — и сама сосна.
Фирмы, специализирующиеся на промышленном производстве саун не ограничиваются флорой умеренного пояса, а используют тропические деревья. Так, элитные сауны отделываются красным деревом.
Особую популярность, в последнее время, завоевало растущее в Африке дерево абаши (можно встретить и другие его написания — абачи, абиши).
Местные племена использовали его, главным образом, для производства кухонной утвари, но, по-настоящему все его достоинства «раскрылись» только после того, как на него обратили внимание производители саун.
Практически полное отсутствие смолистых веществ в древесине абаши, особые теплоизоляционные качества (при температуре воздуха в сауне свыше 100°C, сделанная из него скамья на ощупь будет едва теплой), долговечность, привлекательный внешний вид сделали абаши одним из самых привлекательных видов древесины.
При внутренней обшивке, доски обычно располагают вертикально, плотно подгоняя друг к другу. Стены изнутри не красят, чтобы исключить выделение вредных веществ и не нарушить паропроницаемость.
Стены парилки до высоты 0,5-1,0 м можно покрыть глазурованными плитками, чтобы можно было мыть наиболее сильно загрязняющуюся нижнюю часть.
Потолок и пол всех помещений бани по периметру обиваются плинтусом, причём, у пола плинтус делается водонепроницаемым, высотой не менее 10 см.
Его устанавливают так, чтобы нижний ряд внутренней обшивки стен оказался наложенным на него, и стекающая со стен влага за плинтус не попадала.
Пол в бане — также деревянный, но, не утеплённый. Это связано с тем, что на него всё время попадает вода и, не имея возможности уйти, она будет вызывать гниение древесины.
Для облегчения работ по уборке помещений, пол в банях (особенно парных отделениях) выкладывают керамической плиткой, а для стока воды настилают с уклоном в сторону сливного отверстия.
Если оно соединено с канализационной системой, то устанавливается сифон, препятствующий проникновению запахов из канализационных труб.
В больших кирпичных банях делаются бетонные полы. Для лучшей теплоизоляции (бетон — не дерево — не гниёт) их укладывают в несколько слоёв, с прокладками из минеральной ваты или изоляционных засыпок (керамзита, перлита).
Температурно-влажностный режим в бане довольно «жёстокий», поэтому, оптимальный материал для изготовления деревянных дверей — клееная древесина, но делают и двери из массива, с остеклением или без него.
Окна в банях — традиционно небольшие, чтобы уменьшить теплопотери. Для обычной деревянной бани — глухие, размером не более чем 50х50 см.
В больших банях световые проёмы устраиваются из стеклоблоков или с использованием теплоэффективных стеклопакетов.
Если кто-то скажет, что он к бане равнодушен, не верьте. Сводите его в самую обычную, пропахшую дымком, деревенскую баньку.
И в ней, распарившись уже, он обязательно вспомнит, что, оказывается, всегда любил баню, просто дела, да заботы житейские...
Но, немного их таких, не помнящих своего родства с баней. Большинство же, лишь наступает суббота, забыв обо всём, снова и снова спешат в её горячие объятия.
Андрей Викторов
Бюллетень «Строительный магазин» №13/2000
|
Рис. 1. Ленточный фундамент |
1 — труба; 2 — бетонная подушка; 3 — анкер из полосовой стали; 4 — брус нижней обвязки; 5 — забирка; 6 — болты для подвески забирки и крепления анкеров. |
|
Рис. 2. Столбчатый фундамент |
Рис. 4. Фундамент из деревянных стульев: 1 — деревянный стул; 2 — обвязка; 3 — гидроизоляция; 4 — отмостка. |
Каркасная баня на шести сотках
Вниманию читателя предлагается описание сравнительно недорогой и компактной бани, построенной на типовом садовом участке.
Баня была задумана, как русская (с паром, с веником и пр.). Однако, после ввода её в эксплуатацию, оказалось, что баню можно использовать и, как финскую сауну (необходимо только чуть сильнее её натопить).
Баня состоит из двух помещений: раздевалки-предбанника и совмещённой моечной-парилки. Оба помещения утеплены и обеспечены естественным и искусственным освещением.
Окно предбанника выходит на Северо-Запад и в вечернее время оно освещено лучами заходящего солнца.
Под скамьёй-лежанкой предбанника устроены ящики для хранения банного инвентаря. Топка печи производится из предбанника, из него же имеется вход в моечную-парилку.
Перегородка и дверь между моечной и предбанником выполнены, как теплоизолирующие конструкции.
Источником тепла служит кирпичная печь-каменка оригинальной конструкции, выполненная с соблюдением противопожарных требований (возможен и вариант с металлической печью).
В топливник печи вмонтирован змеевик диаметром 25 мм, который соединен с баком для горячей воды ёмкостью 40 литров. Бак подвешен к наружной стенке (к ее каркасу) на кронштейне из уголка 20х20 мм.
Соединительные трубы снабжены сливным, водоразборным шаровым краном. В помещение моечной-парилки устроен полок шириной 800 мм, расположенный на высоте 350 мм над полом.
Пол в моечной-парилке — бетонный. Он снабжён сливным трапом и снизу утеплён пенопластом.
Устройство утеплённого пола позволило отказаться от необходимости сооружения полка на втором ярусе.
Традиционные деревянные решётки, укладываемые на пол, были заменены на утеплённые коврики из жёсткого пенополиуретана, что гораздо комфортнее и гигиеничнее.
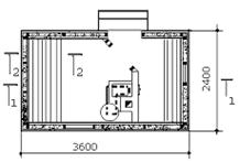
Размеры помещений бани были выбраны, исходя из соображений минимизации расхода пиломатериалов.
Например, внешний размер бани принят 2,4х3,6 м, что соответствует длине нижней и верхней обвязок (2,4+3,6=6 м). Высота стоек каркаса стен принята 2 м (2+2+2=6 м) и т. д.
Устройство тёплых полов по насыпному грунту обусловило необходимость сооружения ленточных фундаментов, которые, одновременно с передачей нагрузки на основание, служат и подпорными стенками для подсыпки.
Фундаменты выполнены из монолитного бетона в переставной опалубке, которая крепилась на ранее уложенные бетонные блоки размером 190х200х390 мм. Толщина стенок фундамента 200 мм.
Верх фундамента выравнивался цементным раствором. По верхнему обрезу фундамента была выполнена горизонтальная гидроизоляция (два слоя рубероида на битумной мастике).
Стены бани — каркасные. Это, кроме всего прочего, позволяет выполнять отделку и изоляционные работы сразу после возведения каркаса.
Все элементы каркаса (горизонтальные обвязки, стойки, средники, подкосы, ригели и т. д.) выполнены из досок 50х100 мм на гвоздевых соединениях.
Снаружи каркас обтянут пергамином и обшит строганными досками толщиной 25 мм. Стыки между досками закрыты нащельниками из рейки 20х30 мм.
Межстоечное пространство утеплено минеральной ватой объёмным весом 80-100 кг/куб. м. Изнутри каркас обшит строительной алюминиевой фольгой на бумажной основе.
Внутренняя отделка — из осиновой вагонки, пришитой оцинкованными гвоздями.
Крыша бани — двухскатная, бесчердачная и довольно пологая (уклон 1:4), что не создаёт большого затенения на садовом участке.
Кроме того, это позволило сэкономить строительные материалы и увеличить высоту внутренних помещений. Термоизоляция и пароизоляция в совмещённой кровле устроена так же, как в стенах.
Внутренняя перегородка между моечной и предбанником состоит из двух частей.
Возле печи она выполнена несгораемой, толщиной 120 мм из кирпича, а за пределами разделочных разрывов — деревянной, каркасного типа с утеплением матами из минеральной ваты толщиной 50 мм.
Кирпичная часть перегородки является одновременно частью печи и, нагреваясь вместе с ней, служит аккумулятором тепла.
Со стороны моечной, деревянная перегородка имеет пароизоляцию из алюминиевой фольги.
Дренажная система решена несколько необычным образом. Гидравлический затвор вынесен в приямок, расположенный за пределами бани и служит препятствием для проникновения запахов из канализации.
В приямок установлена ёмкость из нержавеющего материала. Вода с пола поступает в приямок по прямой канализационной трубе диаметром 100 мм, на которую надет резиновый рукав, опущенный на дно ёмкости для воды.
Баня, на своём участке, всегда «к Вашим услугам!» В баню приглашают только близких людей, в ней тихо, чисто, уютно и тепло.
Никто не мешает и не торопит насладиться прелестями банной процедуры. Тепловой режим можно выбрать по своему вкусу.
Баня — праздник для души и тела! Кроме прямого назначения, садоводы зачастую используют баню, как временное жильё, помещение для стирки и сушки белья, сушки ягод и фруктов или грибов и лекарственных трав.
Владимир Рощин,
инженер-строитель.
|
|
Подробные схемы устройства бани см. здесь
|
Дренажная система для удаления воды: 1 — канализационная труба; 2 — резиновая гибкая трубка; 3 — дренажный колодец с крышкой; 4 — ёмкость для воды; 5 — дренирующий слой. |
|
Фасад бани |
|
План бани |
|
Каркас по боковому фасаду бани |
Каркас по фасаду бани |
Разрез 1 – 1 |
|
|
Как я реконструировал свою баню
Наверняка многим владельцам садовых и дачных участков когда-нибудь приходилось, или ещё придётся, оказаться перед выбором: строить ли новую баню (что, несомненно, дорого) или попытаться каким-то образом расширить существующую.
Вот, каким образом решил эту проблему один из наших читателей.
Русская баня, обычно, состоит из раздевалки (предбанника), мыльной (мойки) и парилки. Источником тепла в бане служит каменка.
Но, очень часто парилку совмещают с мыльной. Такое совмещение нарушает целебный процесс очищения организма в бане.
У меня на даче парилка в бане тоже была совмещена с мыльной. Поэтому, я решил сделать пристройку в виде веранды 2х3 м, не утепляя её, так как зимой живу в городе, а мыльную вынести в предбанник.
Существующее строение бани — старенькое, кровля — рубероидная по дранке на деревянном настиле.
По ряду причин, с торца бани пристройку делать было нельзя. Чтобы выполнить её обычным способом, пришлось бы разбирать существующую рубероидную кровлю и снимать дранку.
Разборка кровли оказалась бы неэкономичной. К тому же, травяной покров и грядки около бани засорились бы уймой мусора.
Надо было найти другое решение, которое минимально затрагивало бы существующую кровлю бани.
После раздумий, такое решение появилось (см. Рис. 1). Заключалось оно в следующем: у конька существующей кровли, со стороны пристройки, по обе стороны стропил делаются отверстия (в моём случае — 12х6 см).
В них вставляются бруски-накладки 10х5 см, длиной около 1,2 м. Одним концом накладки прибиваются к существующим стропилам, а другим выпускаются на длину, необходимую для создания уклона кровли пристройки-веранды.
Между брусками-накладками устанавливается брус-опора сечением 10хN см, где «N» равняется диаметру существующих стропил.
Коньковая часть стропил пристройки укладывается на брус-опору и фиксируется брусками-накладками (см. Рис. 2).
Нижней частью новые стропила опираются на каркас строящейся веранды-раздевалки. К торцевым стропилам бруски-накладки прикрепляются только с одной — внутренней — стороны (см. Рис. 3).
В качестве фундамента под пристройку, я использовал бетонные блоки 40х20х15 см, уложенные на песчаную подушку (см. Рис. 1).
Верх стоек, по наружному ряду веранды, сделал на 30 см ниже стен бани, чтобы уклон новой кровли получился таким же, как уклон кровли самой бани.
В этом случае и конфигурация потолка пристройки стала более пластичной, ведь, прямые углы всегда неуютны.
Потолок проще всего сделать из ДВП, а ту часть, которая идёт с уклоном к наружной стене, — из вагонки.
Существующую в торце бани дверь с внутренней стороны я закрыл на крючок.
Забивать её не стал, так как она, возможно, понадобится для замены теплового агрегата, конструкция которого бывает разной — не только в виде котла и бочки с камнями.
Для входа в баню со стороны пристройки-веранды увеличил по вертикали оконный проём и поставил коробку с дверью.
На веранде смастерил лежак для отдыха, поставил стол и скамейки. Теперь можно приглашать своих чад и гостей не только париться, но и совмещать баню с чаепитием.
Чтобы было светло и тепло, веранду я пристроил с южной стороны бани. В солнечный день она больше притягивает на отдых, чем сам дом. Новый семейный очаг всегда приятен.
Правда, поначалу я опасался, что на реализацию этой затеи потребуются большие расходы. На деле же, оказалось, что почти всю реконструкцию мне удалось осуществить из материалов, бывших в употреблении: брусьев и досок, оставшихся от разборки старых строений.
Получилось совсем неплохо — как в кают-компании на катере. В общем, сделал себе праздник, и старенькая банька стала новой и уютной — с пристройкой-верандой-раздевалкой.
Леопольд Мельников
Бюллетень «Строительный магазин» № 8/2000.
|
|
Рис. 2 Стыковка стропил |
Рис. 3 План стропил |
«Советник» — путеводитель по хорошим книгам.




деревянного дома." align="left" width="295" height="294" class=""/>Рис. 3. Столбчатый фундамент с использованием труб для щитового деревянного дома:





Боковой фасад бани



Разрез 2–2
Рис. 1 Фасад бани

