а | б | в |
|
а – однослойная; б – двухслойная; в = трехслойная;
1 – конструктивно – теплоизоляционный бетон; 2 – защитно – отделочный слой; 3 – конструктивный бетон; 4 – эффективный утеплитель
Рис. 8
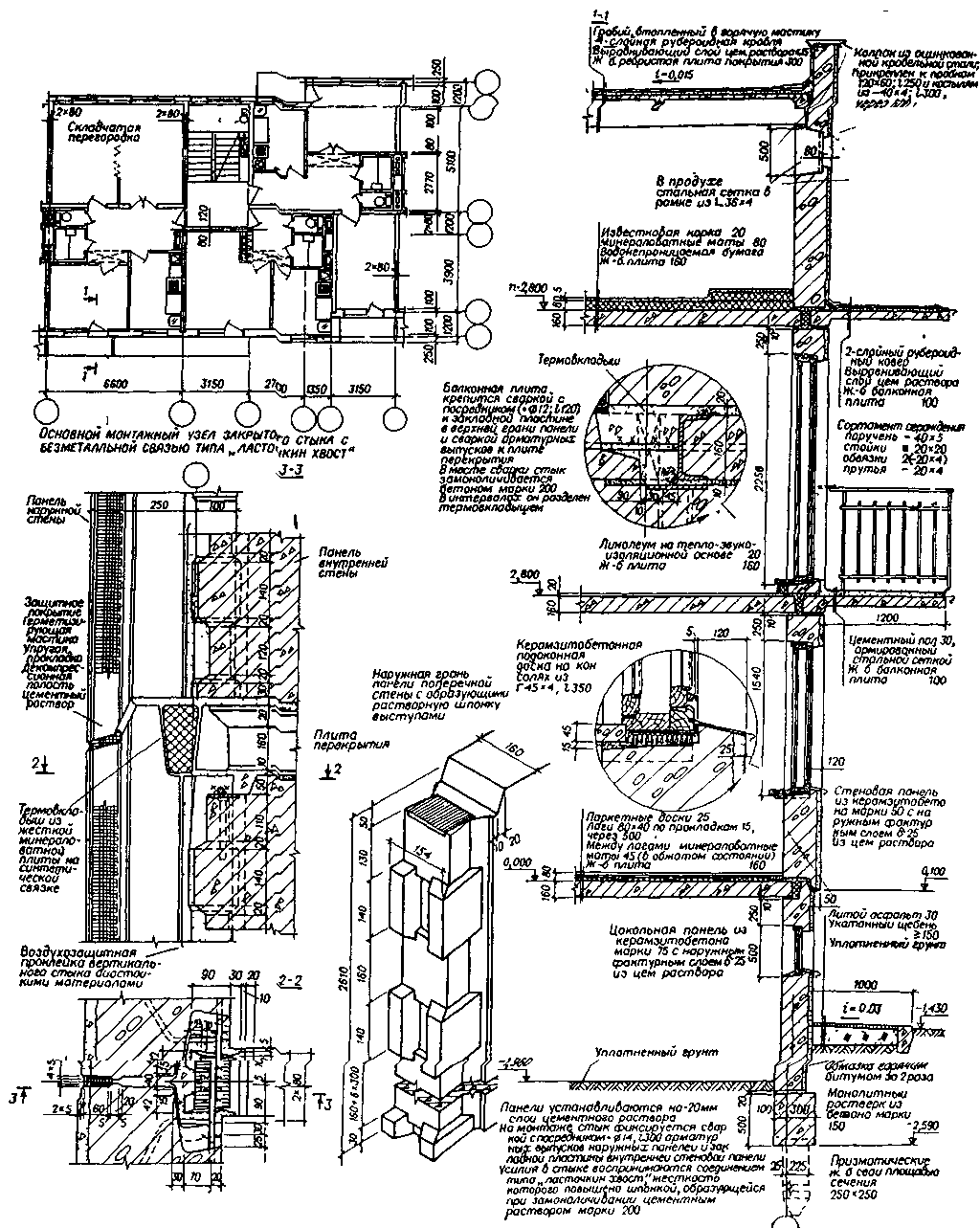
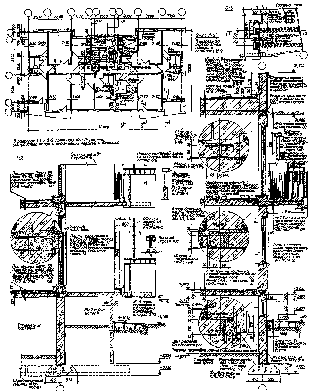
ПОЭТАЖНЫЙ ПАНЕЛЬНЫЙ ЖИЛОЙ ДОМ С ПРОДОЛЬНЫМИ НЕСУЩИМИ СТЕНАМИ (ПО СЕРИИ 108)
РЯДОВАЯ СЕКЦИЯ
1• 2 •3 ШИРОТНОЙ ОРИЕНТАЦИИ

Рис. 9.
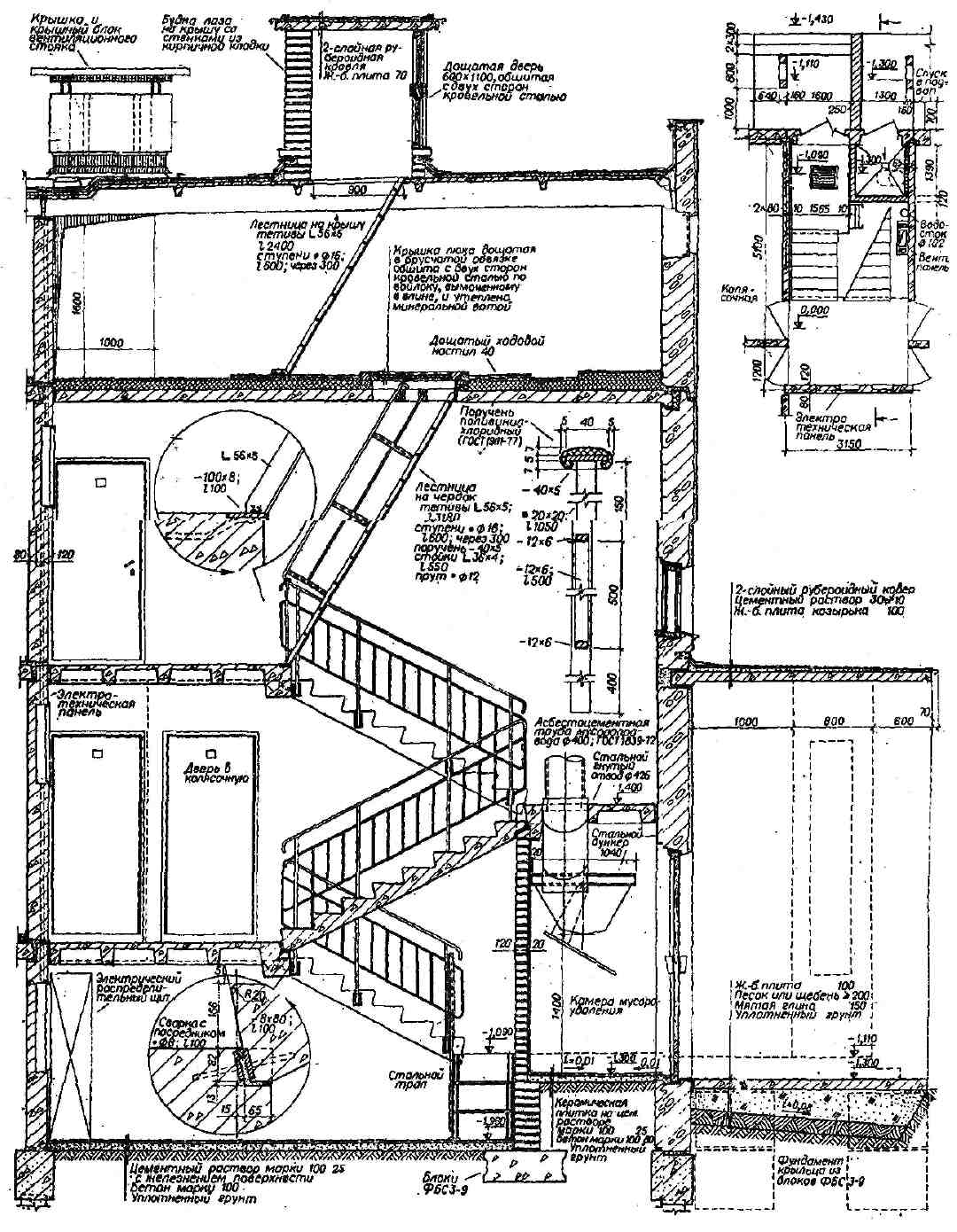
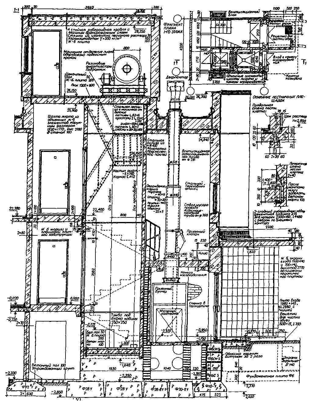
РАЗРЕЗ ПО ЛЕСТНИЧНОЙ КЛЕТКЕ
ПЛАН НА УРОВНЕ 1 –ГО ЭТАЖА

Рис. 10
ДЕТАЛЬ КРОВЛИ

Рис. 11
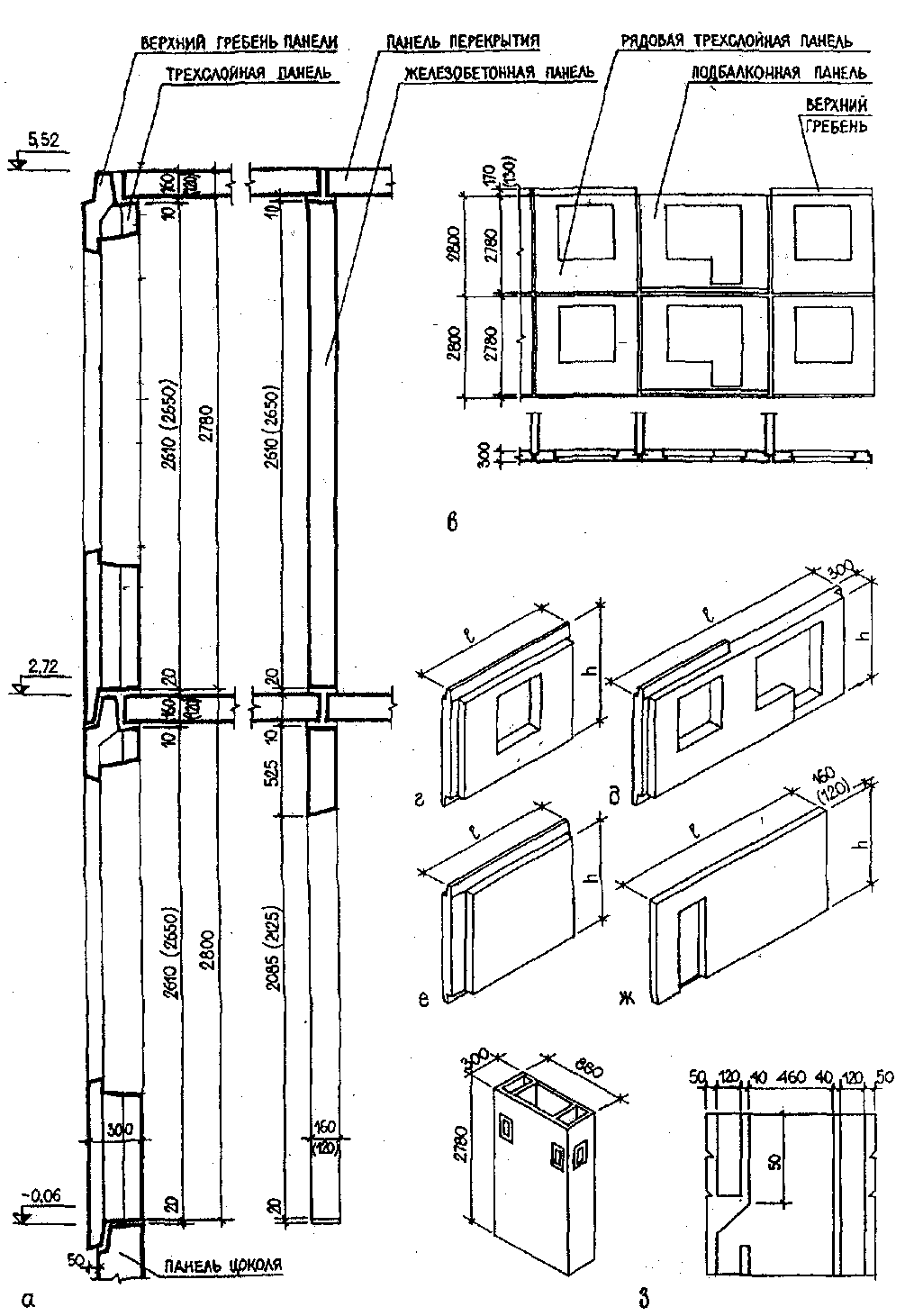
ОСНОВНЫЕ ЖЕЛЕЗОБЕТОННЫЕ ПАНЕЛИ И СТЕНЫ ИЗ НИХ

а – порядовка наружной стены из трехслойных панелей; б – порядовка внутренней стены; в – разрезка наружной стены из одношаговых трехслойный панелей; г-е – трехслойная панель наружной стены, рядовая одношаговая, подбалконная двушаговая, торцевая; ж – панель внутренней стены; з – вентиляционная панель
Рис. 12
ОСНОВНЫЕ ЛЕГКОБЕТОННЫЕ ОДНОСЛОЙНЫЕ ПАНЕЛИ
И НАРУЖНЫЕ СТЕНЫ ИЗ НИХ

а – порядовка наружной стены толщиной 300 мм и менее (с противодождевым барьером); б – то же, с толщиной более 300 мм (без барьера); в – разрезка наружной стены из двушаговых панелей с барьерами; г, д – двушаговая панель соответственно рядовая (с барьером) и подбалконная; е, ж – одношаговая панель (без барьера) рядовая и подбалконная; з – фрагмент конструкции стен у лоджий
Рис. 13
НАРУЖНЫЕ СТЕНЫ КАРКАСНЫХ ЗДАНИЙ ИЗ ЛЕГКОБЕТОННЫХ ПЛИТ
РАЗРЕЗКА СТЕНЫ ТРЁХРЯДНАЯ | РАЗРЕЗКА СТЕНЫ ДВУХРЯДНАЯ | |
| ||
ПАНЕЛЬ РЯДОВАЯ ЛЕНТОЧНАЯ | ПАНЕЛЬ ПРОСТЕНОЧНАЯ | ПАНЕЛЬ УГЛОВАЯ |
| ||
КРЕПЛЕНИЕ НАВЕСНЫХ ПАНЕЛЕЙ К КОЛОННЕ | ВЕРТИКАЛЬНЫЙ СТЫК САМОНЕСУЩИХ ПАНЕЛЕЙ | ГОРИЗОНТАЛЬНЫЙ СТЫК САМОНЕСУЩИХ ПАНЕЛЕЙ |
|
Рис. 14
РАЗРЕЗКА И СТЫКИ В НАРУЖНЫХ СТЕНАХ ИЗ БЕТОННЫХ ПАНЕЛЕЙ
ОДНОРЯДНАЯ ИЗ ПАНЕЛЕЙ РАЗМЕРОМ «НА 1-2 КОМНАТЫ» | ТО ЖЕ, С УГЛОВЫМИ ПАНЕЛЯМИ | ДВУХРЯДНАЯ ИЗ ПОЯСНЫХ ПАНЕЛЕЙ ДЛИНОЙ «НА 1-2 КОМНАТЫ» И ПРОСТЕНОЧНЫХ ПАНЕЛЕЙ | ВЕРТИКАЛЬНАЯ ИЗ ПРОСТЕНОЧНЫХ ПАНЕЛЕЙ ВЫСОТОЙ «НА 1-2 ЭТАЖА» И МЕЖОКОННЫХ И ОКОННЫХ ПАНЕЛЕЙ |
| |||
Применяется в несущих, навесных и самонесущих стенах. Образует элемент конструктивной ячейки панельной системы, связанной в стыках поперечными стенами и плитами перекрытий | То же, на фасадах с ризолитами | Применяется в навесных стенах любой этажности, несущих и самонесущих стенах здания высотой до 5 эт., позволяет сократить погонаж стыков и использовать для термической обработки изделий агрегаты малого габарита | Применяется в навесных стенах. По технологическим особенностям аналогична двухрядной разрезке. Образует вертикальные членения фасадов. Горизонтальные стыки простеночных панелей могут быть расположены и в уровне низа окон. |
ЗАКРЫТЫЙ СТЫК | ДРЕНИРОВАННЫЙ СТЫК | ОТКРЫТЫЙ СТЫК | |
ВОДО - И ВОЗДУХОИЗОЛЯЦИЯ ОБЕСПЕЧИВАЕТСЯ: | |||
Заполнением горизонтальных швов цементным раствором; вертикальных – бетоном; воздухозащитной проклейкой вертикального стыка; герметизацией устья стыка мастиками по уплотняющим прокладкам; | Дополнительно – лабиринтным сечением горизонтального стыка; отводом проникшей за зону изоляции влаги по декомпрессионным вертикальным каналам через поэтажные дренажные отверстия 50х20 на пересечении стыков | Дополнительно – лабиринтным сечением горизонтального стыка; отводом проникшей за зону изоляции влаги по декомпрессионным вертикальным каналам через открытые устья горизонтальных стыков; отводом наружной влаги по водоотбойным вертикальным экранам из атмосферостойких лент | |
|
Рис. 15
КОНСТРУКЦИИ СТЕНОВЫХ ПАНЕЛЕЙ

ТРЁХСЛОЙНАЯ СТЕНОВАЯ ПАНЕЛЬ С УТЕПЛИТЕЛЕМ ИЗ ЦЕМЕНТНОГО ФИБРОЛИТА

Рис. 16
КЕРАМЗИТОБЕТОННАЯ ОДНОСЛОЙНАЯ СТЕНОВАЯ ПАНЕЛЬ

Рис. 17
НАРУЖНЫЕ СТЕНЫ ИЗ ОДНОСЛОЙНЫХ ПАНЕЛЕЙ ОДНОРЯДНОЙ РАЗРЕЗКИ ЗДАНИЙ ВЫСОТОЙ ДО 9 ЭТАЖЕЙ (ПО СЕРИИ 1.132-1)
| ПРОДОЛЬНЫЕ СТЕНОВЫЕ ПАНЕЛИ: ЛЕСТНИЧНОЙ КЛЕТКИ; У ТОРЦА РИЗАЛИТА; РЯДОВАЯ – РАЗМЕРОМ НА 2 КОМНАТЫ |
| |
ПОПЕРЕЧНЫЕ СТЕНОВЫЕ ПАНЕЛИ: В ТОРЦЕ РИЗАЛИТА; В ТОРЦЕ ЗДАНИЯ
| |
схема конструктивного армирования | |
| |
Детали сопряжений | |
| |
План по верху панелей | |
|
Рис. 18
НАРУЖНЫЕ СТЕНЫ ИЗ ТРЁХСЛОЙНЫХ ПАНЕЛЕЙ ОДНОРЯДНОЙ РАЗРЕЗКИ ЗДАНИЙ ВЫСОТОЙ ДО 16 ЭТАЖЕЙ (ПО СЕРИИ 1.132-3)

Рис. 19
ДЕВЯТИЭТАЖНЫЙ ЖИЛОЙ ДОМ С «МАЛЫМ» ШАГОМ ПОПЕРЕЧНЫХ НЕСУЩИХ СТЕН И НАРУЖНЫМИ СТЕНАМИ ИЗ КЕРАМЗИТОБЕТОННЫХ ПАНЕЛЕЙ (ПО СЕРИИ 90)
36 – КВАРТИРНЫЙ БЛОК - СЕКЦИЯ 1Б-2Б-3Б-3Б
ПЛАН ТИПОВОГО ЭТАЖА

Рис. 20

Рис. 21

Рис. 22
СТЫКИ 3-Х СЛОЙНЫХ ЖЕЛЕЗОБЕТОННЫХ ПАНЕЛЕЙ НАРУЖНЫХ СТЕН

а – вертикальный стык с декомпрессионной полостью; б – сопряжение панелей выступа (ризалита) у лоджии; в – горизонтальный стык; г – крепление панели перекрытия к наружной стене
Рис. 23
ВЕРТИКАЛЬНЫЕ СТЫКИ ПАНЕЛЕЙ ВНУТРЕННИХ СТЕН

а, в – стыки панелей поперечных и продольных стен; б, г – примыкание панелей поперечных стен к продольной стене (условно не показана приварка закладных деталей)
Рис. 24

Рис. 25
СТЕНЫ КАРКАСНЫХ ЗДАНИЙ ИЗ АЛЮМИНИЕВЫХ ПАНЕЛЕЙ (ПРИМИНИТЕЛЬНО К СЕРИИ ИИ-04)
ПАНЕЛИ ВЫСОТОЙ «НА ЭТАЖ» И НА «ЭТАЖ С ПАРАПЕТОМ», С ГОРИЗОНТАЛЬНОЙ РАЗРЕЗКОЙ В УРОВНЕ ВЕРХА ПЕРЕКРЫТИЙ

Рис. 26
Крупноблочные здания
Конструкции крупноблочных зданий являются полносборными. Наружные и внутренние стены монтируются из сборных конструкций заводского изготовления массой до 5 тонн.
Для зданий высотой до 5-ти этажей применяют бескаркасную, конструктивную систему с продольными несущими стенами, а для зданий повышенной этажности - с большим или смешанным шагом поперечных стен.
Наружные стены в пределах высоты каждого этажа членят по горизонтали на два, три или четыре ряда блоков.
Чаще всего для жилищного строительства применяют двухрядную разрезку.
Крупные блоки наружных стен изготавливают из легких бетонов марок М-50, М-75, М-100 плотностью не более 1600 кг/м3, а блоки внутренних стен - из тяжелого бетона марок М-150 и М-200.
Крупные блоки наружных стен подразделяются на простеночные (рядовые, угловые, доборные); поясные (рядовые, угловые, доборные); перемычечные, подоконные, цокольные (рядовые, угловые, доборные); парапетные, карнизные.
Горизонтальные и вертикальные стыки блоков наружных стен в швах разрезки с внешней стороны герметизируют. В вертикальных стыках устанавливают утепляющие вкладыши.
Крупные блоки внутренних стен подразделяют на стеновые, вентиляционные и специальные: электроблоки, блоки лестничных клеток, чердака и др. Эти блоки в пределах этажа могут иметь однорядную и двухрядную разрезки. Наиболее распространена однорядная разрезка.
|
Из за большого объема этот материал размещен на нескольких страницах:
1 2 3 4 |















