При работе на высоте основными средствами защиты являются предохранительный пояс (средство индивидуальной защиты) и предохранительные ограждения (средство коллективной защиты), которые конструктивно или функционально должны быть связаны с конструкцией средства подмащивания, конструкцией здания - постоянные ограждения или с рабочим местом - временные ограждения.
Согласно требованиям охраны труда при обеспечении безопасности рабочих мест необходимо в первую очередь применять средства коллективной защиты, которые являются более эффективными, чем средства индивидуальной защиты.
В таблице 1 приводится классификация типов предохранительных ограждений по ГОСТ 12.4.059.
Таблица 1 - Классификация типов предохранительных ограждений (по ГОСТ 12.4.059)
Признак классификации | Наименование типа | Обозначение типа |
1. Функциональное назначение | Защитное | Зщ |
Страховочное | Ст | |
Сигнальное | Сг | |
2. Место установки вблизи перепада по высоте относительно рабочего места | Внутреннее | Вн |
Наружное | Нж | |
3. Способ крепления | Опорное | Оп |
Навесное | Нв |
Поскольку временные ограждения устанавливаются при подготовке рабочего места, а далее должны переноситься вместе с рабочим местом на другую захватку (делянку), они должны быть инвентарными и технологичными (удобными) в работе.
СНиП 12-03 (6.2.16) определяет следующий порядок применения ограждений: «Рабочие места и проходы к ним, расположенные на перекрытиях, покрытиях на высоте 1,3 м и на расстоянии менее 2 м от границы перепада по высоте, должны быть ограждены защитными или страховочными ограждениями, а при расстоянии более 2 м - сигнальными ограждениями, соответствующими требованиям государственных стандартов».
Из этого требования вытекает, что применение защитных ограждений обязательно в следующих случаях:
в местах массового прохода людей, в том числе: лестничных маршей и площадок, лифтовых шахт, монтажных проемов, котлованов и траншей, других мест перепадов по высоте 1,3 м и более, выемок, шахтных стволов;
на рабочем месте, средствах подмащивания и других рабочих местах согласно 6.2.16 СНиП 12-03 при расположении их на высоте 1,3 м и более от перекрытия (покрытия).
На рисунках 5 - 11 показаны различные случаи применения защитных ограждений.
Допускается производство работ без ограждений (6.2.18) при условии применения поясов предохранительных строительных по ГОСТ Р 50849. В этих случаях в ППР должны приводиться решения о способах крепления пояса - строительные конструкции или страховочные устройства.
Предохранительные пояса должны быть сертифицированы в системе сертификации Госстроя России. Испытание поясов для целей сертификации должно быть проведено испытательной лабораторией «Промстальконструкция», аттестат аккредитации Госстроя России № РОССР 9001.22СЛ56 от 01.01.2001, а сертификат соответствия должен быть выдан Федеральным Центром сертификации в строительстве Госстроя России.
В случаях, когда зона работ находится вне досягаемости работника, применяются средства подмащивания, которые, не являясь средствами коллективной защиты, тем не менее существенным образом влияют на безопасность труда.
Это объясняется тем, что при нахождении на средствах подмащивания работник находится на высоте, где имеется опасность падения. Эта опасность многократно увеличивается в случаях использования неисправных средств подмащивания или использования их не по назначению.
В соответствии с этим при определении средств подмащивания необходимо учитывать следующие требования охраны труда:
1. Высота расположения рабочего настила средства подмащивания и его нахождение по отношению к зоне работ должны обеспечивать возможность выполнения трудовых операций в пределах зоны досягаемости моторного поля по ГОСТ 12.2.033.
2. Размеры рабочего настила и конструкция подмостей должны обеспечивать возможность размещения материалов, оборудования и работников с учетом обеспечения габаритов прохода, а также восприятия передаваемой на настил нагрузки.
3. В случае, если рабочий настил находится на высоте 1,3 м и более относительно перекрытия (покрытия), подмости должны иметь защитное ограждение.
Кроме этого, при выборе средств подмащивания необходимо учитывать также расположение фронта работ. В случае, если фронт работы перемещается по горизонтали, наиболее рациональным является применение переставных (массой до 15 кг) или передвижных подмостей. При перемещении фронта работ по вертикали могут применяться люльки. При наличии большого фронта работ по вертикали и горизонтали следует применять стоечные леса.
В зависимости от характера деятельности и фронта работ могут применяться различные типы средств подмащивания, классификация которых приводится в таблице 2.
Средства подмащивания, так же как и защитные ограждения могут являться составной частью оснастки. Примером может служить оснастка для бетонных и монтажных работ, представленная на рисунках 8 - 11.
Таблица 2 - Классификация типов средств подмащивания (с учетом ГОСТ 24258; ГОСТ 28012; ГОСТ 27372; ГОСТ 26887)
№ п. п. | Признаки классификации | Наименование типов оборудования, устройств | |||||
Количество ярусов | Возможность перемещения | Конструктивная связь со зданием | Параметры | ||||
Высота | Нагрузка | Площадь | |||||
1 | Одноярусные подмости | Мобильные | Свободностоящие | Подъемники (вышки) | |||
2 | Столики, передвижные площадки | ||||||
3 | Подмости | ||||||
4 | Переходные мостики | ||||||
5 | Подвесные | Люльки | |||||
6 | Навесные | Площадки навесные | |||||
7 | Приставные | Лестницы | |||||
8 | Многоярусные (леса) | Стационарные | Свободностоящие | Передвижные разборные леса | |||
9 | Приставные | Леса стоечные приставные | |||||
10 | Навесные | Навесные леса | |||||
Подвесные | Подвесные леса |


Установка временного ограждения лестничных площадок и лестничных маршей выполняется до устройства постоянных ограждений лестничной клетки в целях предупреждения возможного падения рабочих.
Временное ограждение крепится к конструкциям с помощью струбцин.
Рисунок 5 - Схема установки временного ограждения лестничной клетки

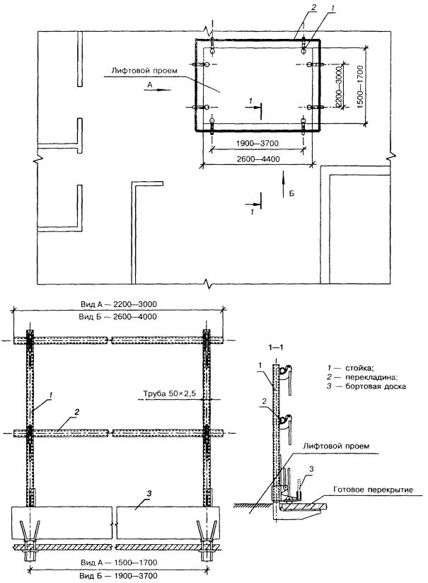
Для предупреждения падения в проем лифтовой шахты в процессе строительно-монтажных работ предусматривается установка временного ограждения проема, представляющего из себя стойку, закрепленную с помощью струбцин к плитам перекрытия, с перекладинами и бортовой доской.
Рисунок 6 - Схема временного ограждения лифтовых проемов

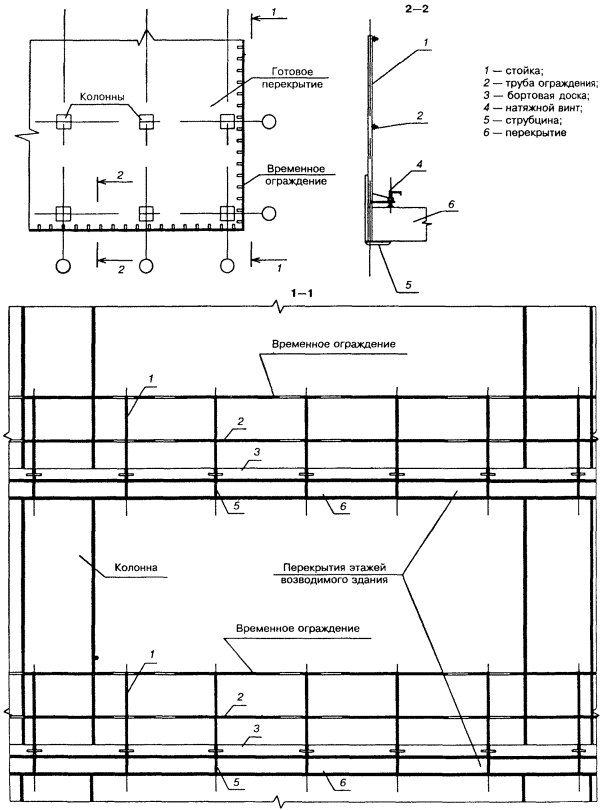
В целях предотвращения возможного падения с этажей здания, имеющих открытые перекрытия, устанавливаются инвентарные ограждения перекрытий, закрепляемые с помощью струбцин за готовое перекрытие.
Рисунок 7 - Схема устройства временного ограждения перекрытия

Для предупреждения возможного падения при производстве работ по опалубливанию, армированию и бетонированию монолитных перекрытий устанавливается ограждение рабочей зоны из стоек, закрепляемых к поперечным балкам с помощью струбцин с навешенными перилами ограждения и бортовой доской. По поперечным балкам укладывается рабочий настил.
Рисунок 8 - Схема устройства средств подмащивания при бетонировании плиты перекрытия

Защитное ограждение и рабочий настил устраиваются для обеспечения безопасности производства работ при бетонировании конструкции стены с использованием крупнощитовой опалубки.
Для подъема на рабочий настил навешивается инвентарная лестница.
Рисунок 9 - Схема устройства рабочего настила и защитного ограждения при бетонировании стены

При бетонировании колонны для образования места бетонщика и ликвидации возможности падения его с высоты на опалубку навешиваются подмости с настилом, имеющие ограждения.
Подъем на рабочий настил производится с использованием навесной лестницы.
Рисунок 10 - Схема устройства средств подмащивания при бетонировании колонны

Защитное ограждение применяется для предупреждения падения с рабочей площадки во время производства опалубочных, арматурных и бетонных работ при устройстве прогонов, балок.
Ограждение представляет собой стойки, закрепленные к поперечным балкам с помощью струбцин. Между стойками устраиваются перила ограждения и бортовая доска.
|
Из за большого объема этот материал размещен на нескольких страницах:
1 2 3 |



