3. Вывод уравнения прочности нормального сечения балки прямоугольного элемента с одиночным армированием.
4. Стадии напряженно деформированного состояния.
5. Расчет прочности нормального сечения балки прямоугольного сечения с одиночным армированием. Общий порядок расчета.
6. Расчет прочности нормального сечения балки таврового сечения.
7. Примеры расчета железобетонных балок прямоугольного и таврового сечения на подбор количества рабочей продольной арматуры.
8. Расчет прочности железобетонных балок прямоугольного сечения по наклонному сечению: обеспечение прочности по накладной трещине.
9. Конструирование каркаса.
10. Расчет монолитных балочных плит и понятие о расчете монолитных ребристых перекрытий.
11. Понятие о расчете сборных пустотных и ребристых плит.
12. Некоторые правила конструирования железобетонных балок.
13. Понятие о расчете железобетонных балок с двойным армированием.
14. Понятие о расчете сборных железобетонных конструкций на транспортные и монтажные нагрузки.
15. Уметь расчитывать, т. е. подобрать сечение или проверить несущую способность железобетонных балок прямоугольного сечения с одиночным армированием и простейших балок таврового сечения по нормальному и наклонному сечению.
Тема 6.5. Предварительно напряженные ж/б конструкции
1. Общие сведения.
2. Суть и стадии предварительного напряжения.
3. Материалы.
4. Способы натяжения арматуры.
5. Напряжения в предварительно напряженной арматуре.
6. Особенности армирования предварительно напряженных железобетонных конструкций.
7. Понятие о расчете предварительно напряженных железобетонных конструкций.
Тема 7. Соединение элементов конструкций
Тема 7.1. Соединения элементов стальных конструкций
1. Сварные соединения: типы и расчет стыковых и угловых швов.
2. Конструктивные требования к сварным соединениям.
3. Уметь рассчитать, т. е. определить длину и высоту сварного шва в симметричном сварном соединении.
4. Болтовые соединения: достоинства и недостатки; типы и расчет обычных и высокопрочных болтов в симметричных соединениях и их растяжение.
5. Определение количества болтов в болтовом соединении.
6. Фундаментные (анкерные) болты.
Тема 7.2. Соединение элементов деревянных конструкций
1. Классификация соединений деревянных конструкций.
2. Соединение цельных деревянных элементов: на нагелях (гвоздях), на врубках.
3. Расчет нагельных и гвоздевых соединений.
4. Понятие о конструкции и расчете врубки.
5. Уметь определять количество гвоздей (нагелей) в гвоздевом (нагельном) соединении деревянных элементов.
Тема 7.3. Соединение элементов железобетонных конструкций
1. Стыки сборных железобетонных конструкций: колонны с колонной, колонны с ригелем.
2. Стыки арматуры. Цементно-песчаные шпонки.
3. Понятие о работе и целях расчета стыков.
4. Сборно-монолитные стыки.
Тема 8. Стропильные фермы
Тема 8.1. Общие сведения
1. Балки и фермы. Область распространения.
2. Классификация ферм.
3. Генеральные размеры. Общий порядок расчета.
Тема 8.2. Стальные фермы
1. Область распространения и простейшие конструкции стальных ферм.
2. Подбор сечений стержней фермы: растянутых и сжатых.
3. Некоторые правила конструирования стальных ферм: опорные и промежуточные узлы.
4. Уметь рассчитать, т. е. подобрать сечение растянутого и сжатого стержня стальной фермы.
Тема 8.3. Деревянные фермы
1. Область распространения и простейшие конструкции деревянных ферм.
2. Понятие о расчете металлодеревянных ферм.
3. Некоторые правила конструирования деревянных ферм: опорный, коньковый и промежуточный узлы.
4. Уметь рассчитать, т. е. подобрать сечение растянутого и сжатого стержня деревянной фермы.
Тема 8.4. Железобетонные фермы
1. Область распространения и простейшие конструкции железобетонных ферм.
2. Понятие о расчете железобетонных ферм.
3. Правила конструирования ферм с предварительно напряженной и обычной арматурой.
Тема 9. Рамы и арки
Тема 9.1. Рамы
1. Общие сведения.
2. Стальные, железобетонные и деревянные рамы.
3. Простейшие конструкции, понятие их расчета.
Тема 9.2. Арки
1. Общие сведения.
2. Стальные, железобетонные и деревянные арки.
3. Простейшие конструкции, понятие их расчета.
Тема 10. Основания и фундаменты
Тема 10.1. Естественные основания
1. Общие сведения: грунты, основания.
2. Строительная классификация грунтов.
3. Физические и механические характеристики грунтов.
4. Распределение напряжений в грунте: от собственного веса, под подошвой фундамента, в массиве грунта.
Тема 10.2. Фундаменты неглубокого заложения
1. Общие сведения.
2. Виды фундаментов неглубокого заложения.
3. Определение глубины заложения фундаментов и учет различных факторов.
4. Определение размеров подошвы фундамента на скальных и дисперсных грунтах.
5. Примеры расчета на определение размеров подошвы фундамента, количество рабочей арматуры в подошве фундамента.
6. Расчет отдельно стоящего фундамента по материалу: расчет площади арматуры и на продавливание.
7. Особенности расчета ленточных фундаментов.
Тема 10.3. Свайные фундаменты
1. Общие сведения.
2. Классификация свай.
3. Расчет свайных фундаментов.
4. Расчет висящих свай и свай стоек.
5. Определение несущей способности висящих свай и свай стоек.
6. Понятие о расчете конструкций ростверков.
Тема 10.4. Искусственные основания
1. Замена слабых грунтов.
2. Поверхностное уплотнение грунта.
3. Глубинное уплотнение.
4. Закрепление грунтов.
5. Задачи и особенности расчета искусственных оснований.
Контрольная работа.
Задание №1 «Определение нагрузки на элементы здания»
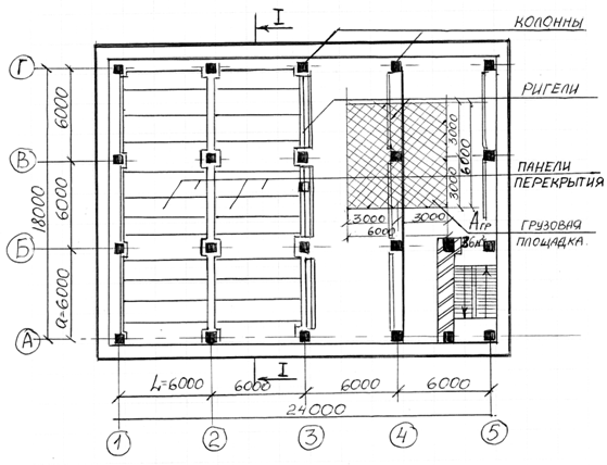
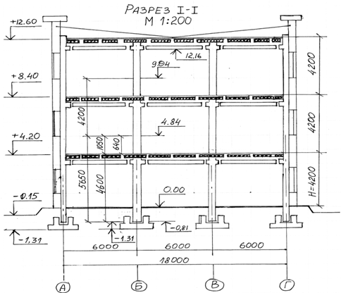
Произвести сбор нагрузок на низ колонны в осях «В-4» административно-хозяйственного здания (рисунок 1 стр.17).
Исходные данные принять по таблице 1.
Исходные данные для всех вариантов:
1. Кровля плоская невентилируемая. Состав кровельного покрытия:
а) гравий, втопленный в битумную мастику, толщина слоя δ = 15 мм, плотность ρ = 2000 кг/м3;
б) 4 слоя рубероида на битумной основе, вес q = 1800 кг/м3;
в) цементно-песчаная стяжка δ = 30 мм, плотность ρ = 1800 кг/м3;
г) утеплитель – данные из таблицы №1 пп 7,8;
д) пароизоляция q = 50 Н/м2;
е) панели покрытия ( принять так же, как и в междуэтажных перекрытиях);
ж) междуэтажные перекрытия - пустотные плиты ПК (q = 3,2 кН/м2);
з) пол первого этажа выполнен по грунту;
и) Балки покрытия и перекрытия сечением b × h = 200×400 мм, железобетонные, плотностью ρ = 2500 кг/м3 (удельный вес γ = 25 кН/м3).
2. Здание относится ко второму классу ответственности, коэффициент надежности по назначению γn = 0,95 (СНиП 2.01.07-85* «Нагрузки и воздействия»).
3. Коэффициент условий работы бетона γb = 0,9
4. Для расчетных железобетонных элементов принять класс бетона В20, класс рабочей арматуры А-II, марки ВСт3Пс -2. Класс монтажной (конструктивной) арматуры А-1.
Для наглядности и облегчения дальнейшего расчета (определения грузовой площади, количества этажей, расчетной и номинальной длины колонны, отметки подошвы фундамента) целесообразно вычертить карандашом схематично план и разрез здания.
Нагрузки, собранные в данном задании, будут использованы при решении задачи 2 и задачи 5 данной контрольной работы.
План НА ОТМ. 4.20


РИС. 1.
Типы конструкций перекрытия
А
Паркет дубовый 17
Мастика битумная 3
Цементная стяжка 20
Звукоизоляция (ДСП) 20
Железобетонная плита 160

Б Керамическая плитка 10
Цементная стяжка 25
Гидроизоляция 5
Железобетонная плита 160

В бетонные плитки 20
цементная стяжка 25
звукоизоляция (ДСП) 20
железобетонная плита 160

РИС. 3.
Задание №2.» Расчет колонны»
Произвести расчет и конструирование нижней колонны среднего ряда каркаса административно-хозяйственного здания (рисунок 1, стр.17).
Основные исходные данные принять по таблице 1, а так же по заданию 1. В расчете использовать данные по подсчету нагрузок на колонну, полученные при выполнении задания 1.
При выполнении расчетов пользоваться следующей литературой:
СНиП 2.01.07-85* «Нагрузки и воздействия»
СНиП 2.03.01-84 * «Бетонные и железобетонные конструкции»
Задание №3. «Расчет балочной клетки»
По данным таблицы 1 и схемам балочных клеток (рисунок 2 стр.20) требуется:
1. Произвести расчет вспомогательной (главной) балки прокатного двутаврового сечения по первому и второму предельным состояниям.
2. Выполнить чертеж балочной клетки в масштабе 1 : 20 – 1 : 50.
3. На чертеже определить грузовую площадь, вычертить расчетную схему балки.
Общие исходные данные для заданий 3 и 4
|
Из за большого объема этот материал размещен на нескольких страницах:
1 2 3 4 5 |



