1. Изобразить схему в соответствии с вариантом.
2. Заменить распределенную нагрузку ее равнодействующей Q=q·l.
Приложить равнодействующую к балке в центре тяжести соответствующего прямоугольника.
3. Заменить жесткую заделку ее реакциями.
![]() |
4. Составить расчетную схему балки.
5. Выбрать оси координат.
6. Составить уравнения равновесия:
![]()
7. Из уравнений равновесия найти неизвестные реакции.
8. Провести проверку правильности решения, составить уравнения:
.
9. Записать ответы.
10. Вывод.
Задания к практической работе № 3
|
|
|
|
|
|
|
|
|
|
|
|
|
|
|
|
|
|
|
|
|
|
|
|
|
|
|
|
|
|
Практическая работа № 4.
Определение координат центра тяжести плоской фигуры.
Тема: Статика. Центр тяжести.
Цель работы: Научится определять координаты центра тяжести плоской фигуры сложной формы.
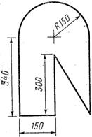
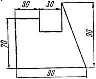
Задание: Определить координаты центра тяжести сложной плоской фигуры. Схему выбрать в соответствии с номером студента по списку в журнале.
Порядок выполнения.
1. Изобразить заданную фигуру в соответствии с заданием в произвольном масштабе.
2. Выбрать оси координат.
3. Разбить фигуру на составные части, положение центров тяжести которых известно или легко определяется.
4. Определить площади составных частей. Площади вырезов принимать отрицательными.
5. Определять координаты центров тяжести составных частей.
6. Найденные значения площадей, а также координаты их центров тяжести представить в соответствующие формулы и вычислить координаты центра тяжести всей фигуры.
![]()
=
7. По найденным координатам нанести на эскизе положение центра тяжести фигуры.
8. Вывод.
Задания к практической работе № 4
|
|
|
|
|
|
|
|
|
|
|
|
|
|
|
Практическая работа № 5.
Определение угловых и линейных скоростей и
ускоренных точек вращающегося тела.
Тема: Кинематика. Вращательное движение твердого тела.
Цель работы: Научится определять угловые скорости и ускорения точек вращающегося, тела, а также их линейные скорости, касательное, нормальное и полное ускорение.
Задание: Движение груза задано уравнением у=f(t). Определить скорость и ускорение груза в момент времени t1, а также скорость и ускорение точки В на ободе шкива. Данные для своего варианта принять по таблице 1.
Порядок выполнения.
1. Изобразить в произвольном масштабе схему.
2. Для груза А изобразить вектор скорости
и ускорения
.
3. Из уравнения движения у=f(t) найти для груза скорость движения: 
и ускорение движения:
.
4. Подставить в полученные выражения значения времени t, и найти численное значение скорости и ускорения.
5. Из условия совместимости движения троса с грузом и точек обода шкива при отсутствии проскальзывания определяем VB=VA;
Откладываем на эскизе вектор
и ![]()
.
6. Определяем угловую скорость шкива: ![]()
7. Определение углового ускорения шкива:
8. Определение нормального ускорения точки В:
9. Определение полного ускорения точки В:
10. Нанести векторы скорости ускорения точки В на эскиз.
11. Ответ.
12. Вывод.
Задания к практической работе № 5
Движение груза А, опускающегося при помощи лебедки, задано уравнением у=at2+bt+c, где у — в м, t — в с. Определить скорость и ускорение груза в момент времени t1, а также скорость и ускорение точки В на ободе шкива (табл.)
|
Из за большого объема этот материал размещен на нескольких страницах:
1 2 3 4 |




1
2
3
4
5
6
7
8
9
10
11
12
13
14
15
16
17
18
19
20
21
22
23
24
25
26
27
28
29
30
Вариант 1, 16
Вариант 2, 17
Вариант 3, 18
Вариант 4, 19
Вариант 5, 20
Вариант 6, 21
Вариант 7, 22
Вариант 8, 23
Вариант 9, 24
Вариант 10, 25
Вариант 11, 26
Вариант 12, 27
Вариа нт 13, 28
Вариант 14, 29
Вариант 15, 30