4.8. Вычислить значение скорости потока:
, где w2- площадь сечения трубопровода.
4.9. Замерить температуру воды и найти значение кинематического коэффициента вязкости n.
4.10. Вычислить значение критерия Рейнольдса по формуле
,
где d2 – диаметр трубопровода; n- коэффициент кинематической вязкости.
4.11. Результаты вычислений внести и таблицы 1,2.
4.12. После проведения опытов для разных расходов построить график зависимости
.
5. Контрольные вопросы
5.1. Какова конструкция водомера Вентури?
5.2. Что учитывает коэффициент водомера К?
5.3. Что учитывает коэффициент расхода m?
5.4. Изобразить схему водоструйного насоса.
5.5. Какие приборы и устройства применяют для измерения расхода жидкости?
5.6. Как влияет число Re на значение коэффициента m.
6. Литература
6.1. Башта , гидромашины и гидроприводы. М., Машиностроение 1982 г., стр. 52-54.
6.2. Учингус и гидравлические машины. Харьков 1970г., стр. 128-133.
6.3. , Калицун , водоснабжение и канализация. М., Стройиздат 1972 г., стр. 49-50.
Таблица результатов измерений
Таблица 1
|
№№ заме- ров |
m |
Объём бака W, см3 |
Время t, с |
Расход, Q, см3/с |
Показания пьезометров | ||
|
№2 см вод. ст. |
№3 см вод. ст. |
Δh | |||||
|
1 | |||||||
|
2 | |||||||
|
3 | |||||||
|
4 | |||||||
|
5 | |||||||
|
6 |
Зависимость коэффициента m от числа Re
Таблица 2
|
m | ||||||
|
Re | ||||||
|
Δh | ||||||
|
Q |
Лабораторная работа №4
Определение потерь напора и коэффициента сопротивления
по длине в трубопроводе
1. Цель работы
Ознакомление с методом постановки гидравлических экспериментов по определению коэффициентов сопротивления трения по длине.
2. Ведение
Основной расчётной формулой для определения потерь напора по длине является формула Дарси-Вейсбаха:
,
где λ-коэффициент Дарси;
– потери напора по длине;
, d – геометрические размеры трубопровода; V - средняя скорость потока.
Эта формула применима как при турбулентном, так и при ламинарном режиме движения, различие заключается лишь в значении коэффициента l.
Если экспериментально определить потери напора h, зная геометрические характеристики трубопровода легко получить значения коэффициента l
.
Известно, что из закона гидравлического подобия коэффициент Дарси зависит от числа Рейнольдса Re, а так же от безразмерного геометрического фактора - относительной шероховатости внутренней поверхности трубы, т. е.
,
где D-средняя высота бугорков шероховатости; d-диаметр трубы.
Когда шероховатость трубы не влияет на её сопротивление, трубу называют гидравлически гладкой, т. е l=f(Re).Этот режим имеет место при 2300<Re<105,для определения l можно пользоваться формулой Блазиуса:
.
Как показывают опыты ряда исследователей, при турбулентном течении жидкости непосредственно на стенке трубы обычно имеется ламинарный слой. Это очень тонкий слой жидкости, движение в котором происходит без перемешивания. Причём, при увеличении скорости движения потока и, следовательно, Re , толщина ламинарного слоя уменьшается.
При этом бугорки шероховатости будут полностью выступать из ламинарного слоя и начнут оказывать влияние на величину потерь. Этот режим имеет место при
20d/Kэ<Re<500d/Kэ,
где Кэ - эквивалентная абсолютная шероховатость.
Эта область называется «доквадратичной» или «переходной». Значение l можно определить по формуле Альтшуля:
.
При дальнейшем увеличении скорости движения ламинарный слой исчезает, бугорки шероховатости будут полностью находиться в турбулентном потоке. Здесь Re>500d/Kэ. Эта область называется областью автомодельности или режимом «квадратичного сопротивления». Значит l можно определить по формуле Шифринсона.
.
Таким образом, путём сравнения численного значения отношения Kэ/d c числом Re можно установить границы областей (режимов) турбулентного течения в шероховатых трубах.
3. Измерительные приборы
Мерный бак, секундомер, пьезометры, термометр, линейка.
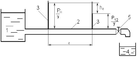
Схема установки
![]() |
1. Напорный резервуар;
2. Участок трубы, на котором определяется коэффициент Дарси-Вейсбаха λ, труба установлена горизонтально;
3. Пьезометры;
4. Мерный бак;
5. Регулировочный вентиль;
4.Последовательность наблюдения и обработка результатов наблюдения
4.1.Изобразить схему установки. Измерить длину опытного участка трубы и внутренний диаметр.
4.2.Открыть задвижку у напорного бака и вентили на отводах к пьезометрам 11 и 12, выпустить воздух из резиновых колен, соединяющих пьезометрические трубки с трубопроводом.
4.3.Включить центробежный насос (включается лаборантом или преподавателем) для подачи воды в главный напорный бак.
4.4.Открыть вентиль, определить расход объёмным способом.
4.5.После того как, уровень воды в пьезометрах установиться, снять показания пьезометров и определить разность пьезометрических высот.
4.6.Вычислить живое сечение потока, среднюю скорость движения воды в опытном участке трубопровода и найти величину у дельной кинетической энергии.
4.7.Определить величину коэффициента сопротивления трения пользуясь формулой Дарси-Вейсбаха.
.
4.8.Измерить температуру воды и вычислить значения числа Рейнольдса (см. лабораторную работу №3) для выяснения режима течения жидкости, выявления зоны сопротивлений и выбора соответствующей формулы для подсчёта коэффициента Дарси по эмпирическим формулам других исследователей.
4.9.Произвести аналогичные измерения для 4-5 других значений расходов. Результаты заносим в таблицу 1.
4.10.Полученные значения наносятся на график
.
4.11. По формулам различных исследователей подсчитать значение “λ” занести в таблицу 2.
5.Контрольные вопросы
5.1. Что такое область гидравлически гладких труб?
5.2. Что такое квадратичная и доквадратичная область?
5.3. Как влияет шероховатость стенок труб на коэффициент гидравлического сопротивления?
5.4. Что такое число Re и как оно влияет на потери напора?
5.5. Что такое относительная шероховатость?
5.6. Нарисуйте и объясните график Мурина?
6. Литература
6.1. , Калицун , водоснабжение и канализация. М; Стройиздат,1972, стр 56-60
6.2. Башта , гидромашины и гидроприводы. Машиностроение, 1982, стр 82-91
Результаты измерений
Таблица 1
|
№№ |
Объём вытекаю-щей жидкости W |
Время наполнения сосуда t |
Расход Q |
Скорость |
Показания пьезометров |
Потеря напора
|
Re |
Коэф λ | ||
|
V11 |
V12 |
11 |
12 | |||||||
|
1 | ||||||||||
|
2 | ||||||||||
|
3 | ||||||||||
|
4 | ||||||||||
|
5 |
Таблица 2
|
Из за большого объема этот материал размещен на нескольких страницах:
1 2 3 4 5 |




