Можно установить анимацию в процессе смены слайдов, применяя разные эффекты. Для этого:
В группе Применить к выделенным слайдам можно выбрать способ, как один слайд будет сменяться другим.
В группе Изменить переход:
1. В раскрывающемся списке Скорость можно выбрать скорость просмотра слайда.
2. В раскрывающемся списке Звук можно выбрать звук, которым будет сопровождаться смена слайдов.
В группе Смена слайда установить флажок Автоматически после (флажок По щелчку снять) и указать время показа слайдов или оставить По щелчку.
Выбранную настройку можно применить как к одному текущему слайду, так и ко всем слайдам презентации.
Интерактивная презентация
Для того чтобы сделать презентацию интерактивной, необходимо иметь возможность изменять последовательность предъявления слайдов.
Существует 2 различных способа создания переходов: по гиперссылке и по управляющим элементам.
При создании гиперссылок желательно иметь один слайд, называемый итоговым, на котором будут собраны заголовки всех слайдов. Это своеобразное оглавление вашей презентации. Итоговый слайд вставляется после слайда заголовка. Удобно его создавать в режиме Сортировщика слайдов.
Внимание! Перед созданием Итогового слайда необходимо проверить, чтобы в разметке каждого слайда было определено место Заголовок слайда.

Рисунок 5.9
Создание итогового слайда
Итоговый слайд создается в режиме Сортировщика слайдов. Надо выделить все слайды, заголовки которых следует иметь в итоговом слайде. Для этого:
1. Щелкнуть по первому слайду.
2. Прижать клавишу Ctrl и щелкать по всем слайдам, заголовки которых должны войти в итоговый слайд. Все помеченные слайды будут выделены.
3. Далее нажать кнопку
Итоговый слайд на панели инструментов Сортировщик слайдов.
Перед первым из выделенных слайдов появляется новый слайд, где в виде маркированного списка приводятся заголовки. С итогового слайда можно сделать гиперссылку на каждый или на некоторые из слайдов, входящих в презентацию.
Создание гиперссылок
Необходимо выделить объект (текст, рисунок) для создания гиперссылки, далее выполнить команду меню Вставка - Гиперссылка.
Использование управляющих кнопок
В презентацию можно включить Управляющие кнопки, которым уже назначено какое-либо действие. Они находятся на панели Рисование.
Чтобы добавить кнопку перехода, надо выполнить команду: Автофигуры – Управляющие кнопки.
Создание и использование Заметок докладчика и Выдач
Каждому слайду презентации соответствует страница заметок докладчика, которая включает в себя уменьшенную копию слайда и место для комментариев к этому слайду. Распечатав эти страницы, их можно использовать как шпаргалку при проведении презентации.
Раздаточный материал (выдачи) предназначен для аудитории. Он поможет слушателям следить за ходом презентации, делать свои записи, позднее вернуться к теме презентации.
Заметки докладчика и Выдачи создаются на основе своих образцов.
Создание Заметок докладчика
1. Выполните команду меню: Вид – Образец ‑ Образец заметок.
2. Спозиционируйте курсор в области заметок и напечатайте нужный текст.
3. Возврат в режим Обычный происходит либо щелчком по кнопке Закрыть представление мастера либо в меню Вид.
Создание выдач
1. Выполните команду меню: Вид – Образец – Образец выдач. Появится модель страницы выдач.
2. Для предварительного просмотра вариантов разметки страниц выдач используйте кнопки панели инструментов Выдачи.
3. Возврат в режим Обычный происходит либо по кнопке Закрыть представление мастера либо в меню Вид.
5.2. Общие требования по оформлению презентации
Презентация должна содержать:
· Титульный слайд;
· Слайд с содержанием (оглавлением);
· Информационные слайды (основное содержание);
· Завершающий слайд.
Рекомендации по содержанию каждого типа слайдов представлены в таблице 5.1.
Таблица 5.1 – Содержание слайдов
Наименование слайда
Содержание слайдов
В титульном слайде указываются:
тема сообщения;
фамилия, имя и отчество докладчика;
фамилия, имя и отчество содокладчика (если он есть);
место, дата
Слайд с содержанием
должен представлять собой оглавление в формате гиперссылок
Информационные слайды
Информационные слайды могут содержать диаграммы и графики, также текстовые, табличные и графические материалы, предназначенные для более четкого восприятия аудиторией информации, излагаемой в сообщении.
Завершающий слайд
содержит те же данные, что и титульный слайд
Рекомендации по оформлению, дизайну презентации представлены в таблице 5.2.
Таблица 5.2 - Рекомендации по оформлению и дизайну презентации
Наименование
Рекомендации по оформлению и дизайну
Нумерация слайдов.
· В презентации должна применяться сквозная нумерация слайдов, т. е. титульный слайд – это слайд № 1, слайд с содержанием – это слайд № 2 и далее по порядку.
· Номер слайда отображается в правом нижнем углу.
· На титульном и завершающем слайдах отображение номера может отсутствовать.
Использование страниц заметок
Использование страниц заметок желательно, здесь вы можете разместить более подробную информацию по излагаемой теме.
Использование колонтитулов
· Использование колонтитулов позволит разместить на каждом слайде постоянный текст, например, тему сообщения и имена авторов.
Стиль
· Соблюдайте единый стиль оформления, в этом поможет использование шаблона.
· Избегайте стилей, которые будут отвлекать от самой презентации.
Фон
Для фона рекомендуется выбирать более холодные тона (оттенки синего, зеленого).
Использование цвета
· На одном слайде рекомендуется использовать не более трех цветов: один для фона, один для заголовков, один для текста.
· Для фона и текста используйте контрастные цвета.
Анимационные эффекты
· Не стоит злоупотреблять различными анимационными эффектами, они не должны отвлекать внимание от содержания информации на слайде.
Содержание информации
· Используйте короткие слова и предложения.
· Минимизируйте количество предлогов, наречий, прилагательных.
· Время глаголов должно быть везде одинаковым.
· Заголовки должны привлекать внимание аудитории.
Расположение информации на слайде
· Наиболее важная информация должна располагаться в центре экрана.
· Если на слайде располагается картинка, надпись должна располагаться под ней.
Шрифты
· Для заголовков – не менее 36 пт.
· Для информации – не менее 18 пт.
· Шрифты без засечек легче читать с большого расстояния.
· Нельзя смешивать разные типы шрифтов в одной презентации.
· Для выделения информации следует использовать жирный шрифт, курсив или подчеркивание.
· Нельзя злоупотреблять прописными буквами (они читаются хуже строчных).
· Не используйте шрифты с тенью или другими украшениями.
Объем информации
· Не стоит заполнять один слайд слишком большим объемом информации: люди могут единовременно запомнить не более трех фактов, выводов, определений.
· Наибольшая эффективность достигается тогда, когда ключевые пункты отображаются по одному на каждом отдельном слайде.
Виды слайдов
Для обеспечения разнообразия следует использовать разные виды слайдов:
· С текстом.
· С таблицами.
· С диаграммами.
Таблицы
· Используйте табличную информацию только в случае крайней необходимости.
· Помните о том, что таблицы плохо воспринимаются с экранов мониторов, если она все же необходима, то сократите ее по максимуму.
Литература
1. Автосервис: станция технического обслуживания автомобилей. Учебник/ под редакцией , . – М.:Альфа-М: ИНФАРМА-М,2009.-480с.
2. Вахламов : основы конструкции. - М, «Академия», 2008, 528 с.
3. Волгин : Производство и менеджмент. - М; «Дашков и К», 2004, 440 с.
4. Управление автосервисом: Учебное пособие для ВУЗов/ Под_общей ред. . – М.: Издательство «Экзамен», 2004.-320с.
5. Волгин : Создание и компьютеризация. - М; «Дашков и К», 2008, 572 с.
6. Диксон маркетингом./Пер с англ. - М., Бином, 1998
7. Основы маркетинга/Пер с англ. - М: Прогресс, 1990, 736 с.
8. Марков : Рынок, автомобиль, клиент. - М: Транспорт, 1999, 270 с.
9. Джордж Бережливое производство + шесть сигм в сфере услуг. – М, Альпина Бизнес Букс, 2005, 402 с.
10. и др. Управление автосервисом: учебное пособие для вузов. – М: Экзамен, 2004, 320 с.
11. Шарипов эргономики и дизайна автомобилей и тракторов – М, Академия, 2007, 256 с.
12. Мощность. Тюнинг двигателя. Руководство – СПб: Алфанер Паблишинг, 2005, 200 с.
13. Автомобильные кузова – СПб: Алфанер Паблишинг, 2003, 280 с.
14. Тюнинг автомобиля. - СПб: Алфанер Паблишинг, 2003, 184 с.
15. Тюнинг «Самары». Производственно – практическое издание – М: «За рулём», 2006, 136 с.
16. Литература по тюнингу АТС:
16.1 М. Кумбс и A. Легг. Audi 100 & A6 , бензин/дизель. Ремонт и техобслуживание. Пер. с англ. СПб: Алфамер Паблишинг, 2008
16.2 Г. Этцольд. BMW 3-й серии с 2005 г. Ремонт и техническое обслуживание. Пер. с нем. СПб: Алфамер Паблишинг, 2007.
16.3 Р. Мэддокс и Д. Хэйнес. Chevrolet S-10/Blazer 94-01, GMC Sonoma “пикап” , бензин. Руководство по ремонту и техобслуживанию. Пер. с англ. СПб: Алфамер Паблишинг, 2004.
16.4 М. Рэндалл. Ford Focus , бензин, дизель. Ремонт и техническое обслуживание. Пер. с англ. СПб: Алфамер Паблишинг, 2009.
16.5 . Ford Mondeo c 2003. Ремонт и техническое обслуживание. Пер. с англ. СПб: Алфамер Паблишинг, 2008
16.6 , . Mercedes Benz C180, C200, C220, C230 & С250, , бензин/дизель. Ремонт и техническое обслуживание. Пер. с англ. СПб: Алфамер Паблишинг, 2009.
16.7 М. Комбз , С. Рэндл. Nissan Primera 1990-99, бензин. Ремонт и техническое обслуживание. Пер. с англ. СПб: Алфамер Паблишинг, 2006.
16.8 Дж. Сторер и Дж. Х. Хейнес. Toyota Camry 2002–2005. Руководство по ремонтутехническому обслуживанию. Пер. с англ. СПб: Алфамер Паблишинг, 2007.
16.9 М. Рэндалл. Volvo V70 & S80 , бензин, дизель. Ремонт и техническое обслуживание. Пер. с англ. СПб: Алфамер Паблишинг, 2008.
16.10 А. Легг, П. Гилл. VW Golf & Bora. 2001–2003. Ремонт и техническое обслуживание. Пер. с англ. СПб.: Алфамер Паблишинг, 2008.
16.11 Дж. Гордон. Автоматические коробки передач. Диагностика и ремонт. Пер. с англ. СПб: Алфамер Паблишинг, 2004.
16.12 Б. Муссельвайт, Б. Джекс. Тюнинг автомобиля. Руководство. Пер. с англ. СПб: Алфамер Паблишинг, 2003.
16.13 Л. Портер. Автомобильные кузова. Руководство по ремонту. Пер. с англ. СПб: Алфамер Паблишинг, 2007.
16.14 Ч. Уайт. Диагностика двигателя. Коды неисправностей. Руководство. Пер. с англ. СПб: Алфамер Паблишинг, 2005.
16.15 К. Роджерс и С. Рэндл. Дизельные двигатели. Руководство по обслуживанию. Пер. с англ. СПб: Алфамер Паблишинг, 2003.
16.16 М. Рэндалл. Дизельные двигатели. Руководство по обслуживанию, диагностике и ремонту дизельных двигателей автомобилей. Пер. с англ. СПб: Алфамер Паблишинг, 2006.
16.17 К. Роджерс и Ч. Уайт Карбюраторы. Руководство по эксплуатации и ремонту. Пер. с англ. СПб: Алфамер Паблишинг, 2003.
16.18 М. Рэндалл. Системы управления двигателем. Пер. с англ. Спб: Алфамер Паблишинг 2006.
16.19 М. Рэндалл. Тормоза. Обслуживание и ремонт тормозной системы. Пер. с англ. Спб: Алфамер Паблишинг, 2005.
16.20 М. Рэндалл. Электрическое и электронное оборудование автомобилей. Руководство. Пер. с англ. СПб: Алфамер Паблишинг, 2008.
16.21 Ф. Мэтр. Скутеры. Ремонт и техническое обслуживание. Пер. с англ. Спб: Алфамер Паблишинг, 2008.
16.22 П. Гилл. Тюнинг мотоциклов. Руководство. Пер с англ. Спб: Алфамер Пиблишинг, 2006.
17. Методические указания по разработке проектов нормативов образования отходов и лимитов на их размещение (утв. приказом федеральной службы экологическому, технологическому и атомному надзору от 01.01.01 г. № 000).
18. «Методики расчета концентраций в атмосферном воздухе вредных веществ, содержащихся в выбросах предприятий» ОНД-86.
19. Методика разработки нормативов допустимых сбросов веществ и микроорганизмов в водные объекты для водопользователей - Министерство природных ресурсов Российской Федерации приказ от 01.01.01 г. n 333.
20. О нормативах платы за выбросы в атмосферный воздух загрязняющих веществ стационарными и передвижными источниками, сбросы загрязняющих веществ в поверхностные и подземные водные объекты, размещение отходов производства и потребления - Постановление правительства РФ 12.06.2003 № 000.
21. СанПиН 2.2.1/2.1.1.1278-03 гигиенические требования к естественному, искусственному и совмещенному освещению жилых и общественных зданий.
22. СанПиН 2.2.2/2.4.1340-03 "Гигиенические требования к персональным электронно-вычислительным машинам и организации работы.
Интернет-сайты:
www. *****
www. *****
www. *****
www. *****
www. *****
www. *****
www. *****
www. *****
www. *****
http://knigi. *****
ПРИЛОЖЕНИЯ
Приложение 1
Типовые темы по дипломному проектированию*
1. Проект сервисного центра по обслуживанию автовладельцев …(указать район и город). Разработка услуги по тюнингу …(указать вид тюнинга: внешний - аэрография, локеры, споллеры; внутренний - тюнинг салона, шумоизоляция, перетяжка сидений, сигнализация; технический – двигатель, тормозная система, чип – тюнинг ) автомобиля…(указать модель).
2. Проект сервисного центра по обслуживанию автовладельцев …(указать район и город). Разработка услуги по оценке аварийных повреждений.
3. Проект сервисного центра по обслуживанию автовладельцев …(указать район и город). Разработка услуги по подготовке к прохождению Государственного технического осмотра автомобилей…(указать модель).
4. Проект сервисного центра по обслуживанию автовладельцев …(указать район и город). Разработка услуги по абонементному обслуживанию автомобилей…(указать модель).
5. Проект сервисного центра по обслуживанию автовладельцев …(указать район и город). Разработка услуги по прокату автомобилей и их принадлежностей.
6. Проект сервисного центра по обслуживанию автовладельцев …(указать район и город). Разработка услуги по переоборудованию автомобилей…(указать модель) под автомобили специального назначения.
7. Проект сервисного центра по обслуживанию автовладельцев …(указать район и город). Разработка услуги по предпродажной подготовке автомобилей…(указать модель).
8. Проект сервисного центра по обслуживанию автовладельцев …(указать район и город). Разработка услуги по послегарантийному обслуживанию автомобилей…(указать модель) в соответствии с индивидуальными требованиями автовладельца.
9. Проект сервисного центра по обслуживанию автовладельцев …(указать район и город). Разработка услуги по утилизации автомобилей.
10. Проект сервисного центра по обслуживанию автовладельцев …(указать район и город). Разработка услуги по доукомплектации и дооборудованию автомобилей…(указать модель).
11. Проект сервисного центра по обслуживанию автовладельцев …(указать район и город). Разработка услуги по страхованию АТС.
12. Проект сервисного центра по обслуживанию автовладельцев …(указать район и город). Разработка услуги по обслуживанию и ремонту снегоходов.
13. Проект сервисного центра по обслуживанию автовладельцев …(указать район и город). Разработка услуги по обслуживанию и ремонту скутеров.
14. Проект сервисного центра по обслуживанию автовладельцев …(указать район и город). Разработка услуги по хранению АТС.
15. Проект сервисного центра по обслуживанию автовладельцев …(указать район и город). Разработка услуги по постановке и снятию с учета автомобиля.
16. Проект сервисного центра по обслуживанию автовладельцев …(указать район и город). Разработка услуги по проведению технического осмотра автомобилей.
17. Проект сервисного центра по обслуживанию автовладельцев …(указать район и город). Разработка услуги по продаже и гарантийному обслуживанию автомобилей.
18. Проект сервисного центра по обслуживанию автовладельцев …(указать район и город). Разработка услуги по устранению деформации кузова.
19. Проект сервисного центра по обслуживанию автовладельцев …(указать район и город). Разработка услуги по устранению дефектов лакокрасочного покрытия.
20. Проект сервисного центра по обслуживанию автовладельцев …(указать район и город). Разработка услуги по оказанию технической помощи на дорогах.
21. Проект сервисного центра по обслуживанию автовладельцев …(указать район и город). Разработка услуги по обучению вождения автомобиля.
22. Проект сервисного центра по обслуживанию автовладельцев …(указать район и город). Разработка услуги по обучению экстремальному вождению.
23. Проект сервисного центра по обслуживанию автовладельцев …(указать район и город). Разработка услуги по хранению принадлежностей автомобиля.
24. Проект сервисного центра по обслуживанию автовладельцев …(указать район и город). Разработка услуги по подготовке к продаже подержанного автомобиля.
25. Проект сервисного центра по обслуживанию автовладельцев …(указать район и город). Разработка услуги по переоборудованию автомобиля для работы на другом виде топлива.
Примечание: * Те же темы можно брать применительно к существующей СТО или СЦ. Тогда начало темы ДП будет выглядеть так: «Реконструкция …» по обслуживанию автовладельцев …» и далее по тексту.
Приложение 2
МИНИСТЕРСТВО ОБРАЗОВАНИЯ И НАУКИ РОССИЙСКОЙ ФЕДЕРАЦИИ
САНКТ-ПЕТЕРБУРГСКИЙ ГОСУДАРСТВЕННЫЙ УНИВЕРСИТЕТ
СЕРВИСА И ЭКОНОМИКИ
Кафедра «Автосервис»
Специальность 100101.65 «Сервис», специализация «Автосервис»
Заведующий кафедрой
д. т.н. проф.
_______________________________
«____» ___________________ 201__ г.
ЗАДАНИЕ
на выпускную квалификационную работу
Студенту (ке) ________________________________________________________
Тема проекта: ________________________________________________________
утверждена приказом № __________ от «____»___________________ 200__ г.
Срок сдачи студентом законченного проекта «____» ________________ 200_ г.
Исходные данные к проекту: ________________________________________________________________________________________________________________________________________________________________________________________________________________________________________________________________________________________________________________________________________________________________________________________________________________________
Продолжение приложения 2
Аннотация
Введение, цель и задачи проекта
1. Аналитическая часть: ___________________________________________________________________________________________________________________________________________________________________________________________________________________________________________________________________________________________________________________________
2. Технологическая часть: ___________________________________________________________________________________________________________________________________________________________________________________________________________________________________________________________________________________________________________________________
3. Коммуникативная часть: _________________________________________________________________________________________________________________________________________________________________________________________________________________________________________________________________________________________________________________________________________________________________________________________________________________________________________________________
4. Безопасность процессов оказания услуг ___________________________________________________________________________________________________________________________________________________________________________________________________________________________________________________________________________________________________________________________
Консультант _______________________________________
Должность, Ф. И.О.
Продолжение приложения 2
5. Экономическая часть: ___________________________________________________________________________________________________________________________________________________________________________________________________________________________________________________________________________________________________________________________
Консультант _________________________________________
должность Ф. И.О.
ЗАКЛЮЧЕНИЕ
Литература:__________________________________________________________________________________________________________________________________________________________________________________________________________________________________________________________________________________________________________________________________________________________________________________________________________________________________________________________________________________
Перечень графических материалов: ____________________________________________________________________________________________________________________________________________________________________________________________________________________________________________________________________________________________________________________________________________________________________________________________________________________________________________________________________________________________________________________________________________________________________________________________________________________________________________________________________________________________________________________________________________________________________________
Продолжение приложения 2
Календарный план выполнения дипломного проекта
Этапы проектирования
Срок выполнения
Отметка о выполнении
Подпись руководителя проекта
Дата выдачи задания « ____ » ____________________ 201__ г.
Подпись студента _________________ / _______________________/
Подпись руководителя проекта __________________ / _______________________/
Приложение 3
Структура выпускной квалификационной работы
(ориентировочный объем)
Введение (2…3 стр.)
1.Аналитическая часть (15…20 стр.)
1.2. Анализ рынка автосервисных услуг в городе…… (районе) …
1.2.1. Факторы, влияющие на спрос.
1.2.2. Изучение структуры парка автомобилей (марки, количество, годовой пробег).
1.2.3. Изучение конкурентов по основным конкурентообразующим характеристикам (объем предоставляемых услуг, виды услуг, их качество, оснащенность предприятия, режим работы, место расположения).
1.3. Выбор предоставляемой услуги и целевого сегмента на основе изучения рынка. Описание основных отличительных особенностей и конкурентных преимуществ своего предприятия.
1.4. Выбор места предоставления услуги (расположения СТО).
1.5. Цели и задачи ДП.
2. Технологическая часть (20…25 стр.)
2.1. Произвести расчет годового объема предоставляемых услуг в выбранном сегменте рынка; расчет количества рабочих и служащих; расчет площадей помещений (производственных и административно-хозяйственных).
2.2. Определить потребность в оборудовании и различного рода ресурсах.
2.3. Описание технологического процесса предоставления услуги с учетом требуемого качества и индивидуальных запросов клиентов.
3. Коммуникативная часть (12…17 стр.)
3.1. Суть кадровой политики, организация работы персонала. Структура управления предприятием.
3.2. Организация работы с клиентом предложения по привлечению клиентов; оформление договоров.
3.3. Информационное обеспечение процесса оказания услуги.
3.4. Разработка медиа – плана (стратегии и затраты на рекламу и PR-компании).
Продолжение приложения 3
4. Безопасность процессов оказания услуг (7…12 стр.)
4.1. Анализ вредных производственных факторов, влияющих на качество предоставления услуги
4.2. Производственная безопасность услуги для клиента.
4.3. Экологическая безопасность услуги.
4.4. Оценка материальных затрат на обеспечение технической и экологической безопасности услуги.
5. Экономическая часть (15…20 стр.)
5.1 Расчет технико-экономических показателей проекта.
5.2 Расчет сроков окупаемости и рентабельности проекта.
Заключение (2…3 стр.)
Литература
Приложения (20…30 стр.)
Приложение 4
МИНИСТЕРСТВО ОБРАЗОВАНИЯ И НАУКИ РОССИЙСКОЙ ФЕДЕРАЦИИ
Санкт-Петербургский государственный университет сервиса и экономики

Институт сервиса автотранспорта, коммунальной и бытовой техники
Кафедра «Автосервис»
РАСЧЕТНО-ПОЯСНИТЕЛЬНАЯ ЗАПИСКА К ВЫПУСКНОЙ КВАЛИФИКАЦИОННОЙ РАБОТЕ
НА ТЕМУ:
Дипломник / /
Руководитель проекта / /
Консультант по экономической части / /
Консультант по разделу
«Безопасность процессов оказания услуг» / /
Допустить выпускную квалификационную работу к защите в Государственной аттестационной комиссии
Заведующий кафедрой «Автосервис» д. т.н., проф.
Объем проекта:
расчетно-пояснительная записка стр.
графическая часть листов
САНКТ-ПЕТЕРБУРГ
201_
Приложение 5
Аннотация
В данном дипломном проекте разработан сервисный центр по обслуживанию автовладельцев … района города... с подробной разработкой услуги.. (см. тему ДП).
В аналитической части произведен анализ рынка автосервисных услуг … района города …, произведена сегментация рынка и выбор услуги, а также выбрано место расположения СЦ.
В технологической части произведено обоснование мощности сервисного центра, проведен расчет годового объема работ, площадей, численности производственных рабочих.
В коммуникативной части разработаны стратегии работы с клиентами, мероприятия по их привлечению; кадровая политика сервисного центра; представлено программное и информационное обеспечение, используемое в работе различных отделов СЦ.
В разделе «Безопасность процессов оказания услуг» рассматривается безопасность услуги для клиента и анализ вредных производственных факторов.
В экономической части проведен расчет финансовых показателей деятельности СЦ: рентабельности и срока окупаемости капитальных вложений.
Приложение 6
Форма листов пояснительной записки

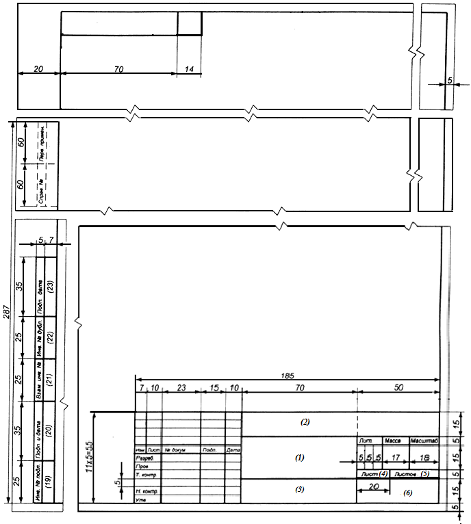
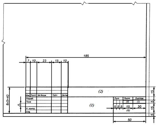
Продолжение приложения 6
Форма 1 листа формата А4 с основной надписью,
выполненная по ГОСТ 2.104.-2006

Продолжение приложения 6
Форма 2 листа формата А4 с основной надписью,
выполненная по ГОСТ 2.104.-2006

Продолжение приложения 6
Форма 2а листа формата А4 с основной надписью,
выполненная по ГОСТ 2.104.-2006

Продолжение приложения 6
Размеры и порядок заполнения основных граф штампа в формате 1*

Порядок заполнения основных граф штампа:
1. – наименование документа:
- в форме 1 – наименование объекта разработки (например, «Генеральный план СЦ», «План планировки помещений»),
- в форме 2 – формулировка темы дипломного проекта (например, «Проект сервисного центра по обслуживанию автовладельцев …. Разработка услуги по оценке аварийных повреждений»);
2. - обозначение документа. Для дипломных проектов принята следующая структура обозначения: ДПХХ.100101.ХХХ,
где ДП – дипломный проект; ХХ – форма обучения (ДО – для очной; ЗО – для заочной); 100101 – шифр специальности; ХХХ – три последние цифры зачетной книжки студента;
3. - обозначение материала детали (графа заполняется только на чертежах деталей);
4. – порядковый номер листа; 5. - общее количество листов документа (указывают только на первом листе);
6. - наименование выпускающей кафедры и учебной группы (каф. «Автосервис», гр. С-5-2005);
Примечание: * Размеры бокового штампа в формате 1и 2 аналогичен размерам боковому штампу формата 2а, который приведен ниже.
Продолжение приложения 6
Размеры и порядок заполнения основных граф штампа в формате 2*

Размеры и порядок заполнения основных граф штампа в формате 2а

Приложение 7
Таблица 1 – Анализ деятельности конкурентов*
Название сервисного центра
Марки обслуживаемых автомобилей
Количество обслуживаемых автомобилей
Виды выполняемых работ
Характеристика СЦ
СЦ «Звезда»
FORD
140
Диагностика, ремонт, прокат автомобилей, сервис, мойка
Неквалифицированный персонал, низкий уровень качества выполняемых работ и обслуживания
FIAT
34
AUDI
28
140
KIA
37
12
TOYOTA
15
OPEL
19
HONDA
96
NISSAN
31
48
СЦ «Рубин »
ВАЗ
100
Диагностика, установка дополнительного оборудования, ремонт стёкол, кузовной ремонт, пркат автомобилей
Удобное расположение, квалифицированный персонал, высокий уровень качества
SKODA
61
TOYOTA
549
NISSAN
18
MITSUBISHI
56
…
…
…
…
…
СЦ «Алекс»
FIAT
84
Ремонт глушителей, заправка кондиционеров, сервисное обслуживание, прокат автомобилей, мойка
Неудобное
расположение, квалифицированный персонал, средний уровень качества
BMW
38
HONDA
63
KIA
321
SKODA
41
TOYOTA
32
OPEL
56
ВАЗ
47
NISSAN
52
MITSUBISHI
32
Примечание: *Данные приведенные в таблице являются вымышленными, приведены только в качестве примера.
Приложение 8
Таблица 2 – Анализ конкурентов по основным конкурентообразующим характеристикам*
Конкурентообразующие характеристики
СЦ «Лазурит»
СЦ «Аякс»
…
СЦ «Вымпел»
Цена за работу (руб.) и ее восприятие
В
Н
…
С
Расстояние до СТО, км
6
21
…
15
Время работы СЦ
8.00 – 20.00
круглосуточно
…
9.00 – 21.00
Уровень технологии ТО и TP
В
В
…
В
Уровень технологии работы с клиентом
С
В
…
В
Уровень технологии управления запасами
В
В
…
В
Культура обслуживания клиентов
В
В
…
С
Квалификация кадров
Н
В
…
С
Сервисные характеристики кадров СЦ
С
В
…
В
Качество обслуживания и ремонта
С
В
…
С
Эстетика СЦ и производства
С
Н
…
В
Удобство расположения СЦ
В
В
…
С
Продолжительность выполнения работ по сравнению с конкурентами
З
НО
…
З
Степень предоставляемых услуг СЦ
НО
У
…
Ш
Имидж СЦ
В
В
…
В
Качество используемых запчастей
В
В
…
С
Примечание: Для количественной характеристики конкурентных преимуществ возможно применение балльной шкалы или рангов (например, З — завышает уровень обеспечения показателя, В — высокий, С — средний, НО — нормальный, С — средний, Н — низкий, У — узкий, Ш — широкий).
*Данные приведенные в таблице являются вымышленными, приведены только в качестве примера.
Приложение 9
Сегментирование рынка автосервисных услуг

Марка автомобилей
Свободная доля рынка, шт. N
Годовой пробег автомобилей,
км. LГ
Удельная трудоемкость ТО и Р автомобилей, чел.-час/1000 км
tТОиТР
Годовой объем работ по ТО и ТР
TТОиТР, чел.-час
Honda
488
17000
3,3
27376,8
Audi
573
15000
3,3
28338,75
BMW
722
20000
3,3
47635,5
ВАЗ
932
18000
2,8
46952,64
Итого
2715
7
Приложение 10
ТЕХНОЛОГИЧЕСКАЯ КАРТА
Операция: Замена ведомого диска сцепления автомобиля NISSAN Primera Исполнитель – Слесарь 5-го разряда
№
Наименование операции
Технические требования и указания
Приборы, инструмент, приспособления
Норма времени, чел*мин
1
Вымыть низ автомобиля
Удалить крупные загрязнения
Установка моечная высокого давления, моющее средство
25
2
Поднять автомобиль, предварительно затянув ручной тормоз
–
Подъёмник двухстоечный грузоподъёмностью не менее 2 т
2
3
Снять передние колёса
–
Гайковёрт ручной пневматический ГОСТ , головка торцовая 19 мм ГОСТ
3
4
Снять защиту картера двигателя и защитные локеры
–
Гайковёрт ручной пневматический ГОСТ , головка торцовая 13мм ГОСТ , отвертка крестовая №0 140х60 мм ГОСТ
5
...
...
…
…
…
28
Произвести регулировку привода сцепления

Высота педали 153…163 мм,
Свободный ход педали – 11…15 мм
Линейка металлическая 300 мм с двусторонней шкалой ГОСТ
11
Общее время
176,3
Продолжение приложения 10
ТЕХНОЛОГИЧЕСКАЯ КАРТА
Операция: Замена передних тормозных механизмов Исполнитель – Слесарь 5-го разряда
№
Наименование операции
Технические требования и указания
Приборы, инструмент, приспособления
Норма времени, чел*мин
1
Установить передок автомобиля на домкрат
Проверить надёжность установки
Домкрат гидравлический подкатной грузоподъёмность 2 т
2
2
Снять правое переднее колесо
–
Гайковёрт ручной пневматический ГОСТ , головка торцовая 19 мм ГОСТ
1
3
Отвернуть штуцер трубопровода и отсоединить от магистрали гибкий шланг
Отверстия шланга и трубки заглушить, чтобы не допустить утечку тормозной жидкости.
Ключ гаечный комбинированный 17 мм ГОСТ
2,5
…
…
…
…
…
15
Установить суппорт
–
Ключ гаечный комбинированный 13 мм ГОСТ
3
16
Установить тюнинговые тормозные колодки
–
Набор слесарного инструмента
1
17
Установить тюнинговый тормозной шланг
–
Ключ гаечный комбинированный 17 мм ГОСТ
2,4
18
Повторить операции 2-17 для левого колеса
Аналогично, как для операций 2-17
Аналогично, как для операций 2-17
31,1
19
Прокачать тормозную систему
Прокачку производить до полного удаления воздуха из системы
Ключ специальный для прокачки тормозов, трубка, прозрачная ёмкость 0,5 л
15
20
Проверить эффективность работы тормозных механизмов на тормозном стенде
Разность усилий не должна превышать 20 %
Стенд для проверки эффективности тормозов СТЗ-3-СП-11
12
Общее время
89,2
Продолжение приложения 10
ТЕХНОЛОГИЧЕСКАЯ КАРТА
Операция: Нанесение аэрографии автомобиля ВАЗ-2114 Исполнители – Художник, автомаляр
№
Наименование операции
Технические требования и указания
Приборы, инструмент, приспособления
Норма времени, чел*мин
1
Вымыть и высушить автомобиль
Выполнить полную мойку с применением моющих средств
Установка моечная высокого давления, автошампунь
30
2
Закрыть неокрашиваемые части автомобиля защитной плёнкой
Укрытие должно быть надёжным
Плёнка защитная, скотч
8
3
Частично разобрать автомобиль
Снимаются ручки, молдинги, пороги, бампера, фары и т. д. в зависимости от места нанесения рисунка
Набор слесарного инструмента универсальный 143 предмета ГОСТ
30
4
Осмотреть поверхность кузова, предназначенную для нанесения аэрографии. В случае обнаружения дефекты устранить
На поверхности не должно быть вмятин, царапин и прочих дефектов.
Визуально
45
5
Матировать поверхность, предназначенную под нанесение рисунка
Хаотичными движениями по поверхности, с помощью абразивных материалов убрать глянец и до тех пор, пока вся площадь детали станет равномерно матовая.
Бумага абразивная Р800, ScotchBrite (абразивная губка) с индексом UltraFine фирмы 3M.
90
6
Снять размеры для подготовки трафарета

Рулетка 3 м
1
...
...
…
…
…
Общее время
375
Продолжение приложения 10
ТЕХНОЛОГИЧЕСКАЯ КАРТА
Операция: Тюнинг заднего и переднего бамперов. Исполнители – Слесарь 5 разряда
№
Наименование операции
Технические требования и указания
Приборы, инструмент, приспособления
Норма времени, чел*мин
Демонтаж переднего бампера
1
Установка автомобиля на подъемник
Подъехать на автомобиле на подъемник, закрепить его на осях, поднять на 50-70 см для удобства работы
Подъёмник ПЗ-Т-СП двухстоечный электромеханический грузоподъёмность до 3 т
10
...
...
…
…
…
Установка нового переднего бампера
9
Установка противотуманных фар
Прикрутить противотуманные фары на штатные места в бампере с помощью болтов или саморезов. Протянуть проводку под противотуманные фары
Шуруповерт, набор бит (4 крестовых РН),
9
...
...
…
…
…
Демонтаж заднего бампера
16
Откручивание болтов верхнего крепления
Открыть крышку багажника.
Открутить четыре болта верхнего крепления бампера.
Набор слесарного инструмента универсальный 143 предмета ГОСТ
4
...
...
…
…
…
Установка нового заднего бампера
20
Установка бампера
Аккуратно установить бампер на автомобиль
Набор слесарного инструмента универсальный 143 предмета ГОСТ
3
21
Крепление бампера сверху
Закрепить задний бампер с помощью четырех болтов сверху.
Набор слесарного инструмента универсальный 143 предмета ГОСТ
5
23
Снятие авто с подъемника
Спустить автомобиль с подъемника
5
Общее время
141
Продолжение приложения 10
ТЕХНОЛОГИЧЕСКАЯ КАРТА
Операция: Тюнинг шасси автомобиля VW Bora Исполнитель – Слесарь по ремонту автомобилей 6-го разряда
№
Наименование операции
Технические требования и указания
Приборы, инструмент, приспособления
Норма времени, чел*мин
1
Вымыть низ автомобиля и подвеску
Удалить крупные загрязнения
Установка моечная высокого давления
25
2
Поднять автомобиль, предварительно затянув ручной тормоз
–
Подъёмник двухстоечный электромеханический грузоподъёмность 2 т
2
3
Снять переднее правое колесо
–
Гайковёрт ручной пневматический ГОСТ , головка торцовая 19 мм ГОСТ
3
4
Расчеканить стопорные шайбы.
Обратить внимание на положение шайбы – при сборке необходимо установить на то же место
Молоток слесарный металлический ГОСТ 2310-77, бородок слесарный ГОСТ 7214-72
0,5
...
...
…
…
…
16
Снять верхнюю опору, крышку подшипника, подшипник, верхнюю тарелку пружины
–
Набор слесарного инструмента универсальный 143 предмета ГОСТ
0,5
17
Снять со стойки пружину
Пружину снимать вместе с приспособлением
Приспособление для сжатия пружин длиной 450 мм
0,2
18
Установить тюнинговую пружину, предварительно сжав её приспособлением
–
Приспособление для сжатия пружин длиной 450 мм
5
...
...
…
…
…
21
Отрегулировать углы установки управляемых колёс
Углы должны соответствовать величине, установленной заводом-изготовителем (в зависимости от модификации подвески автомобиля)
Стенд для проверки и регулировки управляемых колёс ИСЛ 401
26
Общее время
162,6
Продолжение приложения 10
ТЕХНОЛОГИЧЕСКАЯ КАРТА
Операция: Установка штыревой антенны Исполнитель – Слесарь 5-го разряда
№
Наименование операции
Технические требования и указания
Приборы, инструмент, приспособления
Норма времени, чел*мин
1
Осмотреть салон с целью определения места прокладки антенного кабеля
Кабель должен проходить в стороне от проводов динамиков и усилителя аудиосистем, в нижней части кузова.
Визуально
3
2
Снять облицовку, которая мешает прокладке кабеля
При сборке все демонтированные детали крепежа установить на свои места
Отвертка плоская ГОСТ , ключ гаечный комбинированный ГОСТ
8
3
Отогнуть обшивку потолка
Обшивку отогнуть на расстояние, достаточное для выполнения работы
Отвертка плоская ГОСТ
2
...
...
…
…
…
12
Обработать внутреннюю часть потолка в месте крепления наждачной бумагой
Обработку произвести с целью обеспечения контакта
Бумага наждачная ГОСТ
5
13
Подсоединить к антенне наконечник кабеля
Зубчатая шайба должна быть установлена между наконечником и крышей
Набор слесарного инструмента
2
14
Закрепить гайку наконечника
После затяжки антенна не должна перемещаться
Ключ гаечный комбинированный 12 мм ГОСТ
2
15
Положить антенный кабель
При прокладке кабеля убедиться, что его длины будет достаточно для подключения к магнитоле
Набор слесарного инструмента
5
16
Установить обшивку салона на место
Аналогично, как для операций 2
Аналогично, как для операций 2
14
17
Проверить работу антенны
Антенна должна обеспечивать качественный приём радиостанций
–
3
Общее время
98
Приложение 11
Генеральный план СЦ

Приложение 12
План производственных помещений

Приложение 13
План размещения оборудования на участке

Приложение 14
Структура управления предприятием автосервиса
Приложение 15
Блок-схема процесса организации оказания услуги на предприятии

Приложение 16
Блок-схема использования пакетов прикладных программ
Приложение 17
Окно активного рабочего листа пакета прикладных программ 1С: Предприятие - Автосервис

Приложение 18
Распределения рекламного бюджета между различными СМИ
№
п/п
Рекламный носитель
Описание
Вид рекламы
Тираж, экз.
Кол-во выходов в месяц
Цена,
руб.
Сумма за все выходы руб.
1
Газета
«Ва-банкъ»
Бесплатная газета объявлений. Распространение по почтовым ящикам
Объявление
100200
4
1 500
6 000
2
Газета «Ярмарка»
Бесплатная
газета объявлений. Распространение по почтовым ящикам
Объявление
110000
4
1 250
5 000
3
Телеканал «НикаТВ ДТВ»
Телеканал
Объявление
-
30
120
9600
4
Реклама на маршрутном
транспорте
Наружная - кузов а/м
Объявление
7
-
3300
23100
Салон - информационный лист А4
Объявление
125
-
100
12500
5
Локальная сеть ЦТ
Баннер и подпись
Объявление
-
-
-
-
6
Карманный календарь
Календарик
Контактная
информация
1000
2
2000
Итого
58200
Приложение 19
Перечень иллюстративного материала
1. Результаты проведенного маркетингового анализа:
1.1. Анализ спроса на автосервисные услуги (см. таблицу 3.1, приложения 7,8,9).
1.2. Анализ предложения автосервисных услуг (см. таблицу 3.1, приложения 7,8,9).
2. Маршрутная или операционная карта (см. приложение 10).
3. Технический эскиз с использованием ППП:
3.1. Генеральный план сервисного центра (см. приложение 11).
3.2. Планировка производственных помещений (см. приложение 12).
3.3. Расстановка оборудования на участке (см. приложение 13).
4. Блок-схема управленческой структуры предприятия и его подразделений (см. приложение 14).
5. Блок-схема функциональной структуры предприятия и его подразделений.
6. Блок-схема организации процесса оказания услуги (на предприятии в целом и на конкретном участке) (см. приложение 14).
7. Блок-схема использования пакетов прикладных программ (см. приложения 16,17).
8. Блок-схема предоставления услуги.
9. Технико – экономические показатели проекта.
АВТОСЕРВИС
Методические указания по выполнению выпускной квалификационной работы по специальности 100101.65 «Сервис», специализация «Автосервис
Подп. к печати 30.09.2010
Формат 60´84 1/16
Усл. печ. л 7,34
Уч.-изд. л. 1,75
Тираж 200 экз.
Изд. № 000
Заказ № 000
РИО СПбГУСЭ, лицензия ЛР № 000
Член Издательско-полиграфической Ассоциации университетов России
Государственный регистрационный номер от 01.01.2001 г.
СПб государственный университет сервиса и экономики
г. Санкт-Петербург,
|
Из за большого объема этот материал размещен на нескольких страницах:
1 2 3 4 |



