Российская Федерация ДОГОВОР УЧАСТИЯ В ДОЛЕВОМ СТРОИТЕЛЬСТВЕ от __ января 2017 года №__ по адресу: г. Ростов-на-Дону, /35 Литер 13 |
ДОГОВОР №__
участия в долевом строительстве многоквартирного дома
г. Ростов-на-Дону __ января 2017 года
Общество с ограниченной ответственностью управление – 2 «ЮгСтройИнвест-Дон» (, ), именуемое в дальнейшем «Застройщик», , действующего на основании Устава с одной стороны и гражданин(ка) Российской Федерации _______________, ________ года рождения, пол – ________, место рождения: _______________, паспорт гражданина Российской Федерации серия ____ №__________, выдан ________г. _____________, код подразделения: __________, зарегистрированный по адресу: _____________________, СНИЛС: __________, тел.:______________, именуемый(ая) в дальнейшем «Участник долевого строительства», действующий(ая) от своего имени, с другой стороны, заключили настоящий Договор о следующем:
1. ПРЕДМЕТ ДОГОВОРА
1.1. Застройщик привлекает Участника долевого строительства к финансированию строительства Комплексная многоэтажная жилая застройка по ул. Богданова, 75 в г. Ростове-на-Дону. Литеры 12,13,14,15. Литер 13 (13-й этап строительства), на земельном участке с кадастровым номеромплощадью 4 604,0 кв. м., расположенном по адресу: г. Ростов-на-Дону, /35 (далее – Дом), обязуется в предусмотренный Договором срок построить (создать) Дом и после получения разрешения на ввод Дома в эксплуатацию передать соответствующий Объект долевого строительства (далее - Квартиру) Участнику долевого строительства.
1.2. Участник долевого строительства инвестирует строительство Дома в части одной _________________ квартиры и принимает Квартиру при наличии разрешения на ввод Дома в эксплуатацию.
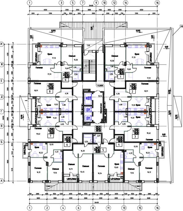
Местоположение Квартиры на плане дома указано в Приложении № 1 к настоящему Договору, являющемся его неотъемлемой частью.
Описание Объекта долевого строительства (квартиры), подлежащего передаче
Участнику долевого строительства:
Вид | Здание | |
Назначение | Жилой дом | |
Этажность | 23 | |
Площадь жилого здания | 27 619,00 кв. м. | |
Номер Квартиры согласно проекту | ||
Этаж | ||
Подъезд | ||
Площадь Квартиры согласно проекту, без учета площади балконов и лоджий (м2) | ||
Количество комнат | ||
Площадь комнат | ||
Площадь лоджии (балкона) согласно проекту: фактическая / с понижающим коэффициентом лоджии – 0,5 (балкона – 0,3) (м2) | ||
Площадь Квартиры согласно проекту с понижающим коэффициентом лоджии – 0,5 (балкона – 0,3) (м2) | ||
Материал наружных стен | Наружные стены (основной вариант) – трехслойные, самонесущие в пределах этажа, толщиной 450мм, наружный слой – облицовка силикатным кирпичом толщиной 120мм, эффективный утеплитель, несущий слой – газосиликатные блоки D500, толщиной 300мм | |
Материал поэтажных перекрытий | Перекрытия плоские безбалочные монолитные железобетонные толщиной 180 и 200мм. | |
Класс энергоэффективности | В+ «высокий» | |
Сейсмостойкость | 6 баллов | |
1.3. Настоящий Договор подлежит государственной регистрации и считается заключенным с момента такой регистрации. Застройщик оказывает организационное содействие и обеспечивает за счет дополнительных средств Участника долевого строительства оформление и регистрацию данного Договора и права собственности на Квартиру в соответствии с условиями Договора и действующим порядком оформления прав собственности. При этом Застройщик вправе привлекать третьих лиц, специализирующихся на оказании услуг по регистрации прав на недвижимое имущество и сделок с ним.
2. ОБЯЗАТЕЛЬСТВА ЗАСТРОЙЩИКА
2.1. Застройщик обязуется осуществить комплекс организационных и технических мероприятий, направленных на обеспечение строительства Дома в соответствии с проектной документацией, сроками строительства и в установленном порядке получить разрешение на ввод Дома в эксплуатацию. Предполагаемый срок ввода Дома в эксплуатацию – до 30 ноября 2018 года.
2.2. После получения разрешения на ввод Дома в эксплуатацию при условии полного выполнения Участником долевого строительства своих обязательств по настоящему договору передать соответствующую Квартиру Участнику долевого строительства. Срок передачи Квартиры – в течение 2 (двух) месяцев после ввода Дома в эксплуатацию.
2.3. В соответствии с достигнутой сторонами договоренностью, Застройщик наделяется правом досрочно исполнить обязательство по передаче Участнику долевого строительства Квартиры.
2.4. В соответствии со статьей 15.2 ФЗ РФ от 30 декабря 2004 года «Об участии в долевом строительстве многоквартирных домов и иных объектов недвижимости», с Застройщиком заключен Генеральный договор страхования гражданской ответственности застройщика за неисполнение или ненадлежащее исполнение обязательств по передаче жилого помещения по договору участия в долевом строительстве № 35-____________/2017 от «___» января 2017 года, место заключения: г. Москва, в рамках которого заключен полис (договор страхования) № ______________________ от «__» января 2017 года, дата заключения – ___.__.2017 г., срок действия договора с ___.___.2017 г. по _____________.2019 г., страховая сумма на объект долевого строительства установлена в размере: ________________ (_________________________________________________________) рублей, между обществом с ограниченной ответственностью «Строительное управление-2 «ЮгСтройИнвест-Дон» - Застройщиком и обществом с ограниченной ответственностью «Региональная страховая компания» (адрес: 127018, г. Москва, улица Складочная, дом 1, строение 15; ОГРН: 1021801434643, , ), по которому выгодоприобретателем при наступлении страхового случая является _______________, денежные средства которого(ой) привлекались для строительства (создания) объекта долевого строительства по договору участия в долевом строительстве, неисполнение или ненадлежащее исполнение Страхователем (Застройщиком) обязательств по передаче жилого помещения по договору участия в долевом строительстве, подтверждённые одним из следующих документов: вступившим в законную силу решением суда об обращении взыскания на предмет залога в соответствии со статьей 14 Федерального закона ; решением арбитражного суда о признании должника (Страхователя) банкротом и об открытии конкурсного производства в соответствии с Федеральным законом от 26 октября 2002 года «О несостоятельности (банкротстве)».
В обеспечение исполнения обязательств застройщика (залогодателя) по договору с момента государственной регистрации договора у участников долевого строительства (залогодержателей) считаются находящимися в залоге предоставленный для строительства (создания) многоквартирного дома, в составе которых будут находиться объекты долевого строительства, земельный участок, принадлежащий застройщику на праве собственности.
2.5. Предоставить в орган по государственной регистрации документы, необходимые для регистрации настоящего Договора и для регистрации права собственности Участника долевого строительства на Квартиру.
2.6. Гарантирует, что права требования на вышеназванную Квартиру на дату подписания настоящего Договора и на момент государственной регистрации не будут заложены, в споре и под арестом или запрещением не состоят. Застройщик обязуется передать Квартиру свободной от прав и притязаний третьих лиц.
2.7. Гарантийный срок на Дом по основным конструктивным элементам составляет 5 лет, а на техническое и инженерное оборудование составляет 3 года. Указанный гарантийный срок исчисляется с даты ввода Дома в эксплуатацию.
2.8. Застройщик передает Квартиру в следующем техническом состоянии: стены – кирпичные (оштукатурены), стены и перегородки в санитарном узле (ванная комната и туалет) – не оштукатурены; стяжка; батареи отопления – алюминиевые; отопление индивидуальное, разводка труб по Квартире; входная дверь металлическая; внутриквартирные (межкомнатные) двери не устанавливаются; внутриквартирная газификация согласно проектной документации (четырехконфорочная газовая плита); электропроводка – медь; телефонизация Дома (без разводки по Квартирам); приборы учета на газ, воду, электричество; стеклопакеты на окна; металлопластиковая дверь на лоджию.
Техническое состояние лоджии – ограждение кирпичное, двойное остекление лоджии.
2.9. Передача имущества Застройщиком и принятие его Участником долевого строительства осуществляется по акту, подписываемому сторонами.
3. ОБЯЗАТЕЛЬСТВА УЧАСТНИКА ДОЛЕВОГО СТРОИТЕЛЬСТВА
3.1. Обеспечивает финансирование строительства Дома, указанного в п. 1.1 настоящего Договора, в объеме и сроки, определенные настоящим Договором.
3.2. Несет в полном объеме все расходы, связанные с регистрацией права собственности на Квартиру, получаемую в результате финансирования строительства Дома, включая услуги привлеченных к регистрации лиц.
3.3. Присутствовать при всех мероприятиях, требующих его личного участия. В случаях, предусмотренных Договором, при получении соответствующего уведомления прибыть в указанный в уведомлении срок в офис Застройщика для оформления документов.
3.4. В течение семи дней со дня получения соответствующего уведомления от Застройщика Участник долевого строительства обязан принять Квартиру и подписать документы, необходимые для оформления права собственности на Квартиру, а также предоставить все необходимые для этого документы, в соответствии с действующим законодательством.
3.5. До оформления права собственности на Квартиру Участник долевого строительства обязуется не производить в Квартире и в самом здании работы, связанные с отступлением от проекта (перепланировка, возведение внутриквартирных перегородок, разводки инженерных коммуникаций, электрики, доставки дополнительных секций батарей, устройство теплых полов и вынос отопления на лоджию (балкон) – устройство труб и батарей отопления, пробивка проемов, ниш, борозд в стенах и перекрытиях, установка снаружи здания любых устройств и сооружений, любые работы, затрагивающие внешний вид и конструкцию фасада здания и т. д.) без согласования с Застройщиком, проектной организацией, эксплуатирующей организацией и уполномоченными государственными органами, а после оформления права собственности на Квартиру производить указанные действия в установленном порядке с согласованием с проектной организацией, эксплуатирующей организацией и уполномоченными государственными органами. В противном случае гарантийные обязательства снимаются, и Участник долевого строительства самостоятельно несет негативные последствия, связанные с этим.
3.6. Участник долевого строительства при условии полного внесения денежных средств по Договору, может уступить свои права по Договору третьим лицам только с письменного согласия Застройщика. При этом Застройщик строительства не несет ответственности по обязательствам Участника долевого строительства, вытекающим из договора уступки прав требования, заключаемого с третьим лицом.
3.7. С момента принятия Квартиры по акту приема-передачи Участник долевого строительства обязуется самостоятельно нести расходы по эксплуатации жилого дома и оплачивать расходы, связанные:
- с содержанием и эксплуатацией Квартиры, общего имущества жилого дома;
- с предоставляемыми коммунальными услугами.
3.8. Участник долевого строительства обязан представить Застройщику: действительный паспорт (его нотариально заверенный перевод в случае необходимости), нотариально заверенное согласие супруга(-ги) на приобретение недвижимости или нотариально заверенное заявление об отсутствии зарегистрированного брака.
3.9. Участник долевого строительства не вправе вести рекламную деятельность, связанную с предметом Договора, в том числе с использованием наименования Застройщика строительства, принадлежащих ему либо используемых им исключительных прав.
3.10. В случае изменения адреса места жительства (регистрации), номера телефона, Участник долевого строительства обязан письменно сообщить новые данные в адрес Застройщика.
4. ЦЕНА ДОГОВОРА
4.1. Цена договора (далее – размер вклада Участника долевого строительства в финансирование строительства) на дату заключения Договора составляет _______________ (______________________) рублей. Цена договора может быть изменена только в случае изменения общей площади Квартиры и (или) фактической площади лоджии (балкона), по результатам обмеров организации (предприятия), осуществляющей государственный учет и техническую инвентаризацию объектов недвижимого имущества (далее - БТИ).
4.2. Участник долевого строительства перечисляет денежные средства (вклад Участника долевого строительства в финансирование строительства) за Квартиру на расчетный счет Застройщика или вносит наличными денежными средствами в кассу Застройщика в следующем порядке и сроки:
- ______________ (_______________________________________) рублей – в течение 5 (пяти) рабочих дней с момента государственной регистрации настоящего договора.
4.3. Стоимость Квартиры, указанная в п. 4.1. настоящего договора, включает в себя сумму затрат на строительство Дома и сумму вознаграждения Застройщика в размере 1% от цены договора.
Если в результате строительства будет получена экономия, стороны считают ее как дополнительное вознаграждение Застройщика. Если в результате реализации проекта будет получен убыток – он перекрывается за счет средств Застройщика.
4.4. Окончательный расчет между Сторонами по настоящему Договору определяется исходя из уточненной общей площади передаваемой Квартиры и уточненной фактической площади лоджии (балкона).
4.5. Если общая площадь Квартиры и (или) фактическая площадь лоджии (балкона), передаваемых Участнику долевого строительства, по результатам обмеров БТИ окажется более той, что предусмотрена настоящим Договором, Участник долевого строительства обязуется осуществить соответствующую доплату за увеличение площади в течение 10 (Десяти) дней с момента получения соответствующего уведомления от Застройщика.
4.6. Если общая площадь Квартиры и (или) фактическая площадь лоджии (балкона), передаваемых Участнику долевого строительства, по результатам обмеров БТИ окажется менее той, что предусмотрена настоящим Договором, Застройщик обязуется вернуть Участнику долевого строительства излишне уплаченные средства после получения соответствующих экспликаций на Квартиру из органов БТИ.
4.7. Стороны договорились, что дополнительные расчеты, предусмотренные п. п. 4.5. и 4.6. настоящего Договора, производятся исходя из стоимости одного квадратного метра общей площади Квартиры в размере ___________________ (____________) рублей, стоимости одного квадратного метра фактической площади лоджии (балкона) в размере ___________ (_________________) рублей.
5. ОТВЕТСТВЕННОСТЬ СТОРОН
5.1. Стороны несут ответственность за неисполнение либо ненадлежащее исполнение принятых на себя по договору обязательств в соответствии с действующим законодательством Российской Федерации и условиями настоящего Договора.
6. ОБСТОЯТЕЛЬСТВА НЕПРЕОДОЛИМОЙ СИЛЫ
6.1. Стороны освобождаются от ответственности за полное или частичное неисполнение любого из своих обязательств по настоящему Договору, если неисполнение будет являться следствием обстоятельств непреодолимой силы: наводнение, пожар, землетрясение, любые другие стихийные бедствия, военные действия любого характера, блокады.
6.2. В случае наступления обстоятельств непреодолимой силы срок выполнения обязательств по настоящему Договору отодвигается соразмерно времени, в течение которого действуют такие обстоятельства и их последствия.
6.3. Сторона, для которой создалась невозможность исполнения обязательства по настоящему Договору, обязана сообщить другой Стороне в письменной форме (любыми средствами связи) о наступлении, предполагаемом сроке действия и прекращении действия вышеуказанных обстоятельств.
6.4. Неуведомление лишает Сторону права ссылаться на вышеуказанное обстоятельство как на основание, освобождающее от ответственности за неисполнение обязательств по настоящему Договору.
7. ЗАКЛЮЧИТЕЛЬНЫЕ ПОЛОЖЕНИЯ
7.1. Все споры, разногласия или требования, возникающие из настоящего Договора или в связи с ним, будут решаться Сторонами путем переговоров. Если Стороны не могут прийти к соглашению в течение трех месяцев с момента возникновения спора, каждая Сторона имеет право передать спор на рассмотрение в суд в соответствии с действующим законодательством РФ по месту нахождения Застройщика.
7.2. При подписании Договора Стороны исходили из того, что в процессе проектирования и строительства многоквартирного дома возможны внесения проектной организацией изменений в проект, которые могут повлечь за собой изменение проекта Дома, при условии, что такие изменения не будут противоречить действующим СНиП; также может корректироваться номер и иные характеристики Квартиры, согласно данным БТИ, а также срок завершения строительства Дома.
7.3. Обо всех изменениях в платежных и почтовых реквизитах Стороны обязаны немедленно извещать друг друга. Действия, совершенные по старым адресам и счетам, совершенные до поступления уведомлений об их изменении, засчитываются в исполнение обязательств. Сторона, отсутствовавшая по адресу для уведомлений, не вправе ссылаться на факт неполучения корреспонденции.
7.4. Все изменения и дополнения к настоящему Договору признаются действительными, если они совершены в письменной форме, скреплены печатями и подписаны Сторонами или уполномоченными представителями Сторон. Во всем, что не урегулировано данным договором, стороны руководствуются действующим законодательством РФ.
7.5. Недействительность какого-либо условия настоящего Договора не влечет за собой недействительность прочих его условий.
7.6. После подписания Договора Сторонами любые предшествующие дате заключения Договора и связанные с его предметом договоренности, соглашения, обязательства, оферты и заявления Сторон, как устные, так и письменные, отменяются, если таковые имели место между Сторонами. В связи с утратой юридической силы такого рода договоренностями, соглашениями, обязательствами, офертами и заявлениями Стороны не вправе в дальнейшем ссылаться на них, в том числе в случае возникновения каких-либо претензий и споров в связи с исполнением Договора.
7.7. Настоящий Договор составлен в 3 (трех) подлинных экземплярах, по одному для каждой Стороны и один экземпляр для органа регистрации прав. Все экземпляры имеют равную юридическую силу.
8. ПОДПИСИ СТОРОН
ЗАСТРОЙЩИК:
Общество с ограниченной ответственностью управление – 2 «ЮгСтройИнвест-Дон»
ОГРН: 1166196086836; ; КПП: 616301001.
344025, г. Ростов-на-Дону, ул. 37-я линия 95 офис 22
*****@***ru
;
Юго-Западный банк ПАО Сбербанк, город Ростов-на-Дону;
;
Директор _______________________________
УЧАСТНИК ДОЛЕВОГО СТРОИТЕЛЬСТВА:
__________________________________________________________________/_______________/
ФИО (полностью) Подпись
Приложение
к договору участия в долевом строительстве
№__ от __ января 2017 года
План этажа с указанием местоположения объекта долевого строительства, подлежащего передаче Участнику долевого строительства:

_____ этаж, подъезд (блок-секция): __
Примечание: границы квартиры №__, подлежащей передаче Участнику долевого строительства, на Плане этажа выделяются зелёным цветом.
Застройщик: Директор | Участник долевого строительства: |
-2 «ЮСИ-Дон» | |
_____________________________ | _____________________________/_____________/ |



