ПРАВИЛА ИГРЫ В БАДМИНТОН
Составлены на основе «Правил игры в бадминтон», введенных в действие общим собранием IBF с 6 мая 2006 года.
ОПРЕДЕЛЕНИЯ
Игрок Любой человек, играющий в бадминтон
Матч Основное соревнование в бадминтоне между соперниками друг против друга по одному или по два игрока с каждой стороны
Одиночная игра Матч, в котором соревнуются два игрока друг против друга
Парная игра Матч, в котором соревнуются по два игрока с каждой стороны
Подающая сторона Сторона, выполняющая подачу
Принимающая сторона Сторона, отражающая подачу
Розыгрыш Последовательность одного или более ударов, начинающихся с подачи до тех пор, пока волан не выйдет из игры
Удар Направленное к волану движение ракетки
1. Корт (площадка) и оборудование
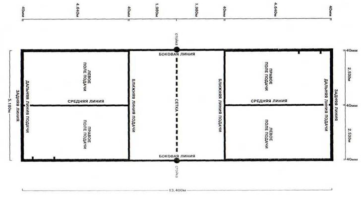
1.1. Корт (площадка) для парных и одиночных игр должен быть прямоугольным, размеченным линиями шириной 40 мм, как показано на рис.1.
1.2. Линии, должны быть легко различимы, предпочтительно белого или желтого цвета.
1.3. Все линии есть часть тех площадей поля, которые они ограничивают.
1.4. Стойки для крепления сеток должны быть высотой 1,55 м от поверхности корта. Они должны иметь достаточную прочность, чтобы оставаться вертикальными и удерживать сетку в натянутом состоянии, как предусмотрено в п.1.10. Опоры стоек не должны находиться на игровом поле.
1.5. Стойки устанавливаются на боковых линиях для парной игры, как показано на рис. 1, независимо от того, проводится ли матч в одиночном или парном разряде.
1.6. Сетка изготавливается из тонкого корда темного цвета и одинаковой толщины, с ячейками от 15х15 мм до 20х20 мм.
1.7. Ширина сетки по вертикали – 760 мм., длина по горизонтали – не более 6,1 м.
1.8. Верхний край сетки обшивается лентой белого цвета шириной 75 мм сложенной пополам, внутри которой пропускается шнур.
1.9. Шнур должен иметь достаточную длину и прочность, чтобы обеспечить натяжку сетки на уровне стоек.
1.10. Верхний край сетки в центре корта должен быть на высоте 1, 524 м от его поверхности и на высоте 1,55 м над боковыми линиями для парной игры.
1.11. Не допускается просвета (зазора) между боковой частью сетки и стойкой. Если возможно, сетку следует притянуть к стойкам по всей ширине.
1.12. Если невозможно разметить корт одновременно, как для парной, так и для одиночной игры (рис.1.), корт может быть размечен только для одиночной игры, как показано на рис.3. Задние линии корта становятся дальними линиями подачи, а стойки, или матерчатые ленты их заменяющие шириной 40 мм, располагаются на сетке вертикально над боковыми линиями.
1.13. Судейская вышка устанавливается у корта (площадки) посередине как продолжение сетки так, чтобы судья находился на расстоянии 0,5 – 1м от стойки. Высота сиденья вышки от пола – не менее 1,55 м.
2. Волан
2.1. Волан изготавливается из натуральных и (или) синтетических материалов. Независимо от материала, полетные характеристики волана должны быть близки к характеристикам натурального перьевого волана с головкой из корковой пробки, обтянутой тонкой кожей.
2.2. Перьевой волан
2.2.1. Должен состоять из 16 перьев, закрепленных в головке.
2.2.2. Перья должны быть одинаковой длины от 62 мм до 70мм, которая измеряется от кончика пера до верха головки.
2.2.3. Концы перьев должны образовывать круг диаметроммм.
2.2.4. Перья прочно скрепляются ниткой или другим подходящим материалом.
2.2.5. Головка должна бытьмм в диаметре и переходить книзу в полусферическую форму.
2.2.6. Волан должен иметь вес 4.74 – 5.50 грамм.
2.3. Неперьевой волан
2.3.1. Натуральные перья заменяются имитатором из синтетического материала.
2.3.2. Головка, размеры и вес волана должны отвечать требованиям указанным в п. п.2.2.2, 2.2.3, 2.2.5 и 2.2.6. Ввиду отличия плотности и характеристик синтетических материалов от натуральных, допускаются отклонения от указанных величин до 10%.
3. Тестирование волана на скорость
3.1. При тестировании волана выполняется прямой удар снизу с задней линии корта (площадки) вперед параллельно боковой линии.
3.2. Пригодный для игры волан должен приземляться не ближе 530 мм и не дальше 990 мм от противоположной задней линии корта (см. рис. 2).
|
Рис. 1. Разметка корта для парных и одиночных игр.
Примечание: 1. Длина корта (площадки) по диагонали – 14.723м
![]() |
Рис. 2. Контрольные метки тестирования воланов
Рис. 3. Разметка корта для одиночных игр
Примечание: Длина корта (площадки) по диагонали = 14,366 м.
4. Ракетка
4.1. Рамка ракетки не должна превышать 680 мм в длину и 230 мм в ширину. Ракетка состоит из основных частей, описанных в п. п. 4.1.1. – 4.1.5., и показанных на рис. 4.
4.1.1. Рукоятка – часть ракетки, предназначенная для удерживания её игроком.
4.1.2. Струнная поверхность есть часть ракетки, предназначенная для удара по волану.
4.1.3. Головка, удерживает струнную поверхность.
4.1.4. Стержень соединяет рукоятку с головкой.
4.1.5. Переходник (при наличии) соединяет стержень с головкой.
![]() |
Головка
Переходник
Стержень
рукоятка
Рис. 4. Ракетка для игры в бадминтон
4.2. Струнная поверхность
4.2.1. должна быть плоской и состоять из отрезков пересекающихся струн, попеременно переплетённых в местах пересечения; она должна быть однородной и, в частности, не менее частой в центре, чем в других зонах;
4.2.2. должна быть не более 280 мм в длину и 220 мм в ширину, однако, струны могут быть продолжены через область, которая в иных случаях относится к переходнику, при условии, что:
4.2.2.1. этот отрезок составляет не более 35 мм в ширину и
4.2.2.2. общая длина струнной поверхности не превысит 330 мм.
4.3. Ракетка
4.3.1. должны быть свободна от прикреплённых предметов и выступов, кроме тех, которые используются специально для ограничения или предотвращения износа и разрыва струн, или уменьшении вибрации, или для изменения баланса, или для прикрепления рукоятки к руке игрока, и которые имеют разумные размеры и расположение на рукоятке
4.3.2. должна быть свободна от любых приспособлений, которые делали бы возможным для игрока существенно изменять конфигурацию ракетки.
5. Экипировка
НФБР регулирует все вопросы, касающиеся использования для игры всех видов воланов, ракеток или экипировки, соответствующих спецификации. Это регулирование может происходить по инициативе самой Федерации или по предложению любой заинтересованной группы, включая игроков, судей, производителей инвентаря, региональных федераций или их членов.
6. Жеребьевка
6.1. Перед началом матча проводится жеребьёвка; сторона, выигравшая жребий, может выбрать между п. п. 6.1.1. и 6.1.2:
6.1.1. подавать или принимать подачу;
6.1.2. начинать игру на одной или другой стороне корта.
6.2. Сторона, проигравшая жеребьёвку, после этого, делает оставшийся выбор.
6.3. Участникам, перед началом матча, предоставляется время для разминки – 2 мин.
7. Счёт
7.1. Матч проводится до выигрыша двух геймов из трёх.
7.2. Гейм выигрывает сторона, первой набравшая 21 очко (кроме случая, предусмотренного в п. п 7.4. и 7.5.).
7.3. Стороне, выигравшей розыгрыш, засчитывается очко. Сторона выигрывает розыгрыш, если соперник(и) допускает ошибку или если волан вышел из игры, коснувшись поверхности корта на стороне соперника(ов).
7.4. При счете «20-20» сторона, первой набравшая разницу в 2 очка, выигрывает гейм.
7.5. При счёте «29-29» сторона, выигравшая 30-е очко, выигрывает гейм.
7.6. Сторона, выигравшая гейм, первой подает в следующем гейме.
8. Смена сторон
8.1. Игроки должны поменяться сторонами:
8.1.1. по окончании первого гейма;
8.1.2. перед началом третьего гейма (если он нужен); и
8.1.3. в третьем гейме, когда одна из сторон наберет 11 очков.
9. Подача
9.1. При правильной подаче:
9.1.1. никакая сторона не должна допускать чрезмерной задержки выполнения подачи, когда подающий и принимающий игроки готовы к подаче. Любая задержка во время движения ракетки вперед во время подачи (п.9.2.), считается ошибкой (фол);
9.1.2. подающий и принимающий должны стоять в пределах диагонально расположенных полей подачи (рис. 1.), не наступая на линии, ограничивающие эти поля;
9.1.3. какая-либо часть обеих ступней подающею и принимающего должна оставаться в контакте с поверхностью корта в неподвижном положении от начала подачи (п. 9.2.) до совершения подачи (п. 9.3.);
9.1.4. ракетка подающего должна первоначально коснуться головки волана;
9.1.5. весь волан должен находиться ниже талии подающего в момент удара по нему ракеткой. Талией считается воображаемая линия вокруг тела, проходящая на уровне нижней точки нижнего ребра подающего;
9.1.6. стержень ракетки подающего, в момент удара по волану, должен иметь наклон вниз;
9.1.7. движение ракетки подающего игрока должно продолжаться только вперед от начала подачи (п. 9.2.) до ее завершения (п.9.3.);
9.1.8. волан должен быть направлен по восходящей линии oт ракетки подающего до пересечения им верхней кромки сетки, так, чтобы, если он не будет отражен, то упадёт в соответствующее поле подачи (т. е. в пределах ограничивающих его линий или на них);
9.1.9 . подающий не промахнулся по волану.
9.2. Когда игроки заняли свои позиции, первое движение вперед головки ракетки подающего игрока есть начало подачи.
9.3. После начала подачи (п. 9.2.), она считается совершенной, если волан был ударен ракеткой подающего или подающий промахнулся по волану.
9.4. Подающий не должен подавать, пока не подготовился принимающий, но
последний считается готовым к приему, если он сделал попытку отразить поданный волан.
9.5. В парных играх, во время подачи (п.9.2., 9.3.), партнеры подающего и принимающего могут
занимать любые позиции, не перекрывающие видимость принимающему или подающему противоположной стороны.
10. Одиночные игры
10.1 Подача и приём подачи
10.1.1. Игроки должны подавать (и принимать) со своего правого поля подачи, когда подающий не имеет очков или имеет четное количество очков.
10.1.2. Игроки должны подавать (и принимать) со своего левого поля подачи, когда подающий имеет нечетное количество очков.
10.2. Порядок игры и позиции на корте
В розыгрыше волан должен отражаться поочерёдно подающим и принимающим до тех пор, пока, волан не выйдет из игры (п.15.).
10.3. Счет и подача
10.3.1. Если подающий выигрывает розыгрыш (п.7.3.), ему засчитывается очко. Затем он снова подаёт, но с другого поля.
10.3.2. Если розыгрыш выигрывает принимающий (п.7.3.), ему засчитывается очко и он становится новым подающим.
11. Парные игры
11.1. Подача и прием подачи
11.1.1. Игроки подающей стороны должны подавать со своего правого поля подачи, когда подающая сторона не имеет очков или имеет четное количество очков.
11.1.2. Игроки подающей стороны должны подавать со своего левого поля подачи, когда подающая сторона имеет нечетное количество очков.
11.1.3. Игрок принимающей стороны, который подавал последним, остается на том же самом поле с которого подавал; его партнер – на соседнем поле.
11.1.4. Игроки не должны менять свои поля, до тех пор, пока они не выиграют очко на своей подаче.
11.1.5. Подача, независимо от того, какая сторона подает, должна быть произведена с поля, соответствующего счету подающей стороны, за исключением описанного в п.12.
11.2. Последовательность отражения волана и позиции на корте.
В розыгрыше, после отражения подачи принимающим, волан отражается тем или другим игроком подающей стороны, с любой позиции на своей стороне сетки, а затем тем или другим игроком принимающей стороны, и так далее до тех пор, пока волан не выйдет из игры (п.15.)
11.3. Счёт очков
11.3.1. Если подающая сторона выигрывает розыгрыш (п.7.3.), ей засчитывается очко, затем она (тот же игрок) подаёт с другого поля.
11.3.2. Если розыгрыш выигрывает принимающая сторона (п.7.3.), ей засчитывается очко и она становится подающей стороной.
11.4. Последовательность подач
В любой игре право подавать переходит последовательно:
11.4.1. от первого подающего, который начал игру с правого поля подачи
11.4.2. к партнеру начально принимающего; подача должна быть произведена с левого поля подачи.
11.4.3. к партнеру первого подававшего
11.4.4 к первому принявшему
11.4.5. к первому подавшему и т. д.
11.5. Ни один игрок не должен подавать не в очередь, принимать не в очередь или принимать две
подачи подряд в одном и том же гейме, кроме случаев, предусмотренных п. п. 12.
11.6. Любой игрок стороны, выигравшей гейм, может подавать первым в следующем гейме, также как любой игрок проигравшей стороны может принимать первым.
12. Ошибки поля подачи
12.1. Ошибка поля подачи является совершенной, если игрок:
12.1.1. подает или принимает не в очередь;
12.1.2. подает или принимает не из надлежащего поля подачи;
12.2. Если была сделана ошибка поля подачи, то она не исправляется и игра в этом гейме продолжается с новой расстановкой игроков.
13. Нарушения
Нарушение («фол») имеет место, если:
13.1. подача совершена не по правилам (п. 9.1)
13.2. во время подачи волан:
13.2.1. попадает в сетку и повисает на её верхней кромке;
13.2.2. перелетев сетку, застревает в ней;
13.2.3. будет отбит партнером принимающего
13.3. во время игры волан:
13.3.1. падает вне пределов корта;
13.3.2. пролетает сквозь сетку или под ней;
13.3.3. не перелетает через сетку;
13.3.4. касается потолка или стен зала;
13.3.5. касается тела или одежды игрока
13.3.6. касается любого предмета или лица, находящегося вне корта;
(Если необходимо по условиям конструкции здания, местная проводящая организация может, установить особые условия на случай, когда волан коснется препятствия);
13.3.7. будет пойман и задержан на ракетке, а затем брошен при совершении удара;
13.3.8. будет отбит дважды последовательно одним и тем же игроком двумя ударами. Однако, не считается ошибкой, если волан, ударится о головку и струнную поверхность ракетки при одном ударе.
13.3.9. будет отбит игроком и его партнером последовательно или
13.3.10. коснется ракетки игрока и не продолжит движение в направлении поля соперника;
13.4. во время игры, игрок:
13.4.1. касается сетки или стоек ракеткой, телом или одеждой;
13.4.2. вторгается на сторону соперника поверх сетки ракеткой или телом. Бьющий, однако, может сопровождать волан ракеткой над сеткой в направлении удара, если первоначальный контакт ракетки с воланом был на стороне бьющего;
13.4.3. вторгается на сторону соперника под сетку ракеткой или телом так, что помешает сопернику или отвлечет его;
13.4.4. мешает сопернику, т. е. блокирует его ракеткой или телом при совершении им удара по волану, находящемуся выше уровня сетки;
13.4.5. намеренно отвлекает соперника любыми действиями, например, выкриками или жестами;
13.5. повинен в нарушениях, предусмотренных в п.16.
14. Спорный
14.1. «Спорный» объявляется судьей на вышке.
14.2. Перед объявлением «спорного» объявляется команда «Стоп».
14.3 «Спорный» назначается, если:
14.3.1. подающий подает прежде, чем будет готов к приему принимающий (п.9.5.);
14.3.2. при подаче одновременно нарушат правила подающий и принимающий;
14.3.3. во время игры, волан:
14.3.3.1. зацепляется за сетку и повисает на её верхней кромке,
14.3.3.2. пролетев над сеткой, застревает в ней;
14.3.3.3. разрушается и головка полностью отделяется от остальной части волана
14.3.4. по мнению судьи на вышке, игра была прервана или игрок был отвлечен тренером соперника;
14.3.5. судья на линии не видел, а судья на вышке не в состоянии принять свое решение;
14.3.6. в любой непредвиденной или случайной ситуации
14.4. Если назначен «спорный», розыгрыш с момента последней подачи не засчитывается, и подававший игрок повторяет подачу.
15. Волан вне игры:
Волан считается вне игры когда:
15.1. он ударяется о сетку или стойку и начинает падать к поверхности корта на стороне игрока, выполнившего удар;
15.2. он коснётся поверхности корта (в пределах ограничивающих его линии или вне их)
15.3. объявлен «спорный», «стоп» или зафиксировано нарушение («фол»).
16. Непрерывность игры, неспортивное поведение, наказания
16.1. Игра должна продолжаться непрерывно от первой подачи до завершения матча, исключая случаи, предусмотренные в п. п. 16.2 и 16.3.
16.2. Перерывы:
Перерывы должны быть разрешены во всех матчах:
16.2.1. не более 60 секунд в течении каждого гейма, когда счет у какой-либо из сторон достигнет 11 очков;
16.2.2. не более 120 секунд между первым и вторым геймом, и между вторым и третьим геймом,
(При демонстрации матчей по TV, Главный судья может решить до начала матча, что перерывы по п. 16.2 обязательны и имеют фиксированную продолжительность).
16.3. Временная остановка игры
16.3.1. Когда имеют место обстоятельства не зависящие от игроков, судья на вышке может приостановить игру на такое время, какое он сочтет необходимым.
16.3.2. В особых случаях Главный судья может приостановить игру.
16.3.3. Если игра приостановлена, достигнутый счет должен сохраняться и игра должна быть возобновлена с этого счета.
16.4. Задержка в игре
16.4.1. Игра ни в коем случае не должна приостанавливаться для того, чтобы дать возможность игроку восстановить силы или дыхание, или получить совет;
16.5. Советы и выходы игроков с корта
16.5.1. Только, когда волан вне игры (п.15), игроку разрешается получать совет во время матча;
16.5.2. Никто из игроков не имеет права покидать корт во время матча без разрешения судьи на вышке за исключением перерывов, описанных в п. 16.2.
16.6. Игрок не имеет права:
16.6.1. намеренно вызывать задержку или приостановку игры;
16.6.2. умышленно изменять форму волана с целью изменить скорость его полета;
16.6.3. вести себя оскорбительно;
16.6.4. совершать другие неспортивные поступки.
16.7. Пресечение нарушений
16.7.1. Судья на вышке должен пресекать любые нарушения п. п. 16.4, 16.5 или 16.6
16.7.1.1. вынесением предупреждения нарушителю с показом жёлтой карточки;
16.7.1.2. объявлением «фола» нарушителю, если он был предупрежден, с показом красной карточки. Два таких «фола» рассматриваются, как систематическое нарушение;
16.7.2. в случае серьезного проступка, систематических нарушений или нарушения п. 16.2., объявлением «фола» нарушителю с показом второй красной карточки и немедленным докладом о проступке Главному судье, который имеет право дисквалифицировать нарушителя на данный матч, и засчитать поражение в данном матче со счетом 0:21, 0:21.
17. Судьи и апелляции
17.1. Главный судья несет полную ответственность за проведение турнира или другого соревнования, частью которого является матч.
17.3. Судья на вышке, если он назначен, ответственен за проведение
данного матча, состояние корта и за обстановку вокруг него. Судья на вышке подотчетен Главному судье.
17.3. Судья на подаче фиксирует нарушения, допущенные подающим, если таковые имеют место (п.9).
17.4 Судья на линии определяет, упал ли волан в пределах или за пределами линии, за которыми он следит.
17.5. Решения всех судей окончательны по тем игровым моментам, за которые данный судья ответственен, за исключением момента, в котором, по мнению судьи на вышке, линейный судья сделал ошибку; в этом случае судья на вышке может отменить решение линейного судьи.
17.6. Судья на вышке обязан:
17.6.1. придерживаться Правил игры и проводить их в жизнь, и, в частности, определять «спорные», предупреждения и «фолы», когда они имеют место;
17.6.2. принимать решения в спорных ситуациях, если таковые будут, до следующей подачи;
17.6.3. чётко и громко информировать игроков и зрителей о ходе матча;
17.6.4. назначать и освобождать судью на подаче и линейных судей после консультации с Главным судьей;
17.6.5. принимать решения по вопросам компетенции отсутствующих судей;
17.6.6. принять собственное решение или назначить «спорный» если кто-либо из других судей на корте не в состоянии принять решение;
17.6.7. фиксировать и сообщать Главному судье обо всех случаях, касающихся п. 16
17.6.8. передавать Главному судье все неудовлетворенные апелляции только по вопросам Правил игры. (Эти апелляции должны быть сделаны до выполнения следующей подачи или, если это конец матча, прежде чем апеллирующая сторона покинет корт).
Приложение 1
Терминология для судей на вышке
Это приложение включает стандартную терминологию, которую он использует при проведении матча.
1. Представление участников:
1.1. «Дамы и господа: »
1.1.1. «Справа от меня ………..(фамилия(ии) игрока(ов), название(я) региона(ов)), слева ……….. (фамилия(ии) игрока(ов), название(я) региона(ов))»;
1.1.2. «Справа от меня................ ………..(регион… название… команды), представляемая………..(фамилия(ии) игрока(ов)), слева от меня………..(регион, название команды), представляемая………..(фамилия(ии) игрока(ов))»;
1.1.3. «Подает………..(фамилия игрока)» или (регион, название команды) на … (фамилия игрока) или (регион, название команды).
2. Начало матча, объявление счета, перерывы, окончание геймов
2.1. «Ноль-ноль, играйте»
2.2. «Переход подачи»
2.3. «Перерыв одна минута»
2.4. «Корт … (номер) осталось 20 секунд, осталось 20 секунд»
2.5. «…гейм-пойнт…» (например. «20 гейм-пойнт 6, 29 гейм –пойнт28»)
2.6. «…матч-пойнт…» (например, «20 матч-пойнт 8, 29 матч-пойнт 28»)
2.7. «…гейм-пойнт – гейм пойнт» (например «29 гейм-пойнт – 29 гейм-пойнт»)
2.8. «гейм»
2.9. «Первый гейм выиграл…(в командных соревнованиях - название страны/команды) со счетом…»
2.10. « Корт … (номер) объявляется перерыв 2 минуты»
2.11. «Второй гейм»
2.12. «Bтopoй гейм выиграл… (в командных соревнованиях - название страны/команды) со счетом…….»
2.12. «Счет в матче – 1:1» (один:один)
2.13. «Финальный гейм»
3 Объявления общего характера:
3.1. «Займите свое поле»
3.2. «Готовы ли Вы?»
3.3. «Вы промахнулись по волану при подаче»
3.4. «Принимающий не готов»
3.5. «Вы пытались принять подачу»
3.6. «Вы не должны оказывать давление на судью на линии»
3.7. «Подойдите ко мне, пожалуйста»
3.8. «В порядке ли волан?»
3.9. «Испытайте волан»
3.10. «Замените волан»
3.11. «Не меняйте волан»
3.12. «Спорный»
3.13. «Смена сторон»
3.14. «Вы не поменялись сторонами»
3.15. «Вы подали с неверного поля подачи»
3.16. «Вы подали не в очередь»
3.17. «Вы принимали не в очередь»
3.18. «Не меняйте форму волана»
3.19. «Волан коснулся Вас»
3.20. «Касание сетки»
3.21. «Вы стоите на неверном поле»
3.22. «Вы отвлекли соперника»
3.23. «Ваш тренер отвлекал соперника»
3.24. «Два удара»
3.25 «Вы бросили волан», («Бросок»)
3.26 «Вы вторглись на сторону соперника»
3.27 «Вы помешали сопернику»
3.28 «Отказываетесь ли Вы (продолжать игру)? »
3.29 «Фол принимающего»
3.30 «Объявляется фол подачи»
3.31 «Продолжаем игру»
3.32 «Игра приостанавливается»
3.33 «……..(фамилия), предупреждение за неспортивное поведение»
3.34 «…….(фамилия), фол за неспортивное поведение»
3.35 «Стоп»
3.36 «Фол»
3.37 «Аут»
3.38 «Судья на линии! – Ваше решение?»
3.39. «Судья на подаче! – Ваше решение?»
3.40. «Изменение – поле!»
3.41. «Изменение – Аут!»
3.42. «Протрите корт (площадку)»
4 Окончание матча
4.1. «Матч выиграл………..(фамилия игрока(ов), (название команды) со счетом …»
4.2. «Матч выиграл………(фамилия игрока(ов), (название команды) со счетом … - отказ от продолжения игры»
4.3. «Матч выиграл …(фамилия игрока(ов), (название команды) со счетом … - дисквалифицикация на данный матч»
Приложение 2
РЕКОМЕНДАЦИИ ДЛЯ СУДЕЙ НА КОРТЕ
1. Введение
1.1. Рекомендации для судей на корте выпущены IBF - в соответствии с ее Уставом для стандартизации методов управления игрой во всех странах.
1.2. Целью этих рекомендаций является помощь судьям на вышке в вопросах управления ходом матча, чтобы они делали это твердо и справедливо, не будучи излишне придирчивыми, в то же время, обеспечивая соблюдение Правил игры. Рекомендации также помогают судьям на подаче и судьям на линии правильно выполнять свои функции.
1.3. Все судьи должны помнить, что игра существует для игроков.
2. Судьи на корте и их решения
2.1. Судья на вышке подотчетен и действует под руководством Главного судьи (п.17.2.) (или, в его отсутствие, официального представителя проводящей организации).
2.2. Судья на подаче обычно назначается Главным судьей, но может быть отстранен (заменён) судьей на вышке по консультации с Главным судьей (п.17.6.4.).
2.3. Судей на линии обычно назначает Главный судья, но они могут быть отстранены (заменены) судьей на вышке по консультации с Главным судьей (п. 17.6.4.)
2.4. Решения судей на корте окончательны по тем игровым моментам, за которые данный судья ответственен, за исключением момента, в котором, по мнению судьи на вышке, судья на линии сделал ошибку. В этом случае, судья на вышке может отменить решение судьи на линии и принять собственное решение (п. 17.5.). Если, по мнению судьи на вышке, судью на линии надо отстранить, он должен вызвать Главного судью (п.17.6.4., рекомендация 2.3.).
2.5. Если другие судьи не могут принять решение по тем моментам, за которые они ответственны, судья на вышке может принять собственное решение по этому моменту; если и он не в состоянии это сделать, назначается «спорный» (п.17.6.6.)
2.6. Судья на вышке отвественен за проведение матча, состояние корта и за обстановку вблизи него. Полномочия судьи на вышке длятся с момента входа на корт перед матчем до момента ухода с корта после матча (п. 17.2.).
3. Рекомендации для судей на вышке
3.1. Экипировка судей на вышке (они же и на подаче)
Если организаторами соревнований не предусмотрена унифицированная одежда, то судьи на вышке (на подаче) должны придерживаться следующих рекомендаций:
3.1.1. Верх одежды: пиджак у мужчин и женщин (кофта у женщин) должен быть тёмно-синего (вплоть до чёрного) цвета;
рубашка (блузка у женщин) светлого однотонного цвета (белая, светло-голубая);
галстук – строгого, делового стиля, тёмного цвета, желательно однотонный.
3.1.2. Низ одежды: брюки у мужчин и женщин (юбка у женщин) серого цвета любого оттенка.
3.1.3. Обувь: туфли у мужчин и женщин, причём каблук туфлей женщин не должен продавливать корт.
3.1.4. Судья на вышке (на подаче) должен иметь в личном пользовании:
- секундомер, висящий, во время судейства матча на ленточке на шее удобный в быстром применении;
- планшет с зажимом для протокола матча;
- авторучку (карандаш), в т. ч. и запасные.
3.1.5. Судьи должны иметь опрятный внешний вид.
3.2. Перед началом матча судья на вышке должен:
3.2.1. получить от Главного судьи протокол матча;
3.2.2. проверить работу счетчиков очков;
3.2.3. проверить правильность расположения стоек или заменяющих их лент (п.1.5.);
3.2.4. проверить высоту сетки и убедиться, что между ее боковыми краями и стойками нет просвета;
3.2.5. выяснить, есть ли дополнительные условия на случай попадания волана в препятствия (элементы конструкции зала);
3.2.6. удостовериться, что судья на подаче и судьи на линии paсполагаются правильно и знают свои обязанности (разделы 5 и 6);
3.2.7 обеспечить, чтобы было приготовлено достаточное количество протестированных воланов (п.3) для проведения матча во избежание задержек во время игры;
(Для судьи на вышке допустимо перепоручить действия по п. п. 3.1.2., 3.1.3., 3.1.4., 3.1.7. и 3.3.1.4. судье на подаче, если он назначен)
3.2.8. проверить, соответствует ли форма игроков требованиям, касающимся надписей и рекламы, и обеспечить устранение нарушений. По любому решению о несоответствии Правилам (или близко к этому), следует посоветоваться с Главным судьей или официальным представителем перед матчем.
3.2.9. убедиться, что жеребьевка была проведена справедливо и выигравшая и проигравшая ее стороны правильно сделали свой выбор (п. 6). Отметить выбор подачи и поля в протоколе;
3.2.10. отметить в протоколе (в случае парной игры) имена игроков, начинающих игру в правом поле подачи. Такие отметки следует делать в начале каждою гейма. (если во время матча из-за ошибки поля подачи эта расстановка изменится (п.12.2., 12.4.)), внесите изменение в эти отметки
3.3. Начиная матч, судья на вышке должен анонсировать матч, используя соответствующие фразы из рекомендаций, (см. Приложение 2, Терминология п.1). Указать, кто справа, кто слева, по принятой для объявлений форме, где (А, Б, В, Г – имена игроков, а К, Л, М, Н – представленные страны).
Одиночные матчи
Личные Соревнования
«Дамы и господа, справа от меня «А, К», слева «Б, Л». Подает А; ноль-ноль; играйте»
Командные соревнования
«Дамы и господа, справа от меня «К», представляемая «А»; слева «Л», представляемая «Б». Подает «К»; ноль-ноль; играйте»
Парные матчи
Личные Соревнования
«Дамы и господа, справа от меня «А, К» и «Б, Л»; слева «В, М» и «Г, Н». Подает Б на В; ноль-ноль; играйте»
Если партнеры в парном матче представляют одну и ту же страну, объявите название страны после объявления имен обоих игроков, например, «А и Б, К».
Командные соревнования
«Дамы и господа, справа от меня К, представляемая «А» и «Б», слева «Л» , представляемая «В» и «Г»; Подает «К»; «А» на «В»; ноль-ноль; играйте.»
Матч начинается объявлением «Играйте»
3.4. Во время матча судья на вышке должен:
3.4.1. использовать стандартную терминологию из приложения 2, Правил игры в бадминтон без каких-либо лишних слов
3.4.2. записывать и объявлять счет; всегда объявлять первым счет подающего;
3.4.3. если назначен судья на подаче, судья на вышке должен больше внимания уделять принимающему; если необходимо, судья на вышке также может объявить об ошибке подачи;
3.4.4. насколько возможно, следить за показаниями счетчиков очков;
3.4.5. поднять правую руку вверх выше головы, если нужна консультация Главного судьи.
3.4.6. когда игрок проигрывает свою подачу и соответственно право продолжать подачу (п. 10.3.2., 11.3.2.), объявлять «Переход подачи», затем счет начиная с нового подающего; если необходимо, в это же самое время, указывая рукой на нового подающего и правильное поле подачи.
3.4.7. «Играйте» объявляется судьей на вышке для:
3.4.7.1. обозначения начала матча или гейма, или возобновления игры после смены сторон;
3.4.7.2. обозначения возобновления игры, которая была прервана;
3.4.7.3. обозначения требования к игрокам возобновить игру.
3.4.8. «Стоп» объявляется судьей на вышке при любой необходимости остановить матч по непредвиденным обстоятельствам на любое время
3.4.9. «Фол» объявляется судьей на вышке, когда совершено нарушение, кроме следующих случаев:
3.4.9.1. когда «фол» объявляет судья на подаче (по п. 13.1. Правил). В этом случае, судья на вышке должен сказать: «Объявляется фол подачи». Судья на вышке объявляет ошибку принимающего, сообщая «Фол принимающего»;
3.4.9.2. когда совершена ошибка по п. 13.3.1 Правил, для которой предусмотрен соответствующий выкрик или сигнал судьи на линии (рекомендация 6.2.); и
3.4.9.3. когда совершена ошибка по п. 13.2.1., 13.2.2, 13.3.2. или 13.3.3 Правил, которая объявляется только тогда, когда это нужно для ясности игроков или зрителей.
3.4.10. Во время каждого гейма, когда счет у какой-либо из сторон достигнет 11 очков, объявите «Переход подачи» (если необходимо), объявите счет cpaзу по окончании заключительного розыгрыша, не считаясь с аплодисментами (этим устанавливается момент начала перерыва, положенный по п.16.2.1. и объявите «Перерыв одна минута»). Во время каждого перерыва, судья на подаче, если назначен, должен обеспечить, чтобы был протерт корт.
3.4.11. В перерывах во время геймов, связанных с достижением какой-либо из сторон 11 очков (п. 16.2.1.), после того, как прошло 40 секунд, объявите: «Корт … (номер), осталось 20 секунд, осталось 20 сек.»
3.4.11.1. В перерывах во время первого и второго гейма, и в третьем гейме, когда игроки поменялись полями, к каждой стороне на корт могут зайти не более двух человек. Но когда судья на вышке объявит «… 20 секунд», они должны уйти с корта.
3.4.11.2. Для возобновления игры после перерыва, повторите счет, а затем объявите: «Играйте»
3.4.11.3. Если игроки не требуют перерыва по п. 16.2.1., игра в этом гейме может продолжаться без перерыва.
3.4.11.4. Когда какая-либо из сторон достигнет счета «20», в каждом гейме, объявите «гейм-пойнт» (или «матч-пойнт», если он имеет место);
3.4.11.5. Когда какая-либо из сторон достигнет счета «29», в каждом гейме, объявите «гейм-пойнт» (или «матч-пойнт», если он имеет место);
3.4.12. Продленный гейм:
|
|
3.4.12.1. когда счет станет «20:20», следует дать рукой сигнал обеим сторонам, показывающий «Два», напоминая тем самым им, что сторона, которая первая достигнет разницы в два очка – выиграет этот гейм;
|
|
3.4.12.2. когда счет станет «29:29», следует дать рукой сигнал обеим сторонам, показывающий «Один», напоминая тем самым им, что победитель следующего розыгрыша – выиграет этот гейм;
3.4.12.3. Объявления, указанные в Рекомендациях 3.3.11.4. и 3.3.11.5. должны всегда сопровождаться сначала объявлением счета подающего, а затем принимающего.
3.4.13. В конце каждого гейма объявлять «Гейм» сразу по окончании заключительного розыгрыша, не считаясь с аплодисментами; этим устанавливается момент начала перерыва, предусмотренного п. 16.2.2.
3.4.13.1. По окончании первого гейма объявите:
«Первый гейм выиграл(и) (фамилия(и) игрока(ов) или название команды в командных соревнованиях) со счетом …»
3.4.13.2. По окончании второго гейма объявите:
«Второй гейм выиграл(и) (фамилия(и) игрока(ов) или название команды в командных соревнованиях) со счетом …; Счет в матче 1:1 (один: один).»
3.4.13.3. После объявления счета по окончании первого и второго геймов, объявите:
«Корт … (номер), объявляется перерыв 2 минуты»
3.4.13.4. В конце каждого гейма, судья на подаче, если назначен, должен установить знак перерыва (какой предусмотрен) по центру сетки и обеспечить, чтобы корт был протерт
3.4.13.5. В перерывах между первым и вторым геймом, и между вторым и третьим геймом (п.16.2.2.), после того, как прошло 100 секунд, объявите:
«Корт … (номер) – осталось 20 секунд, осталось 20 сек.»
3.4.13.6. В перерывах (п. 16.2.2.) между геймами, к каждой стороне на корт могут зайти не более двух человек. Но когда судья на вышке объявит «… 20 секунд», они должны уйти с корта.
3.4.13.7. В начале второго гейма объявите: «Второй гейм, ноль-ноль, играйте»;
Если есть третий гейм, перед началом гейма объявите: «Финальный гейм, ноль-ноль, играйте»;
3.4.13.8. В третьем гейме, или в матче из одного гейма, когда какая-либо из сторон наберет 11 очков (п. 8.1.3.), объявите счет, затем «Перерыв одна минута, смена сторон». Для возобновления игры после перерыва, повторите счет и объявите «Играйте»;
3.4.14. По окончании матча:
3.4.14.1. объявите: «Матч выиграл(и) (фамилия(и) игрока(ов) или название команды в командных соревнованиях) со счетом … (общий счет и счет по геймам)».
3.4.14.2. незамедлительно передайте заполненный протокол Главному судье.
3.5. Особенности при судействе линий:
3.5.1. Судья на вышке должен всегда смотреть на линейного судью при падении волана, как бы далеко в пределах корта или, наоборот, вне его, он ни упал; за решение по этому моменту всецело ответственен линейный судья исключая Рекомендации 3.4.2.
3.5.2. Если, по мнению судьи на вышке, судья на линии принял неверное решение, судья на вышке должен объявить:
3.5.2.1. «Изменение: Поле», если волан упал в пределах поля;
3.5.2.2. «Изменение: Аут»; если волан упал вне предела поля.
3.5.3. В отсутствии судьи на линии или если судья на линии не видел, судья на вышке должен объявить:
3.5.3.1. «Аут» перед объявлением счета, если волан упал за линией поля; или
3.5.3.2. счёт, если волан упал в пределах поля, или
3.5.3.3. «спорный», если он сам тоже не видел.
3.6. Во время матча необходимо следить за следующими ситуациями и разбираться в них:
3.6.1. игрок, «заехавший» под сетку и помешавший сопернику или отвлекший его, или перенесший ракетку на сторону соперника, должен нести ответственность по п. 13.4.2 или 13.4.3 соответственно;
3.6.2. волан, попавший с соседнего корта не должен автоматически рассматриваться как «спорный». «Спорный» не назначается, если, по мнению судьи на вышке, такое попадание:
3.6.2.1 было не замечено игроками; или
3.6.2.2. не помешало или не отвлекло игроков.
3.6.3. игрок, крикнувший партнеру, собирающемуся ударить по волану, не обязательно должен считаться отвлекающим соперника, в то же время, выкрики сопернику типа «Не бей!», «Ошибка!» и т. п. должны рассматриваться как отвлекающие;
3.6.4. Выход игрока с корта
3.6.4.1. Игроки не должны покидать корт без разрешения судьи на вышке (п. 16.5.2.).
3.6.4.2. Игрокам разрешается уйти с корта попить воды и т. п. только во время перерывов (п. 16.2.). Если игра по какой-либо причине остановлена, игрокам разрешается выйти с корта чтобы вытереть ладони и т. п., если это не задерживает игру. Если необходимо протереть корт, игроки в это время должны находиться на корте.
3.6.4.3. Любой нарушающей стороне следует напомнить, что покидать корт можно только с разрешения судьи на вышке (п. 16.5.2) и, если необходимо, применить п. 16.7. Но, разрешается поменять ракетку возле корта во время розыгрыша
3.6.5. Задержка и приостановка игры
Убедитесь, что игроки не намеренно вызывают задержку или приостановку игры (п.16.4.). Любые ненужные хождения вокруг корта должны пресекаться. Если необходимо применить п. 16.7.
3.6.6. Советы, поступающие не с корта
3.6.6.1. Никому из игроков не разрешается получать советы во время розыгрыша в любой форме (п. 16.5.1.).
3.6.6.2. Обеспечьте, чтобы:
· Тренеры сидели на специально отведенных для них местах, а не стояли около корта во время матча, за исключением разрешенных перерывов; (п.16.2.).
· Тренеры не отвлекали игроков-соперников и не прерывали игру.
3.6.6.3. Если, по мнению судьи на вышке, игра была прервана или игрок стороны соперников был отвлечен тренером другой команды, должен быть назначен «спорный». Необходимо сразу же вызвать Главного судью. Он может дать предупреждение этому тренеру;
3.6.6.4. Если такая ситуация повторится ещё раз, Главный судья может попросить тренера удалиться с площадки.
3.6.7. Замена волана
3.6.7.1. Замена волана во время матча не должна быть несправедливой. Когда игроки хотят сменить волан, судья на вышке может разрешить замену только, если он убедился, что волан в неудовлетворительном состоянии.
3.6.7.2. Волан, скорость или полет которого изменились, должен быть заменен.
3.6.8. Травма или болезнь во время матча
3.6.8.1. Травма или болезненное проявление во время матча требуют заботливости и гибкости. Судья на вышке должен определить серьезность проблемы как можно скорее.
3.6.8.2. Лицами, которые могут быть допущены на корт, являются врач (или медсестра, фельдшер), Главный судья и тренер игрока, получившего травму. Врач должен осмотреть игрока и сообщить ему об серьезности повреждения или болезни. Если есть кровотечение, игра должна быть остановлена до тех пор, пока оно не остановится или пока не будет соответствующим образом защищена рана.
3.6.8.3. Главный судья должен сообщить судье на вышке, сколько времени может понадобиться игроку, чтобы снова начать играть. Судья на вышке должен следить за идущим временем.
3.6.8.4. Судья на вышке должен убедиться, что соперник не был поставлен в невыгодное положение. И п. п. 16.4., 16.5., 16.6.1 и 16.7 применяются соответственно.
3.6.8.5. Если необходимо, в случае травмы, болезни или др., спросите у игрока: «Отказываетесь ли Вы (продолжать игру)?», и, если он это подтвердит, объявите об этом. а затем «Матч выиграл......и т. д.».
3.7. Приостановка игры
Если нужно приостановить игру, следует объявить «Стоп, игра приостановлена», и зарегистрировать счет подающего, принимающего, правильное поле подачи и стороны. Когда игра возобновляется, отметьте продолжительность перерыва, убедитесь, что игроки заняли правильные позиции, спросите: «Готовы ли вы?»,
объявите счет и «Играйте».
3.8. Неспортивное поведение:
3.8.1. записывайте и сообщайте Главному судье обо всех таких случаях и принятых мерах;
3.8.2. неспортивное поведение между геймами наказывается также как и во время гейма. Судья на вышке объявляет о наказании перед началом следующего гейма, используя соответствующие п. п. 3.8.3. – 3.8.5. рекомендаций. После чего, если необходимо, объявить «Переход подачи», а затем счет.
3.8.3. если Судья на вышке должен применить п. 16.4, 16.5, или 16.6., делая предупреждение нарушающей стороне (п. 16.7.1.1.), необходимо объявить «Подойдите сюда», обращаясь к виновному игроку и затем объявить:
«… (фамилия игрока), предупреждение за неспортивное поведение», одновременно подняв правую руку с жёлтой карточкой над головой.
3.8.4. если Судья на вышке должен применить п. 16.4, 16.5, или 16.6., наказывая нарушающую сторону, которая до этого уже была предупреждена (п. 16.7.1.2.), необходимо объявить «Подойдите сюда», обращаясь к виновному игроку и затем объявить
«… (фамилия игрока), фол за неспортивное поведение»,
одновременно подняв правую руку с красной карточкой над головой.
3.8.5. если Судья на вышке должен применить за серьезное или постоянное нарушение п. 16.4, 16.5, или 16.6., или нарушение п. 16.2., наказывая нарушающую сторону, (п. 16.7.1.2.), и докладывая об этом немедленно Главному судье для рассмотрения им вопроса о дисквалификации нарушителя, необходимо объявить: «Подойдите сюда», обращаясь к виновному игроку и затем объявить:
«… (фамилия игрока), фол за неспортивное поведение»,
одновременно подняв правую руку с красной карточкой над головой и вызывая Главного судью.
3.8.6. Когда Главный судья принимает решение дисквалифицировать нарушающую сторону, судье на вышке дается черная карточка. Судья на вышке должен сказать: «Подойдите сюда», обращаясь к виновному игроку и затем объявить:
«… (фамилия игрока), дисквалифицирован за неспортивное поведение»
одновременно подняв правую руку с черной карточкой над головой.
4. Общие советы судье на вышке
4.1. Необходимо не только знать, но и понимать Правила игры в бадминтон.
4.2. Объявляйте чётко и уверенно, но, если сделали ошибку, признайте ее, извинитесь и исправьте ее.
4.3. Все объявления, включая счет, делайте настолько отчетливо и громко, чтобы быть ясно услышанными игроками и зрителями.
4.4. Если Вы сомневаетесь было ли совершено нарушение Правил, или нет, не следует фиксировать «фол».
4.5. Никогда не слушайте мнение зрителей, чтобы они не влияли на игру своими замечаниями.
4.6. Мотивируйте деятельность других судей на Вашем корте, например, подчеркивая признание решений судей на линии, и создавайте для них рабочую обстановку.
5. Рекомендации для судей на подаче
5.1. Судья на подаче должен сидеть на низком стуле у стойки, желательно напротив судьи на вышке.
5.2. Судья на подаче ответственен за правильность выполнения подачи подающим (п. 9.1). Если допущено нарушение он должен объявить громко «Фол» и использовать принятые ручные сигналы для обозначения вида нарушения.
5.3. Принятые ручные сигналы:
Правило 9.1.1. и 9.1.7.
Задержка выполнения подачи, когда подающий и принимающий готовы к подаче.
Задержка при движении ракетки вперёд во время выполнения подачи
![]() |
Правило 9.1.2. и 9.1.3.
Часть обеих ступней подающего не находится на поле подачи в неподвижной позиции в момент совершения подачи.

Правило 9.1.4.
Первоначальная точка контакта ракетки с воланом не на головке волана

Правило 9.1.5.
Волан не целиком ниже талии подающего в момент совершения удара
|
Правило 9.1.6.
В момент удара по волану стержень ракетки не имеет наклона вниз.

5.4. В перерывах между первым и вторым, вторым и третьим геймами судья на подаче вывешивает на сетке (устанавливает под сеткой) специальные знаки о двухминутном перерыве; обеспечивает, чтобы корт был протерт, и чтобы не было задержки игры из-за недостатка воланов.
5.5. Во всё остальное время перерыва судья на подаче должен находиться рядом с судьёй на вышке, поддерживая его и обсуждая с ним особенности матча.
5.6. Судья на вышке может поручить судье на подаче дополнительные функции, при условии, что об этом (до начала матча) извещены игроки.
6. Рекомендации для судей на линии
6.1. Судьи на линии должны сидеть на стульях на продолжении своих линий на концах и боковых сторонах корта, предпочтительно на стороне, противоположной от судьи на вышке.
6.2. Судья на линии всецело ответственен за линии, порученные ему, за исключением случая, когда судья на вышке изменяет решение судьи на линии, если, по его мнению, судья на линии сделал ошибку.
6.2.1. Если волан упал за пределами корта, безразлично, как далеко, объявите «Аут» ясным голосом, достаточно громко, чтобы быть услышанным игроками и зрителями, и в то же время, сигнализируйте об этом, вытянув обе руки в стороны горизонтально, так, чтобы это мог видеть судья на вышке.
6.2.2. Если волан упал в пределах корта, судья на линии не должен ничего говорить, а только указать на линию правой рукой.
6.3. Если Вы не видели, куда упал волан, проинформируйте об этом немедленно судью на вышке поднятием обеих рук к глазам.
6.4. Не подавайте никаких сигналов и команд, пока волан не коснется поверхности корта.
6.5. Нужно всегда подавать свои команды («аут», «волан в поле», «не видел») не дожидаясь решения судьи на вышке, например, в случае, когда волан коснулся игрока.
6.6. Принятые ручные сигналы:
«Аут»
Если волан упал за пределами корта, безразлично, как далеко, объявите «Аут» ясным голосом, достаточно громко, чтобы быть услышанным игроками и зрителями, и в то же время, сигнализируйте об этом, вытянув обе руки в стороны горизонтально, так, чтобы это мог видеть, судья на вышке.
|
«Волан в поле»
|
Если волан упал в пределах корта, ничего не говорите, а только укажите на линию правой рукой.
«Не видел»
|
Если Вы не видели, куда упал волан, проинформируйте об этом немедленно судью на вышке поднятием обеих рук к глазам.
Позиции судей на линии
На практике рекомендуется, чтобы места для судей на линии находились на расстоянии 2,5 – 3,5 м от границ корта, и, во всех случаях, были ограждены от вторжения посторонних, например, фотографов.
X - указывает позиции судей на линии
Одиночные игры


Парные игры

















