Подготовка питьевой воды из источников с повышенным антропогенным загрязнением
, ,
Новосибирский государственный архитектурно-строительный университет, Новосибирск, Россия
Анализ эффективности работы водоочистных станций 150 городов России показал невозможность получения ими нормативного качества очищаемой воды существующими традиционными методами без применения методов глубокой очистки воды от загрязнений природного и антропогенного происхождения [1]. Многие поверхностные водоисточники в Сибири загрязнены антропогенными химическими веществами, в отношении которых барьерная роль существующих водоочистных сооружений чрезвычайно мала. Подземные воды по сравнению с поверхностными обладают большей защищенностью и стабильностью качества воды. Однако, по данным Департамента жилищно-коммунального хозяйства Госстроя РФ каждый второй водопровод, использующий подземные воды, подает потребителям некондиционную воду [2]. Особенно подвержены антропогенному загрязнению подземные воды водозаборов, расположенных вблизи населенных пунктов и промпредприятий, а также инфильтрационных водозаборов, питающихся водой загрязненных поверхностных водоисточников. Многие подземные источники кроме наличия природного фона повышенных сверхнормативных концентраций железа, марганца, солей жесткости, сероводорода загрязнены фенолами, нефтепродуктами и другими органическими веществами, имеют повышенную бактериальную загрязненность. Необходимо совершенствование технологических схем очистки воды за счет повышения эффективности реагентной обработки, обеззараживания воды и применения конструктивно новых эффективных водоочистных сооружений, сопровождаемого соответствующей реконструкцией водоочистных станций.
С целью разработки комплексной технологии подготовки питьевой воды из подземных и поверхностных источников экологически неблагоприятных районов Сибири проведены экспериментальные исследования в различных населенных пунктах Новосибирской, Кемеровской, Томской областях и Красноярского края. Разработаны и исследованы новые технологические приемы водоподготовки, конструкции водоподготовительных сооружений, позволяющие интенсифицировать процессы очистки воды от природных и антропогенных примесей, повысить полезную производительность станций водоочистки, утилизировать водопроводный осадок.
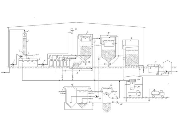
Комплексная технологическая схема очистки природных вод представлена рис.1.

Рис 1
В состав общей технологической схемы входят несколько узлов различного назначения. Наличие или отсутствие тех или иных узлов в специальных схемах водоподготовки для питьевого водоснабжения определяется происхождением и физико-химическим составом природных вод.
Узел I (поз.1-7) применяется в технологиях очистки подземных вод от соединений железа и марганца безреагентным и реагентным методами. Он предназначен для дегазации, аэрации воды и окисления примесей в ней озоновоздушной смесью, образующейся при электроразрядной обработке воды [3,4]. Работа узла I происходит следующим образом.
Маломутная вода из подземного источника водоснабжения по трубопроводу подается в дегазатор-распылитель 2 [3]. Дегазатор распыляет воду до мелкодисперсного состояния, обеспечивает ее контакт с воздухом и десорбцию растворенных в воде газов в объеме образующегося водовоздушного факела внутри аэратора-окислителя 1 [4]. Аэратор-окислитель размещен на установке озонирования 3 и отделен от нее удерживающей решеткой. Вода, распыленная над поверхностью насадки аэратора-окислителя, по поверхности ее элементов тонкой плёнкой стекает вниз, изливается через решетку в виде капельно-струйного потока на поверхность обработанной воды в установке озонирования, установленной на контактной камере 7. К электродной системе установки озонирования подаются высоковольтные импульсы, генерируемые блоком питания 4. В зоне расположения электродов производится квазиобъёмная электроразрядная обработка двухфазной водовоздушной среды. В зоне разрядов на поверхности капель и струй образуется озон, УФ – излучение и целый ряд активных частиц (радикал ОН-, атомарный кислород и др.), обладающих высокой окисляющей способностью по отношению к железу, марганцу, а также фенолам, нефтепродуктам и другим антропогенным примесям в воде. Образующаяся при смешении с воздухом озоновоздушная смесь непрерывно вытесняется вводимым воздухом от вентилятора 6 и хаотично движется снизу вверх через насадку, омывая противоточно стекающую вниз в виде плёнки воду. При этом создаются большая поверхность и продолжительное время контакта жидкой и газообразной фаз, достаточные для дополнительного удаления из воды углекислоты, метана, сероводорода, насыщения её кислородом, окисления примесей в воде озоновоздушной смесью. Для предотвращения накопления отложений, биологических обрастаний и связанного с ними ухудшения качества обрабатываемой воды производится периодическая гидропневматическая промывка насадки аэратора-окислителя. При этом аэратор сначала полностью опорожняется, а затем медленно наполняется исходной водой. Одновременно в насадку аэратора-окислителя от воздуходувки 6 по трубопроводу через трубчатую систему гидропневматической промывки аэратора 5 от компрессора 8 подаётся сжатый воздух. Количество подаваемого воздуха шестикратно превышает количество подаваемой воды. На границе раздела фаз "вода-воздух" разрушаются пузырьки воздуха, вызывая гидравлические удары на поверхностях элементов насадки, очищая их от химических отложений и биологических обрастаний. При достижении поверхностью воды верха насадки промывка прекращается, и промывная вода с отделившимися от насадки аэратора загрязнениями по сбросному трубопроводу отводится в отстойник промывной воды 19 для очистки и повторного использования.
Узел II (поз.10,13,14), включающий в себя реактор-осветлитель, применяется в качестве первой ступени осветления подземных и поверхностных вод [5]. При очистке подземных вод аэрированная вода подкачивающим насосом 9 подается в воздухоотделииз контактной камеры 7. Поверхностная вода в воздухоотделитель направляется после предварительного процеживания на сетчатых барабанных фильтрах из промежуточной сборной емкости.
Из воздухоотделителя, соединенного с распределительной системой реактора-осветлителя 13, очищаемая вода поступает на осветление в слое взвешенной контактной массы. В воду, поступающую на осветление, вводятся рабочие растворы реагентов от узла VI реагентного хозяйства (поз.11,12). В осветлителе вода в смеси с реагентами подается через распределительную систему снизу вверх через слой контактной массы со скоростью, обеспечивающей ее взвешивание. В качестве контактной массы используется кварцевый песок или любой другой мелкозернистый материал, удовлетворяющий нормативным требованиям по санитарно-гигиеническим показателям, механической прочности и химической стойкости. За счет высокой объемной концентрации твердой фазы во взвешенном слое происходит автокаталитическое ускорение процесса гидролиза коагулянта, контактная коагуляция продуктов гидролиза, адсорбция гидроксидов металлов зернами взвешенной контактной массы и образование в слое осадка, который сам является сорбентом для примесей воды. Хлопья осадка, выносимые из слоя, задерживаются тонкослойным модулем и оседают на поверхность контактной массы. Осветленная вода собирается лотком в верхней части осветлии направляется на вторую ступень осветления. Лоток осветлителя соединен сбросным трубопроводом с отстойником промывной воды 19 узла VII. По истечении времени ее защитного действия и ухудшении качества осветляемой воды контактной массы производится ее промывка с помощью эжектора, установленного под днищем осветлителя. В результате применения реакторов-осветлителей достигается 2-3 кратное повышение производительности осветлителя, снижение доз реагентов при сохранении высокого эффекта очистки воды.
Отстойник контактной массы 14 узла II предназначен для отделения твердой фазы отработанной контактной массы от жидкости в сбрасываемой из осветливодопесчаной пульпе с целью ее накопления и последующей утилизации.
Узел III (поз.16) служит для более глубокой коагуляционной очистки воды и включает в себя скорый зернистым фильтр, загруженный кварцевым песком или другим крупнозернистым материалом [6]. Очищаемая вода поступает от осветлив концентрический лоток скорого фильтра, проходит кольцевой тонкослойный модуль и фильтруется сверху вниз через зернистую загрузку. В процессе фильтрования вода освобождается от взвеси, собирается трубчатой дренажно-распределительной системой скорого фильтра, соединенной трубопроводом с узлом сорбционной очистки IV. Боковой карман фильтра соединен трубопроводом сброса промывной воды с отстойником промывной воды 19 узла VII. Эжекционная промывка загрузки скорого фильтра 15 производится по достижении в ней предельной потери напора.
Узел IV (поз.16) предназначен для окончательной очистки воды от взвешенных веществ, а также от растворенных природных и антропогенных примесей и представлен сорбционным фильтром, загруженным гранулированным активным углем. Для очистки угольной загрузки от механических загрязнений производится периодическая обратная промывка сорбционного фильтра чистой водой. При снижении сорбционной способности загрузки производится ее полная замена или термическая регенерация угля в заводских условиях.
Узел V (поз.17,18) служит для сбора, хранения очищенной воды, а также подачи ее потребителям и включает в себя резервуар чистой воды 17 и насосную станцию с сетевым насосом 18. Сетевой насос 18 подает очищенную и обеззараженную воду потребителю, а также на промывку сорбционного фильтра 16.
Узел VI (поз.11,12) включает в себя установки хлорирования, коагулирования, флокулирования, которые предназначены для приготовления, хранения и дозированного введения рабочих растворов реагентов в очищаемую воду. Состав и количество вводимых реагентов зависит от качества исходной воды и требований к очищенной воде потребителей. Производится предварительное хлорирование и вторичное обеззараживание воды введением раствора химического гипохлорита натрия в воду до осветлии после сорбционного фильтра 16. С целью повышения эффекта очистки и сокращения расходования коагулянта и флокулянта осуществляется двукратное их введение: в трубопровод перед осветлителем и в его сборный желоб.
Узел VII (поз.19,20) служит для реагентной очистки, хранения и повторного использования промывной воды Он включает в себя отстойник промывной воды 19 и насос 20 подачи осветленной промывной воды на промывку реактора-осветлии скорого фильтра 15. В промывную воду, сбрасываемую в отстойник от аэратора-окислителя 1, осветлителя 13, фильтров 15 и 17, вводится раствор коагулянта. Две секции отстойника 19 работают поочередно: в одной секции отработанная промывная вода собирается, очищается от взвеси осаждением хлопьев гидроксида алюминия в статических условиях и повторно используется для промывки сооружений станции, в другую - пустую секцию, промывная вода сбрасывается во время очередной промывки.
Промывка контактной массы осветлипроизводится следующим образом. Прекращается отведение осветленной воды на скорый фильтр 16 и осветляемая вода во время промывки сбрасывается в пустую секцию отстойника промывной воды 19. Одновременно насосом 20 отстоенная промывная вода из заполненной секции отстойника подается в эжектор осветлителя. Эжектируемая загрязненная контактная масса в виде песчано-водяной пульпы транспортируется в верхнюю часть осветлителя. За счет перемешивания и соударения зерен контактной массы при транспортировке пульпы, а также за счет разделения частиц осадка и контактной массы в поле центробежных сил в сепараторе осветлителя происходит ее эффективная очистка. Промытые зерна контактной массы осаждаются во взвешенный слой, а промывная вода с осадком переливается через верхние кромки цилиндра в лоток осветлителя и также сбрасывается в отстойник 20. Вынос контактной массы в сборный лоток предотвращается тонкослойным модулем. Контактная взвешиваемая масса используется в процессе очистки многократно. При необходимости замены отработанной контактной взвешиваемой массы ее пульпа выпускается из осветлителя в отстойник контактной массы 14 с контейнером.
Промывка фильтрующей загрузки скорого фильтра 15 производится аналогично, но с полным выключением его из работы по осветлению воды и предварительным взрыхлением загрузки промывной водой через дренажно-распределительную систему.
Промывка угольной загрузки сорбционного фильтра 16 производится периодически чистой промывной водой, подаваемой сетевым насосом 18 снизу вверх в загрузку через дренажно-распределительную систему из резервуара чистой воды 17. Отработанная промывная вода с сорбционного фильтра 17 сбрасывается в отстойник 19 для восполнения потерь воды при удалении осадка из отстойника. Осадок, выделившийся в отстойнике, перед использованием промывной воды перепускается в сгуститель 21, в котором уплотняется в течение нескольких часов.
Узел VIII (поз.21-22) предназначен для сгущения осадка, подачи его на обезвоживание и утилизацию на сооружениях узла IX, а также для перекачки надиловой воды в отстойник промывной воды 19. Насос 23 перекачивает осветленную воду в отстойник промывной воды. Насос сгущенного осадка 22 подает осадок на обезвоживание и утилизацию.
Узел IX (поз.24,25), а также участок обезвоживания осадка канализационной очистной станции предназначен для обезвоживания и утилизации водопроводного осадка. Сгущенный водопроводный осадок насосом 22 в жидком виде загружается в автоцистерну, вывозится на канализационную очистную станцию и утилизируется в качестве реагента для обезвоживания канализационного осадка. Возможно предварительное обезвоживание водопроводного осадка на фильтр-прессе 25, накопление в бункере осадка 26 и его вывоз в сухом виде для использования в дорожном строительстве и планировке территорий [7].
Экспериментальная мобильная установки соответствовала технологической схеме очистки природных вод, приведенной на рис.1, и включала в себя модели следующих традиционных и конструктивно новых сооружений очистки воды: дегазатора-распылителя, аэратора-окислителя с контактным баком, реактора-осветлителя, скорого фильтра, сорбционного фильтра, резервуара чистой воды, отстойника контактной массы, отстойника промывной воды, сгустителя. Кроме того, в состав оборудования установки входили баки реагентного хозяйства, бак постоянного уровня, воздухоотделитель, дозировочные и перекачивающие насосы [8]. Результаты контрольных циклов очистки подземных и поверхностных вод от природных и антропогенных загрязнений приведены в таблице 1.
В п. «Промышленная» подземная вода характеризовалась повышенным содержанием оксида углерода (до 100 мг/л), железа ( до 3 мг/л), марганца (до 1,5 мг/л), фенолов (до 0,006 мг/л). имела повышенную, мутность (до 8 мг/л), цветность (до 60 град.), жесткость (до 15 ммоль/л) при РН равном 6,5-7,0. На дегазаторе и аэраторе-окислителе производилось десорбция из воды до 90% свободного оксида углерода, который являлся наиболее важным фактором, удерживающим в растворенном состоянии железо и марганец в воде, а также насыщение воды кислородом воздуха. Десорбция сопровождалась некоторым повышением РН среды и сокращала расходование щелочного реагента. В аэраторе-окислителе происходило частичное окисление железа, марганца, а также органических веществ в воде кислородом, озоном и другими активными компонентами. Для восстановления гидравлических и технологических параметров аэратора проводилась ежемесячная водовоздушная промывка его насадки при интенсивности подачи воздуха 30-40 м3/(м2·ч). Достаточно полное и быстрое окисление марганца в воде происходило при рН>8,5, поэтому обрабатываемая вода перед осветлением подщелачивалась едким натром с дозой до 180 мг/л. Подщелачивание было связано также с необходимостью умягчения воды. Кроме того, в воду вводился перманганат калия с дозой 1,5 мг/л в качестве катализатора процесса окисления. В реакторе-осветлителе происходил основной процесс гидролиза и выделения из воды гидроксидов железа, марганца, магния, карбоната кальция и других нерастворимых соединений, что позволяло сократить нагрузку по загрязнениям на скорые фильтры и вдвое увеличить их производительность. Применение реакторов-осветлителей для предварительной очистки воды позволяло сократить расходование реагентов до 50%. Очистка воды в реакторе-осветлителе с предварительной обработкой перманганатом калия в щелочной среде позволяла снижать жесткость до нормативных величин и на 80-90% концентрации железа и марганца. Промывка загрязненной контактной массы производилась через 2-3 суток с помощью эжектора. Объем промывной воды составлял около 3% от объема осветленной воды. В скором фильтре задерживались хлопья гидроксидов магния, железа, марганца и других соединений, не удаленных в осветлителе. Интенсификация работы скорого фильтра достигнута применением фильтрующего материала из дробленых горелых пород местного производства, что позволило увеличить его производительность на 35%. После скорого фильтра вода поступала в угольный сорбционный фильтр, предназначенный для улавливания растворённых минеральных и органических загрязнений, не задержанных в скором фильтре. Сорбционный фильтр очищал воду от растворённых минеральных и органических загрязнений, не задержанных в скором фильтре в т. ч. фенола. Сорбционный фильтр загружался гранулированным активным углем марки АГ–ОВ, производства ОАО "Сорбент" г. Пермь. Качество очищенной подземной воды, отвечало требованиям СанПин 2.1.4.1074-01. Проведены исследования по утилизации отходов, образующихся в процессе водоподготовки. Для утилизации промывных вод предложен замкнутый цикл с их очисткой и повторным использованием. В ходе исследований показано, что наилучшими коагулирующими свойствами обладает разработанный нами комбинированный реагент «Кемфлок» [9]. В состав «Кемфлока» входят катионный флокулянт (ВПК) и соль алюминия в оптимальном соотношении. Вследствие совместного воздействия механизма коагуляции и флокуляции процесс осаждения взвесей в промывной воде проходит эффективнее. Исследована технология утилизации осадков промывных вод фильтров, предусматривающая их использование в качестве добавки при обезвоживании осадков канализационных очистных сооружений. Установлено, что при соотношении объемов канализационных осадков к объему осадка промывных вод водопроводных фильтров равном 0,2 удельное сопротивление канализационных осадков снижается в 2-5 раз. Расход флокулянтов, используемых в процессах обезвоживания осадков, сокращается на 30%. Результаты экспериментальных исследований использованы для проектирования и строительства станций водоподготовки подземных вод для поселков «Промышленная» и «Ягуновская» Кемеровской области. В настоящее время станции обеспечивают население и промышленность поселков водой питьевого качества. Алюминийсодержащий водопроводный осадок станции п. «Ягуновская» вывозится на канализационные очистные сооружения г. Кемерово и используется в качестве реагента при обезвоживании осадка сточных вод.
В п. «Красный Брод» вода водохранилища характеризовалась повышенной жесткостью (8,5-10,1 ммоль/ л), и сверхнормативным содержанием нефтепродуктов (0,2-0,3 мг/л). Экспериментальная установка соответствовала технологической схеме, приведенной на рис.1, но без узла аэрации и окисления воды. В качестве реагентов использовался коагулянт оксихлорид алюминия, флокулянт Праестол, для обеззараживания воды - гипохлорит натрия. Очистка воды от нефтепродуктов происходила в результате вследствие их адсорбции на поверхности образующегося гидроксида алюминия и доочистки на сорбционном фильтре с гранулированной загрузкой активного угля марки АГ-3. При этом снижалась и жесткость. Качество очищенной питьевой воды удовлетворяло требованиям СанПин 2.1.4.1074-01.
В г. Куйбышеве вода реки Омь имела высокую цветность (до 600 град. летом), окисляемость (до 60 мг/л), содержание железа (до 2,5 мг/л в паводок), марганца (до 0,8 мг/л перед паводком). Опытная установка была идентична установке п. «Красный Брод». На отдельной установке предварительной очистки исследованы окислительные методы обесцвечивания воды зонированием, хлорированием и марганцеванием. Получено нормативной качество питьевой воды. На основании проведенных исследований для реконструкции существующих сооружений НФС рекомендована вышеприведенная технологическая схема коагуляционной очистки воды (рис.1), но без узла предварительной аэрации и окисления с применением в качестве коагулянтов сульфата, оксихлорид алюминия или их комбинации в зависимости сезона года. Промывная вода от осветлителей и фильтров используется в замкнутом цикле с предварительной реагентной обработкой и отстаиванием. Осадок промывной воды утилизируется. В настоящее время ведется реконструкция станции в соответствии с рекомендованной технологией очистки высокоцветной воды от природных и антропогенных загрязнений.

СПИСОК ЛИТЕРАТУРЫ
1. , , Гетманцев в технологии очистки природных вод. - М., 2005.
2. , Скворцов подземных вод для хозяйственных и питьевых нужд // Вопросы мелиорации№3-4. – С. 38-47.
3. Патент РФ № 2 кл. В 01 D 19/00, опубл. 10.10.07, БИ № 19.
4. Патент РФ № 2 кл. С 02 F 9/14, опубл. 20.10.04, БИ № 29.
5. Патент РФ № 2 кл. C 02 F 1/52, опубл. 20.09.07, БИ № 27.
6. Патент РФ № 2 кл. C 02 F 1/52, опубл. 20.06.02, БИ № 17
7. Патент РФ № 2 кл. С 02 F 11/12, опубл.20.02.05, БИ № 5.
8. , Исследования по подготовке питьевой воды из подземного источника с повышенным содержанием солей жесткости// Известия вузов. Строительство№ 1-2. - С. 22-26.
9. Патент РФ № 2 кл. С 02 F 001/52,опубл. 27.10.1997.



