Межгосударственный стандарт ГОСТ 21.508-93
"Система проектной документации для строительства.
Правила выполнения рабочей документации генеральных планов предприятий, сооружений и жилищно-гражданских объектов"
(принят Межгосударственной научно-технической комиссией по стандартизациии техническому нормированию в строительстве 10 ноября 1993 г.)
Дата введения 9 января 1994 г.
Взамен ГОСТ 21.508-85
Межгосударственный стандарт подлежит введению в действие на территории РФ национальным органом по стандартизации
1. Область применения
2. Нормативные ссылки
3. Общие положения
4. Общие данные по рабочим чертежам
5. Разбивочный план
6. План организации рельефа
7. План земляных масс
8. Сводный план инженерных сетей
9. План благоустройства территории
10. Эскизные чертежи общих видов нетиповых изделий
Пример оформления ведомости разработок чертежа
Пример оформления ведомости разработок сводного плана
инженерных сетей
Пример оформления экспликации зданий и сооружений
Пример оформления ведомости жилых и общественных зданий
и сооружений
Пример оформления ведомости водоотводных сооружений
Пример оформления разбивочного плана
Пример оформления плана организации рельефа в проектных
горизонталях
Пример оформления плана организации рельефа в проектных
отметках
Пример оформления плана земляных масс
Пример оформления ведомости объемов земляных масс
Пример оформления сводного плана инженерных сетей
Пример оформления ведомости малых архитектурных форм
и переносных изделий
Пример оформления ведомости элементов озеленения
Примеры оформления ведомостей тротуаров, дорожек,
площадок и дорог, подъездов и проездов
Пример оформления сечений тротуаров, дорожек и площадок
Пример оформления плана озеленения
Пример оформления плана расположения малых архитектурных
форм и переносных изделий
Пример оформления плана проездов, тротуаров, дорожек,
площадок
1. Область применения
Настоящий стандарт устанавливает состав и правила оформления рабочей документации генеральных планов предприятий, сооружений и жилищно-гражданских объектов*(1) различного назначения (далее - генеральные планы).
2. Нормативные ссылки
В настоящем стандарте использованы ссылки на следующие стандарты:
ГОСТ 2.303-68 ЕСКД. Линии
ГОСТ 21.101-93 СПДС. Основные требования к рабочей документации
ГОСТ 21.109-80 СПДС. Ведомости потребности в материалах
ГОСТ 21.111-84 СПДС. Ведомости объемов строительных и монтажных работ
Взамен ГОСТ 21.109-80 и ГОСТ 21.111-84 постановлением Минстроя РФ от 5 июня 1995 г. N 18-55 введен в действие ГОСТ 21.110-95
ГОСТ 21.204-93 СПДС. Условные графические обозначения и изображения элементов генеральных планов и сооружений транспорта
ГОСТ 21.510-83 СПДС. Правила выполнения рабочих чертежей железнодорожных путей
ГОСТ 21.511-83 СПДС. Правила выполнения рабочих чертежей автомобильных дорог
ГОСТ 21.511-83 постановлением Минстроя РФ от 01.01.01 г. N 18-2 признан не действующим на территории РФ с 1 июня 1997
См. ГОСТ Р 21.1701-97 "СПДС. Правила выполнения рабочей документации автомобильных дорог", введенный в действие с 1 июня 1997 г.
3. Общие положения
3.1. Рабочую документацию генеральных планов выполняют в соответствии с требованиями настоящего стандарта, ГОСТ 21.101 и других взаимосвязанных стандартов системы проектной документации для строительства (СПДС).
3.2. В состав рабочей документации генерального плана включают:
- рабочие чертежи генерального плана (основной комплект рабочих чертежей марки ГП. При объединении в одном основном комплекте рабочих чертежей генерального плана и сооружений транспорта основному комплекту рабочих чертежей присваивают марку ГТ);
- эскизные чертежи общих видов нетиповых изделий, конструкций, устройств и малых архитектурных форм (далее - эскизные чертежи общих видов нетиповых изделий);
- ведомость потребности в материалах - по ГОСТ 21.109*(2);
- ведомость объемов строительных и монтажных работ - по ГОСТ 21.111*(2)
Взамен ГОСТ 21.109-80 и ГОСТ 21.111-84 постановлением Минстроя РФ от 5 июня 1995 г. N 18-55 введен в действие ГОСТ 21.110-95
3.3. В состав основного комплекта рабочих чертежей генерального плана включают:
- общие данные по рабочим чертежам;
- разбивочный план;
- план организации рельефа;
- план земляных масс;
- сводный план инженерных сетей;
- план благоустройства территории;
- выносные элементы (фрагменты, узлы) по ГОСТ 21.101*(3).
3.4. Рабочие чертежи основного комплекта выполняют на инженерно-топографическом плане (кроме чертежа плана земляных масс).
Допускается разбивочный план, сводный план инженерных сетей и план благоустройства территории выполнять без нанесения горизонталей рельефа местности.
3.5. Контуры проектируемых зданий и сооружений наносят на план по архитектурно-строительным рабочим чертежам, принимая координационные оси зданий и сооружений совмещенными с внутренними гранями стен.
Когда расстояние от наружной грани стены здания, сооружения до координационной оси в масштабе изображения превосходит толщину линии контура, последнюю относят от координационной оси на соответствующее расстояние (L) в соответствии с рисунком 1.
3.6. Планы рабочих чертежей располагают длинной стороной, условной границы территории вдоль длинной стороны листа, при этом северная часть территории должна находиться вверху. Допускается отклонение ориентации на север в пределах 90° влево или вправо. Планы, расположенные на разных листах, выполняют с одинаковой ориентацией.
3.7. При малой насыщенности изображений допускается совмещать несколько различных планов в один с присвоением ему соответствующего наименования.
Пример - "Разбивочный план и план организации рельефа", "План организации рельефа и земляных масс".
3.8. При большой насыщенности изображений плана благоустройства территории допускается выполнять несколько планов по видам работ с присвоением каждому плану соответствующего наименования.
Пример - "План озеленения", "План расположения малых архитектурных форм", "План проездов, тротуаров, дорожек и площадок".
3.9. Допускается делить план на несколько участков, размещая их на отдельных листах. В этом случае на каждом листе, где показан участок плана, приводят схему целого плана с разбивкой его на участки, указывают номера листов, на которых они размещены, и штриховкой обозначают участок, показанный на данном листе.
3.10. Рабочие чертежи генеральных планов допускается выпускать поэтапно - разработками по мере выполнения соответствующих рабочих чертежей зданий, сооружений проектируемого предприятия или жилищно-гражданского объекта.
В этом случае каждую разработку оформляют по состоянию на определенную дату с соответствующими дополнениями рабочих чертежей. Очередную разработку не рассматривают и не оформляют как внесение изменений.
Разработкам присваивают порядковые номера.
3.11. При очередной разработке основную надпись дополняют слева графами 10-13 по ГОСТ 21.101 в соответствии с рисунком 2.
Над основной надписью помещают ведомость разработок чертежа: для разбивочного плана, планов организации рельефа, земляных масс и благоустройства территории - по форме 1, для сводного плана инженерных сетей - по форме 2.
Примеры оформления ведомостей разработок приведены в приложениях А и Б.
3.12. Изображения, на чертежах генерального плана выполняют линиями по ГОСТ 2.303:
- сплошными толстыми основными - контуры проектируемых зданий и сооружений (кроме зданий и сооружений на плане земляных масс), "красную" линию, проектные горизонтали с отметками, кратными 0,50 и 1,00 м;
- штриховой тонкой - линии "нулевых" работ и перелома проектного рельефа;
- штрихпунктирной очень толстой с двумя точками - условную границу территории проектируемого предприятия, здания, сооружения;
- сплошной тонкой - проектируемые здания, сооружения на плане земляных масс и все остальные элементы генерального плана.
3.13. Планы рабочих чертежей выполняют в масштабах 1:500 или 1:1000, фрагменты планов - в масштабе 1:200, узлы - в масштабе 1:20.
Допускается планы выполнять в масштабе 1:2000, узлы - в масштабе 1:10.
Масштаб изображения указывают в основной надписи после наименования изображения.
Если на листе помещено несколько изображений, выполненных в разных масштабах, то масштабы указывают на поле чертежа под наименованием каждого изображения.
3.14. Система высотных отметок, принимаемая в рабочих чертежах генеральных планов, должна соответствовать системе высотных отметок, принятой на инженерно-топографическом плане.
3.15. Размеры, координаты и высотные отметки указывают в метрах с точностью до двух знаков после запятой.
3.16. Величину углов указывают в градусах с точностью до одной минуты, а при необходимости - до одной секунды.
3.17. Величину уклонов указывают в промилле без обозначения единицы измерения.
Крутизну откосов указывают в виде соотношения единицы высоты откоса к горизонтальному положению.
3.18 Основные условные графические обозначения и изображения элементов генерального плана и сооружений транспорта принимают по ГОСТ 21.204.
Малые архитектурные формы (например, беседки, навесы, фонтаны, скульптуры, перголы и т. д.) и другие конструкции, изделия, устройства (например, скамьи, урны и т. д.) выполняют упрощенно в масштабе чертежа или условными графическими обозначениями.
3.19. При выполнении рабочих чертежей генерального плана порядковые номера зданий и сооружений (в т. ч. ограждений, подпорных стенок, эстакад, галерей, тоннелей) принимают, как правило, по генеральному плану, разработанному на предыдущих стадиях проектирования.
Водоотводным сооружениям (канавам, лоткам, трубам) присваивают самостоятельные порядковые номера.
При объединении в одном основном комплекте чертежей генерального плана и сооружений транспорта железнодорожным путям и автомобильным дорогам присваивают самостоятельные порядковые номера.
Допускается не присваивать порядковые номера автомобильным дорогам и водоотводным сооружениям. В этом случае на плане указывают их координаты.
3.20. На планах (кроме плана земляных масс) приводят экспликацию зданий и сооружений по форме 3 (для генеральных планов предприятий производственного назначения) или ведомость жилых и общественных зданий и сооружений по форме 4 (для генеральных планов жилищно-гражданских объектов). Допускается экспликацию или ведомость зданий и сооружений приводить на листе общих данных по рабочим чертежам.
3.21. В графах экспликации зданий и сооружений указывают:
- в графе "Номер на плане" - номер здания, сооружения;
- в графе "Наименование" - наименование здания, сооружения;
- в графе "Координаты квадрата сетки" - координаты нижнего левого угла квадрата строительной геодезической сетки, в пределах которого на изображении здания и сооружения нанесен его номер (при необходимости).
Пример оформления экспликации зданий и сооружений приведен в приложении В.
3.22. В графах ведомости жилых и общественных зданий и сооружений указывают:
- в графе "Номер на плане" - номер здания, сооружения;
- в графе "Наименование и обозначение" - наименование здания, сооружения с указанием обозначения индивидуального или типового проекта, проекта по каталогу;
- в остальных графах - данные в соответствии с их наименованиями.
Пример оформления ведомости жилых и общественных зданий и сооружений приведен в приложении Г.
4. Общие данные по рабочим чертежам
Общие данные по рабочим чертежам выполняют по ГОСТ 21.101 с учетом следующих изменений и дополнений:
- ведомость спецификаций не выполняют;
- в общих указаниях, в дополнение к сведениям, предусмотренным ГОСТ 21.101, приводят обозначения и наименования документов, являющихся основанием для разработки рабочих чертежей генерального плана (например, материалов инженерно-геодезических и инженерно-геологических изысканий), принятую систему координат и высотных отметок.
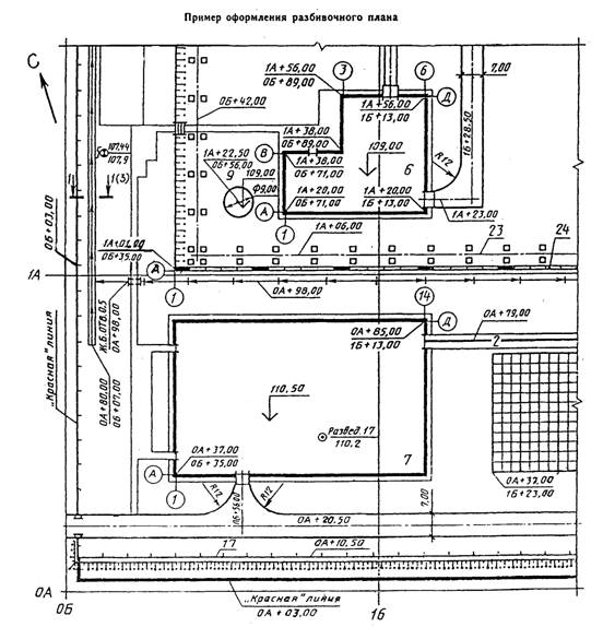
5. Разбивочный план
5.1. На разбивочном плане (плане расположения зданий и сооружений) наносят и указывают:
а) строительную геодезическую сетку или заменяющий ее разбивочный базис, а для жилищно-гражданских объектов, кроме того, городскую геодезическую сетку, которая должна перекрывать весь план;
б) "красную" линию, отделяющую территорию магистрали, улицы, проезда и площади от территории, предназначенной под застройку;
в) ограждения с воротами и калитками или условную границу территории. Если ограждение совпадает с "красной" линией или с условной границей территории, то наносят только ограждение с соответствующим пояснением на чертеже;
г) скважины и шурфы инженерно-геологических изысканий, не указанные на инженерно-топографическом плане;
д) здания и сооружения, в т. ч. коммуникационные (эстакады, тоннели);
е) площадки производственные и складские;
ж) автомобильные дороги и площадки с дорожным покрытием;
и) железнодорожные пути;
к) элементы благоустройства (тротуары, площадки спортивные и для отдыха);
л) элементы и сооружения планировочного рельефа (откосы, подпорные стенки, пандусы);
м) водоотводные сооружения;
н) указатель направления на север стрелкой с буквой "С" у острия (в левом верхнем углу листа).
5.2. Разбивочный план выполняют с координатной или размерной привязкой.
5.3. Строительную геодезическую сетку наносят на весь разбивочный план в виде квадратов со сторонами 10 см.
Начало координат принимают в нижнем левом углу листа.
Оси строительной геодезической сетки обозначают арабскими цифрами, соответствующими числу сотен метров от начала координат, и прописными буквами русского алфавита.
Примеры
1. 0А (начало координат); 1А; 2А; 3А - горизонтальные оси:
2. 0Б (начало координат); 1Б; 2Б; 3Б - вертикальные оси.
На чертежах, выполняемых в масштабе 1:500, оси строительной геодезической сетки обозначают в соответствии с приведенными примерами.
Примеры
1. 0А (начало координат); 0А + 50; 1А; 1А + 50; 2А; 2А + 50 - горизонтальные оси;
2. 0Б (начало координат); 0Б + 50; 1Б; 1Б + 50; 2Б; 2Б + 50 - вертикальные оси.
Допускается, при необходимости, применение отрицательных значений осей строительной геодезической сетки.
Примеры
1. 0А (начало координат); 0А - 50; -1А; -1А - 50; -2А; - 2А - 50 - горизонтальные оси;
2. 0Б (начало координат); 0Б - 50; -1Б; -1Б - 50; -2Б; - 2Б - 50 - вертикальные оси.
Допускается при расширении, реконструкции и техническом перевооружении действующих предприятий сохранять ранее принятые обозначения осей строительной геодезической сетки.
5.4. Размерную привязку осуществляют от разбивочного базиса.
Разбивочным базисом может быть любая прямая линия, проходящая через две закрепленные на местности точки, которые обозначают прописными буквами русского алфавита.
Пример - А; Б.
5.5. Здания и сооружения на плане наносят в масштабе чертежа с указанием проемов ворот и дверей, крайних осей и, при необходимости, координат осей ворот или привязки ворот к координационным осям здания.
5.6. Внутри контура здания (сооружения) указывают:
а) номер здания, сооружения в нижнем правом углу;
б) абсолютную отметку, соответствующую условной нулевой отметке,
принятой в строительных рабочих чертежах здания, сооружения, которую
помещают на полке линии-выноски и обозначают знаком │ (для
жилищно-гражданских объектов - при необходимости).
5.7 На контуре здания, сооружения указывают:
а) координаты точек пересечения координационных осей здания, сооружения в двух его противоположных углах, а при сложной конфигурации здания, сооружения или расположении его не параллельно осям строительной геодезической сетки - во всех углах, для центрических сооружений - координаты центра и одной характерной точки, а также диаметр, для линейных сооружений - координату оси или координаты начала и конца отдельных участков;
б) размерную привязку координационных осей здания, сооружения к разбивочному базису и размеры здания, сооружения между осями при отсутствии строительной геодезической сетки;
в) обозначение координационных осей здания, сооружения в координируемых точках.
5.8. Вокруг контура здания, сооружения показывают отмостку и въездные пандусы, наружные лестницы и площадки у входов.
5.9. На разбивочном плане в части автомобильных дорог наносят и указывают:
а) переезды через железнодорожные пути;
в) координаты или привязки осей автомобильных дорог и, при необходимости, их номера;
г) ширину автомобильных дорог;
д) радиусы кривых по кромке проезжей части автомобильных дорог в местах их взаимного пересечения и примыкания;
е) откосы насыпей и выемок (при необходимости).
5.10. При отсутствии основного комплекта рабочих чертежей автомобильных дорог (марки АД) разбивочный план выполняют с учетом требований ГОСТ 21.511.
5.11. На разбивочном плане в части железнодорожных путей наносят и указывают;
а) номера путей;
б) стрелочные переводы;
в) упоры;
г) откосы насыпей и выемок (при необходимости).
5.12. При отсутствии основного комплекта рабочих чертежей железнодорожных путей (марки ПЖ) разбивочный план выполняют с учетом требований ГОСТ 21.510. При этом отметки дна и величину уклонов водоотводных сооружений и уклоноуказатели не указывают.
5.13. На разбивочном плане приводят ведомость водоотводных сооружений по форме 5.
Пример оформления ведомости водоотводных сооружений приведен в приложении Д.
5.14. Пример оформления разбивочного плана производственного предприятия с координатной привязкой приведен в приложении Е.
6. План организации рельефа
6.1. План организации рельефа выполняют на основе разбивочного плана без указания и нанесения координационных осей зданий и сооружений, координат, размеров и размерных привязок.
6.2. На плане организации рельефа наносят и указывают:
а) абсолютные отметки внутри контура зданий и сооружений, в соответствии с 5.6 (перечисление б);
б) проектные отметки и уклоноуказатели по "красным" линиям;
в) проектные горизонтали или проектные отметки опорных точек планировки с указанием направления уклона проектного рельефа;
г) отметки низа и верха откосов, лестниц, подпорных стенок, пандусов;
д) отметки дна в местах переломов продольного профиля, направление и величину уклонов водоотводных сооружений;
е) дождеприемные решетки в пониженных точках проектного рельефа с отметками верха решеток;
ж) проектные отметки планировки и фактические отметки рельефа местности по внешнему контуру отмостки в углах зданий и сооружений или, при отсутствии отмостки, указанные отметки в местах пересечения наружных граней стен с рельефом в углах зданий и сооружений - в виде дроби с проектной отметкой в числителе и фактической - в знаменателе;
и) проектные отметки планировки и фактические отметки рельефа местности (при необходимости) по верху площадок различного назначения в местах пересечения их краев с рельефом по углам и в характерных точках;
к) линии перелома проектного рельефа - при выполнении плана в проектных отметках опорных точек планировки;
л) направление уклона проектного рельефа бергштрихами - при выполнении плана в проектных горизонталях и стрелками - при выполнении плана в проектных отметках.
6.3. На плане организации рельефа, в части автомобильных дорог, наносят и указывают:
а) проектные горизонтали - при выполнении плана в проектных горизонталях;
б) контуры поперечного профиля автомобильных дорог - при выполнении плана в проектных отметках;
в) точки перелома продольного профиля с проектными отметками;
г) уклоноуказатели по оси проезжей части автомобильных дорог;
д) водоотводные сооружения - кюветы, лотки с отметками дна в местах переломов продольного профиля и величиной уклонов дна сооружений;
е) дождеприемные решетки в пониженных точках продольного профиля с отметками верха решеток.
6.4. На плане организации рельефа, в части железнодорожных путей, наносят и указывают:
а) уклоноуказатели;
б) отметки дна водоотводных сооружений в местах переломов продольного профиля и величину уклонов дна сооружений.
6.5. План организации рельефа следует, как правило, выполнять в проектных горизонталях.
6.6. При выполнении плана организации рельефа в проектных горизонталях, их проводят с сечением рельефа через 0,10 или 0,20 м по всей планируемой территории (земляной поверхности, автомобильным дорогам, площадкам). Допускается на участках с однообразным уклоном рельефа наносить проектные горизонтали с сечением рельефа через 0,50 м.
Отметки проектных горизонталей надписывают со стороны повышения рельефа. Отметки проектных горизонталей, кратные 1,00 м, указывают полностью, промежуточные - приводят в виде целого числа, соответствующего двум знакам после запятой.
6.7 При выполнении плана организации рельефа в проектных отметках опорных точек планировки в качестве опорных точек, как правило, принимают:
а) углы зданий, сооружений и площадок;
б) повышенные и пониженные точки проектного рельефа;
в) пересечение осей автомобильных дорог;
г) точки перелома продольного профиля автомобильных дорог и железнодорожных путей.
6.8. На плане организации рельефа указывают проектные отметки входа и выхода по дну труб и междушпальных лотков, а также отметки переломных точек по дну водоотводных канав и лотков. На полке линии-выноски водоотводных канав и лотков приводят их сокращенное наименование.
Примеры
1 Д. л. - дно лотка;
2 Д. к. - дно канавы.
6.9. Примеры оформления планов организации рельефа в проектных горизонталях и проектных отметках опорных точек планировки приведены соответственно в приложениях Ж и И.
7. План земляных масс
7.1. Подсчет объемов земляных масс выполняют, как правило, методом квадратов.
Допускается выполнять план земляных масс с использованием других методов. Содержание и форму плана определяют методом подсчета объемов земляных масс и условиями производства работ.
7.2. На плане земляных масс наносят и указывают:
а) строительную геодезическую сетку или заменяющий ее разбивочный базис;
б) сетку квадратов для подсчета объема земляных масс с проектными, фактическими и рабочими отметками в углах квадратов, линию "нулевых" работ с выделением площади выемок штриховкой под углом 45° к основанию сетки и указанием объема земляных масс в пределах каждого квадрата или иной фигуры, образуемой контуром плакировки;
в) здания и сооружения;
г) ограждение или условную границу территории;
д) откосы, подпорные стенки.
7.3. Сетку квадратов, как правило, вписывают в строительную геодезическую сетку, принимая сторону квадрата равной 20 м. Допускается привязка сетки квадратов к "красной" линии или к разбивочному базису, а также применение сетки квадратов со сторонами, равными 10, 25, 40 или 50 м, в зависимости от характера рельефа и обеспечения требуемой точности подсчета объема земляных масс.
Допускается, в зависимости от конфигурации планируемой территории, для подсчета объема земляных масс применять фигуры, отличные от квадрата. В этих случаях размеры фигур указывают на чертеже.
7.4. Под каждой колонкой квадратов плана земляных масс приводят таблицу по форме 6, в соответствующих графах которой указывают суммарные объемы насыпи и выемки по колонке квадратов, а в строках суммарных объемов справа - общие объемы насыпи и выемки по всей планируемой территории.
7.5. В случае залегания в пределах планируемой территории грунтов, подлежащих удалению (плодородный почвенный слой, торф, грунт, непригодный в качестве основания зданий, сооружений), до разработки плана земляных масс для всей территории выполняют план удаления грунтов в пределах контура залегания грунтов, подлежащих удалению, оформляя его аналогично плану земляных масс.
На плане удаления грунтов за проектные отметки принимают отметки низа подлежащего снятию грунта, которые при последующем выполнении плана земляных масс рассматривают как фактические отметки.
При наличии на территории строительства разнородных грунтов допускается выполнять планы для каждого вида грунта, присваивая чертежу соответствующее наименование.
Примеры
1. "План земляных масс. Снятие строительного мусора";
2. "План земляных масс. Разработка скальных грунтов".
В случае залегания грунтов, подлежащих удалению, слоем одной мощности, план удаления грунтов может не выполняться. При этом за фактические отметки для плана земляных масс принимают отметки низа подлежащих удалению грунтов, а вычисленный объем удаляемых грунтов вносят в соответствующие строки и графы ведомости по форме 7.
7.6. На плане земляных масс приводят:
а) ведомость объемов земляных масс по форме 7;
б) текстовые указания о необходимости корректировки рабочих отметок в местах устройства газонов, корыта под одежду дорог, площадок и верхнего строения железнодорожных путей.
7.7. Примеры оформления плана земляных масс и ведомости объемов земляных масс приведены соответственно в приложениях К и Л. Примеры разработаны для случая выполнения вертикальной планировки до начала возведения зданий и сооружений.
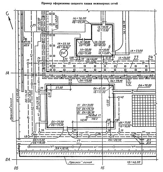
8. Сводный план инженерных сетей
8.1. Сводный план инженерных сетей выполняют на основе разбивочного плана, но без абсолютных отметок зданий, сооружений, привязки ворот и обозначения координационных осей зданий, сооружений.
При необходимости на плане наносят внешние контуры подошвы фундаментов проектируемых и существующих зданий, сооружений.
На изображениях автомобильных дорог и железнодорожных путей указывают только координаты или привязки их осей.
Инженерные сети выполняют условными графическими обозначениями по ГОСТ 21.204.
8.2. На сводном плане инженерных сетей наносят и указывают:
а) коммуникационные сооружения для прокладки сетей;
б) подземные, наземные и надземные сети;
в) дождеприемные решетки, опоры и стойки коммуникационных сооружений.
8.3. Инженерные сети наносят по рабочим чертежам соответствующих основных комплектов с координатной или линейной привязкой оси сети на каждом характерном участке, с изображением компенсаторов, ниш, колодцев, камер и с указанием их обозначений.
8.4. Пример оформления сводного плана инженерных сетей приведен в приложении М.
9. План благоустройства территории
9.1. План благоустройства территории выполняют на основе разбивочного плана без указания координационных осей, координат и размерных привязок, абсолютных отметок зданий, сооружений.
На изображениях автомобильных дорог и железнодорожных путей, при необходимости, указывают только координаты или привязки их осей.
9.2. На плане благоустройства территории наносят и указывают:
а) тротуары, дорожки и их ширину;
б) площадки различного назначения и их размеры;
в) малые архитектурные формы и переносные изделия площадок для отдыха;
г) деревья, кустарники, цветники, газоны.
9.3. Элементы благоустройства привязывают к наружным граням стен зданий, сооружений, "красным" линиям, автомобильным дорогам или железнодорожным путям.
Для рядовой посадки деревьев и кустарников приводят размерную привязку ряда.
9.4. При сложной конфигурации дорожек, при расположении деревьев и кустарников свободными группами допускается взамен размерной привязки наносить на участках их расположения вспомогательную сетку квадратов со сторонами, равными 5-10 м, с привязкой ее к строительной геодезической сетке, разбивочному базису, зданиям, сооружениям, автомобильным дорогам и железнодорожным путям.
9.5. Элементам благоустройства присваивают позиционные обозначения. Позиционные обозначения малых архитектурных форм и переносных изделий указывают на линии-выноске в кружках диаметром 6 мм. Обозначение элементов озеленения указывают на линии-выноске в кружках диаметром 8-12 мм в виде дроби: в числителе - позиционное обозначение породы или вида насаждения, в знаменателе - их количество или площадь (для цветников).
9.6. На плане благоустройства территории приводят:
а) ведомость малых архитектурных форм и переносных изделий по форме 8, пример оформления которой приведен в приложении Н;
б) ведомость элементов озеленения по форме 9, пример оформления которой приведен в приложении П;
в) ведомость тротуаров, дорожек и площадок по форме 10, пример оформления которой приведен в приложении Р; (рисунок Р.1);
г) разрезы, сечения и узлы тротуаров, дорожек и площадок. Пример оформления сечений тротуаров, дорожек и площадок приведен в приложении С;
д) ведомость автомобильных дорог, подъездов и проездов по ГОСТ 21.511 (форма 1) - для жилищно-гражданских объектов, пример оформления которой приведен в приложении Р (рисунок Р.2);
е) соответствующие текстовые указания, например по условиям посадки деревьев и кустарников, устройству цветников и газонов и т. п.
9.7. Допускается ведомости, указанные в 9.6, помещать на листе общих данных.
9.8. Примеры оформления плана благоустройства, выполненного по видам работ, приведены: в приложении Т - "План озеленения"; в приложении У - "План расположения малых архитектурных форм и переносных изделий"; в приложении Ф - "План проездов, тротуаров, дорожек, площадок".
10. Эскизные чертежи общих видов нетиповых изделий
10.1. Эскизный чертеж определяет конструкцию нетипового изделия, содержит упрощенное изображение, основные параметры и технические требования к изделию в объеме исходных данных (задания), необходимых для разработки конструкторской документации.
10.2. Эскизные чертежи разрабатывают на изделия (конструкции, устройства) при отсутствии их серийного производства, типовых чертежей (документации массового применения), стандартов или других документов на эти изделия.
10.3. На каждое нетиповое изделие выполняют отдельный эскизный чертеж. Исключение составляет группа изделий, обладающих общими конструктивными признаками, на которые допускается выполнять групповой эскизный чертеж.
10.4. Эскизному чертежу присваивают самостоятельное обозначение, состоящее из обозначения основного комплекта рабочих чертежей по ГОСТ 21.101, через точку шифра Н и порядкового номера эскизного чертежа.
Пример - 2ГП. Н1; 2ГП. Н2.

"Рис. 1"

"Рис. 2"

"Ведомость разработок чертежа"

"Ведомость разработок сводного плана инженерных сетей"

"Экспликация зданий и сооружений"

"Ведомость жилых и общественных зданий и сооружений"

"Ведомость водоотводных сооружений"

"К плану земляных масс"

"Ведомость объемов земляных масс"

"Ведомость малых архитектурных форм и переносных изделий"

"Ведомость элементов озеленения"

"Ведомость тротуаров, дорожек и площадок"
──────────────────────────────
*(1) В качестве жилищно-гражданских объектов здесь и далее рассматривают микрорайоны, кварталы, группы жилых домов и общественных зданий.
*(2) Выполняют при наличии указаний в договоре на выполнение проектных работ.
*(3) Выполняют при большой насыщенности изображений
Приложение А
(справочное)

"Пример оформления ведомости разработок чертежа"
Приложение Б
(справочное)

"Пример оформления ведомости разработок сводного плана инженерных сетей"
Приложение В
(справочное)

"Пример оформления экспликации зданий и сооружений"
Приложение Г
(справочное)

"Пример оформления ведомости жилых и общественных зданий и сооружений"
Приложение Д
(справочное)

"Пример оформления ведомости водоотводных сооружений"
Приложение Е
(справочное)

"Пример оформления разбивочного плана"
Приложение Ж
(справочное)

"Пример оформления плана организации рельефа в проектных горизонталях"
Приложение И
(справочное)

"Пример оформления плана организации рельефа в проектных отметках"
Приложение К
(справочное)

"Пример оформления плана земляных масс"
Приложение Л
(справочное)

"Пример оформления ведомости объемов земляных масс"
Приложение М
(справочное)

"Пример оформления сводного плана инженерных сетей"
Приложение Н
(справочное)

"Пример оформления ведомости малых архитектурных форм и переносных изделий"
Приложение П
(справочное)

"Пример оформления ведомости элементов озеленения"
Приложение Р
(справочное)
Пример оформления ведомости тротуаров, дорожек и площадок

"Рис. Р.1. Пример оформления ведомости дорог, подъездов и проездов"

"Рис. Р.2. Пример оформления ведомости дорог, подъездов и проездов"
Приложение С
(справочное)

"Пример оформления сечений тротуаров, дорожек и площадок"
Приложение Т
(справочное)

"Пример оформления плана озеленения"
Приложение У
(справочное)

"Пример оформления плана расположения малых архитектурных форм и переносных изделий"
Приложение Ф
(справочное)

"Пример оформления плана проездов, тротуаров, дорожек, площадок"



