ТИПОВОЙ ПРОЕКТ
ОГРАЖДЕНИЯ (ЗАБОРА) ИЗ ПРОФНАСТИЛА
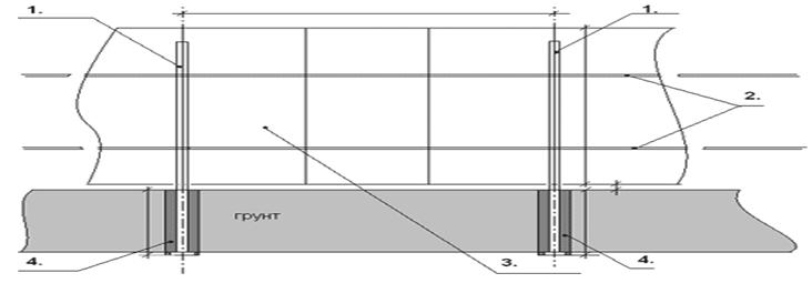
При строительстве заборов из профнастила в качестве столбов применяются:
труба круглая диаметром 51-76 мм или профильные трубы 40 х 60 мм; 60 х 60 мм.
Расстояние между столбами 2,5 – 3м.
На столбы навариваются 2 или 3 горизонтальные лаги:
металлические из проф. трубы 20 х 40 мм. или деревянный брус (доска)
В качестве ограждающей части применяется профнастил С21-1000 или С10-1100 защищенных оцинкованием, окрашиванием, либо многослойным полимерным покрытием, толщиной листа 0,5 мм.
Преимуществом такого забора является быстрота возведения, долговечность.
1. Параметры ограждения:
а) Высота ограждения –1,8 -2,0 метра;
б) Расстояние между опорами 2,5 – 3,0 метра;

1. Столбы. 2. Прожилины. 3. Профлист. 4. Бетон
2. Материал ограждения
а) Опора – профильная труба 60х40 мм, длиной L – 3,3 м;
б) Профнастил С21-00- или С10-1100, (сталь с полимерным покрытием толщиной 0,5 мм )
в) Связка между опорами – профильная труба 40х20 мм в две нитки.
|
|
|
-Сталь»:
![]() |
Тел. (8, 7 41






