удк:6959.38:666.9-412+674.21
а. И. гныря, д-р техн. наук, профессор,
В. Д. ЛИ, канд. техн. наук, доцент,
И. И. ИВАНОВ,
реконструкция жилых зданий с надстройкой мансардного этажа из объемных блоков
В статье излагаются возможные технические и технологические решения по устройству мансарды блочным способом при реконструкции и модернизации жилых зданий первых массовых серий без отселения жильцов в г. Томске.
Ситуация, сложившаяся в России на рубеже XXI века в сфере капитального строительства и жилищно-коммунального хозяйства, характеризуется рядом негативных явлений, а именно:
- острый дефицит жилья, особенно социального назначения для малообеспеченных граждан;
- неудовлетворительное состояние жилого фонда, объектов социальной, инженерной и транспортной инфраструктуры;
- непомерно высокие эксплуатационные затраты в жилищно-коммунальном хозяйстве и социальной сфере;
- отсутствие надлежащей базы строительной индустрии;
- резкое снижение объемов капитального строительства и мн. др.
Одним словом, имеет место глубокий кризис городского хозяйства.
Особо остро стоят вопросы сохранности жилого фонда и рационального использования энергетических ресурсов. В энергетическом балансе страны до 40% энергоресурсов расходуется на энергообеспечение зданий и сооружений. В районах Сибири и Крайнего Севера эта цифра составляет более 50%.
Объем жилищного строительства сегодня составляет в России
45-50 млн. м2, это немногим более 2% эксплуатируемого жилого фонда. Поэтому экономия энергоресурсов за счет ужесточения норм строительной теплотехники в жилищном строительстве в ближайшие 10 лет не превысит и 5% [1].
На основе вышеизложенного, можно сделать вывод: для получения реальных и ощутимых результатов по энергосбережению основное внимание необходимо уделять сохранности, реконструкции, модернизации и капитальному ремонту жилого фонда и его энергоэффективности.
Исследованиями этих проблем в настоящее время занимаются научные, проектные и производственные коллективы [1-5].
В данной работе предлагается техническое решение двухъярусной мансарды и технология ее монтажа блочным способом. Разработка предназначена для надстройки жилых кирпичных зданий серии 447-с с продольными несущими стенами. Форма мансарды в поперечнике - равносторонний треугольник с крутизной скатов 450 (рис. 1, 2).
Под кровлей располагаются двухуровневые квартиры. Толщина утеплителя по теплотехническому расчету - 250 мм. В качестве светопрозрачных конструкций используются окна «ВЕЛЮКС» или окна типа «ДОРМЕР». Шаг несущих деревянных стропильных конструкций принят 0,8 - 1,3 м. Требования пожарной безопасности удовлетворяются конструктивными мероприятиями, включающими в себя защиту стропильных ног и балок перекрытия со
![]() |
Рис. 1. Схема устройства двухъярусного мансардного этажа:
1 – кровельное покрытие и гидроизоляция; 2– сплошная обрешетка покрытия;
3 – контробрешетка; 4 – обрешетка; 5 – ветрозащита;
6 – утеплитель минераловатный; 7, 13 – пароизоляция; 8, 14 – облицовка;
9 – половая доска; 10 – лаги; 11 – балка перекрытия;
12 – звукоизоляция минераловатная плита

Рис. 2. Планировка помещений мансардного этажа
стороны помещений минераловатными плитами толщиной 100 мм и двумя слоями гипсокартона «КНАУФ» толщиной по 12,5 мм. Аналогичная конструкция прошла испытания и, согласно отчету, составленному ВНИИПО, была допущена к эксплуатации в подмосковном городе Лыткарино [5, 6].
Конструкция мансарды устанавливается в проектное положение в виде объемных блоков (рис. 3).
Основу блока составляют металлодеревянные стропильные фермы из элементов полной заводской готовности. Его геометрическая неизменяемость и жесткость на период монтажа и эксплуатации обеспечивается обрешеткой и коньковым прогоном. Нижняя часть стропильных ног фиксируется в опорных узлах, расположенных на монолитном железобетонном поясе-раме (рис. 4в). Количество фермшт.) и соответственно длина блока (2,4 - 3,5 м) зависят от проектного места его установки. В монтажном состоянии коньковый про гон (двутавр широкополочный h = 200 мм) играет роль траверсы мансардного

Рис. 3. Схема мансардных блоков:
1 – стропильная ферма; 2 – коньковый прогон;
3 – обрешетка; 4 – монолитный пояс-рама
блока и фиксируется с помощью болтов (рис. 4а). После установки блоков под коньковые прогоны подводятся опоры в виде кирпичных стоек сечением 380´380 мм или стоек другой конструкции. Обрешетка представляет собой бруски 50´50 мм. Места проемов под светопрозрачные конструкции подготавливаются во время сборки блока. Расчетная масса мансардного блока при монтаже составляет 1,2 - 1,5 тонны.
При выборе конструктивной схемы объемного блока были поставлены следующие задачи: создать легкую экономичную конструкцию с высотой сечения элементов, позволяющей использовать пиломатериал стандартного сортамента, решить примыкание балки перекрытия к стропильной ноге без дополнительных вертикальных опор. Создание жестких карнизного и конькового узлов позволило изменить статическую работу фермы (рис.5), снизить абсолютную величину продольных усилий в стропильных ногах и запроектировать их с переменным сечением. Стык элементов по длине стропильной ноги располагается в месте, где изгибающий момент близок к нулю. Верхняя часть представляет из себя доску сечением 80´200 мм, а нижняя - двухветвевая из досок 50´200 мм. Согласно статическому расчету балка перекрытия служит распоркой и конструктивно выполняется из двух досок сечением (h) 40´200 мм. Соединения элементов в узлах - болтовые с прокладками в виде металлозубчатых пластин (МЗП). Изготовление деревянных элементов фермы в виде отправочных марок и обработка их антисептическими составами предусматриваются в заводских условиях. Сборка ферм и блоков осуществляется на строительной площадке.
Горизонтальный распор от каркаса воспринимается монолитным железобетонным поясом-рамой сечением 400´200 (h) мм. Передача распора осуществляется с помощью закладных деталей, которые устанавливаются в опалубку до бетонирования пояса-рамы. В местах прохода вентиляционных каналов через монолитные элементы предусмотрены отверстия.

Рис. 4. Конструктивные узлы:
а – опора конька фермы; б – опора конькового прогона;
в – фиксация стропильной ноги; г – стык стропильной ноги и балки;
д – стык элементов стропильной ноги.
1 – коньковый прогон; 2 – металлозубчатые пластины; 3 – стойка;
4 – опорный лист; 5 – монолитный пояс-рама; 6 – анкер
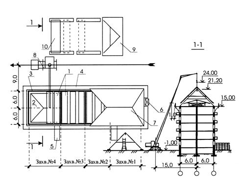
Процесс возведения мансарды с применением объемных блоков можно разделить на три самостоятельных этапа. Первый этап при реконструкции жилого дома без отселения жильцов начинается с подготовки строительной площадки и создания условий для безопасного ведения работ, а именно: устройство выносных консольных подмостей и крытых входных тамбуров, защищающих жильцов от падения строительных материалов сверху. Для пода чи строительных материалов с торца здания устанавливается строительный

Рис. 5

Рис. 6. Технологическая схема производства работ по устройству мансарды:
1 – блок мансарды; 2 – разбираемое покрытие; 3 – монолитный пояс-рама;
4 – подвесные леса с ограждением; 5 – временный входной тамбур;
6 – строительный подъемник; 7 – новое покрытие; 8 – стреловой кран;
9 – место сборки стропильных ферм; 10 – место сборки блоков
подъемник. Монолитный пояс-рама устраивается до полной разборки существующей кровли, поэтому перед разборкой карнизной части кровли и стены необходимо стропильную конструкцию преобразовать в жесткую пространственную металлодеревянную систему. Для удаления атмосферных осадков при устройстве монолитного пояса-рамы необходимо предусмотреть технологи-

Рис. 7. Циклограмма производства работ:
1 – подготовительные работы (входные тамбуры, леса и т. д.);
2 – устройство монолитного пояса-рамы; 3 – монтаж мансардных блоков;
4 – разборка старой кровли; 5 – устройство внутренних каменных конструкций; 6 – устройство окон и установка окон; 7 – утепление мансарды; 8 – устройство полов и перегородок; 9 – сантехнические и электромонтажные работы; 10 – отделочные работы
ческие отверстия. Работы ведутся захватками, равными размерам замкнутого контура монолитного пояса-рамы. Подача бетонной смеси в опалубку осуществляется с помощью средств малой механизации.
Второй этап состоит из сборки и монтажа объемных мансардных блоков. Монтаж готовых мансардных блоков можно производить с помощью автокрана на спецшасси типа МКТ-40 с высотой подъема крюка до 25 м или автокранами «КАТО», «ЛИБХЕР» с аналогичными характеристиками (рис. 6). Применение мощных стреловых кранов делает процесс монтажа ведущим на втором этапе, поэтому его увязку с другими процессами можно описать следующей формулой:
ТМ ³ tP + tФ + tУВЗ + tБ + tТН,
где ТМ – время, необходимое для установки объемных блоков в проектное положение;
tP – время, необходимое для доставки и разгрузки отправочных элементов стропильных ферм на строительной площадке;
tФ – время, необходимое для сборки стропильных ферм из готовых отправочных элементов на стенде с помощью болтов и металлозубчатых пластин (МЗП);
tУВЗ - время, необходимое для установки и временного закрепления стропильных ферм на сборочном стенде;
tБ - время, необходимое для объединения стропильных ферм с помощью обрешетки, лаг межьярусного перекрытия и конькового прогона;
tТН - время технологических неувязок.
Точность монтажа обеспечивается качеством сборных элементов ферм, точностью сборки блоков, контролем над устройством опалубки и бетонированием монолитного пояса-рамы и установки закладных деталей опорных узлов ферм. Монтаж блоков необходимо начинать после набора бетоном монолитного пояса критической прочности. Безопасность работ на захватке обеспечивается согласованием графика монтажа с жильцами.
Третий этап – завершающий, - состоит из работ по устройству кровли и внутренних работ. Для защиты верхнего жилого этажа от атмосферных осадков установленные в проектное положение конструкции укрываются высокопрочной полиэтиленовой пленкой. После этого разбираются старые стропильные конструкции и возводятся внутренние кирпичные стены и стойки. При производстве работ по каменной кладке необходимо использовать облегченные передвижные подмости и леса, позволяющие каменщикам самостоятельно и без больших трудозатрат менять места их положения на рабочем месте. Устройство кровли и установка мансардных окон производятся по стропильным конструкциям, надежно закрепленным во всех точках опор. Для этого кровельные работы ведутся с отставанием на участок от каменных работ. Внутренние работы включают в себя устройство теплоизоляции покрытия, внутренних перегородок, сантехнических, электротехнических и отделочных работ. При этом необходимо добиваться сокращения количества мокрых процессов за счет использования современных отделочных материалов.
Циклограмма (рис. 7) показывает последовательность строительных процессов при возведении мансарды. Как видно, процесс монтажа блоков представлен одной линией, а сборка блоков ведется параллельно работам на проектной отметке и выведена за их рамки. За счет совмещения работ можно добиться сокращения сроков строительства и, как следствие, уменьшения вероятности отрицательного влияния погодных условий на жильцов, количества верхолазных работ и большей безопасности.
Реконструкция 40-квартирного жилого дома серии 447-с даст прирост площади на 483 м2, что составит более 30% от общей площади здания. Расчетная стоимость в базисных ценах 1984 года 1 м2 общей площади квартир в надстраиваемой части составит 115,6 рублей, с учетом работ по санации существующих конструкций здания - 282,6 рублей. Согласно [8] нормативный показатель стоимости 1 м2 общей площади квартир в г. Томске составляет 304 рубля. Средний расход материалов при возведении мансарды составляет: сталь - 3,5…3,7 кг/м2; пиломатериалы - 0,5…0,9 м3/м2; бетон - 0,03…0,035 м3/м2. Трудозатраты на 1 м2 составляют 1,1…1,3 чел.-дн., а общая продолжительность работ 3…4 месяца.
Вывод. Применение рассмотренной конструктивной схемы и способа устройства мансарды позволяет сократить расход материалов и уменьшить количество ручных операций на строительной площадке. Использование местных строительных материалов для несущих конструкций – это реальная возможность снизить себестоимость возведения мансарды. Реализация дополнительной жилплощади позволит произвести санацию и капитальный ремонт здания без дополнительных затрат. Индустриализация технологии реконструкции жилых зданий без отселения жильцов в целом открывает возможность комплексной поточной реконструкции целых жилых кварталов.
Список литературы
1. Булгаков технологии системного решения критических проблем городов// Российская академия архитектуры и строительных наук. Академический институт инвестиционно-строительных технологий академика – М. – 1997.
2. Булгаков реконструкции 5-этажной застройки 60-70-х гг. //Пром. и граждан. стр-во. – 1995. - № 7. – С. 21-24.
3. Булгаков вариант самоокупаемой реконструкции двух-пятиэтажных типовых домов //Архитектура, градостроительство и жилищно-гражданское строительство: Экспресс-информ. – 1999. – Вып. 1. – С. 16 – 28.
4. Матвеев жилых зданий с надстройкой этажей из объемных блоков //Жилищное строительство. – 1999. - №8. – С. 12-13.
5. Людковский модернизации жилых домов первых массовых серий // Строительные материалы. – 1996. - №9. – С. 6-7.
6. Испытание конструкций покрытия на пожарную опасность и огнестойкость// Отчет ВНИИПО. – М
7. Испытание конструкций перекрытия на пожарную опасность и огнестойкость// Отчет ВНИИПО. – М
8. Сборник укрупненных показателей затрат по застройке, инженерному оборудованию, благоустройству и озеленению города Томска// Проектный институт Томскгражданпроект. – Томск. – 1995.
Материал поступил в редакцию 26.06.2000
а.I. GNYRYA, V. D. LI, I. I. IVANOV, R.А. KUTLUKAEV
Reconstruction of a residential building with construction of attic from volume blocks
Different technical and technological designs of the attic, built of ready-made blocks are described in the article. it is possible to reconstruct them without moving the residents to another houses.




