Модернизация локальной вычислительной сети с применением технологии структурированной кабельной системы в здании клиентской службы в Лазаревском районе УПФР в г. Сочи
Техническое требование
Модернизация локальной вычислительной сети с применением технологии структурированной кабельной системы в здании клиентской службы в Лазаревском районе УПФР в г. Сочи.
1. Общие сведения.
Модернизация локальной вычислительной сети (ЛВС) для передачи информации в соответствии с техническим требованием, должна базироваться на концепции построения структурированных кабельных систем (СКС) многофункциональных зданий.
Основанием для модернизации ЛВС с применением технологии СКС (далее ЛВС) в здании клиентской службы в Лазаревском районе УПФР в г. Сочи, является данное техническое требование. Адрес объекта: Краснодарский край, город Сочи, Лазаревский район, п. Лазаревское, .
Контактное лицо в ОПФР -
Модернизация ЛВС производится в следующих помещениях:
- 1 этаж - к. 1, 2, 3 - 8 портов;
- 2 этаж - к. 4, 5, 6, 7, 8, 9, 10, 11, 13, 14, 15, 16,портов;
- 3 этаж - к. 1, 3, 4, 5, 6, 9,порта.
Используемые технические решения должны соответствовать основным требованиям экологических, санитарно-гигиенических, противопожарных и других норм, действующих на территории РФ, и обеспечивать безопасную для жизни и здоровья людей эксплуатацию системы при соблюдении предусмотренных проектом мероприятий. Установленное оборудование и материалы не должны производить вредного влияния на окружающую среду.
2. Характеристика объекта.
2.1. Здание клиентской службы в Лазаревском районе УПФР в г. Сочи.
Клиентская служба располагается на первом, втором и третьем этажах трех этажного здания, стены здания кирпичные. Высота потолков 2,7 метра. Подвесные потолки имеются на первом этаже в помещениях 1, 2; на втором этаже в помещениях 1, 3, 15, 16, коридор; на третьем этаже в помещениях 1, 2, 11, 12, 13.
Количество планируемых к монтажу портов ЛВС – 88
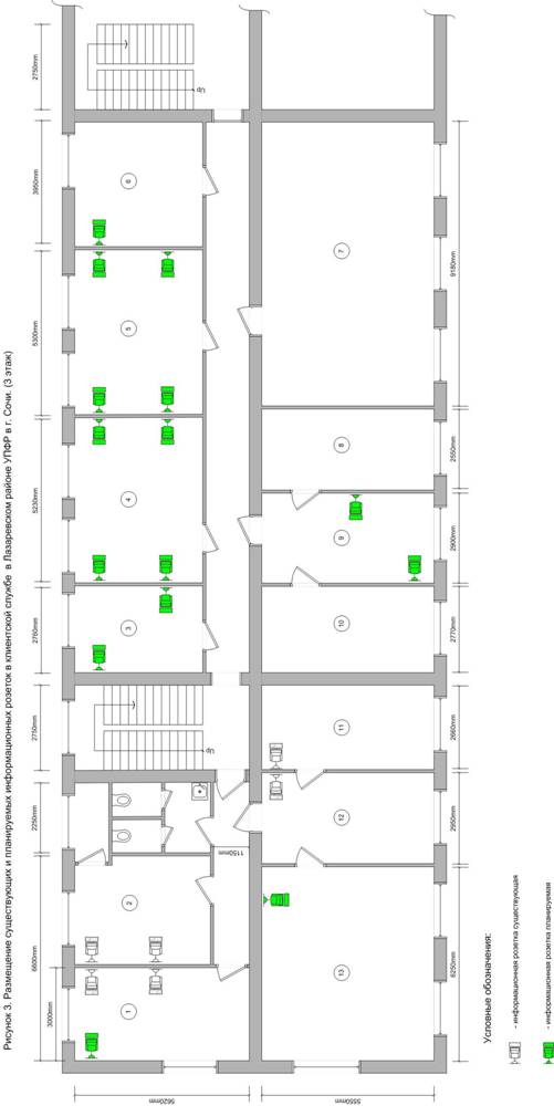
Поэтажная план-схема прилагается (Рисунок 1-3).
2.2. Характеристика существующей ЛВС (СКС).
В управлении смонтирована ЛВС компании производителя Panduit категории 5е на 62 порта в соответствии с топологией «звезда» с центром коммутации в телекоммуникационной аппаратной (серверной) в кабинете № 2 на втором этаже. ЛВС выполнена кабелем UTP 4-парным категории 5е. На смонтированную сеть выдан гарантийный сертификат №SW13837. Коммутация выполнена в существующем коммутационном шкафу высотой 22U, заполнен на 90% (монтаж оборудования в шкафу должен быть произведен без отключения существующей ЛВС). Оконечные устройства для подключения рабочих станций выполнены на основе модуля RJ45 категории 5е. Монтаж выполнен в пластиковых кабельных каналах.
3. Локальная вычислительная сеть.
ЛВС должна являться законченным техническим решением. Пассивное оборудование, поставляемое для ЛВС (включая патч-корды) должно быть произведено под единой торговой маркой производителя или допущено им к применению в ЛВС (при этом необходимо официальное подтверждение). ЛВС должна быть совместима с существующим сегментом, созданным на оборудовании производителя Panduit.
Создаваемый сегмент ЛВС в цокольном этаже здания должен быть сертифицирована на категорию 5е, компанией производителем с предоставлением протоколов тестирования в печатном и электронном формате (файлы *.pdf и *.flw).
На созданные подсистемы ЛВС предоставляется гарантия производителя оборудования (на систему в целом) сроком не менее действующей гарантии (до 21.09.2022 года).
3.1. Назначение и цели создания.
Главным назначением телекоммуникационной локальной вычислительной сети является создание общего «кабельного пространства» и элементов коммутации, как инженерной инфраструктуры здания - физической основы построения информационной системы, предоставляющей пользователям возможность обмена данными аналоговых и цифровых телекоммуникационных приложений. В ЛВС необходимо предусмотреть следующие подсистемы:
• подсистема рабочего места;
• горизонтальная распределительная подсистема;
• магистральная подсистема;
• подсистема телекоммуникационных помещений.
3.2. Соответствие ЛВС нормативным документам.
Установка оборудования ЛВС производится в соответствии со следующими нормативными документами:
• ГОСТ Р – Информационные технологии. Системы кабельные структурированные. Проектирование основных узлов системы. Общие требования.
• Стандарт телекоммуникационного каблирования ANSI/TIA/EIA-568-A – правила проектирования телекоммуникационного оборудования и кабельной продукции;
• Стандарт телекоммуникационных трасс и помещений ANSI/TIA/EIA-569-А – для обеспечения возможности проведения многочисленных структурных и конструкторских изменений
• ISO/IEC 11801 Информационные технологии – универсальные кабельные системы зданий;
• ISO/IEC 14763 Создание и эксплуатация кабельных систем помещений заказчиков;
• ПУЭ. Правила устройства электроустановок, издание шестое, Главгосэнергонадзор России, 1998;
• Комплекс стандартов МЭК по электромагнитной совместимости;
• СН 512-78 «Инструкции по проектированию зданий и помещений для электронно-вычислительных машин» с последующими изменениями;
• ГОСТ 34.601-90 «Автоматизированные системы. Стадии создания».
3.3. Основные технические решения.
Для сохранения презентабельности эстетического вида помещений после производства монтажно-строительных работ по прокладке кабельной системы должны быть предусмотрены технологии прокладки кабеля:
- внутри стен/пола в ПВХ трубах;
- за подвесным потолком в лотках;
- в кабельных каналах.
При прокладке медного кабеля должны быть выдержаны требуемые стандартами расстояния от трасс прокладки силовых кабелей. Все элементы ЛВС должны быть промаркированы для быстрой и удобной идентификации. После выполнения работ по установке оборудования ЛВС необходимо подготовить и предоставить два экземпляра технической документации.
3.4. Подсистема рабочего места.
Рабочее место служит интерфейсом между горизонтальной кабельной системой, заканчивающейся телекоммуникационной розеткой, и оборудованием конечного пользователя. Рабочее место должно содержать два информационных порта. Монтажные боксы с телекоммуникационными розетками следует устанавливать вблизи розеток электропитания. Розеточные коробки следует располагать так, чтобы обеспечить максимальную гибкость при внесении изменений в конфигурацию рабочих мест.
3.5. Горизонтальная распределительная подсистема.
Горизонтальная распределительная подсистема в составе:
• горизонтальный кросс;
• горизонтальный кабель;
• телекоммуникационная розетка.
Горизонтальная распределительная подсистема начинается информационной розеткой на рабочем месте и заканчивается кроссом в коммутационном шкафу. Маршрут прохождения кабелей горизонтальной распределительной подсистемы определяется инсталлятором по согласованию с административно-техническими службами здания. Запроектированные трассы внутри здания имеют конфигурацию, поддерживающую кабельную топологию «звезда». При установке оборудования необходимо соблюдение следующих требований:
а) применяемое пассивное оборудование должно быть не ниже категории 5е;
б) для создания сегмента в цокольном этаже здания должен использоваться симметричный кабель UTP категории 5е с волновым сопротивлением 100 Ом (поставляется в составе модернизации);
в) применяемый кабель UTP должен соответствовать требованиям ГОСТ 12.2.007.14-75. НПБ 248-97 и иметь сертификат пожарной безопасности.
Трассы ЛВС должны использовать свою обособленную от других кабельных сетей секцию лотка/короба.
При прокладке кабельных каналов необходимо соблюдать следующие требования:
а) кабельные каналы должны быть изготовлены из диэлектрического материала, не поддерживающего распространение огня, обладающего высокой стойкостью к химически агрессивным средам и устойчивого к воздействию грызунов и насекомых;
б) заполнение каналов должно быть не более 70 %;
в) на продукцию должны быть сертификаты пожарной безопасности Государственной противопожарной службы МВД Российской Федерации. Продукция должна соответствовать требованиям пожарной безопасности, установленным в НПБ 246-97;
г) при изменении направления прокладки каналов и при обходе архитектурных элементов здания необходимо использовать соответствующие элементы (внутренние, внешние, плоские углы и т. д.) того же производителя;
д) недопустима замена одного канала большего размера несколькими параллельными каналами меньшего размера.
После монтажа конструкций в трассах не должно быть острых краев, способных контактировать с кабелем. Открытые металлические края должны быть снабжены муфтами и другими средствами защиты для предотвращения повреждения кабеля во время и после монтажа. На всех кабельных каналах после монтажа провести мероприятия по обеспечению противопожарной защиты.
3.6. Магистральная подсистема.
В ходе модернизации ЛВС необходимо организовать дополнительный коммутационный центр в помещении № 18 на втором этаже (планируемое расположение коммутационного шкафа в цокольном этаже здания приведено на Рисунке 2). Межэтажное соединение необходимо реализовать путем соединения коммутационных центров четырьмя UTP.
Для обеспечения телефонизации помещений необходимо проложить к коммутационному центру в помещении № 18 на втором этаже из серверной помещение №2 на втором этаже 25 - парный UTP кабель, который будет обеспечивать подключение к номерной емкости операторов связи. Данный UTP кабель расшивается на 19” 110-кроссы (поставляются в составе модернизации), которые устанавливаются:
- в существующий коммутационный шкаф (помещение №2 серверная);
- в коммутационный шкаф, поставляемый в составе модернизации (помещение №18 на втором этаже).
3.7. Подсистема телекоммуникационных помещений.
В помещении серверной ( на втором этаже) установлен напольный 19” коммутационный шкаф 22 U 600х600.
В коммутационном шкафу установлено следующее оборудование:
- 110 кросс – 1 шт.;
- патч-панели категории 5е (24 порта) – 3 шт.;
- фильтр электропитания на 8 электрических розеток– 1 шт.;
- органайзер – 5 шт.;
- сетевой коммутатор 3 Com – 2 шт.;
- маршрутизатор Cisco – 1 шт.;
- маршрутизатор видеоконференцсвязи Juniper – 1 шт.;
- UPS Rack 1000 – 1 шт.
При проведении модернизации необходимо поставить:
Коммутационный шкаф не менее 22U 600x600 (устанавливается в помещении №18 на втором этаже здания).
В поставляемом коммутационном шкафу планируется установить следующее оборудование:
- телефонный 110 кросс (необходимое количество поставляется в составе модернизации);
- патч-панели категории 5е (необходимое количество поставляется в составе модернизации);
- кабельный органайзер – 4 шт. (поставляется в составе модернизации);
- фильтр электропитания на 8 электрических розеток– 1 шт. (поставляется в составе модернизации);
- сетевой коммутатор (имеется в наличии).
Кабельные трассы от планируемых информационных розеток первого этажа (4 шт.) и от розетки в помещении №13 на третьем этаже (1 шт.) необходимо заводить в помещение серверной на втором этаже и расшивать в существующий коммутационный шкаф на патч-панели поставляемые в составе модернизации. Кабельные трассы от информационных розеток второго и третьего этажей необходимо заводить в помещение №18 на втором этаже здания и расшивать в коммутационный шкаф и на патч-панели поставляемые в составе модернизации.
3.8. Требования к коммутации.
Для коммутации средств вычислительной техники:
Активного сетевого оборудования с патч-панелями в подсистеме телекоммуникационных помещений используются патч-корды заводского изготовления RJ45-RJ45 категории 5е, отвечающие требованиям стандарта TIA/EIA-568-B.2-1. Поставляются в составе модернизации ЛВС в следующем количестве:
- длина 1 метр - 44 шт.;
- длина 3 метра - 44 шт.
Для коммутации между 110 кроссом и патч-панелями в подсистеме телекоммуникационных помещений используются патч-корды S110-RJ45. Поставляются в составе модернизации ЛВС в следующем количестве:
- длина 1 метр – 44 шт.
Для коммутации между 110 кроссом в подсистеме телекоммуникационных помещений используются патч-корды S110-S110. Поставляются в составе модернизации ЛВС в следующем количестве:
- длина 0,5 метра – 25 шт.






