ЗАПРОС КОММЕРЧЕСКИХ ПРЕДЛОЖЕНИЙ
«Поставка оборудования центровки и разгрузки О. К. 508 мм (20ʺ)
ЛСП-2 м/р. им. В. Филановского и Блок-кондуктора м/р. им. Ю. Корчагина»
Настоящий запрос коммерческих предложений не является конкурсом (ст. 447-449 ГК РФ), публичным конкурсом (ст. 1057-1061 ГК РФ), офертой в соответствии со ст. 435 Гражданского кодекса РФ и не порождает обязательства -Нижневолжскнефть» заключить договор с участниками запроса.
-Нижневолжскнефть» оставляет за собой право без дополнительного обоснования причин в любое время прекратить процедуру запроса коммерческих предложений, принять или отклонить любое предложение, осуществить закупку товара/работ/услуг путем тендерных процедур или без проведения таковых.
Объект применения.
1.1 Данное оборудование будет использоваться при спуске обсадной колонны 508 мм (20ʺ) на каждой скважине ЛСП-2 месторождения имени В. Филановского (далее по тексту ЛСП-2) и Блок-кондуктора месторождения имени Ю. Корчагина (далее по тексту БК).
Перечень.
№ | Наименование | Кол-во, ед. изм. | Примечание |
1 | Упорное кольцо обсадной колонны
| 20 к-тов. (ЛСП-2=11к-т. БК = 9 к-т.) | Коррозионностойкое исполнение – К1. Материал – сталь 20. |
2 | Центратор жесткий обсадной колонны | 20 к-тов. (ЛСП-2=11к-т. БК = 9 к-т.) | По наружной части болты крепления – 6 шт. |
3 | Верхний патрубок ВОК 762 мм (30ʺ). | 11 шт. | Для доработки предоставит Заказчик. Для ЛСП-2. |
4 | Патрубок резьбовой 3ʺ.Длина общая – 250 мм. | 16 шт. (ЛСП-2 = 8 шт. БК = 8 шт.) | Тип присоединительной резьбы:3ʺ NPT 11,5 ниток Х 1ʺ.Коррозионностойкое исполнение – К1. |
5 | Кран шаровой резьбовой
| 8 шт. (ЛСП-2 = 4 шт. БК = 4 шт.) | Проходное сечение - 3ʺ. Рабочее давление – 3,5 МПА.Тип присоединительной резьбы:3ʺ NPT 11,5 ниток Х 1ʺ.Коррозионностойкое исполнение – К1. В комплект поставки включить ЗИП для 2-х лет эксплуатации на каждый кран (клапан). |
6 | Соединение быстроразъемное (БРС).3ʺ WECO 1502. | 8 шт. (ЛСП-2 = 4 шт. БК = 4 шт.) | Тип присоединительной резьбы:3ʺ NPT 11,5 ниток Х 1ʺ.Коррозионностойкое исполнение – К1. |
Дополнительные требования.
3.1 -Нижневолжскнефть» предоставит для доработки и изготовления верхних патрубков ВОК 762 мм (30ʺ) трубы ВОК 762 мм (30ʺ) для нужд ЛСП-2 месторождения имени В. Филановского.
3.2 В корпусе жесткого центратора просверлить сквозные отверстия и на наружной части приварить гайки М20. В гайки вкручиваются болты М20. При положении, когда торец болта М20 будет вровень с внутренней поверхностью жесткого центратора снаружи должно быть 20 мм свободной резьбы болта. При установке центратора на трубу болты подтягиваются и крепят центратор к телу трубы (не позволяют центратору самопроизвольно спуститься вниз по трубе).
3.3 Патрубки резьбовые 3ʺ имеют общую длину 250 мм. Тип присоединительной резьбы: 3ʺ NPT 11,5 ниток Х 1ʺ.
3.4 Кран шаровой резьбовой (клапан ручной) 3ʺ х 3,5 МПА. Проходное сечение - 3ʺ. Рабочее давление – 3,5 МПА. Тип присоединительной резьбы: 3ʺ NPT 11,5 ниток Х 1ʺ.
В комплект поставки необходимо включить ЗИП для 2-х лет эксплуатации крана шарового резьбового (клапана ручного).
3.5 Соединение быстроразъемное (БРС) 3ʺ WECO 1502. Тип присоединительной резьбы: 3ʺ NPT 11,5 ниток Х 1ʺ.
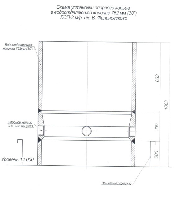
3.6 После изготовления верхних патрубков ВОК 762 мм (30ʺ) -Нижневолжскнефть» предоставит опорные кольца ВОК 762 мм (30ʺ) для их приварке друг к другу (их необходимо сварить вместе) согласно эскиза в приложении для нужд ЛСП-2 месторождения имени В. Филановского.
3.7 Коррозионностойкое исполнение всего поставляемого оборудования – К1.
3.8 Предложение на поставку должно включать:
- подтверждение (или другую информацию) выполнения следующих пунктов технического задания: 2; 3; 4; 5; 6; 7; 8;
- эскизы упорных колец, верхних патрубков ВОК 762мм, резьбовых патрубков, чертеж крана шарового резьбового, с указанием габаритных размеров;
- марки металлов, планируемых к применению.
3.9 После поставки «Оборудования» на склад Заказчика по адресу: База КТПБ -Нижневолжскнефть», Российская Федерация, Астраханская область, Икрянинский район, 1 км южнее р. п. Ильинка, 2,9км северо-восточнее р. п. «Красные Баррикады», необходимо прибытие представителя Поставщика для проверки качества и комплектности поставленного оборудования и составления акта входного контроля.
Требования к маркировке, упаковке и транспортировке.
4.1 На всех упорных кольцах, патрубках, шаровых кранах, БРС, жестких центраторах клеймением должны быть нанесены заводские номера.
4.2 На каждом упорном кольце, жестком центраторе краской написать наименование проекта: ЛСП-2 В. Филановского (11к-тов.) и Б (9к-тов.).
4.3 Все поставляемое оборудование должно быть покрашено.
4.4 Перед упаковкой в тару все поставляемое оборудование должно быть законсервировано для транспортировки и хранения в течение 7 (семи) месяцев. В тару должен быть вложен упаковочный лист, заверенный «Поставщиком».
4.5 На упаковке должны быть нанесены четкие несмываемые надписи на русском языке, с указанием наименованием проекта: ЛСП-2 В. Филановского (11 к-тов.) и БК
Ю. Корчагина (9 к-тов.).
4.6 Упаковка и транспортное крепление узлов должны обеспечивать их сохранность в процессе транспортировки любыми видами транспорта.
Требования к документации.
5.1 Поставка документации Заказчику должна быть произведена одновременно с поставкой оборудования.
5.2 Перечень документации, которую Поставщик передает Заказчику:
- заводские паспорта на упорные кольца, задвижки, БРС, жесткие центраторы; акт заводской опрессовки шаровых кранов на пробное давление (проверка герметичности); декларация соответствия ТР ТС; инструкция по эксплуатации шаровых кранов; перечень ЗИП шаровых кранов для заказа с указанием каждого элемента ЗИП на чертеже; чертежи на упорные кольца обсадной колонны 508 мм (20ʺ), жесткие центраторы обсадной колонны 508 мм (20ʺ); карта сварки (приварка верхних патрубков ВОК 762 мм (30ʺ) и опорных колец ВОК 762 мм); отчет о проверке сварных швов; сертификаты качества на материалы, применяемые при изготовлении упорных колец, жестких центраторов.
Требования к Поставщику.
6.1 Перед началом изготовления всех элементов, согласно п.2 «Перечень» Поставщик обязан разработать и согласовать с Заказчиком чертежи на изготовление.
6.2 При разработке чертежей на изготовление упорных колец и патрубков Поставщик должен основываться на эскизах, предоставленных Заказчиком (Приложения № 1; № 2; № 3; № 4, № 5).
Срок поставки.
7.1 Поставка комплекта оборудования центровки и разгрузки О. К. 508 мм (20ʺ) ЛСП-2 м/р. им. В. Филановского и Блок-кондуктора м/р. им. Ю. Корчагина должна быть осуществлена на склад Заказчика в срок до 01.10.2017 года.
Дополнительные условия
Требования по обязательному наличию сертификатов, лицензий, свидетельств, разрешений и пр. по предмету запроса:
Претендент должен быть либо производителем продукции, либо дилером (дистрибьютором) - необходимо предоставление подтверждающих документов в составе коммерческого предложения. Если претендент не является дилером/дистрибьютором, то он должен предоставить подтверждение того, что оборудование (материалы) будут закупаться у дилера либо производителя.
Заказчик имеет право не мотивировать перед Претендентами любое принятое по предмету запроса решение.
В коммерческом предложении Претендент должен дать полное описание поставляемой продукции в соответствии с техническими требованиями.
Предложение Претендента, не отвечающее настоящим техническим требованиям покупателя, не допускается к участию.
Условия расчетов по договору: оплата товара производится не позднее 65 календарных дней по истечении месяца подписания Покупателем без замечаний товарной накладной ТОРГ-12 при условии получения Покупателем оригинала счета-фактуры, оформленного в соответствии с действующим законодательством РФ, на основании представленного счета на оплату.
Условия поставки: право собственности на продукцию, а также риск случайной гибели или повреждения переходит к Покупателю в момент подписания товарной накладной по форме № ТОРГ-12 и передачи груза на складе Покупателя. Поставка осуществляется силами Поставщика.
Место доставки: Комплексная транспортно-производственная база -Нижневолжскнефть», Российская Федерация, Астраханская область, Икрянинский район, 1 км. южнее р. п. Ильинка, 2,9 км. северо-восточнее р. п. Красные Баррикады.
Приложения
9.1 Приложение :
Эскиз упорного кольца обсадной колонны 508 мм (20ʺ) – на 1 листе;
9.2 Приложение :
Эскиз жесткого центратора обсадной колонны 508 мм (20ʺ) – на 1 листе;
9.3 Приложение :
Эскиз доработки торцов трубы водоотделяющей колонны 762 мм (30ʺ) – на 1 листе;
9.4 Приложение :
Схема установки опорного кольца водоотделяющей колонны 762мм (30ʺ)–на1листе;
9.5 Приложение :
Схема монтажа оборудования для слива бурового раствора – на 1листе.
Порядок подачи коммерческих предложений:
Коммерческое предложение необходимо направить на электронный адрес Viktor. *****@***com
Коммерческое предложение должно содержать следующую информацию:
1. Предварительная цена позиционно и общая цена предложения в рублях без учета НДС. В случае, если НДС не предусмотрен, необходимо указать данную информацию. В цену коммерческого предложения должны быть включены все расходы, связанные с выполнением обязательств по договору.
2. Срок поставки/оказания услуг/выполнения работ.
3. Условия оплаты.
4. Контактное лицо.
5. Номер телефона контактного лица.
6. Коммерческое предложение должно быть датировано, подписано руководителем Организации-претендента и заверено печатью.
7. Коммерческое предложение направляется на имя начальника отдела организации тендеров и аукционов -Нижневолжскнефть» Хапугина Виктора Валентиновича.
8. К рассмотрению принимаются коммерческие предложения исключительно на весь объем поставки/услуг/работ.
9. Наряду с коммерческим предложением необходимо предоставление копий учредительных документов и свидетельств о регистрации.
Окончательный срок подачи коммерческих предложений c предварительной ценой «24» июля 2017 года до 17:00 по местному времени.
Порядок организации процедуры по снижению цен.
После сбора коммерческих предложений с предварительной ценой в назначенное Организатором время с контактными лицами, указанными в коммерческих предложениях, организовывается процедура по снижению цен при помощи многосторонней телефонной селекторной связи.
По результатам проведенной процедуры по снижению цен все претенденты предоставляют окончательные коммерческие предложения.
Окончательные цены по результатам проведения процедуры по снижению цен изменению не подлежат.
Особому вниманию Претендента!
При стоимости товаров/работ/услуг менее 200 000 рублей без учета НДС, Претенденту необходимо направлять коммерческое предложение с окончательной ценой, т. к. процедура по снижению цен при стоимости меньше указанной НЕ ПРОВОДИТСЯ.
Дата проведения процедуры по снижению цен будет сообщена дополнительно.
Претендент не допускается к участию в процедуре по снижению цен в следующих случаях:
– коммерческое предложение предоставлено на неполный объем поставки/услуг/работ;
– коммерческое предложение не соответствует техническому заданию Заказчика;
– коммерческое предложение поступило позже указанного окончательного срока.
Заказчик: -Нижневолжскнефть», расположенное по адресу: Российская Федерация, Астраханская область, , корпус 2.
Организатор: отдел организации тендеров и аукционов -Нижневолжскнефть», расположенный по адресу: Российская Федерация, Астраханская область, , корпус 2, кабинет 2-11.
Контактное лицо –
Контактный телефон: (8512) 40-29-41,
E-mail: Viktor. *****@***com
Договор на поставку товара заключается в редакции -Нижневолжскнефть» (Приложение ).
Предлагаемый проект Договора содержит все положения, которые являются существенными для Заказчика. В случае имеющихся замечаний Претендент должен направить с коммерческим предложением проект протокола разногласий к договору поставки. Заказчик вправе не принимать условия протокола разногласий к договору. Приоритет при заключении договора будет у коммерческих предложений, предоставленных без протокола разногласий.
Договор должен быть подписан поставщиком в течение 5 рабочих дней с даты получения оригиналов.
Приложение

Приложение

Приложение

Приложение

Приложение

Приложение
ДОГОВОР ПОСТАВКИ №
г. Астрахань «___» _________ 201 г.
Общество с ограниченной ответственностью ефть» (сокращенное наименование -Нижневолжскнефть»), именуемое в дальнейшем «Покупатель», в лице ___________________________________________, действующего на основании_____________, с одной стороны, и ____________________________________________, именуемое в дальнейшем «Поставщик», в лице __________________________________ действующей на основании _______________, с другой стороны, а вместе именуемые «Стороны», заключили настоящий Договор о нижеследующем:
Предмет Договора.1.1. Поставщик обязуется поставить товар в номенклатуре, в количестве и сроки, определенные в Спецификации №1 (Приложение к настоящему Договору), являющейся неотъемлемой частью настоящего Договора, а Покупатель - принять и оплатить его.
1.2. Поставщик обязан передать Покупателю вместе с товаром все принадлежности и документы (при необходимости с переводом на русский язык), относящиеся к товару (сертификаты, тех. паспорта, инструкции, иные документы, оформление которых является обязательным для данной категории товара в соответствии с требованиями действующего законодательства Российской Федерации), а также счета-фактуры и товарные накладные по форме ТОРГ-12.
В случаях, когда это предусмотрено действующими нормативно-правовыми актами РФ, Поставщик оформляет и передает Покупателю разрешение Ростехнадзора на применение технических устройств на опасных производственных объектах.
1.3. Поставщик, по письменному согласованию с Покупателем, имеет право досрочно поставить товар.
2. Качество и комплектность товара.
2.1. Качество и комплектность товара, поставляемого по настоящему Договору, должны соответствовать условиям настоящего Договора, товар должен быть новым, не бывшем в употреблении, а также соответствовать стандартам (ГОСТ, ТУ, ОСТ, СТП), установленным действующим законодательством Российской Федерации для данной категории товаров.
2.2. Гарантийный срок на поставляемый товар определяется по документам завода-изготовителя. При этом гарантийный срок на поставляемый товар не должен быть менее 12 месяцев с даты поставки товара и подписания Сторонами товарной накладной ТОРГ-12 без замечаний.
В случае отказа в гарантийном обслуживании товара со стороны завода-изготовителя по причинам, не связанным с неверной эксплуатацией товара Покупателем, Поставщик самостоятельно несёт гарантийные обязательства в отношении такого товара в полном объёме в течение установленного гарантийного срока.
2.3. Поставщик гарантирует доброкачественность и надежность поставляемого товара, а также то, что товар свободен от прав третьих лиц, в том числе патентных (патентную чистоту), в связи с чем, Поставщик обязуется проводить проверку поставляемого товара на патентную чистоту.
Поставщик гарантирует, что обладает всеми необходимыми свидетельствами, лицензиями, разрешениями, сертификатами и иными документами, которые подтверждают права Поставщика на поставляемый товар и его составляющие, и наличие или оформление которых для него обязательны в соответствии с требованиями действующего законодательства РФ для целей настоящего Договора.
В случае предъявления к Покупателю третьими лицами каких-либо связанных с поставленным товаром требований о возмещении ущерба, причиненного вреда, или требований иного характера, основания для которых возникли до передачи товара от Поставщика Покупателю, а также требований, связанных с нарушением патентных прав, Поставщик обязан немедленно после получения от Покупателя письменного уведомления о предъявлении таких требований самостоятельно и за свой счет их урегулировать, а также возместить Покупателю вред, причиненные такими требованиями убытки в полном объеме.
2.4. Поставщик, допустивший недопоставку товара, с письменного согласия Покупателя обязан восполнить недопоставленное количество товара в сроки, указанные Покупателем.
2.5. Приемка товара по количеству и качеству, если иное не установлено законом или настоящим Договором, производится в соответствии с Инструкциями о порядке приемки продукции производственно-технического назначения и ТНП по количеству и качеству, утвержденными постановлениями Госарбитража СССР № П-6, № П-7.
2.6. В случае если в течение гарантийного срока выявляются недостатки, дефекты товара, Поставщик, после получения соответствующего письменного уведомления от Покупателя с подробным описанием недостатков, должен в течение срока, указанного в уведомлении
(срок должен быть разумным и учитывать минимально необходимое Поставщику время для устранения недостатков либо замены товара), за свой счет устранить их путем исправления либо замены некачественного товара (его частей) на качественный.
В случае не согласия с изложенным в уведомлении, Поставщик должен письменно проинформировать об этом Покупателя и в течение 5 рабочих дней (или в иной письменно согласованный представителями Сторон срок) с даты получения уведомления направить за свой счет своего представителя к месту нахождения товара для выяснения обстоятельств дела.
Если выяснится, что недостатки (дефекты) товара возникли по причинам, не зависящим от Поставщика, Покупатель компенсирует Поставщику расходы, связанные с прибытием его представителя к месту нахождения товара в пределах следующих лимитов: проезд поездом – в плацкарте, самолетом - в эконом. классе, проживание в гостинице – в стандартном одноместном номере.
Если представитель Поставщика по уважительным причинам не может прибыть к месту поставки в течение вышеуказанного срока, Поставщик должен своевременно письменно известить об этом Покупателя с указанием причин. В данном случае Сторонами согласуется новый срок.
Неявка представителя Поставщика в установленный 5-тидневный срок (или иной согласованный Сторонами срок) приравнивается к признанию Поставщиком изложенных в уведомлении претензий Покупателя и Поставщик должен в течение срока, указанного в уведомлении, за свой счет устранить недостатки товара.
2.7. В случае нарушения установленного срока устранения недостатков (замены) товара (его частей) Поставщик несет ответственность в соответствии с п. 6.4. настоящего Договора.
2.8. Если из-за обнаруженных недостатков, дефектов невозможно продолжать нормальную эксплуатацию товара, то гарантийный срок продлевается на период устранения таких недостатков, дефектов.
Тара и упаковка.3.1. Товар должен быть упакован в тару, отвечающую требованиям ГОСТов, ТУ и обеспечивающую сохранность товара при перевозке, перевалке и хранении. На таре и упаковке не должно быть видимых механических повреждений, подтеков, следов конденсата и т. д.
3.2. Тара и упаковка входят в цену поставляемого товара и возврату не подлежат.
4. Порядок расчетов и сумма Договора.
4.1. Оплата товара производится не позднее 65 календарных дней по истечении месяца подписания Покупателем без замечаний товарной накладной № ТОРГ-12, при наличии оригиналов счетов-фактур, оформленных в соответствии с действующим законодательством РФ на основании представленного счета на оплату. При этом Поставщик не вправе требовать уплаты процентов, согласно пункту 1 статьи 317.1 ГК РФ.
4.2. Цена Договора, согласно Спецификации № 1, составляет ______ (__________________) рублей ___ копеек, кроме того НДС 18% - ______ (______________________) рублей ___ копеек, всего с НДС – _______ (_____________) рублей ___ копеек и включает в себя все возможные расходы Поставщика по поставке товара (расходы на таможенную очистку, доставку, транспортные расходы, погрузочно-разгрузочные работы и т. д.).
4.3. Цена Договора является фиксированной и может быть изменена Сторонами только путем подписания соответствующего дополнительного соглашения к Договору в случае изменения объема поставок.
4.4. Счет-фактура представляется не позднее 5 календарных дней с момента поставки товара Покупателю. В случае просрочки представления первичных учетных документов и/или счета-фактуры, оформленных в соответствии с действующим законодательством РФ, Поставщик уплачивает Покупателю пени в размере 0,02% от суммы несвоевременно предоставленного документа (с НДС) за каждый день просрочки представления, но не менее 10 000 (десяти тысяч) рублей.
4.5. Датой исполнения обязательств по оплате является дата списания денежных средств с расчетного счета Покупателя.
5. Поставка и порядок приемки.
5.1. Срок поставки указывается в Спецификации №1, являющейся неотъемлемой частью настоящего Договора. О дне отгрузки Поставщик обязан письменно уведомить Покупателя (в том числе по факсу: ______________, по электронной почте по адресу: _____________________) за 24 часа до предполагаемой даты отгрузки товара.
5.2. Право собственности на товар, а также риск случайной гибели или повреждения переходит к Покупателю в момент подписания Сторонами без замечаний товарной накладной по форме № ТОРГ-12 и передачи груза на складе Покупателя (база КТПБ -Нижневолжскнефть»), расположенном по адресу: Российская Федерация, Астраханская обл., 416357, Икрянинский район, 1 км южнее р. п. Ильинка, 2,9 км северо-восточнее р. п. «Красные Баррикады».
5.3. Товар считается поставленным в срок, если момент передачи товара Поставщиком на склад Покупателя происходит согласно сроку поставки по Спецификации № 1.
6. Ответственность Сторон.
6.1. В части, не предусмотренной настоящим Договором, за неисполнение, либо за ненадлежащее исполнение договорных обязательств, Стороны несут имущественную ответственность в соответствии с действующим законодательством РФ.
6.2. В случае причинения убытков, виновная Сторона возмещает их другой в полном объеме.
6.3. Некачественный и/или некомплектный товар подлежит замене/доукомплектованию за счет Поставщика в 10-дневный срок с момента получения уведомления, при этом Поставщик уплачивает Покупателю штраф в размере 10% от стоимости некачественного/некомплектного товара.
6.4. В случае нарушения сроков поставки (замены, доукомплектования, устранения недостатков, в том числе по гарантии) товара Поставщик обязуется уплатить Покупателю пени в размере 0,1% от стоимости такого товара за каждый день просрочки.
Товар, поставленный без полного комплекта документации, указанной в п. 1.2. настоящего Договора, считается не поставленным в срок, и Поставщик несет ответственность в соответствии с настоящим пунктом.
6.5. При просрочке поставки товара более чем на 15 дней Покупатель имеет право расторгнуть настоящий Договор в одностороннем порядке, уведомив об этом Поставщика за 3 дня до предстоящего расторжения, при этом Поставщик обязан уплатить все штрафные санкции, предусмотренные настоящим Договором, и возместить Покупателю причиненные убытки в полном объеме.
6.6. За просрочку оплаты поставленного товара, т. е. за неоплату товара по истечении 15 дней с даты, указанной в п. 4.1. Договора, Поставщик вправе требовать от Покупателя уплаты неустойки в размере 0,01% от суммы несвоевременного платежа за каждый день просрочки оплаты свыше 15 дней, но не более 10% от неоплаченной суммы.
6.7. Возможность применения штрафных санкций является правом Стороны, чьи права нарушены.
Никакие штрафные санкции не будут применяться автоматически. Право на получение неустойки (штрафа и/или пени) возникает у Стороны после того, как она выставит другой Стороне претензию с обоснованным расчетом суммы неустойки, а та признает ее, либо после вступления в законную силу решения суда о взыскании конкретной суммы неустойки.
7. Порядок разрешения споров.
7.1. При возникновении спора Стороны будут стремиться разрешить его мирным путем, посредством направления претензий; срок ответа на претензию – 15 дней с момента ее получения.
7.2. В случае не урегулирования спора мирным путем, все споры, противоречия и разногласия, возникающие из (или в связи с) настоящего Договора передаются на рассмотрение в Арбитражный суд Астраханской области.
8. Дополнительные условия.
8.1. Договор оформлен и подписан в 2 (двух) экземплярах, наделенных одинаковой юридической силой.
8.2. Настоящий Договор вступает в силу с момента его подписания Сторонами и действует до «___» _______ 201_г., а в отношении условий об ответственности, расчетах и гарантиях - до полного исполнения Сторонами принятых на себя обязательств по Договору.
8.3. Покупатель имеет право на односторонний отказ от исполнения Договора путем направления Поставщику письменного уведомления об отказе за 15 дней до предполагаемой даты расторжения Договора.
При одностороннем отказе Покупателя от исполнения Договора, за исключением случаев, когда такой отказ вызван неисполнением или ненадлежащим исполнением Поставщиком своих обязательств по Договору, Покупатель оплачивает Поставщику документально подтвержденные реальные убытки, связанные с исполнением Договора, понесенные Поставщиком до получения извещения об отказе Покупателя от исполнения Договора.
8.4. Вся предшествующая переписка между Сторонами теряет юридическую силу с момента заключения настоящего Договора.
8.5. В остальном, не предусмотренном настоящим Договором, Стороны руководствуются действующим законодательством РФ.
8.6. Права и обязанности каждой из Сторон по настоящему Договору не могут быть переданы третьим лицам, заложены или отчуждены любым иным способом без предварительного письменного разрешения на то другой Стороны.
9. Конфиденциальность.
9.1. Конфиденциальной информацией в рамках настоящего Договора признается информация, полученная или приобретенная получающей Стороной в ходе исполнения
принятых на себя договорных обязательств и касающаяся деятельности раскрывающей Стороны, доступ к которой ограничивается в соответствии с законодательством РФ и в отношении которой обладателем информации установлен режим коммерческой тайны. Передача конфиденциальной информации, зафиксированной на материальном носителе, осуществляется в порядке, установленном предоставляющей Стороной.
Каждая Сторона хранит конфиденциальную информацию, полученную от другой Стороны, в тайне, не раскрывает такую конфиденциальную информацию кому-либо, а также не использует ее для целей, не связанных с выполнением обязательств по настоящему Договору, без предварительного письменного согласия соответствующей Стороны, передающей такую информацию (за исключением случаев, когда доступ к такой информации необходим для выполнения обязанностей по настоящему Договору постоянными подрядчиками одной из Сторон, связанными письменными обязательствами о сохранении тайны).
Настоящие обязательства остаются в силе в течение 3 лет после окончания срока действия, расторжения по любой причине или аннулирования настоящего Договора.
Любая Сторона, раскрывшая информацию в нарушение данного обязательства, обязана возместить прямой ущерб, нанесенный другой Стороне, и компенсировать упущенную выгоду.
10. Форс-мажор.
10.1. Ни одна из Сторон не несет ответственности перед другой Стороной за неисполнение обязательств по настоящему Договору, обусловленное действием обстоятельств непреодолимой силы, т. е. чрезвычайных и непредотвратимых при данных условиях обстоятельств, возникших помимо воли и желания сторон и которые нельзя предвидеть или избежать, в том числе объявленная или фактическая война, гражданские волнения, эпидемии, блокада, пожары, землетрясения, наводнения и другие стихийные бедствия.
Свидетельство, выданное соответствующей Торгово-промышленной палатой или иным компетентным органом, является достаточным подтверждением наличия и продолжительности действия непреодолимой силы. Сторона, которая не исполняет своего обязательства вследствие действия непреодолимой силы, должна в течение двух суток известить другую Сторону о таких обстоятельствах и их влиянии на исполнение обязательств по Договору.
Если обстоятельства непреодолимой силы действуют на протяжении одного месяца, настоящий Договор может быть расторгнут любой из Сторон путем направления письменного уведомления другой Стороне.
11. Юридические адреса и платежные реквизиты сторон
Покупатель: Поставщик:
ПОДПИСИ СТОРОН:
«Покупатель»: «Поставщик»:
_________________ __________________
м. п. м. п.
ПРИЛОЖЕНИЕ №1
к договору №
от "___" ______ 201_ г.
Спецификация №1
№ п\п | Шифр под\объекта, раздел | Наименование и технические характеристики | Ед. изм. | Общее кол-во по проекту | Цена за ед. товара руб. (без НДС) | Сумма руб. (без НДС) | Сумма руб. (с НДС) | Срок поставки |
1 | 2 | 3 | 4 | 5 | 6 | 7 | 8 | 9 |
1 | ||||||||
ИТОГО: | ||||||||
В том числе НДС 18% |
Место доставки: поставку товара производить на склад «Комплексной транспортно-производственной базы -Нижневолжскнефть» по адресу: Российская Федерация, Астраханская обл., Икрянинский район, 1 км южнее р. п. Ильинка, 2,9 км северо-восточнее р. п. «Красные Баррикады».
ПОКУПАТЕЛЬ ПОСТАВЩИК
_________________________________________ ________________________________________
«___» ____________________________ 201__ г. «___» ____________________________ 201__ г.
Начальник отдела МТО
Исполнитель



