
ТОО «КАРПЛАЗ»
КОТЕЛ ОТОПИТЕЛЬНЫЙ
ВОДОГРЕЙНЫЙ АВТОМАТИЗИРОВАННЫЙ
(С РУЧНОЙ ТОПКОЙ, для открытых систем отопления)
Руководство по эксплуатации
г. Караганда
Сертификат соответствия стандартам менеджмента качества
ISO 9001-2009 № KZ.7100858.07.03.07555 от 01.01.2001г.
С о д е р ж а н и е
Р у к о в о д с т в о п о э к с п л у а т а ц и и
1 Техническое описание……..…………………………………………… 3
1.1 Введение ………………………………………………………………... 3
1.2 Назначение и область применения …………………………………… 3
1.3 Технические характеристики котлов, выпускаемые ТОО «Карплаз» 3
1.4 Устройство и принцип …………………………………………………. 3
1.5 Транспортировка котла………………………………………………… 4
1.6 Уголь. . …….…………………………………………………………… 4
1.7 Конденсация в котле ……………………………………………………. 4
1.8 Факторы влияющие на длительность горения …………………………. 7
1.9 Расчет тепловой мощности………………………………………………. 7
2 Инструкция по эксплуатации ……………………………………… 8
2.1 Требования безопасности …………………………………………….. 8
2.2 Монтаж котла ………………………………………………………….. 9
2.3 Подготовка котла к работе, порядок работы и техническое
обслуживание ………………………………………………………….. 10
2.4 Не исправности в работе котла и способы их устранения …………… 13
2.5 Ремонт топочного блока ……….…………………………….……….. 14
2.6 Остановка котла в зимних условиях …………………………………. 14
Внимание!!! Прежде чем приступить к монтажу и эксплуатации котла Внимательно ознакомитесь с инструкцией!!! |
1 Техническое описание.
1.1. Введение.
Настоящее руководство содержит информацию по устройству, монтажу и эксплуатации котла отопительного.
1.2. Назначение и область применения.
Котел отопительный водогрейный автоматизированный (далее – котел) с ручной топкой для сжигания твердого топлива предназначен для систем теплоснабжения зданий и сооружений различного назначения и устанавливается в котельных или в специально предназначенных для него помещениях.
Котел может работать с принудительной циркуляцией воды при избыточном рабочем давлении до 0,06 МПа (0,6 кгс/см2) и температурой нагрева до 90 0С.
Применяемый верхний способ сжигания угля мелких фракцией, как основного топлива, позволяет котлам данной конструкции служить альтернативой для котлов угольных и газовых, с точки зрения стоимости эксплуатации.
1.3. Технические характеристики котлов, выпускаемые ТОО «Карплаз».
Технические характеристики котлов, выпускаемые ТОО «Карплаз» представлены в таблице 1.
1.4. Устройство и принцип работы котла
Конструкция котла показана на фото 1
Котел состоит из следующих основных частей:
1) топочного блока со встроенными колосниковой решеткой и зольником;
2) микропроцессорного регулятора температуры с панелью управления;
3) запорной арматуры и приборов.
Топочный блок состоит из стальных сварных панелей, последовательно соединенных и представляющих собой змеевидный проход для нагреваемой воды. Ручная топка котла представляет собой трубную колосниковую решетку – с поворотными сварными колесниками и рычажным приводом. Для забрасывания угля, шуровки и сбрасывания шлака имеются дверцы. Топочный блок с внутренней стороны обогревается уходящими газами, которые собираются в газоходе, расположенном в верхней задней части топочного блока.
Зольник расположен под колосниковой решеткой и служит для подачи воздуха через колосниковую решетку в топочное пространство, а так же для сбора золы, которая удаляется через специальную дверку.
Топливо подается через загрузочную дверцу на колосниковую решетку. Образующиеся продукты сгорания перемещаются вдоль всех конвективных поверхностей нагрева и, благодаря наличию разрежения за котлом, движутся к задней части котла и покидают его через газоход.
Дутьевой воздух, подаваемый вентилятором, регулируется автоматически с помощью микропроцессора.
Питание котла водой осуществляется насосом через подводящую трубу, из которой вода поступает в топочный блок. Нагретая в котле вода поступает в отопительную систему.
Для выпуска воздуха при заполнении котла водой имеются патрубки в самой верхней части котла, а для слива воды при остановке котла имеются патрубки в нижней части топочного блока.
Микропроцессорный регулятор температуры состоит из датчика температуры нагреваемой воды, вентилятора для подачи воздуха в топку, насоса для прокачки воды в системе, программирующего устройства и панели управления.
1.5. Транспортировка котла.
Транспортировка котла может производиться любым видом транспорта. Подъем и опускание должны производиться с помощью подъемных механизированных устройств с использованием приваренных к корпусу котла петель. Котел необходимо транспортироваться в вертикальном положении.
1.6. Уголь.
Уголь для котельной должен храниться в закрытом помещении. Применяя угли с высокой калорийностью (теплотворная способность прямо пропорциональна получаемой тепловой энергии), можно получить более длительное горение при одной загрузке. Не рекомендуется использование углей с высоким содержанием летучих и смолянистых веществ. К ним относятся длиннопламенные угли. При использовании таких углей нельзя допускать забивание теплообменника до состояния невозможности обслуживания. При использование углей низкого качества уменьшается лишь длительность горения и скорость повышения температуры.
Расход угля зависит от его калорийности
1.7. Конденсация в котле.
Образование конденсата на корпусе котла - явление, происходящее при розжиге холодного котла. Некоторые пользователи, наблюдая появление лужи воды на полу под котлом, связывают происходящее с не герметичностью котла. Но это противоречит истине. Конденсат, накапливаясь в теплообменнике, вытекает из него.
Качество наших котлов подтверждается гидроиспытаниями (опрессовкой). При этом контур корпуса котла наполняется водой под давлением от 1,8 до 5 атм. (в зависимости от мощности котла). Это давление в три раза больше рабочего давления котла. Данное испытание проходит не менее 30 минут. Если давление в котле не изменяется (утечка воды), то производиться окончательная сборка котла. За всю историю выпуска котлов наших предприятием не было ни одного случая претензий потребителя по герметичности котла.
Образование конденсата происходит за счет работы котла и взаимодействия с окружающей средой. В основу работы котла положен принцип пиролизного горения угля. В качестве топлива рекомендуется использовать уголь, с влажностью 20 процентов. Во время горения вода, содержащаяся в угле, испаряется. Так же во время горения в ходе химических реакций образуется вода. Поэтому отработанные газы содержат в себе достаточно большое количество воды. Концентрация водяных паров максимальна во время розжига и в первый час горения из вновь загруженной партии угля. При контакте горячего водяного пара с холодным теплообменником и холодными дымовыми трубами на их поверхности начинается процесс конденсации (запотевание холодных поверхностей и образование капель воды, за счет охлаждения горячего водяного пара).
Конденсат может образовываться так же при заполнении котла холодной водой (в случаи, если температура воздуха выше температуры воды). Из-за разницы температур на открытых участках теплообменника будет происходить образование конденсата из окружающего воздуха.
У неработающего котла за счет движения воздуха через теплообменники (естественная тяга) может также образовываться конденсат.
Каждый из нас неоднократно становился свидетелем образования капелек воды на окружающих предметах и конструкциях. Объясняется это тем, что над предметом, принесённым с мороза, охлаждается окружающий воздух. Происходит насыщение водяными парами, и на предмете конденсируется роса. Такую же природу имеет запотевание окон в квартире. Причиной того, что «окна плачут», являются процессы конденсации, на которые влияют влажность и температура окружающего воздуха. Образование конденсата тесно связано с понятием точки росы.
Точка росы – это температура охлаждения окружающего воздуха, при которой водяной пар, который в нём содержится, начинает конденсироваться, образовывая росу, то есть это температура выпадения конденсата.
Точка росы напрямую связана с абсолютной, относительной и фактической влажностью.
Если для обычного человека абсолютная влажность воздуха (максимальное содержание влаги в воздухе) в быту имеет значение сравнительное и лишь влияет на комфортность микроклимата в помещении, то на профессиональном уровне многие виды человеческой деятельности требуют регулярного контроля и даже регулирования этого показателя. Так абсолютная влажность зависит от температуры. Чем меньше температура воздуха, тем меньше он содержит влаги, тем меньше процесс конденсации.
Фактическая влажность – фактическое содержание влаги в воздухе. Фактическая влажность измеряется в г/м3, не зависит от температуры воздуха и отображает реальное содержание влаги в воздухе.
Относительная влажность – отношение содержания максимально-возможной (абсолютной) влаги к ее фактическому содержанию в воздухе. Относительная влажность измеряется в процентах и показывает процентное содержание влаги в воздухе от максимально возможного. Максимальный показатель относительной влажности 100%, но это - неустойчивое состояние.
Зависимость точки росы можно проследить, проанализировав процесс охлаждения влажного воздуха (конденсация водяного пара происходит в интервале температур от 0°С до 100°С).
1. При охлаждении влажного воздуха: абсолютная влажность снижается и стремится к нолю, фактическая влажность остается неизменной, относительная влажность – растет и стремится к своему максимуму (100%)
На этом этапе изменяются только параметры влажного воздуха, но не происходит никаких видимых изменений
2. При дальнейшем охлаждении влажного воздуха: абсолютная влажность снижается и стремится к нолю фактическая влажность остается неизменной рост относительной влажности достигает максимального предела (100%) и останавливается.
Это температура точки росы. На этом этапе наступает пересыщение воздуха водяным паром. Крайне неустойчивое состояние. Первые частицы водяного пара начинают конденсироваться в окружающей среде.
3. При дальнейшем охлаждении влажного воздуха: значение абсолютной влажности продолжает снижаться и стремится к нолю значение фактической влажности – тоже снижается и стремится к нолю значение относительной влажности – остается на отметке 100%.
При дальнейшем охлаждении такого воздуха, относительная влажность будет оставаться неизменной (100%), а значение абсолютной и фактической влажности – уменьшаться. Уменьшение фактической влажности будет происходить за счет выпадения избыточной влаги в конденсат. Т. е., однажды достигнув температуры точки росы, воздушная среда все время будет пребывать в таком состоянии до полного своего осушения, при условии, что дальнейшее охлаждение не прекращается.
Другими словами при достижении 100 процентов относительной влажности из воздуха начнется выделяться влага в виде конденсата что мы, и наблюдаем во время работы пиролизного котла.
Процесс конденсации не постоянен. Как только котел нагреется до температуры 60 градусов С процесс конденсации прекращается. При пользовании котлом в температурном интервале 38-60 градусов, а так же если между протопками был перерыв более суток будет наблюдаться образование конденсата.
Особенностью конструкции угольных котлов ТОО «КарПлаз» является очень мощный теплообменник. От мощности теплообменника на прямую зависит эффективность и КПД котла. Чем мощнее теплообменник, тем ниже температура отработанный газов, тем выше эффективность и КПД котла, тем меньше расход топлива и больше длительность горения. Но осуществив полный отбор тепла и полностью охладив отработанные газы, мы сталкиваемся с конденсатом, но если не добиваться максимально высокого КПД котла, то можно забить котлы, которые способны работать эффективно с максимальной экономией топлива.
1.8 Факторы влияющие на длительность горения.
Тепловые потери помещения влияют на расход и длительность горения угля. В тепловые потери входят утечки тепловой энергии путем ее поглощения окнами, стенами, полом, потолком, утечки через вентиляцию и не герметичности помещения. У разных строительных материалов разная теплопроводность. У каждого помещения свое соотношение окон с капитальными стенами, разная теплоизоляция потолков, пола и стен, количество частоты открывания входных дверей и ворот, своя конфигурация строения здания, вентиляция. Приточно-вытяжная вентиляция уменьшает время горения и увеличивает расход угля. Если система смонтирована через теплообменник, то расход топлива будет больше из-за потерь тепла. Если в системе смонтирован бойлер, то дополнительный расход угля на подогрев горячей воды будут зависть от разбора и объема горячей воды. Правильный выбор циркуляционного насоса влияет на КПД системы. Производительность циркуляционного насоса м3 в час должна превышать водную емкость всей системы минимум в 3 раза.
1.9. Расчет тепловой мощности
Для расчета тепловой мощности необходимо знать объем отапливаемого помещения - V (м3), коэффициент теплопотери здания - K и разницу температур внутри помещения и на улице - Т. Коэффициент теплопотери для каждого вида строения разный.
Для здания без теплоизоляции (конструкция из проф. листа) коэффициент теплопотери равняется К=3-4.
При упрощенной конструкции здания коэффициент теплопотери будет уже составлять К=2-3, к таким зданиям можно отнести, здания с одинарной кирпичной кладкой, простыми окнами и простой конструкцией крыши.
Для более утепленных зданий, к примеру, здание с двойной кирпичной кладкой, не большим количеством окон и теплоизолированной крышей. Коэффициент теплопотери здания будет еще меньше и равняться К=1-1,9.
К хорошо теплоизолированным зданиям можно отнести такие конструкции как, двойная кирпичная кладка с теплоизоляцией, хорошо утепленной крышей и окнами (стеклопакет), толстым основанием пола. При такой теплоизоляции здания коэффициент теплопотери будет К=0,6-0,9.
Расчет производится по формуле:

2 Инструкция по эксплуатации
2.1 Требования безопасности
1.Запрещаеться установка котла непосредственно в жилой зоне Котел должен устанавливаться в теплом помещении (котельной), с полами, стенами и кровлей из не горючих материалов. Иметь свободный, прямой выход отработанных газов. Дымоходная труба должна быть соединение напрямую с котлом и не иметь мест скопления газа.
2. Запрещается эксплуатировать котел в системе закрытого типа. При установки диафрагменного расширительного бочка гарантия на котел не распространяется.
3. Запрещается эксплуатировать котел без предохранительного клапана или клапаном большей мощности чем указана в паспорте котла. Клапан входит в комплект поставки.
4. Запрещается эксплуатация котла при уменьшении уровня воды в системе, ниже уровня, указанного в инструкции по эксплуатации котла.
5. Запрещается выключать микропроцессор регулятора температуры на работающим котле так как в этом случае не будут происходить газовые продувки для удаления скопившихся газов и при последующем включении микропроцессора скопившиеся газы могут взрываться.
6.Запрещается открывать загрузочную дверцу после длительной остановки вентилятора, без предварительной газовой продувки, так как не сгоревший газ может взорваться. Также нельзя открывать загрузочную дверцу при работающем вентиляторе.
7. Запрещается использовать для разжигания котла бензин, керосин и другие взрывоопасные вещества.
8. Котел разжигается сверху и горит сверху в низ. Верхний способ сжигания угля с регулированием, и распределением надува воздуха способствуют образованию и с сжиганию газа и является более экономичным и безопасным. Допускается нижнее горения котла, при загрузки топочной камеры не более 40%и установки газовой продувки через каждые 10-15 минут. Подвижные колосники в конструкции котла позволяют продлевать цикл горения котла до 15 дней, путем добавления угля в топочную камеру ( не более 40% от объема топочной камеры и продувки через каждые 10-15 минут).
9.Запрещается эксплуатация котла без подключения циркуляционного насоса к альтернативным источникам питания. Циркуляционный насос должен быть подключен к электросети через инвертор, а инвертор должен быть подключен к аккумулятору. Дл я бесперебойной работы циркуляционного насоса в качестве альтернативного источника питания допускается генератор, но микропроцессор регулятора температуры соединять с генератором нельзя, так как при несовпадения чистоты тока микропроцессор регулятора температур сгорит. В котельной должна быть инструкция запуска генератора и подключения к нему циркуляционного насоса. При остановке циркуляционного насоса и невозможности его запуска при работающим котле, нужно предотвратить возможность закипания котла, для этого нужно закрыть заслонку в дымоходе и приемный диффузор вентилятора , что бы исключить попадание кислорода в котел от естественной тяги. Для обеспечения бесперебойной непрерывной работы микропроцессора регулятора температуры управления котлом, его нужно подключать к сети через стабилизатора напряжения.
10. Запрещается заливать топку водой .
11. Запрещается хранить в непосредственной близости от котла горючие и взрыва опасные вещества, а так же дрова и уголь.
12.Запрещается эксплуатировать котел в состоянии алкогольного или наркотического опьянения .
13.Кочегар должен следить за техническим состояние котла,. производить чистку каналов газоходов, теплообменников котла не реже одного раза в месяц, следить за количеством конденсата в теплообменнике, не допускать скопления конденсата которые препятствуют проходу газов. Открывать нижнею крышку газоходов и сливать конденсат.
14. В случай аварийной остановки котла, кочегар должен:
14.1.Удалить топливо из топки в негорючею емкость .Удаления жара из топки, можно производить только в присутствии другого человека. При задымлении в котельном помещении, не позволяющим удалить жар, следует вызвать пожарную команду. Разрешается засыпать топку сухим песком. В случае аварийной остановки котла необходимо обеспечить безопасность людей.
14.2.Установить причину аварии, и после её устранения приступить к запуску котла.
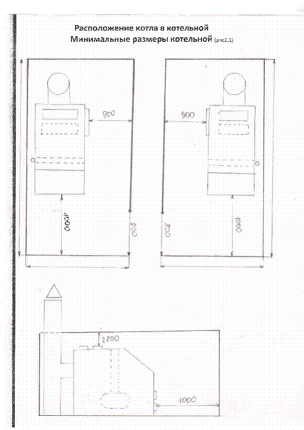
2.2. Требования к месту установки.
Выбор места установки котла производить в соответствии с указаниями мер безопасности, изложенными в п.2.1. Котел установить на бетонное основание или другие огнестойкие материалы. Перед фронтом котла положить металлический лист по асбестовому картону. Размер листа 1 м на 1,5 м.
ВНИМАНИЕ: Запрещается установка котла непосредственно на пожароопасные конструкции. Основание для установки котла проверить по уровню.
Котел установить в непосредственной близости от дымовой трубы (рис. 2)
Для увеличения циркуляционного давления в системе отопления, работающей с естественным побуждением, рекомендуется котел располагать так, чтобы центр нагрева воды котла располагался ниже центра охлаждения отопительных приборов.
Расширительный бак отопительной системы должен быть расположен в самой высокой точке системы.
Проложить слой 2 – 4 см из термостойкого (до 1300 С) теплоизоляционного материала по всему корпусу, исключая загрузочную дверцу и дверцу зольника, если корпус котла не теплоизолирован. По желанию заказчика теплоизоляционный материал сверху закрыть стеклотканью либо листом оцинкованной или крашеной жести. Таким же образом затеплоизолировать трубопроводы после их монтажа.
2.2.4 Произвести обвязку котла трубопроводами. Трубопроводы горячей и обратной воды необходимо прокладывать с уклоном по движению воды в трубопроводе, что обеспечивает свободный выход воздуха из системы, а также слив воды в канализацию через сливной вентиль, расположенный в нижней точке системы.
ВНИМАНИЕ! Котел промывается водой и испытывается на герметичность и прочность давлением 0,12 МПа (1,2 кгс/см2) в течении 5 минут.
Между расширительным бачком и системой отопления не должно быть запорной арматуры. Расширительный бак соединяется с котлом по воде до запорной арматуры системы отопления. Наивысшая точка системы отопления должна иметь устройство автоматического спуска воздуха.
Выполнить соединение котла с дымовой трубой с помощью проставки и дымоотводящего патрубка, расположенного с тыльной стороны котла.
Места соединения котла с проставкой и дымовой трубой уплотнить асбестом или глиняным раствором, а проставку и дымоотводящий патрубок – теплоизолировать любым термостойким теплоизоляционным материалом, например, асбестовым шнуром ШАОН – 8 ГОСТ 1779 – 83.
Устройство дымовой трубы должно соответствовать проекту котельной и удовлетворять следующим требованиям (рис. 3):
1) газоход, к которому подключается котел, как правило, должен быть расположен во внутренней части здания;
2) канал дымовой трубы должен быть строго вертикальным, горизонтальные участки не допускаются. В нижней части канала трубы должна быть предусмотрена заглушка (люк) для чистки;
3) живое сечение дымовой трубы должно соответствовать п.18 таблицы 1(для одного котла, при установке двух и более котлов – сечение трубы должно быть пропорционально увеличено);
4) высота трубы от газохода котла должна быть не менее 6 м. Выступающая над крышей (“конька” здания) часть трубы – не менее 1 м.
Котел в собранном виде после монтажа должен быть принят заказчиком. При этом составляется акт приемки котла с указанием результатов гидравлического испытания – проверки на плотность и прочность котла в смонтированном виде.
2.3 Подготовка котла к работе, порядок работы и техническое обслуживание.
Перед первоначальным пуском или после длительной остановки, или капитального ремонта котел принимается специалистом, который производит тщательный осмотр всего оборудования и следит за правильной растопкой котла и отопительной системы.
При осмотре котла необходимо проверить:
- отсутствие видимых дефектов в топочном блоке котла и колосниковой решетке в топке;
- исправность трубопроводной арматуры и измерительных приборов (манометров, термометров, вентилей, задвижек);
- исправность загрузочной дверки топки и газоходов;
- качественность очистки котла от шлака и золы;
- отсутствие посторонних предметов в топке и газоходе;
- исправность теплоизоляции;
- исправность насоса и дутьевого вентилятора;
- исправность освещения;
- наличие достаточного количества и требуемого качества топлива и питательной воды.
При добавке подпиточной воды, рекомендуется подвергнуть её химической подготовке.
Получив разрешение на растопку от специалиста, оператор котельной приступает к заполнению котла водой. Заполнение котла водой производится через расширительный бак.
При растопке котла проверить положение задвижек и вентилей, Сетевые задвижки должны быть открыты, отопительная система и расширительный бак должны быть заполнены.
Растопку следует производить сухими дровами.
Категорически запрещается использовать для растопки жидкое топливо.
Котёл предназначен для двух способов эксплуатации:
а) для длительного горения – при этом уголь перед растопкой подаётся в верхнюю загрузочную дверцу. При этом уровень загрузки может доходить до нижней кромки дверцы. В этом случае оператор не должен пользоваться рычажной системой поворота колосников;
б) для небольшого срока горения – при более частой загрузке топлива. Рекомендуется при интенсивной работе котла (наибольшей его производительности). При этом шуровка шлака производится с помощью рычажной системы поворота колосников.
Во избежание зашлаковывания щелей в колосниковой решетке после ее очистки на колосниках оставляют слой мелкого шлака толщиной до 50 мм.
Шлаковый слой предохраняет колосники от разрушающего действия высокой температуры.
Допускается шлаковый слой не оставлять, но при этом необходимо уменьшать режим горения топлива до минимального при его догорании или при большом объеме загрузки топлива.
При работе котла надо периодически проверять уровень воды в расширительном бачке и наполненность отопительной системы. Если уровень воды начинает понижаться, надо залить воду. Из системы отопления также периодически выпускают воздух и заполняют водой. (Уровень воды в расширительном баке контролируется перепускной трубой).
При работе котла необходимо постоянно следить за исправностью колосниковой решетки.
Регулирование теплопроизводительности осуществляется микропроцессорным регулятором температуры (см. инструкцию).
Экономичная работа котла достигается при его непрерывной работе, однако, при повышении температуры наружного воздуха, когда уменьшение теплопроизводительности путем уменьшения температуры нагреваемой воды с помощью микропроцессора не дает полного эффекта, работу котла следует периодически прерывать.
Для поддержания экономичной работы котла необходимо скребком, ершом или другими подручными средствами производить очистку поверхностей нагрева от сажи и золовых отложений, с периодичностью, зависящей от вида сжигаемого топлива и режима работы котла.
Не допускается большое скопление золы в зольнике.
Остановка котла.
Прекратите подачу топлива на колосниковую решетку, выжгите весь уголь, выгребите шлак, золу, очистите зольник. Остановите вентилятор подачи воздуха.
При длительной остановке котла – через 5 - 6 часов после прекращения горения или очистки решетки – отключить котел от системы задвижкой на обратной воде. Закройте шибер тяги.
Аварийная остановка котла.
Нажмите на кнопку «Стоп» панели управления микропроцессора. Сбросьте горящий уголь скребком с решетки. Соблюдая осторожность, залейте сброшенный с решетки уголь водой.
Циркуляцию воды через котел прекратите через 5 - 6 часов (если по аварийной обстановке это не понадобится сделать раньше).
При остановке котла на длительный срок принимаются меры по защите его от коррозии. При этом вся отопительная система должна быть заполнена водой. Запрещается оставлять котел неочищенным от шлака, нагара, золы и грязи.
2.4 Не исправности в работе котла и способы их устранения
Не исправность | Причина | Способы устранения |
Дым из дверок | Неплотно закрыты дверцы, испортилась асбестовая набивка (шнур), малая площадь сечения дымохода, забитые каналы газохода теплообменника котла, перекрыты газоходы из за скопления конденсата | Поправить, заменить, добавить асбестовую набивку (шнур) дверок, увеличить площадь сечения дымохода, очистить дымоход и каналы газохода теплообменника котла, открыть нижние лючки и слить конденсат. |
Конденсат в теплообменнике | Не утеплен дымоход, неверно смонтирован, низкая выставленная температура подачи воды (менее 65оС), высокая влажность воздуха, высокая влажность угля, котел установлен в холодном помещении и не утеплен | Утеплить дымоход, установить температуру подачи воды не менее 65оС, сливать воду с нижних лючков теплообменника которые конденсируется при сжигании угля на низких температурах |
Не достигается выставленная температура | Забиты газоходы и дымоходы, слишком низкая калорийность угля, не правильно работает грузовой клапан вентилятора | Почистить дымоход и газоходы, добавить уголь более высокой калорийности и проверить, чтобы в момент работы вентилятора грузовой клапан переходил в открытое положение |
Превышение температуры выставленной на процессоре | Большая тяга при высокой калорийности угля, выставлены частые газовые продувки, грузовой клапан открыт при не работающем вентиляторе, не работает циркуляционный насос | Отрегулировать тягу с помощью регулятора тяги в дымоходе или добавить уголь меньшей калорийности, уменьшить частоту и время газовых продувок, отрегулировать грузовой клапан вентилятора, запустить циркуляционный насос, а при не возможности затушить котел котла. |
2.5. Ремонт топочного блока.
Ремонт производить только на полностью остановленном и остывшем котле.
Спустить воду из котла, предварительно перекрыв задвижки котла.
Определить место утечки воды. Если нарушен сварной шов, то необходимо тщательно зачистить его и заварить снова. Если на корпусе или внутри котла на конвективной поверхности появится свищ (отверстие) – поставить заплатку. Ремонт произвести сваркой.
Заполнить котел водой, одновременно выпуская воздух из верхнего вентиля.
Произвести опрессовку котла давлением, равным указанному в Акте приемки котла, в течении 5 минут. Если обнаружится где-либо течь, устранить ее и повторить опрессовку котла.
Восстановить теплоизоляцию и газоплотность соединений котла.
2.6. Остановка котла в зимних условиях.
При остановке котла в зимних условиях на длительный период (при понижении температуры окружающего воздуха до +1 0С) воду из котла и всего гидравлического тракта необходимо слить.








