
ИНСТРУКЦИЯ
ПО ИЗГОТОВЛЕНИЮ И МОНТАЖУ
ДВЕРЕЙ РАЗДВИЖНЫХ ДЛЯ ШКАФОВ-КУПЕ
г. Санкт - Петербург
2009 г.
Оглавление
1. Пояснительная записка.....................................................................................................................3
2. Техническая характеристика............................................................................................................4
3. Конструкция.......................................................................................................................................5
4. Методика расчета..............................................................................................................................7
5. Инструкция по сборке и монтажу..................................................................................................11
6. Приложение......................................................................................................................................14
6.1 Профили для изготовления шкафов-купе................................................................................14
6.2 Комплектующие для изготовления шкафов-купе....................................................................15
1. Пояснительная записка
Настоящая инструкция разработана в соответствии СНиП 2.03.06-85 /Алюминиевые конструкции/, ГОСТ 22233-2001 /Профили прессованные из алюминиевых сплавов/.
Конструкция раздвижных дверей разработана на основе алюминиевых профилей специального сечения.
Раздвижные двери предназначены для изготовления мебели типа шкафов-купе.
Для заполнения раздвижных дверей применяется стекло листовое толщиной 4 мм и ДСП толщиной 8, 10 мм.
Для уплотнения применяются уплотнители из ПВХ изготовленные согласно ГОСТ 30778-2001.
Марки и качество материалов, из которых изготавливаются элементы конструкций, должны проверяться по сертификатам предприятий - поставщиков или документации входного контроля.
Профили анодируются или окрашиваются в цвета RAL по желанию заказчика.
Комплектность изделий контролируется спецификацией к заказу.
Хранение элементов изделий должно производиться в упакованном виде на деревянных подкладках в сухих складских закрытых помещениях с твердым покрытием пола. Не допускается складирование элементов раздвижных дверей на открытых площадках. Монтаж раздвижных дверей производится в соответствии с проектом производства работ, утвержденном в установленном порядке, согласно инструкциям изложенным в этом документе.
2. Техническая характеристика
1. Изделия представляют собой каркас из отрезков алюминиевых профилей с установленным в него заполнением и собранного с применением саморезов.
2. Максимальная высота конструкции 2500 мм, максимальная ширина створки 1000мм. Применяемое заполнение: Зеркало (стекло) толщиной 4мм и ДСП 8…10 мм. Применяемые профили - системы «Росла - Купе». Материал профилей - алюминиевый сплав 6060 или 6063 DIN 1748 с геометрическими размерами по ГОСТ 22233-2001. Применяемые уплотнители: изготовлены из материала на основе ПВХ, бесцветные, полупрозрачные, светоизносостойкие, работающие в интервале температур от О…40 С°, стойкие к воздействию слабокислотной и щелочной сред.
3. Конструкция
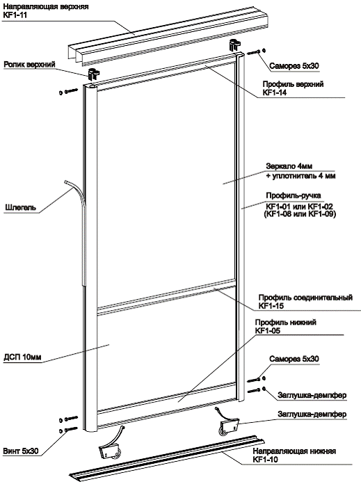
Конструкция дверей шкафов – купе представлена на рис.1 и рис.2.

Рисунок 1

Рисунок 2
Поперечное сечение конструкции
4. Методика расчета
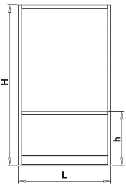
Горизонтальные профиля примыкают к вертикальным непосредственно, без промежуточных деталей. Размеры элементов раздвижных дверей шкафов-купе рассчитываются исходя из внутренних размеров шкафа и комбинации применяемого заполнения по формулам на рис.3...5.
Принятые обозначения:
А, В - размеры проема шкафа,
H, h,L – параметры створки

Шкаф Створка
Расчет ширины створки:
- Для двух створок L = А / 2+13 – если вертикальный профиль KF1-01 (KF1-08)
L = А / 2+16 – если вертикальный профиль KF1-02 (KF1-09)
- Для трех створок L = А / 3+18 – если вертикальный профиль KF1-01 (KF1-08)
L = А / 3+21 – если вертикальный профиль KF1-02 (KF1-09)
Расчет высоты створки:
Н=В-46
Ограничения:
1. Максимальная высота конструкции В=2500 им,
2. Максимальная ширина створки L=1000 мм.
Расчет элементов створки:

Рисунок 3
Створка с комбинированным заполнением

Рисунок 4
Створка с заполнением из зеркала 4мм

Рисунок 5
Створка с заполнением из ДСП 10мм
5. Инструкция по сборке и монтажу
Комплектность изделия
1. Комплектность поставки изделий определяется условиями договора (заказа) на поставку изделий. Монтажные крепежные узлы и метизы поставляются совместно в отдельной упаковке. Раздвижные двери шкафов-купе транспортируются в разобранном виде (отрезки профиля).
2. Комплектность изделия контролируется спецификацией на заказ.
3. В комплект поставки должен входить документ о качестве (паспорт).
4. Каждое изделие маркируется этикеткой с указанием названия предприятия-изготовителя, номера заказа и марки изделия.
Сборка и монтаж раздвижных дверей шкафов-купе
1. Перед началом сборки необходимо подготовить сборочный стол.
Плоскость стола должна быть покрыта мягким материалом во избежание повреждения покрытия элементов. Для ведения сборочных работ необходимо иметь предназначенные для этого инструменты и приспособления.
2. Подготовка к сборке:
• по маркировке на упаковке определяются элементы собираемых дверей;
• в соответствии со сборочным чертежом на стол раскладываются профили, комплектующие и заполнение;
• для крепления роликов и профилей между собой, сверлятся отверстия в стойках KF1-01 и KF1-02 согласно рис.6. Для KF1-01 на рисунке изображен правый вертикальный профиль, левый профиль – зеркально.

Рисунок 6
3. Сборка (рис.7):
• саморезами вертикальные профили крепятся к нижнему горизонтальному профилю;
• вставляются заполнения, уплотнители, переходные профили, верхний горизонтальный профиль;
• саморезами скрепить вертикальные профили с верхним горизонтальным профилем;
• устанавливаются верхние и нижние ролики, заглушки, шлегель.

Рисунок 7
4. Монтаж
• шурупами закрепляются верхнее и нижнее направляющие к дну и потолку шкафа (рис.8,9). Шаг крепления 300 мм;
• вставляются дверки;

Рисунок 8 Рисунок 9
6. Приложение
6.1 Профили для изготовления шкафов-купе

6.2 Комплектующие для изготовления шкафов-купе.




