Межгосударственный совет по Стандартизации, метрологии и сертификации INTERSTATE COUNCIL FOR STANDARDIZATION, METROLOGY AND CERTIFICATION (ISC) | |
Межгосударственный СТАНДАРТ | ГОСТ |
Система проектной документации
для строительства
Правила выполнения
рабочей документации
ВнутренНих систем газоснабжения
Настоящий проект стандарта не подлежит применению до его принятия
Москва
2013
Предисловие
Цели, основные принципы и основной порядок проведения работ по межгосударственной стандартизации установлены ГОСТ 1.0―92 «Межгосударственная система стандартизации. Основные положения» и ГОСТ 1.2―2009 «Межгосударственная система стандартизации. Стандарты межгосударственные, правила и рекомендации по межгосударственной стандартизации. Правила разработки, принятия, применения, обновления и отмены»
Сведения о стандарте
1 РАЗРАБОТАН Открытым акционерным обществом «Центр методологии нормирования и стандартизации в строительстве» (ОАО «ЦНС»)
2 ВНЕСЕН Техническим комитетом по стандартизации ТК 465 «Строительство»
3 ПРИНЯТ Межгосударственной научно-технической комиссией по стандартизации, техническому нормированию и сертификации в строительстве (протокол № от 201 г.)
За принятие проголосовали:
Краткое наименование страны по МК (ИСО 31 | Код страны по | Сокращенное наименование органа государственного управления строительством |
Российская Федерация | RU | |
4 Приказом Федерального агентства по техническому регулированию и метрологии от ______ 201х г. N ххх-ст введен в действие межгосударственный стандарт ГОСТ 21.609―201х для применения в качестве национального стандарта Российской Федерации с хх ___ 201х г.
5 взамен ГОСТ 21.609―83
Информация о введении в действие (прекращении действия) настоящего стандарта и изменений к нему на территории указанных выше государств публикуется в указателях национальных (государственных) стандартов, издаваемых в этих государствах, а также в сети Интернет на сайтах соответствующих национальных органов по стандартизации.
В случае пересмотра, изменения или отмены настоящего стандарта соответствующая информация также будет опубликована в сети Интернет на сайте Межгосударственного совета по стандартизации, метрологии и сертификации в каталоге «Межгосударственные стандарты»
© Стандартинформ, 201х
Настоящий стандарт не может быть полностью или частично воспроизведен, тиражирован и распространен в качестве официального издания на территории Российской Федерации без разрешения Федерального агентства по техническому регулированию и метрологии
Содержание
1 Область применения.......................................................................................................................... 1
2 Нормативные ссылки......................................................................................................................... 1
3 Термины и определения..................................................................................................................... 2
4 Общие положения...............................................................................................................................
5 Общие данные по рабочим чертежам..................................................................................................
6 Чертежи систем...................................................................................................................................
6.1 Чертежи расположения оборудования и газопроводов................................................................
6.2 Схемы систем газоснабжения........................................................................................................
7 Чертежи установок систем..................................................................................................................
8 Спецификация оборудования, изделий и материалов.........................................................................
9 Опросные листы и габаритные чертежи...............................................................................................
Приложение А (обязательное) Буквенно-цифровые обозначения газопроводов....................................
Приложение Б (рекомендуемое) Условные графические обозначения газоиспользующего оборудования
Приложение В (справочное) Примеры выполнения чертежей расположения оборудования и газопроводов
Приложение Г (справочное) Пример выполнения схем газоснабжения.................................................
Приложение Д (справочное) Примеры выполнения плана и разреза газорегуляторной установки (ГРУ)
Приложение Е (справочное) Пример выполнения схемы установки......................................................
межгосударственный стандарт |
Система проектной документации для строительства
Правила выполнения рабочей документации
внутренних систем газоснабжения
System of design documents for construction.
Rules for execution of working documents of internal gas systems
____________________________________________________________________________________
Дата введения – 201х – хх – 01
1 Область применения
Настоящий стандарт устанавливает состав и правила выполнения рабочей документации внутренних систем газоснабжения зданий и сооружений различного назначения.
2 Нормативные ссылки
В настоящем стандарте использованы нормативные ссылки на следующие межгосударственные стандарты:
ГОСТ 2.316―2008 Единая система конструкторской документации. Правила нанесения надписей, технических требований и таблиц на графических документах. Общие положения
ГОСТ 2.317―2011 Единая система конструкторской документации. Аксонометрические проекции
ГОСТ 21.101―97 * Система проектной документации для строительства. Основные требования к проектной и рабочей документации
ГОСТ 21.110―2013 Система проектной документации для строительства. Специфика-ция оборудования, изделий и материалов
ГОСТ 21.114―2013 Система проектной документации для строительства. Правила выполнения эскизных чертежей общих видов нетиповых изделий
ГОСТ 21.205―93 Система проектной документации для строительства. Условные обозначения элементов санитарно-технических систем
ГОСТ 21.206―2012 Система проектной документации для строительства. Условные обозначения трубопроводов
ГОСТ 21.208―2013 Система проектной документации для строительства. Автоматизация технологических процессов. Обозначения условные приборов и средств автоматизации в схемах
ГОСТ 21.501―2011 Система проектной документации для строительства. Правила выполнения рабочей документации архитектурных и конструктивных решений
Примечание – При пользовании настоящим стандартом целесообразно проверить действие ссылочных стандартов на территории государства по соответствующему указателю стандартов, составленному по состоянию на 1 января текущего года, и по соответствующим информационным указателям, опубликованным в текущем году. Если ссылочный стандарт заменен (изменен), то при пользовании настоящим стандартом следует руководствоваться заменяющим (измененным) стандартом. Если ссылочный стандарт отменен без замены, то положение, в котором дана ссылка на него, применяется в части, не затрагивающей эту ссылку.
* На территории Российской Федерации действует ГОСТ Р 21.1101―2013
Проект, 1 редакция
3 Термины и определения
В настоящем стандарте применены следующие термины с соответствующими определениями:
3.1 система газоснабжения: Технологический комплекс газовой сети потребителя, расположенный от места присоединения к газораспределительной сети до газоиспользующего оборудования и состоящий из наружных и внутренних газопроводов и технических устройств на них.
3.2 газопровод: Часть газораспределительной системы, состоящая из трубопровода для транспортировки природного или сжиженных углеводородных газов, за исключением сооружений и устройств, установленных на нем.
3.3 внутренний газопровод: Газопровод, проложенный внутри здания от вводного газопровода до места установки газоиспользующего оборудования.
3.4 газоиспользующее оборудование (установка): Оборудование, где в технологическом процессе используется газ в качестве топлива.
4 Общие положения
4.1 Рабочую документацию внутренних систем газоснабжения выполняют в соответст-вии с требованиями настоящего стандарта, ГОСТ 21.101 и других взаимосвязанных стандартов Системы проектной документации для строительства (СПДС), а также нормативных документов по проектированию газоснабжения.
4.2 В состав рабочей документации внутренних систем газоснабжения (далее – газоснабжение) включают:
- рабочие чертежи, предназначенные для производства строительно-монтажных работ (основной комплект рабочих чертежей марки ГСВ);
- эскизные чертежи общих видов нетиповых изделий, выполняемые в соответствии с ГОСТ 21.114;
- спецификацию оборудования, изделий и материалов;
- опросные листы и габаритные чертежи (при необходимости);
- локальную смету (при необходимости).
4.3 В состав основного комплекта рабочих чертежей марки ГСВ включают:
- общие данные по рабочим чертежам;
- чертежи расположения (планы и разрезы, фрагменты планов и разрезов, местные виды и узлы) газопроводов и газоиспользующего оборудования (далее – оборудование);
- схемы газоснабжения;
- чертежи (планы, разрезы, узлы и схемы) газоиспользующих установок.
Допускается включать в состав основного комплекта рабочих чертежей прямоугольные изометрические проекции систем газоснабжения, полученные из трехмерной электронной модели здания (сооружения).
4.4 Газопроводы и их элементы на чертежах указывают условными графическими обозначениями и (или) упрощенными изображениями по ГОСТ 21.206. Газопроводы на схемах указывают условными графическими обозначениями.
4.5 Буквенно-цифровые обозначения газопроводов принимают по таблице А.1 (приложение А) и указывают на чертежах и схемах в соответствии с ГОСТ 21.206. Пример нанесения буквенно-цифровых обозначений приведен на рисунке 1.

Рисунок 1
4.6 Установкам присваивают обозначение, состоящее из номера установки в пределах системы и обозначения газопровода в соответствии с 4.5.
Пример ― 1Г1, 2Г3
4.7 Стояки газопроводов обозначают маркой, состоящей из буквенного обозначения «Ст» и порядкового номера стояка в пределах здания (сооружения).
Пример ― Ст1, Ст2
4.8 При указании номинального диаметра арматуры на чертежах и схемах перед размерным числом приводят условное обозначение «DN».
При указании номинального диаметра (условного прохода) газопроводов и их элементов на чертежах и схемах перед размерным числом приводят знак «Æ» или условное обозначение «DN» в соответствии с рисунками 2а, 2в. При указании наружного диаметра и толщины стенки перед размерным числом наносят знак «Æ» (рисунки 2б, 2г).

Рисунок 2
4.9 Графические обозначения элементов систем газоснабжения принимают по ГОСТ 21.205 с учетом дополнительных условных графических обозначений, приведенных в таблице Б.1 (приложение Б).
4.10 Примеры построения условных графических обозначений элементов систем приведены в ГОСТ 21.205 (приложение А).
Примеры построения условных обозначений и упрощенных графических изображений элементов систем в схемах, выполняемых в аксонометрических проекциях, приведены в ГОСТ 21.205 (приложение Б).
4.11 Условные обозначения приборов, средств автоматизации и линий связи принимают по ГОСТ 21.208.
4.12 Отметки уровней элементов конструкций, оборудования, газопроводов и т. п. указывают в соответствии с ГОСТ 21.101.
4.13 Обозначения уклонов на разрезах и схемах наносят в соответствии с ГОСТ 21.101, при этом числовое значение уклона указывают в виде десятичной дроби с точностью до третьего знака после запятой.
4.14 Рекомендуемые масштабы изображений на чертежах приведены в таблице 1.
Таблица 1
Наименование изображения | Масштаб |
1 Планы и разрезы расположения оборудования и газопроводов | 1:100; 1:200 |
2 Схемы газоснабжения | 1:100; 1:200 |
2 Планы и схемы небольших зданий | 1:20; 1:50 |
3 Планы, разрезы и схемы установок | 1:50; 1:100 |
4 Фрагменты планов | 1:50; 1:100 |
5 Узлы планов | 1:20; 1:50 |
6 Узлы планов и разрезов установок систем | 1:20 |
7 Узлы при детальном изображении | 1:2; 1:5; 1:10 |
8 Узлы схем систем | 1:10; 1:20; 1:50 |
9 Эскизные чертежи общих видов нетиповых изделий | 1:5; 1:10; 1:20; 1:50 |
5 Общие данные по рабочим чертежам
5.1 В состав общих данных по рабочим чертежам марки ГСВ в дополнение к сведениям, предусмотренным по ГОСТ 21.101, включают основные показатели системы газоснабжения по форме 1 (кроме жилых зданий).
Форма 1 ― Основные показатели системы газоснабжения

Примечания
1 Характеристику применяемого газа указывают в графе «Примечание».
2 Размеры граф формы 1 по усмотрению разработчика, при необходимости, могут быть изменены.
3 Линии, разграничивающие горизонтальные строки, допускается не проводить
5.2 Ведомость спецификаций, предусмотренную ГОСТ 21.101, в составе общих данных по рабочим чертежам марки ГСВ не выполняют.
5.3 В общих указаниях в дополнение к сведениям, предусмотренным в ГОСТ 21.101, приводят:
- ссылки на нормативные документы, по которым произведен расчет систем газоснабжения;
- характеристики установок систем;
- требования к изготовлению, монтажу, испытанию, окраске и изоляции газопроводов, а также условия их прокладки;
- особые требования к газоснабжению, например взрывобезопасность и пожаробезопасность.
В общих указаниях не следует повторять технические требования, помещенные на других листах основного комплекта рабочих чертежей марки ГСВ, и давать описание технических решений, принятых в рабочих чертежах.
6 Чертежи систем
6.1 Чертежи расположения оборудования и газопроводов
6.1.1 Чертежи расположения оборудования и газопроводов в зданиях и сооружениях выполняют по ГОСТ 21.101 с учетом требований настоящего стандарта.
6.1.2 Изображения на чертежах (планы и разрезы, фрагменты планов и разрезов, местные виды и узлы) выполняют в масштабах по 4.15.
6.1.3 На планах, их фрагментах и узлах (выносных элементах) оборудование, установки, газопроводы и другие элементы систем изображают толстой основной линией, строительные конструкции и технологическое оборудование ― сплошной тонкой линией.
6.1.4 Оборудование и установки, на которые отсутствуют условные графические обозначения, на планах указывают в виде упрощенных графических изображений, а газопроводы и другие элементы систем ― условными графическими обозначениями.
6.1.5 На фрагментах планов и узлах газопроводы, арматуру и другие устройства изображают упрощенно или условными графическими обозначениями в зависимости от масштаба чертежа и диаметра трубопровода. Газопроводы изображают упрощенно двумя линиями, если на чертеже их диаметры в соответствующем масштабе равны 2 мм и более, при этом арматуру и другие устройства изображают также упрощенно с учетом их габаритных размеров.
Газопроводы, выполненные условными графическими обозначениями в одну линию и расположенные друг над другом в одной плоскости, на планах условно изображают параллельными линиями.
6.1.6 На планах и разрезах наносят и указывают:
- координационные оси здания (сооружения) и расстояния между ними (для жилых зданий ― расстояния между осями секций);
- строительные конструкции и оборудование, к которому подводят газ и воздух и от которого отводят продукты сгорания, а также влияющее на прокладку газопроводов;
- отметки уровней чистых полов этажей и основных площадок;
- размерные привязки газоиспользующих установок и оборудования, вводов (выводов) и стояков газопроводов к координационным осям или элементам конструкций;
- размеры эксплуатационных проходов;
- буквенно-цифровые обозначения и диаметры газопроводов;
- обозначения (марки) оборудования, установок и стояков систем на полках линий-выносок;
- отметки уровней или высотные размеры установки приборов (при необходимости).
На планах, кроме того, указывают наименования помещений, в которых установлено газоиспользующее оборудование, и в прямоугольнике ― категории помещений по взрывопожарной и пожарной опасности (кроме жилых зданий). Допускается наименования помещений и категории помещений по взрывопожарной и пожарной опасности приводить в экспликации помещений по форме 2 ГОСТ 21.501.
На разрезах указывают отметки уровней осей газопроводов и верха сбросного газопровода (свечи).
На планах и разрезах расположения бытового оборудования (например, газовых плит, водонагревателей) и газопроводов в жилых зданиях, коммунально-бытовых предприятиях и общественных зданиях приводят данные об объеме и высоте помещения, в котором устанавливают это оборудование, а также указывают расположение дымоходов (их сечение) и расположение вентиляционных решеток.
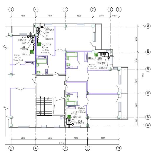
6.1.7 Примеры выполнения плана расположения оборудования и газопроводов котельной приведен на рисунке В.1 (приложение В), разрезов ― на рисунках В.2 и В.3 (приложение В).
Пример выполнения плана расположения бытового оборудования и газопроводов в жилом здании приведен на рисунке В.4 (приложение В).
6.2 Схемы систем газоснабжения
6.2.1 Схемы систем выполняют в аксонометрической косоугольной фронтальной изометрической проекции или в прямоугольной изометрической проекции по ГОСТ 2.317 без искажения по осям x, y, z.
6.2.2 Газопроводы и арматуру на схемах указывают условными графическими обозначениями, а оборудование, на которое отсутствует условное графическое обозначение, – упрощенным графическим изображением.
Для жилых и коммунально-бытовых зданий вместо графического изображения подключаемого оборудования допускается указывать его наименование.
6.2.3 Проектируемые газопроводы, арматуру и другие устройства на схемах изображают сплошной толстой основной линией. Оборудование, а также существующие трубопроводы, арматуру и другие устройства, изображают сплошной тонкой линией.
6.2.4 При большой протяженности и (или) сложном расположении газопроводов допускается изображать их с разрывом в виде пунктирной линии. Места разрывов газопроводов обозначают строчными буквами (рисунок 3).

Рисунок 3
6.2.6 На схемах наносят и указывают:
- стояки газопроводов и их обозначения;
- вводы газопроводов с указанием диаметров и отметок уровней осей трубопроводов в местах пересечения их с осями наружных стен здания (сооружения);
- газопроводы и их диаметры;
- запорно-регулирующую арматуру;
- оборудование, контрольно-измерительные приборы и другие элементы систем. При этом буквенные обозначения измеряемых величин и функциональных признаков приборов принимают по ГОСТ 21.208;
- закладные конструкции (отборные устройства для установки контрольно-измерительных приборов) с указанием обозначения конструкции и документа. Закладные конструкции на трубопроводах и других элементах систем указывают точками диаметром 2 мм;
- отметки уровней осей газопроводов;
- уклоны газопроводов (для влажного и сжиженного углеводородного газа);
- размеры горизонтальных участков газопроводов при наличии разрывов;
6.2.8 На листе, где изображена схема, приводят, при необходимости, узлы (выносные элементы) схемы и текстовые пояснения.
На узлах схем для запорно-регулирующей арматуры на полке линии-выноски указывают диаметр арматуры и под полкой ― обозначение арматуры (по каталогу).
Допускается приводить аналогичным образом диаметры и обозначения запорно-регулирующей арматуры на схемах систем.
6.2.9 В основной надписи и над схемой наименование схемы указывают полностью: «Схема газоснабжения».
6.2.10 Пример выполнения схемы газоснабжения котельной приведен на рисунке Г.1 (приложение Г), схемы газоснабжения жилого дома – на рисунке Г.2 (приложение Г).
7 Чертежи установок
7.1 Чертежи газоиспользующих установок следует выполнять при наличии в установке двух и более составных частей (элементов установки), необходимости показа способов крепления составных частей установки между собой или к опорным конструкциям, отсутствии типовых монтажных чертежей или монтажных чертежей предприятия-изготовителя. В остальных случаях чертежи установок не выполняют.
7.2 На планах и разрезах установок элементы установок изображают упрощенно. При необходимости показа способов крепления составных частей установки или их соединения между собой соответствующие элементы изображают детально, как правило, на узлах планов и разрезов установок.
7.3 Правила изображения оборудования, трубопроводов, арматуры и других устройств на планах, разрезах и узлах установок принимают по 6.1.2―6.1.5, на схемах установок ― по 6.2.1―6.2.3.
7.4 Элементам установок присваивают позиционные обозначения, состоящие из обоз-начения установки по 4.5 и порядкового номера элемента в пределах установки.
Пример ― 1Г1.1, 1Г1.2, 2Г3.1, 2Г3.2
7.5 На планах и разрезах установок наносят и указывают:
- координационные оси здания (сооружения) и расстояния между ними;
- отметки чистых полов этажей (площадок);
- размерные привязки установок к координационным осям или к элементам конструкций здания (сооружения);
- основные размеры и отметки уровней элементов установок;
- буквенно-цифровые обозначения газопроводов (см. 4.5);
- диаметры газопроводов;
- позиционные обозначения оборудования, арматуры, закладных конструкций и других устройств.
На планах и разрезах установок кроме элементов установок указывают строительные конструкции.
7.6 На схеме наносят и указывают:
- оборудование, газопроводы, арматуру и другие устройства;
- контрольно-измерительные приборы (при необходимости).
- буквенно-цифровые обозначения газопроводов, как правило, в разрывах линий газопроводов;
- диаметры газопроводов;
- позиционные обозначения оборудования, арматуры, закладных конструкций и других устройств;
- направление потока транспортируемой среды.
7.7 На чертежах установок приводят, при необходимости, технические требования к монтажу установок.
7.8 К чертежам установок составляют спецификацию по форме 7 ГОСТ 21.101, которую, как правило, помещают на листе, где изображены планы установок. Допускается выполнять спецификацию на отдельных листах в качестве последующих листов чертежей.
7.9 В спецификацию к чертежам установок включают оборудование, конструкции установок, арматуру, закладные конструкции и другие устройства, а также газопроводы по каждому диаметру.
В спецификацию не включают элементы газопроводов, номенклатуру и количество которых определяют по действующим технологическим и производственным нормам (отводы, переходы, тройники, крестовины, фланцы, прокладки, болты, гайки, шайбы).
7.10 В графе «Поз.» указывают позиционные обозначения элементов установок в соответствии с 7.4 последовательно для каждой установки. Для газопроводов графу не заполняют.
В графе «Наименование» для каждой установки записывают буквенно-цифровое обозначение по 4.6 в виде заголовка и подчеркивают.
7.11 В спецификации элементы установок записывают по группам в следующей последовательности:
- оборудование;
- арматура;
- другие элементы установок;
- закладные конструкции;
- газопроводы по каждому диаметру.
7.12 В основной надписи наименование и буквенно-цифровые обозначения установок (см. 4.6) указывают полностью.
Пример ― Установки 1Г1, 2Г3
7.13 Примеры выполнения плана и разреза установки приведены, соответственно, на рисунках Д.1 и Д.2 (приложение Д).
Пример выполнения схемы установки приведен на рисунке Е.1 (приложение Е).
Пример выполнения спецификации установки приведен на рисунке Ж.1 (приложение Ж).
8 Спецификация оборудования, изделий и материалов
8.1 Спецификацию оборудования, изделий и материалов (далее – спецификация) выполняют и обозначают по ГОСТ 21.110 с учетом требований настоящего стандарта.
8.2 Если в производственном здании (сооружении) предусматриваются пристроенные или встроенные части, в которых размещаются вспомогательные помещения, то спецификацию составляют по частям:
- производственная часть;
- вспомогательная часть.
Если в жилом здании предусматриваются пристроенные или встроенные части для размещения предприятий и учреждений общественного назначения, то спецификацию также составляют по частям:
- жилая часть;
- вспомогательная часть.
Наименование каждой части записывают в виде заголовка в графе «Наименование и техническая характеристика» и подчеркивают.
8.3 Элементы систем (оборудование, изделия) и материалы в спецификации или ее части записывают по группам в следующей последовательности:
- оборудование;
- трубопроводная арматура;
- другие элементы систем (в том числе опоры и крепления газопроводов);
- закладные конструкции (отборные устройства для установки контрольно-измерительных приборов);
- газопроводы;
- материалы.
В пределах каждой группы элементы систем записывают в порядке возрастания их основных параметров (например: типа, марки, диаметра, сечения).
Газопроводы в разделах спецификации записывают по каждому диаметру.
Элементы установок, включенные в спецификации к чертежам установок, также записывают в соответствующие группы спецификации.
Элементы газопроводов, номенклатуру и количество которых определяют по действующим технологическим и производственным нормам, в спецификацию не включают. К таким элементам могут быть отнесены отводы, переходы, фланцы, прокладки, болты, гайки, шайбы и т. п.
8.4 В Спецификации принимают следующие единицы измерений:
- оборудование (установки), опоры (крепления) газопроводов, закладные конструкции (отборные устройства для установки контрольно-измерительных приборов) и другие элементы – шт.;
- газопроводы – м;
- материалы изоляционные – м3;
- материалы покрытий и защиты – м2;
- другие материалы – кг.
9 Опросные листы и габаритные чертежи
9.1 Опросные листы и габаритные чертежи выполняют в соответствии с данными предприятий-изготовителей оборудования и комплектуют их в виде отдельного выпуска с наименованием «Опросные листы».
Выпуску «Опросные листы» присваивают самостоятельное обозначение, состоящее из обозначения основного комплекта рабочих чертежей марки ГСВ и через точку шифра «ОЛ». Обозначение указывают на титульном листе выпуска опросных листов.
Пример ― ГСВ. ОЛ
9.2 Если опросных листов (габаритных чертежей) два и более, то после титульного листа выпуска опросных листов помещают содержание, которое выполняют в соответствии с ГОСТ 21.101. Содержанию присваивают обозначение, состоящее из обозначения выпуска опросных листов и через дефис шифра «С».
Пример ― ГСВ. ОЛ-С
9.3 В наименовании опросного листа (габаритного чертежа) указывают его обозначение или порядковый номер в пределах выпуска.
9.4 Изменения в опросные листы (габаритные чертежи) вносят в соответствии с ГОСТ 21.101 с учетом дополнительных требований настоящего стандарта.
Изменения в опросные листы (габаритные чертежи) вносят самостоятельно в пределах каждого опросного листа (габаритного чертежа).
Сведения об изменениях, вносимых в опросные листы (габаритные чертежи), приводят в графе «Примечание» содержания выпуска опросных листов или в графе «Примечание» ведомости ссылочных и прилагаемых документов (если «Содержание» не выполняют).
9.5 Выпуск опросных листов записывают в разделе «Прилагаемые документы» ведомости ссылочных и прилагаемых документов, входящей в общие данные по рабочим чертежам основного комплекта марки ГСВ.
Приложение А
(обязательное)
Буквенно-цифровые обозначения газопроводов
1
Наименование | Буквенно-цифровое обозначение |
1 Газопровод: | |
а) общее обозначение | Г0 |
б) низкого давления до 0,005 МПа | Г1 |
в) среднего давления более 0,005 до 0,3 МПа | Г2 |
г) высокого давления более 0,3 до 0,6 МПа | Г3 |
д) высокого давления более 0,6 до 1,2 МПа | Г4 |
2 Газопровод продувочный | Г5 |
3 Трубопровод на разрежение | Г6 |
Примечание – При необходимости в буквенно-цифровом обозначении газопроводов допускается применение латинской буквы «G». |
Приложение Б
(рекомендуемое)
Условные графические обозначения
газоиспользующего оборудования
1
Наименование | Обозначение |
1 Плита газовая бытовая двухгорелочная |
|
2 Плита газовая бытовая четырехгорелочная |
|
3 Аппарат отопительный газовый бытовой |
|
4 Печь отопительно-варочная |
|
5 Камин газовый |
|
6 Счетчик газовый |
|
Приложение В
(справочное)
Примеры выполнения чертежей расположения
оборудования и газопроводов

1 – Пример выполнения плана расположения оборудования и газопроводов котельной

2 – Пример разреза для котельной

3 - Пример разреза для котельной

4 - Пример плана газоснабжения жилого дома
Приложение Г
(справочное)
Примеры выполнения схем газоснабжения

1 - Схема газоснабжения котельной
1 - Схема газоснабжения жилого дома
Приложение Д
(справочное)
Примеры выполнения плана и разреза
газорегуляторной установки (ГРУ)

1 – Пример выполнения плана

1 – Пример выполнения разреза

3 - Пример выполнения узла
Приложение Е
(справочное)
Пример выполнения схемы установки

1
__________________________________________________________________________________
УДК ОКС 01.100.30 Ж01
Ключевые слова: система проектной документации для строительства, правила выполнения, рабочая документация, системы водоснабжения и канализации, водопровод
__________________________________________________________________________________
Открытое акционерное общество «Центр методологии нормирования и стандартизации в строительстве» ()
Генеральный директор
ИСПОЛНИТЕЛИ:
Начальник отдела стандартизации |
| |
Главный специалист отдела стандартизации |
|
ПОЯСНИТЕЛЬНАЯ ЗАПИСКА
к первой редакции проекта межгосударственного стандарта
«Система проектной документации для строительства.
Правила выполнения рабочей документации
внутренних систем газоснабжения»
1 Основание для разработки проекта стандарта
Основанием для разработки проекта межгосударственного стандарта является Программа разработки национальных стандартов Российской Федерации на 2013 год по ТК 465 «Строительство» (шифр 1.13.465-2.083.13).
2 Краткая характеристика объекта стандартизации
Проект межгосударственного стандарта устанавливает состав и правила оформления рабочей документации внутреннего электрического освещения помещений зданий и сооружений различного назначения.
Проект стандарта состоит из разделов:
1 Область применения
2 Нормативные ссылки
3 Термины и определения
4 Общие положения
5 Общие данные по рабочим чертежам
6 Чертежи систем
6.1 Чертежи расположения оборудования и газопроводов
6.2 Схемы систем газоснабжения
7 Чертежи установок систем
8 Спецификация оборудования, изделий и материалов
9 Опросные листы и габаритные чертежи
Приложение А (обязательное) Буквенно-цифровые обозначения газопроводов
Приложение Б (рекомендуемое) Условные графические обозначения газоиспользующего оборудования
Приложение В (справочное) Примеры выполнения чертежей расположения оборудования и газопроводов
Приложение Г (справочное) Пример выполнения схем газоснабжения
Приложение Д (справочное) Примеры выполнения плана и разреза газорегуляторной установки (ГРУ)
Приложение Е (справочное) Пример выполнения схемы установки
Проект настоящего стандарта разработан взамен ГОСТ 21.609–83 с учетом новых требований ГОСТ по структуре и изложению стандарта, а также стандартов ЕСКД и СПДС, устанавливающих общие требования к чертежам и текстовым документам, принятых после введения в действие стандарта, действующего с 1983 года.
Расширена область применения стандарта. Новый проект ГОСТ 21.609—201х устанавливает требования не только к рабочим чертежам, но и к рабочей документации марки ГСВ в целом. В стандарт включены новые разделы — на правила выполнения опросных листов и габаритных чертежей, а также правила составления документации, прилагаемой к основному комплекту рабочих чертежей марки ГСВ — спецификации оборудования, изделий и материалов.
3 Обоснование пересмотра стандарта
Необходимость актуализации стандарта в связи с давним сроком его разработки, превышающим 30 лет. Необходимость учета новых требований к изложению и оформлению межгосударственных стандартов и новых требований действующих стандартов СПДС и ЕСКД.
Необходимость учета факторов, влияющих на состав и объем проектной и рабочей документации сетей инженерно-технического оборудования.
4 Сведения о взаимосвязи проекта стандарта с другими стандартами
Проект стандарта взаимоувязан со стандартами Системы проектной документации для строительства (СПДС) и стандартами Единой системы конструкторской документации (ЕСКД), устанавливающими общие правила выполнения чертежей.
5 Перечень исходных документов, использованных при разработке проекта стандарта
Проект стандарта разработан с учетом требований следующих действующих межгосударственных стандартов:
ГОСТ 1.2–2009 Межгосударственная система стандартизации. Стандарты межгосударственные, правила и рекомендации по межгосударственной стандартизации. Правила разработки, принятия, применения, обновления и отмены
ГОСТ 1.5–2001 Межгосударственная система стандартизации. Стандарты межгосударственные, правила и рекомендации по межгосударственной стандартизации. Общие требования к построению, изложению, оформлению, содержанию и обозначению
ГОСТ 2.301―68 Единая система конструкторской документации. Форматы
ГОСТ 21.101―97 Система проектной документации для строительства. Основные требования к проектной и рабочей документации
ГОСТ 21.110―2013 Система проектной документации для строительства. Спецификация оборудования, изделий и материалов
ГОСТ 21.114―2013 Система проектной документации для строительства. Правила выполнения эскизных чертежей общих видов нетиповых изделий
ГОСТ 21.201—2011 Система проектной документации для строительства. Условные графические обозначения элементов зданий, сооружений и конструкций.
ГОСТ Р 21.1101—2013 Система проектной документации для строительства. Основные требования к проектной и рабочей документации.
6 Сведения о публикации уведомлений о разработке проекта стандарта и завершении его разработки и обсуждения
В информационной системе общего пользования - на официальном сайте национального органа Российской Федерации по стандартизации http://www. *****/wps/portal/.в сети Интернет размещено уведомление о начале разработки проекта стандарта, опубликованное 24 июня 2013 г.
Первая редакция проекта стандарта размещена на сайте , а также разослана на отзыв по списку в адрес экспертов Рабочей группы 1.2 «Проектирование», а также заинтересованным организациям (например, НОП, члены Рабочей группы 1.2 "Проектирование"), которыми проект стандарта должен быть рассмотрен.
7 Предложения о необходимости мероприятий, связанных с пересмотром настоящего стандарта
Введение в действие настоящего стандарта требует:
· отмены ГОСТ 21.609-84 после принятия разрабатываемого межгосударственного стандарта и введения его в действие в качестве национального.
· утверждения стандарта с новым наименованием – «СПДС. Правила выполнения рабочей документации внутреннего газоснабжения"
8 Сведения о разработчиках стандарта

Начальник отдела сертификации и стандартизации проектной документации Начальник технического отдела |
125057. г. Москва, а/я 63. Ленинградский пр., 63 Тел. 8(499)1 *****@***ru
| |








