Коммерческое предложение по продаже коттеджей от застройщика
Посёлок Перевалово

План земельных участков под строительство коттеджного поселка в деревне Перевалово. Все участки находятся в собственности. Участки земли № 1-9 застроены, либо проданы. Все остальные под продажу с условием, что именно застройщик Стройсервис» будет вести строительство. Стоимость за 1 сот. – 65тыс. руб..(с учетом подведения газа к участкам) Участки под № 16-23 будут разделены пополам (по 9 сот.). Все зем. участки зарегистрированы в рег. палате.
Предложение №1. Продажа коттеджа.
Дом 430 кв. м. на земельном участке 1,3 га (на плане зем. уч. под №1). На территории участка сосновый лес и пруд. (на фотографии дом справа).
Фундамент ленточный, стены монолитные, облицовка - кирпич, утеплитель 15см, заведён газ, имеется два газовых котла, система отопления, пробурена скважина, установлен септик, отделка черновая.
Цена 20 млн. руб. вместе с землёй

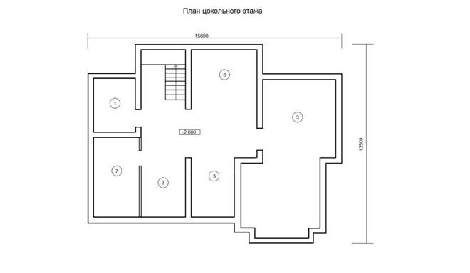
План цокольного этажа:
(1) – кладовая 7,93 кв. м.
(2) – техпомещение 15,28 кв. м.
(3) – подсобные помещения 113,75 кв. м.

План первого этажа:
(4) – котельная 7,9 кв. м.
(5) – спальня 16,2 кв. м.
(6) – ванная 7,2 кв. м.
(7) – туалет 2,34 кв. м.
(8) – гостевая 26,3 кв. м.
(9) – холл 20,5 кв. м.
(10) – прихожая 6,75 кв. м.
(12) – кухня-столовая 29,1 кв. м.
(13) – гостиная 26,3 кв. м.

План мансардного этажа:
(14) – санузел 3,24 кв. м.
(15) – 93,3 кв. м.

Предложение №2. Продажа коттеджа.
Дом 290 кв. м. с гаражом, на земельном участке 19 сот. (на плане зем. уч. под №9).
Фундамент – монолитная плита, стены – монолитные, облицовка – кирпич, утеплитель – 15см. Газ и электричество рядом. Участок граничит с сосновым лесом и маленькой речушкой.
Цена 5300000 руб. (цена вместе с землёй)

Цокольный этаж:
(1) – подсобное помещение 48,8 кв. м.
(4) – котельная 12 кв. м.
(5) – подсобное помещение 18,2 кв. м.

1 этаж:
(6) – гараж на 1 а/м 18,6 кв. м
(7) – гостиная 55 кв. м.
(9) – прихожая 8,9 кв. м.
(10) – кухня 17 кв. м.
(11) – гостевой санузел 1,8 кв. м.

Мансардный этаж:
(12) – ванная 14 кв. м.
(13) – спальня 14,7 кв. м.
(14) – коридор 7,3 кв. м.
(15) – спальня 18,4 кв. м.
(16) – спальня 26,6 кв. м.
(18) – доп. помещение 20 кв. м.

Предложение №3. Продажа.
Незавершенное строительство коттеджа (цокольный этаж) 79 кв. м. на земельном участке 18 сот. (на плане зем. уч. под №8)
Фундамент – монолитная плита, стены – монолитные, утеплисм. Участок граничит с сосновым лесом и маленькой речушкой.
Цена 3900000 руб. (цена вместе с землёй)


Предложение №4. Строительство коттеджей эконом-класса.
Стройсервис» предлагает строительство коттеджей эконом-класса по технологии несъемной пенополистирольной опалубки. Технология позволяет гарантировать ровные стены, высокие теплотехнические характеристики, простоту монтажа всех типов труб, электропроводки без трудоёмкого штрабления, что позволяет в дальнейшем сэкономить на монтаже отопления, водопровода и электрики. Срок строительства 2,5 месяца. Технология данной системы позволяет обойтись без применения тяжелой строительной техники, за счет чего стоимость за кв. м. ниже, чем у других строительных технологий. Стена из несъёмной опалубки в 30 см весит всего 320 кг/кв. м. против 1500 кг/кв. м. кирпичной стены толщиной 50 см, что позволяет снизить расходы на фундамент здания. Пенополистирол, применяемый в изготовлении несъемной опалубки абсолютно безвредный, экологически чистый материал. Из него изготавливают одноразовую посуду, упаковку для овощей, фруктов, рыбы, мяса. Элементы опалубки имеют все необходимые сертификаты, свидетельства и разрешения, рекомендующие их применение в строительстве.
Цена за такой дом как на фотографии 2,6 млн. руб.. В стоимость входит:
100 кв. м. жилой площади фундамент ленточный стены – монолитный ж/б, утеплитель – 12 см. фасад – декоративная штукатурка, окрашенная в любой цвет кровля – утеплённая, металочерепица любого цвета пластиковые окна (двойной стеклопакет) входная дверь - металлическая отделка черноваяВладелец коттеджа может внести свои изменения в план дома на стадии строительства.
Срок строительства 2,5 месяца.

План 1 этажа:
- тамбур
- холл
- санузел
- кухня
- гостиная

План 2 этажа:
- 3 спальни
- ванная
- холл

Виды расчёта:
- 50 % оплаты производится на момент подписания предварительного договора, оставшаяся сумма в день подписания и регистрации основного договора купли-продажи;
- рассрочка платежа равными долями до конца строительства;
- иные формы оплаты по согласованию сторон.
Возможны другие варианты. готовы предложить другие планы и фасады домов, а также различную квадратуру или вести строительство на основе вами предложенных проектов.
Вся дополнительная информация по тел.:
сот.: 8 904 Андрей Александрович
www.



