Федеральное агентство по образованию
Государственное образовательное учреждение высшего профессионального образования
Томский политехнический университет
УТВЕРЖДАЮ
Декан ХТФ
__________________
«_____»_____________________2005 г.
основы проектирования и Оборудование заводов тугоплавких неметаллических и СИЛИКАТНЫХ МАТЕРИАЛОВ (часть II)
Методические указания к лабораторным работам, самостоятельной работе и курсовому проектированию
по курсу «Основы проектирования и оборудование заводов ТНСМ»
направления подготовки бакалавра 240100
«Химическая технология и биотехнология»
и специальности 240304 «Химическая технология тугоплавких
неметаллических и силикатных материалов»
дневной и заочной форм обучения
Издательство ТПУ
Томск 2005
УДК 666.1.01
Основы проектирования и оборудование заводов тугоплавких неметаллических и силикатных материалов (часть II): Методические указания к лабораторным работам, курсовому проектированию и самостоятельной работе по курсу «Основы проектирования и оборудование заводов ТНСМ» направления подготовки бакалавра 240100 «Химическая технология и биотехнология» и специальности 240304 «Химическая технология тугоплавких неметаллических и силикатных материалов » дневной и заочной форм обучения. - Томск: Изд. ТПУ, 2005 гс.
Составители ст. преп., к. т.н. ,
доц., к. т.н. .
инж. .
Методические указания рассмотрены и рекомендованы к изданию методическим семинаром кафедры технологии силикатов 29 июня 2005 г.
Зав. кафедрой ТС,
проф., д. т.н.
Введение
Выполнение расчетов основных аппаратов технологии ТНСМ производится студентами 4 и 5 курсов, ознакомленными с технологическими процессами, физико-химическими расчетами шихт и смесей на всех стадиях производства. Расчеты выполняются в рамках выполнения лабораторных работ по дисциплине «Оборудование заводов и основы проектирования» направления подготовки бакалавра 240100 «Химическая технология и биотехнология» и курсового проекта по дисциплине «Оборудование заводов ТНСМ» для специальности 240304.
Перед студентами, выполняющими расчеты аппаратов в рамках лабораторных работ, ставятся задачи:
- углубление и закрепление теоретических знаний по технологии ТНСМ и оборудованию заводов путем более подробного ознакомления с конструкцией и эксплуатацией отдельных видов специального оборудования;
- овладение методикой расчета аппаратов, включая детальные знания по компоновке ходовой части аппарата, теории и технологии измельчения, анализа основных показателей работы аппарата и оптимизации его рабочих характеристик.
Общие сведения об измельчении материалов
Процесс уменьшения размеров кусков твердых материалов механическим путем – путем преодоления силы сцепления частиц – называют процессом измельчения. Обычно процесс измельчения крупных кусков называют дроблением, а процесс измельчения мелких кусков –помолом (табл.1).
Измельчение широко применяется в силикатной промышленности, так как использование измельченных твердых тел позволяет значительно ускорить химическое взаимодействие, обжиг, сушку и другие процессы, протекающие тем быстрее, чем больше поверхность участвующих в них твердых тел.
Процесс измельчения характеризуется степенью измельчения – отношением среднего размера куска до измельчения
к среднему размеру куска после измельчения
:
,
где i – степень измельчения.
Куски исходного материала или частицы, получаемые в результате измельчения, не имеют правильной формы. Поэтому на практике размеры кусков (
и
) характеризуются размером отверстий сит, через которые просеивают сыпучий материал до и после измельчения.
Процесс измельчения в зависимости от размеров кусков или частиц конечного продукта подразделяют на дробление и помол. Кроме этого выделяют следующие виды дробления и помола:
Таблица 1
Классификация способов дробления и помола
Дробление | Крупное | Среднее | Мелкое | Тонкое |
Размер кусков после дробления, мм, более | 100 | 30 | 3 | 0,5 |
Помол | Грубый | Тонкий | Сверхтонкий | |
Размер частиц, мм, менее | 0,5 | 0,1 | 0,05 | |
Крупное и среднее дробление проводится, как правило, сухим способом, а тонкий и сверхтонкий помол - как сухим, так и мокрым способами (в воде или другой жидкости). При мокром способе измельчения частицы получаемого продукта имеют более равномерную величину; кроме того, при этом уменьшается пылеобразование и облегчается выгрузка готового продукта.
В существующих дробильно-помольных машинах распространенными способами измельчения материала являются: раздавливание, истирание, изгиб, удар или комбинирование перечисленных способов − раздавливание и истирание, раздавливание и изгиб, удар и истирание (рис.1).
Способы измельчения выбирают в зависимости от физических свойств материала, начальной величины кусков и необходимой степени измельчения.
Основным физико-механическим свойством, определяющим выбор того или иного способа измельчения материала, является механическая прочность материала (предел прочности при сжатии и растяжении). Все материалы по прочности можно разделить на:
- твердые материалы прочность более 50 МПа (прочные известняки, гранит, базальт, серный колчедан, медные и железные руды, мрамор, кварц, фосфориты и др.);
- материалы средней прочности – 10-50 МПа (сланцы, слабые известняки и песчаники и др.);
- мягкие материалы − менее 10 МПа (глина, каменный уголь, торф, комкующиеся соли).
На выбор метода измельчения большое влияние также оказывают склонность материала к комкованию, его влажность и другие свойства.
При выборе дробильно-помольных машин необходимо учитывать: эксплуатационные расходы, удельный расход энергии, степень измельчения, свойства материалов, в частности, материалы должны иметь наименьшие сопротивления возникающих в машинах усилиям в виде удара, истирания, изгиба или их комбинации. Процесс измельчения материалов является весьма сложной операцией и зависит от их однородности, плотности, вязкости, твердости, формы кусков, влажности и. т.д.

Рис. 1 Методы измельчения материалов
а) раздавливание; б) истирание; в) раскол; г) удар; д) раздавливание и истирание; е) раздавливание, истирание, изгиб; ж) удар и истирание
Отечественные ученые , , и другие внесли значительный вклад в создание теории и разработку конструкций дробильно-размольных машин.
Теории измельчения
Поверхностная теория основана на гипотезе, что работа АS, затрачиваемая на измельчение тела, пропорциональна величине вновь полученных поверхностей тел, т. е.
АS=δ1.S, Дж
где δ1−коэффициент пропорциональности.
Отношение работ при больших степенях измельчения − m и n может быть выражено уравнением Аn/Am=n/m, которое показывает, что работы затрачиваемые на измельчение, прямо пропорциональны степеням измельчения или вновь образованным поверхностям. Гипотеза справедлива до определенной степени измельчения − тонкости частиц, соответствующей приблизительно ситу № 000, т. е. в пределах тонкости помола строительных материалов.
Объемная теория проф. основана на том, что материал деформируется под действием внешних сил, вызывающих в нем напряжения. Когда напряжения в материале становятся равными пределу прочности при сжатии, материал разрушается (дробится).
По объемной теории работа, требуемая для производства аналогичных изменений в очертании геометрически подобных тел одинакового состава, изменяется пропорционально их объемам и отвечает уравнению
А= δ2·V, Дж
где δ2 − коэффициент пропорциональности.
Обобщающая теория акад. основана на том, что работа А, затраченная на разрушения тела, соответствует формуле
А= δ1S+ δ2V, Дж
Где δ1, δ2 − коэффициенты пропорциональности, Н/м и Н/м2;
S − вновь образующаяся поверхность, м2;
V − часть объема тела, подвергшаяся деформации, м3.
При измельчении, связанном с образованием больших поверхностей, первый член δ1S уравнения значительно больше второго δ2V, и работа измельчения почти пропорциональна вновь образованной поверхности. При больших размерах тела и малой величине вновь образующейся поверхности первый член уравнения значительно меньше второго δ2V > δ1S, и работа дробления почти пропорциональна объему дробимого тела, т. е. его деформируемой части.
Теория академика обобщает поверхностную и объемную теорию измельчения материалов. Существенным недостатком теории является то, что еще нет научно обоснованных способов для определения δ1 и δ2, в результате чего она, как и предшествующие ей теории, имеет небольшую практическую ценность.
Рассмотренные теории не раскрывают всех весьма сложных процессов, происходящих при измельчении материала, но дают возможность рационально решать вопросы, связанные с созданием и совершенствованием дробильно-помольных машин. В соответствии с рассмотренными теориями, создаваемые дробильно-помольные машины должны быть непрерывного действия (измельченный материал из них удаляется, как только он достигает определенной степени измельчения) и работать в замкнутом цикле с сортировочными устройствами и хорошо поставленной аспирацией. В них следует подавать материал определенного объема или массы с наименьшим сопротивлением, возникающим усилиям (в виде удара, изгиба, истирания или их комбинаций), регулировать измельчающие усилия в соответствии с объемами, массами, прочностью измельчаемого материала и т. д.
Классификация дробильно-помольных машин
Дробильно-помольные машины и могут быть классифицированы по следующим признакам.
По технологическому назначению: машины первичного измельчения, в которые материал поступает непосредственно из склада или карьера; машины вторичного измельчения, в которые поступает материал, уже прошедший первичное измельчение.
По величине конечного продукта: дробилки − машины, измельчающие материал до величины частиц более 0,5 мм; мельницы− машины, измельчающие материал до величины частиц менее 0,5 мм.
По принципу действия и конструктивным особенностям:
щ е к о в ы е д р о б и л к и с простым и сложным движением подвижной щеки; первые измельчают материал раздавливанием и истиранием при периодическом приближении подвижной щеки к неподвижной;
к о н у с н ы е д р о б и л к и с подвижным валом и неподвижной осью; эти дробилки измельчают материал раздавливанием и изгибом при постоянном приближении к неподвижному конусу поверхности подвижного конуса, который совершает поступательные движения в горизонтальной плоскости или круговые движения, эксцентричные относительно внутренней поверхности неподвижного конуса;
в а л к о в ы е д р о б и л к и измельчают материал в основном раздавливанием, частично истиранием, ударом или изгибом между двумя вращающимися навстречу друг другу валками с гладкой, рифленой, ребристой или зубчатой поверхностями;
с т р у г а ч и измельчают материал ножами, закрепленными на вращающемся горизонтальном или вертикальном диске;
б е г у н ы измельчают материал раздавливанием и истиранием между цилиндрической поверхностью каткой и плоской поверхностью чаши;
д е з и н т е г р а т о р ы измельчают материал ударами быстро вращающихся жестко закрепленных молотков − бил;
м о л о т к о в ы е д р о б и л к и измельчают материал ударами и частично истиранием быстро вращающихся шарнирно или жестко закрепленных молотков;
с т р у й н ы е м е л ь н и ц ы измельчают материал в помольной камере в результате ударов летящих навстречу друг другу частиц, поступающих в нее с большой скоростью и под большим давлением;
к о л ь ц е в ы е м е л ь н и ц ы измельчают материал раздавливанием и истиранием между криволинейными поверхностями − кольцевой дорожкой и роликами или шарами;
б а р а б а н н ы е в р а щ а ю щ и е с я и в и б р а ц и о н н ы е м е л ь н и ц ы измельчают материал ударами и истиранием свободно падающих мелющих тел, последние поднимаются во вращающемся барабане под действием центробежной силы, а в вибрационных − в результате вибрации барабана.
Материал может измельчаться мокрым (с добавлением воды) и сухим способами, в замкнутом и открытом цикле. При замкнутом цикле измельченный материал направляется в сортировочные устройства, откуда куски или частицы недостаточной тонкости возвращаются для повторного измельчения, а материал с необходимой величиной частиц используется по назначению. При открытом цикле измельченный материал направляется в машины или аппараты для дальнейшей переработки или используется как готовый продукт.
Сырьевые материалы, добавки и топливо измельчают для увеличения поверхности взаимодействия, что необходимо для обеспечения технологических процессов как в технологии силикатных и неорганических материалов, так и в любой другой технологии. Как известно, на дробление и тонкое измельчение материалов расходуется до 80% электроэнергии, потребляемой при производстве силикатных материалов. Правильный выбор схем и оборудования для дробления и помола обеспечивает уменьшение расхода электроэнергии и снижение стоимости продукции. Поэтому основной целью настоящих методических указаний является получение студентами практических навыков работы с оборудованием для измельчения материалов и закрепление теоретических знаний по курсу «Оборудование заводов ТНСМ».
Цикл лабораторных работ включает подробное изучение конструкций различных видов оборудования для измельчения материалов, овладение методикой расчета аппаратов, анализ основных показателей работы аппарата и оптимизации его рабочих характеристик.
Лабораторная работа № 1
Определение минимальной энергии разрушения материалов
При измельчении с помощью ударной нагрузки сопротивление измельчаемого материала разрушению характеризуется энергией начала разрушения кусков материала. Это минимальная энергия удара груза с плоской ударной поверхностью по куску материала, которая вызывает его разрушение на несколько частей. Чтобы дробящее тело могло разрушить материал, его энергия в момент удара должна быть больше или равна энергии начала разрушения кусков: ЕТ ≥ Е0.
Минимальная энергия начала разрушения Е0 измельчаемого тела зависит от природы материала, его механических свойств и размеров. Величину этой энергии определяют опытным путем на копре с вертикально падающим грузом (рис.2).
Рис.2 Копер с падающим грузом: 1 – опорная плита; 2 – наковальня; 3 – стойка; 4 – лебедка; 5 – сбрасыватель; 6 – трос; 7 – ролики; 8 – направляющие груза; 9 – защелка; 10 – груз. |
Рис.3. График зависимости энергии начала разрушения материала от размера его частиц: 1 – базальт; 2 – апатитовая руда; 3 – фосфоритная руда; 4 – цементный клинкер. |
Высота подъема груза фиксируется положением сбрасывателя. При подъеме груза 10 свободный рычаг защелки 9 встречает на своем пути выступ сбрасывателя 5 и отклоняется вниз. Защелка соскакивает с захвата, и груз 10 падает на наковальню 2 по направляющим 8.
Энергия падающего груза в каждый рассматриваемый момент времени определяется по формуле
(1)
где q – вес груза; w – скорость движения в рассматриваемый момент.
В случае свободного падения тела, когда его начальная скорость равна нулю, скорость падения в каждый рассматриваемый момент времени определяется по закону Ньютона:
(2)
где h – высота падения.
Из выражения (1) и (2) имеем:
(3)
Следовательно, на копре энергия падающего груза зависит от его веса и высоты падения. Вес груза в опытах остается постоянным, а высота его падения устанавливается с помощью сбрасывателя 5.
Методика определения минимальной энергии начала разрушения материала состоит в следующем. Отбирают несколько кусков данного материала кубообразной формы примерно одинаковой величины. Образец (кусок) помещают на наковальню, а сбрасыватель устанавливают на высоту 5 см от поверхности образца. Если сброшенный с установленной высоты груз не разрушил образец, высоту падения постепенно увеличивают и опыт повторяют до тех пор, пока образец не разрушится, то есть пока энергия удара груза не станет меньше разрушающей. Эту энергию и принимают за минимальную разрушающую для данного размера куска материала. Так как куски материала одного и того же размера могут иметь различную прочность, результаты, полученные для испытанного образца, проверяют на других кусках того же размера. За минимальную энергию разрушения материала принимают максимальную из всех величин, полученных при проверке.
Чтобы получить график зависимости минимальной энергии начала разрушения от размера разрушаемых частиц, опыт проводят на образцах различных размеров. На рис. 3 представлены графики зависимости Е0 от d для некоторых материалов.
Выводы по работе: сравнить энергию разрушения исследуемого материала с известными (рис.3).
Лабораторная работа № 2
Изучение устройства и работы щековой дробилки со сложным движением подвижной щеки
В промышленности строительных материалов щековые дробилки находят большое распространение для первичного (грубого) дробления материалов.
Принцип действия щековой дробилки состоит в измельчении материала раздавливанием при периодическом приближении подвижной щеки к неподвижной.
Основная классификация щековых дробилок осуществляется по характеру движения основного рабочего органа – подвижной щеки. Это дробилки с простым движением подвижной щеки и со сложным.
Лабораторная работа направлена на изучение устройства и работы щековой дробилки со сложным движением подвижной щеки (рис.4).

Рис. 4 Щековая дробилка со сложным движением подвижной щеки
Щековая дробилка со сложным движением подвижной щеки имеет станину 1, сваренную из стальных листов, подвижная щека 2 с рабочей ребристой плитой 3, с радиально-сферическими подшипниками 4 насажена непосредственно на эксцентриковую часть вала 5. Последний своими шейками смонтирован в радиально-сферических подшипниках 6.
В дробилке роль шатуна выполняет подвижная щека 2, и имеется только одна распорная плита 7. Одним концом распорная плита упирается в подвижную щеку 2, а другим – в клин 8 регулировочного устройства.
Навинченные на болты 10 звездочки 9 удерживаются от вертикального перемещения винтами 11 и охвачены цепью 12. Последняя поворачивает звездочки и обеспечивает одинаковый (без перекосов) подъем или опускание болтов 10 вместе с клином 13. При этом клин 8 перемещается в горизонтальной плоскости, в результате чего изменяется ширина разгрузочной щели.
Чтобы распорная плита 7 не выпадала во время движения щеки 2, она оттягивается тягой 14, на которую надета пружина 15, сжимаемая гайкой 16.
На выступающих за подшипниками 6 концах вала 5 закреплены маховики 17 и 18.
В дробилках со сложным движением точки поверхности подвижной щеки при вращении эксцентрикового вала описывают в средней части щеки замкнутые эллипсы, в верхней части – кривые, близкие к окружности, а в нижней части – дуги, близкие к прямым линиям.
Достоинствами щековых дробилок являются:
1. простота и надежность конструкции;
2. широкая область применения (в том числе для крупнокусковых материалов большой прочности);
3. компактность;
4. относительная простота обслуживания.
К недостаткам следует отнести:
1. периодический характер воздействия на материал (только при сближении щек);
2. неуравновешенность движущихся масс, которая приводит к толчкам и сотрясениям.
Поэтому дробилки устанавливают на тяжелых фундаментах и снабжают массивными маховиками.
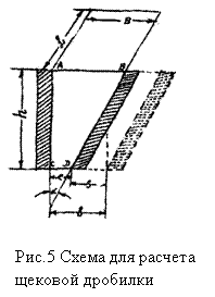
К числу основных расчетных параметров, характеризующих работу щековой дробилки, относятся: 1) угол между щеками α, называемый углом захвата; 2) число оборотов вала; 3) производительность.
Угол захвата. От величины угла захвата зависит степень измельчения, которая возрастает с увеличением α. Однако, для того, чтобы куски материала, поступающие в дробилку, не выталкивались из нее давлением щек, необходимо, чтобы угол захвата не превышал удвоенного угла трения φ, то есть должно соблюдаться условие -
. Обычно угол захвата α принимают в пределах 15-22°.
Число оборотов вала (число двойных качаний подвижной щеки).
При отходе подвижной щеки от неподвижной из дробилки под действием собственного веса выпадает слой материала, имеющий объем призмы трапецеидального сечения, высота этого сечения
(1)
где s – ход щеки, то есть расстояние по горизонтали, на которое подвижная щека перемещается параллельно самой себе.
Если подвижная щека делает n двойных качаний в минуту, то время отхода щеки из крайнего левого положения в крайнее правое
, сек
За время t призма материала в свободном падении пройдет путь
(2)
Число двойных качаний щеки n (об/мин), соответствующее наибольшей производительности дробилки равно
(3)
Производительность. Принимая α = 22° (tgα = 0,4), теоретическую производительность QТ в т/ч щековой дробилки можно определить по формуле
(4)
где μ – коэффициент разрыхления измельченного материала (μ = 0,2-0,65, обычно 0,3).
dср – средний размер кусков измельченного материала, м
s – длина хода щеки, м
b – длина выпускной щели, м
n – число двойных качаний в 1 мин.
Ρ – плотность материала, кг/м3
Средний размер кусков измельченного материала
,
где е – минимальная ширина выпускной щели.
Цель работы:
1. практическое ознакомление с устройством и работой щековой дробилки.
2. составление технической характеристики лабораторной щековой дробилки:
- определить действительную и теоретическую производительность дробилки и коэффициент перехода от теоретической производительности к действительной.
- определить фактическую степень измельчения.
Для работы необходимы:
1. секундомер
2. рулетка (линейка)
3. штангенциркуль
4. технические весы и разновесы к ним.
Техническая характеристика дробилки:
L – длина рабочего пространства, м
В – ширина рабочего пространства (загрузочного отверстия), м
Е –минимальная ширина разгрузочного отверстия (выпускной щели), м
b – максимальная ширина выпускной щели, м
s – размах щели (длина хода щели) определяется как разность значений ширины щели b и е при двух крайних положениях щеки при заданной ширине разгрузочной щели е
h – высота рабочего пространства, м
α – угол захвата при заданной ширине разгрузочной щели ![]()
n – число оборотов вала (об/сек)
Ход работы.
Действительная производительность и степень измельчения находятся следующим образом.
1. Устанавливается разгрузочная щель дробилки на заданную величину е, берется желоб длиной около 1 метра и шириной равной длине загрузочного отверстия дробилки.
2. Перед дроблением навеску материала взвешивают – G, кг.
3. Для определения степени измельчения у 3-5 наибольших кусков измеряют наименьший размер – dн, м.
4. Включают мотор и при достижении полного числа оборотов, при помощи желоба подается материал в дробилку. Замеряют время дробления навески – t, сек. Во время работы дробилки рабочее пространство ее должно быть все время заполнено.
5. Определяют насыпной вес продукта дробления – ρ0, кг/м3. для этого берется определенного объема металлический сосуд, наполняется до краев измельченным материалом и взвешивается.
6. Для определения степени измельчения также у 3-5 наибольших кусков измельченного материала измеряют наименьший размер – dк, м.
Теоретическая производительность QТ дробилки рассчитывается по формуле
, кг/сек
Действительная производительность QД находится по формуле:
, кг/сек
Коэффициент перехода К от теоретической производительности к действительной находится по следующему выражению

Степень измельчения i определяется по формуле

Данные измерений заносятся в таблицу
h, м | L, м | В, м | b, м | е, м | s, м | n, м | Угол захвата α, град | G, кг | t, сек | ρ0, кг/м3 | dн, м | dк, м | QД, кг/с | QТ, кг/с | i |
Выводы по работе: оценить основные параметры работы щековой дробилки
Лабораторная работа № 3
Валковая дробилка
Валковые дробилки применяют для тонкого, мелкого, среднего и крупного измельчения горных пород и других материалов различной твердости, брикетирования материалов, удаления из глины каменистых включений и т. д. В валковых дробилках измельчение материала осуществляется раздавливанием, частично истиранием, ударом или изгибом между двумя вращающимися навстречу друг другу валками с гладкой, зубчатой или рифленой поверхностями.
|
1,2,7,8-шестерни привода; 3,11-подшипники; 4-станина; 5-предохрани-тельные пружины; 6,10-валки; 9-шкив; 12-вал привода ременной передачи.
Достоинства валковых дробилок: простота устройства, надежность в работе, небольшой расход энергии. Недостатки: низкая степень измельчения дробилка с гладкими валками, небольшая производительность, наличие вибрации и необходимость равномерного непрерывного питания валков во избежание снижения их эффективности.
Цель работы:
- познакомиться с работой валковой дробилки с гладкими валками;
- определить размер кусков измельченного материала и степень измельчения;
- определить теоретическую и действительную производительность валковой дробилки;
Методика выполнения работы:
1. Определяют средний наименьший диаметр наибольших кусков материала (dн), который необходимо измельчить.
2. Взвешивают материал.
3. Измеряют длину (L) и диаметр (D) волков.
4. Включают дробилку, на валки подают материал, секундомером засекают время (τ) прохождения массы материала через дробилку.
5. Измельченный материал просеивают через сито с размером ячеек 1 мм и определяют средневзвешенный размер кусков измельченного материала (dк).
,
где d1, d2, dn – размер фракции материала, см;
а – доля фракции, процентное содержание.
6. Определяют степень измельчения
.
7. Рассчитывают теоретическую производительность валковой дробилки:
, (т/ч)
где l – ширина щели между валками, м;
L – длина валка, м:
D – диаметр валка, м:
n – скорость вращения валков, об/мин,
, f – коэффициент трения f = 0,3;
μ – коэффициент разрыхления материала, равный 0,25-0,3;
ρ – плотность материала, т/м3.
8. Определяем действительную производительность валковой дробилки
, т/ч
Выводы по работе: оценить основные параметры работы лабораторной валковой дробилки
Лабораторная работа № 4
Шаровая мельница
С целью интенсификации протекания твердофазовых реакций при производстве вяжущих материалов, керамики и стекла применяют тонкое измельчение материалов. Наибольшее распространение для тонкого измельчения материалов находят шаровые мельницы. Материал в них измельчается в результате ударного воздействия и частичного истирания свободно падающих тел, находящихся во вращающемся барабане вместе с измельчаемым материалом. По сравнению с другими помольными машинами шаровые мельницы обладают следующими достоинствами: простота конструкции, удобство и надежность при эксплуатации, обеспечение высокой степени измельчения, возможность автоматизации.
Из недостатков следует отметить малую скорость воздействия мелющих тел на материал, обусловленную ограниченным числом оборотов мельницы. Кроме того, в работе измельчения участвует только часть мелющих тел, а рабочее пространство барабана используется на 53-40%. Сравнительно высок удельный расход электроэнергии и наблюдается большой износ мелющих тел и футеровки. Коэффициент полезного действия шаровых мельниц находится в пределах 0,005-0,015.
Целью работы является практическое ознакомление с работой цилиндроконической шаровой лабораторной мельницы, с ее конструкцией и определение основных параметров, характеризующих эффективность работы помольной установки. Кроме этого, в ходе работы необходимо исследовать кинетику измельчения материала в шаровой мельнице.
Схема лабораторной цилиндроконической мельницы представлена на рис.7. Основной частью установки является шаровая мельница, представляющая собой металлический барабан 1, имеющий цилиндрическую (в центре) и конические части. Корпус мельницы отлит заодно с полыми цапфами 3 и 4, причем со стороны разгрузки полая цапфа 4 оснащена решеткой, предотвращающей выпадение мелющих тел при разгрузке. На пустотелые цапфы насажены шариковые подшипники, которые с помощью опор 6 жестко закреплены на основании. Такое крепление мельницы позволяет ей вращаться вокруг своей оси. Привод мельницы во вращение приводится с помощью электродвигателя, редуктора и зубчатой передачи. Одна из шестерен зубчатой передачи насажена на выходной вал редуктора, а другая крепится на цилиндрической части корпуса мельницы, и прикрывается защитным кожухом 2. Загрузка измельчаемым материалом производится через правую полую цапфу, разгрузка готового продукта осуществляется через левую полую цапфу, которые закрываются крышками. Работа лабораторной цилиндроконической мельницы носит периодический характер.

Основные параметры работы мельницы
1. Число оборотов мельницы.
При вращении барабана мелющие тела (шары) благодаря трению между ними и внутренней поверхностью барабана поднимаются на определенную высоту и затем, падая вниз, измельчают материал. При медленном вращении мельницы шары с измельчаемым материалом поднимаются вдоль стенки барабана до угла естественного откоса и скатываются вниз. Материал, находящийся между шарами, при их перекатывании будет истираться.
При большом числе оборотов
барабана шары и материал под действием центробежных сил инерции прижимаются к внутренней поверхности барабана, вращаются вместе с ним, не производя полезной работы. При таком вращении барабана мельницы говорят о критическом числе оборотов, которое определяется по формуле
, об/мин (1)
где D – внутренний объем мельницы, м.
Для эффективной работы мельницы число оборотов должно быть оптимальным. Оптимальное число оборотов характеризуется следующим: шары и материал поднимаются на некоторую высоту и затем, падая вниз, измельчают материал. При подъеме шары движутся вместе с барабаном, в некоторой точке отрываются и падают вниз по параболической траектории. Чем больше скорость шара, тем выше его подъем и больше высота падения, а следовательно, эффективнее его удар.
Оптимальное число оборотов определяется по формуле
, об/мин (2)
2. Мощность привода шаровой мельницы
В шаровой мельнице мощность двигателя расходуется на подъем шаров, сообщение им кинетической энергии и на преодоление сил сопротивления в приводе мельницы. Кроме того часть энергии превращается в тепловую в результате взаимодействия шаров, материала и футеровки мельницы.
Мощность привода мельницы определяется по формуле:
, кВт (3)
где D – внутренний диаметр мельницы, м;
G – масса мелющих тел, кг.
Мощность электродвигателя подсчитывается с учетом к. п.д. привода мельницы:
, кВт (4)
где η – коэффициент полезного действия привода мельницы, η = 0,9.
3. Коэффициент загрузки мельницы мелющими телами
Коэффициент загрузки мельницы мелющими телами определяется по формуле:
, (5)
где D – внутренний диаметр мельницы, м;
L – длина барабана мельницы, м;
ρн – насыпная масса мелющих тел, кг/м3.
4. Коэффициент загрузки мельницы измельчаемым материалом
Измельчаемый материал в мельнице располагается в пустотах между шарами. Пустотность (пористость ) шаровой загрузки определяется
, (6)
где ρист – истинная плотность материала шаров, кг/м3.
С учетом того, что уровень загружаемого материала приблизительно на 10 % превышает уровень шаров, определяется количество материала загружаемого в мельницу:
, кг (7)
где
- насыпная плотность измельчаемого материала, кг/м3;
V – объем мельницы, м3
Отсюда коэффициент загрузки мельницы измельчаемым материалом составит
(8)
5. Производительность мельницы и удельный расход электроэнергии
Действительная производительность мельницы зависит от времени помола и от количества материала, загружаемого в мельницу:
, кг/час (9)
где Р – вес загружаемого в мельницу материала, кг, формула (7);
t – общее время помола материала, мин.
Удельный расход электроэнергии определяется по формуле:
, кВт·ч/т (10)
где N – мощность, затраченная на измельчение материала, кВт·ч, формула (3);
В – действительная производительность мельницы, кг/час.
Удельная производительность мельницы:
, т/ кВт·ч (11)
Расчетная производительность мельницы может быть определена по формуле:
, кг/час (12)
где V – внутренний объем мельницы, м3;
D – внутренний диаметр мельницы, м;
b – удельная производительность мельницы, т/ кВт·ч;
kN – коэффициент использования мощности kN = 0,9;
k – поправочный коэффициент на тонкость помола. Значения k приведены в таблице 1.
Таблица 1
Остаток на сите 008, % | 4 | 6 | 8 | 10 | 12 | 14 | 16 | 17 | 18 |
k | 0,715 | 0,818 | 0,912 | 1,000 | 1,09 | 1,17 | 1,258 | 1,301 | 1,342 |
Методика и порядок выполнения работы
1. Предварительная подготовка материала
Материал для измельчения предварительно просеивается через сито с диаметром ячейки 5 мм для удаления крупных включений.
Определяется насыпная плотность исходного материала
, кг/м3 с помощью наклонной плоскости. Наклонная представляет собой металлический или деревянный лоток, расположенный под углом 45° к горизонту. Под нижним обрезом лотка помещается сосуд фиксированного объема, причем расстояние между нижним обрезом наклонной плоскости и верхним краем сосуда должно быть равно 50мм. Материал насыпают на верхнюю часть плоскости совком, держа его на высоте 50 мм от плоскости. Когда сосуд наполнится материалом с некоторым избытком, последний срезают линейкой. Затем сосуд с материалом взвешивают и определяют насыпную массу материала по формуле:
, кг/м3 (13)
где G1 – масса пустого сосуда, кг;
G1 – масса сосуда с материалом, кг;
Vс – объем сосуда, м3.
Определение насыпной массы производят три раза и берут среднее значение.
2. Параметры лабораторной цилиндроконической мельницы.
2.1. Определяем D, м - внутренний диаметр мельницы, только цилиндрической ее части, так как основной измельчающее действие происходит именно в цилиндрической части.
2.2. Определяем длину мельницы L, м.
2.3. Определяем внутренний объем мельницы V, м3, который складывается из объема цилиндрической ее и удвоенной конической:
, (14)
где
- объем цилиндрической части мельницы, м3;
- объем усеченного конуса, м3.
- площадь нижнего основания конуса, м2;
- площадь верхнего основания конуса, м2.
3. Шаровая загрузка.
3.1. Определяем массу мелющих тел G, кг.
3.2. Определяем насыпную плотность мелющих тел, ρн, кг/м3.
3.3. Определяем коэффициент загрузки мельницы мелющими телами, φш, формула (5).
4. Определяем необходимое количество материала для загрузки в мельницу, Р, кг и коэффициент загрузки мельницы мелющими телами φм.
5. Определяем действительную и расчетную производительность лабораторной цилиндроконической шаровой мельницы по формулам (9-12).
6. Второй частью и немаловажной частью работы является исследование
кинетики измельчения материала в цилиндроконической мельнице. Для этого в течение всего установленного времени помола (1,5-2 часа) через определенные равные промежутки времени (15 мин) из мельницы производится отбор пробы материала в количестве 25-30 г. Отобранная навеска просеивается через набор сит с размером ячеек: 2 мм, 1 мм, 0,5 мм, 0,2 мм, 0,08 мм. По результатам рассева, то есть по процентному соотношению остатков на ситах, строят графические зависимости количества фракции материала, n, %, на указанных ситах от времени помола τ, мин: n=f(τ).
По результатам работы необходимо сделать следующие выводы:
1. После определения расчетной производительности мельницы и действительной производится анализ причин возможного несовпадения результатов.
2. Производится анализ кинетических зависимостей фракционного остатка на ситах от времени помола.
Литература:
1. Ильевич и оборудование для производства керамики и огнеупоров. – М.: ВШ, 1979.
2. Боганов оборудование цементных заводов. – М.: Машиздат, 1961.
3. и др. Механическое оборудование предприятий строительных материалов и изделий. – М.: Машиностроение, 1975.
4. Силенок оборудование предприятий стройматериалов, изделий и конструкций. – М.: Стройиздат, 1975, 1990.
5. , Ильин оборудование предприятий строительной индустрии. - М.: Высшая школа, 1986.
основы проектирования и Оборудование заводов
тугоплавких неметаллических и СИЛИКАТНЫХ
МАТЕРИАЛОВ (часть II)
Методические указания к лабораторным работам, самостоятельной работе и курсовому проектированию по курсу «Основы проектирования и оборудование заводов ТНСМ» направления подготовки бакалавра 240100 «Химическая технология и биотехнология» и специальности 240304 «Химическая технология тугоплавких неметаллических и силикатных материалов» дневной и заочной форм обучения.
Составители ст. преп., к. т.н. ,
доц., к. т.н. ,
инж. .
Подписано к печати 19.01.05
Формат 60×84/16. Бумага офсетная
Печать RISO. Усл. печ. л. 2,21 . Уч. изд. л. 2,0
Тираж 100 экз. Заказ. Цена свободная
Издательство ТПУ. Томск, пр. Ленина, 30.





