УДК 622.261; 622.831
Чан Туан Минь
аспирант кафедры СПСиШ
Московский государственный горный университет
ОПРЕДЕЛЕНИЕ ОПТИМАЛЬНОЙ СХЕМЫ РАСКРЫТИЯ ЗАБОЯ ПРИ СТРОИТЕЛЬСТВЕ ТРАНСПОРТНЫХ ТОННЕЛЕЙ В ПЛАСТИЧНЫХ ПОРОДАХ
DETERMINATION OPTIMAL EXCAVATED SCHEME WHEN BUILDING TRANSPORT TUNNELS IN PLASTIC ROCK
При строительстве и проходке транспортных тоннелей большого поперечного сечения [1, 2, 3, 4, 5] обычно используют поэтапные схемы проходки для повышения скорости строительства и увеличения устойчивости пород массива вокруг тоннеля. Особенно при строительстве тоннелей в средних и мягких породах эта задача обладает большим значением. Однако выбор и определение соответствующей схемы для увеличения эффективности проходки и устойчивости тоннелей является сложной задачей. При поэтапной проходке определение площади каждого забоя тоже необходимо учитывать. Первое место опережающего забоя зависит от геологических условий и глубины заложения выработки также от характеристик используемых оборудовании. В настоящее время с развитием компьютерной науки и техники, численный метод нашел более широкое применение в процессе решения геотехнических задач. В данной статье показано определение оптимальной схемы раскрытия забоя транспортных тоннелей на основе численного метода по программе Plaxis 3D [6]. Рассматриваемая проблема также является основой для проектирования проходки и выбора конструкции транспортных тоннелей.
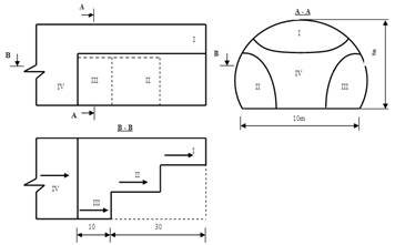
Для решения такой задачи были приняты следующие исходные данные: глубина заложения выработки - 18м, ширина тоннеля 10м, высота 8м, и свойства пород как в табл. 1. При проходке тоннеля используется временную крепь с набрызгбетоном 5см (см. табл. 2). Однако если породы в забое разрушаются сразу после проходки, то на контуре опережающего забоя необходимо закрепить и увеличить крепь.
Таблица 1.
Свойства пород для задачи.
модель материала свойства объемный вес пород - gunsat объемный вес пород и вода - gsat высота градиента фильтрации кx по горизонтальную кy модуль упругости E коэффициент Пуассона m сила сцепления с угол внутреннего трения j | Mohr Coulomb без воды 20 kН/м3 22 kН/м3 1.10-4 м/сут 1.10-4 м/сут 200000 kН/м2 0,25 25 kН/м2 350 |
Таблица 2.
Свойства конструкции набрызгбетона.
свойства материал нормальная крепость EA прочность на выгиб EI толщина крепи d вес крепи w коэффициент Пуассона m | упругость 3.106 kН/м 620 kНм2/м 5см 8,4 kN/м/м 0,15 |
При проходке по схеме 1: Сначала проходит забоя I на кровле проектного тоннеля, в следующем этапе проходят два забоев II из бока проектного тоннеля и последовательном этапе ядра III как на рис. 1.

Рис 1. Теоретическая схема 1
С помощью по программе Plaxis 3D позволяет моделировать эту задачу, также результаты распределения напряженно-деформированного состояния пород вокруг тоннеля показаны как на (рис. 2).

а) Распределение напряжения вокруг тоннеля при разных этапах.

б) Распределение деформации вокруг тоннеля при разных этапах.
Рис. 2. Результаты анализа по схеме 1.
При проходке по схеме 2: в этом случае на первом этапе проходит забоя I из двух боков, в следующем этапе - забой II в кровле, и ядро III (рис. 3). В результате полученных результатов распределения напряженно-деформированного состояния пород вокруг тоннеля с поэтапной проходке показаны на (рис. 4).

Рис. 3. Теоретическая модель.

а) Распределение напряжения вокруг тоннеля при разных этапах.

б) Распределение деформацими вокруг тоннеля.
Рис 4. Результаты анализа по схеме 2.
При проходке по схеме 3:
В этом случае используется проходческая схема от забоя в кровле проектного тоннеля I, затем - бока, следующий этап - ядро, схема анализа показана (рис. 5). После анализа полученные результаты распределения напряженно-деформированного состояния вокруг проектного тоннеля при разных проходческих этапах по схеме 3 показаны на рис. 6.

Рис. 5. Теоретическая схема двух забоев из бока по схеме 3.

а) Распределение напряжения вокруг тоннеля.

б) Распределение деформацими вокруг тоннеля.
Рис 6. Результаты анализа по схеме 3.
Значения деформаций в своде проектного тоннеля при различных сечении тоннеля и разных проходческих этапах показаны в табл. 3. Реузультат зависимости деформации в своде проектного тоннеля от разных этапах показана на рис 7.
Таблица 3.
Значения деформации в своде проектного тоннеля
1 | Не проходки | этап 1 | этап 2 | этап 3 |
2 | 0 | 0,00938 | 0,00812 | 0,00776 |
3 | 0 | 0,00828 | 0,00804 | 0,00693 |
4 | 0 | 0,01044 | 0,00832 | 0,00776 |
![]() |
Рис. 7. Деформации в кровле проектного тоннеля в разных этапах.
Результаты на рис 7 показывают, что использование поэтапной схемы проходки является важной задачей для повышения устойчивости и скорости проходки тоннелей в целом. После анализа по программе Plaxis 3D очевидно, что схемы 2 является оптимальным. В этой схеме первый этап проходят двумя забоями из боков, деформация в схеме 1 равна exy = 7,76.10-3м и в схеме 2 - exy = 6,93.10-3м, в схеме 3 - exy = 7,76.10-3м (см. рис 7). Однако на практике нам нужно ознакомиться с характеристиками вспомогательного оборудования, применяющегося в разных забоях. Хотя модель имеет ограничения, но эта проблема является основой для выбора соответствующей схемы проходки транспортных тоннелей большого поперечного сечения.
Литература.
1. Панкратенко и разработка параметров ресурсосберегающих технологий строительства подземных выработок большого поперечного сечения. Дисс… д. т.н. – М., 2002.
2. , , Куликова и подземное строительство. Том 2. – М.: издательство Академии горных наук, 2001.
3. Корчак проектирования строительства подземных сооружений. – М., 2001. – 414 с.
4. , , Мостков сооружения. – М.: Недра, 2005. – 464 с.
5. Мостков подземных сооружений большого сечения. – М., 1963. – 307 с.
6. Интернет-источник: http://plaxis. nl/
Аннотация.
Строительство транспортных тоннелей является одной из важнейших задач подземного строительства как в СРВ так и во многих странах мира. Однако исследования и знания о напряженно-деформированном состоянии породы вокруг большепролетного тоннеля при поэтапном раскрытии сечения оставляют желать большего. В этой статье сделана попытка оценить влияние схемы раскрытия забоя транспортных тоннелей на напряженно-деформированного состояния пород вмещающего массива и с учетом этих напряжений дается рекомендация об оптимальной проходческой схеме.
Building transport tunnels is one of very important problems in the field of underground construction in Viet Nam and in other countries over the world. However studying and knowledge the state of stress and deformation around tunnels using stages excavation is very limited. This paper introduces assessment impaction of schemes excavation on state of stress-deformation and recommends appropriated scheme.
Ключевые слова.
напряжение, деформация, транспортные тоннели, геомеханика
stress, deformation, transport tunnels, geomechanics, rock engineering, Plaxis 3D




