ООО “НПК “ШЕЛЬФ”
Украина, 84700, г. Дебальцево, Донецкой области, ул. Советская, 5
т/ф (062
т (062
E-mail: shelf @
www.
КОЛОНКИ
ТОПЛИВОРАЗДАТОЧНЫЕ
ДЛЯ ЖИДКОГО ТОПЛИВА И СЖИЖЕННОГО ГАЗА
«ШЕЛЬФ …» Х КЕД - Х-0,25-Х-Х …/LPG
Руководство по эксплуатации
Ш. 05.00.00 РЭ

2008
СОДЕРЖАНИЕ
стр.
Введение
3
1
Описание и работа
4
1.1
Описание и работа колонок
4
1.2
Основные технические характеристики
4
1.3
Состав изделия
6
1.4
Устройство и работа
6
1.5
Указания по поверке
8
1.6
Маркировка и пломбирование
8
1.7
Упаковка
9
1.8
Описание работ и составных частей изделия
9
2
Взрывозащищенное электрооборудование колонок
12
2.1
Взрывоопасные условия и перечень взрывозащищенного электрооборудования
12
2.2
Обеспечение взрывозащищённости электрооборудования колонок
12
2.3
Требования к взрывозащите при монтаже, эксплуатации и ремонте
16
3
Использование по назначению
17
3.1
Эксплуатационные ограничения
17
3.2
Требования безопасности при подготовке изделия к использованию
17
3.3
Пробный пуск колонки
19
3.4
Использование изделия
19
3.5
Действия в экстремальных условиях
22
4
Техническое обслуживание
23
4.1
Общие указания
23
4.2
Требования безопасности труда
24
4.3
Техническое освидетельствование
24
4.4
Хранение
25
5
Текущий ремонт
25
5.1
Текущий ремонт изделия
25
5.2
Разборка и сборка изделия
25
5.3
Требования безопасности при выполнении ремонтных работ
26
Приложение А
Перечень документов, на которые даны ссылки в руководстве по эксплуатации
27
Приложение Б
Чертеж взрывоопасных зон колонок
28
Приложение В
Общие виды топливораздаточных колонок с присоединительными размерами
30
Приложение Г
Электрическая схема подключения колонок
31
Приложение Д
Порядок пломбирования отдельных элементов колонок
32
Лист регистрации изменений
33
Введение
Настоящее руководство по эксплуатации (РЭ) колонок топливораздаточных для жидкого топлива и сжиженного газа «ШЕЛЬФ …» Х КЕД - Х-0,25-Х-Х …/LPG (далее по тексту - колонки) предназначено для изучения конструкции, технических характеристик, условий эксплуатации, принципа действия, содержит данные о монтаже, правильной и безопасной эксплуатации, текущем ремонте, хранении, транспортировке.
РЭ является документом, удостоверяющим гарантированные предприятием-изготовителем основные параметры и технические характеристики колонок.
Установка, монтаж, техническое обслуживание и текущий ремонт должны осуществляться лицами, имеющими специальную подготовку по техническому обслуживанию колонок.
В связи с постоянной работой по совершенствованию колонок в их конструкцию могут быть внесены изменения, не отражённые в настоящем РЭ и не влияющие на их монтаж и эксплуатацию.
Перечень нормативных документов, на которые имеются ссылки в настоящем РЭ, приведены в приложении А.
1 ОПИСАНИЕ И РАБОТА
1.1 Описание колонок
1.1.1 Назначение колонок.
Колонки предназначены для измерения объёма жидкого топлива (бензин, керосин и дизтопливо) вязкостью от 0,55 до 40 мм2/с (от 0,55 до 40 сСт) и сжиженного углеводородного газа ПБА (пропан-бутан автомобильный) ГОСТ 27578 (относительно жидкого топлива и сжиженного газа по тексту используется термин «топливо»), вычисления стоимости выданной дозы по предварительно заданной цене и суммарного учета объема выданного топлива, при его выдаче в топливные баки транспортных средств, а также в тару потребителя.
1.1.2 В части воздействия климатических факторов внешней среды колонки изготавливаются в исполнении У категории 1 по ГОСТ 15150.
1.1.3 Структура условного обозначения колонок:
«ШЕЛЬФ …» Х КЕД - Х-0,25-Х-Х …/LPG
Гидравлический блок для сжиженного газа, с номинальным объемным рас ходом 50 л/мин
Наличие системы отведения паров из зоны заправки
ВР – наличие системы отведения паров;
Без обозначения – отсутствие системы
Количество видов жидкого топлива, которое отпускается колонкой
от 1 до 5
Размещение насосов
1 – насосные моноблоки установлены в колонках
2 – колонки без насосных моноблоков
Основная относительная погрешность колонки при измерении жидкого топлива
Номинальный объемный расход жидкого топлива.
Для колонок, которые имеют модули с разным объемным расходом, указывают 50/90 и т. д.
Колонка с электрическим приводом и дистанционным управлением
Количество потребителей, которые могут обслуживаться одновременно 1 или 2
Модификация колонок 200, 300
Торговая марка производителя
1.2 Основные технические характеристики
Таблица 1.
Основные параметры и размеры
Нормированные значения для исполнений
«ШЕЛЬФ …» 1(2)КЕД 50…/LPG
«ШЕЛЬФ …» 1(2)КЕД 90…/LPG
1. Номинальный объемный расход топлива, л/мин.
при выдаче жидкого топлива
при выдаче сжиженного газа
50*
50
90
50
2. Минимальный объемный расход топлива, л/мин.
при выдаче жидкого топлива
при выдаче сжиженного газа
5
5
10
5
3. Минимальный объем разовой дозы топлива, которое выдается, л
при выдаче жидкого топлива
при выдаче сжиженного газа
2
5
10
5
4. Емкость отсчетных устройств при индикации, не менее:
объема разовой дозы, л.
цены топлива, грн.
стоимости отпущенной дозы топлива, грн.
суммарного объема отпущенного топлива, л.
9999,99
9999,99
9999,99
9
5. Дискретность отсчетного устройства при индикации:
объема разовой дозы, л.
цены топлива, грн.
стоимости отпущенной дозы топлива, грн.
Суммарного объема отпущенного топлива, л.
0,01
0,01
0,01
1,00
6. Количество раздаточных рукавов, шт.
для жидкого топлива
для сжиженного газа
от 1 до 10
от 1 до 2
7. Длина раздаточного рукава, м, не менее
для жидкого топлива
для сжиженного газа
3,7
3,7
3,7
3,7
8. Максимальное рабочее давление в гидросистеме сжиженного газа, Мпа.
1,6
Пределы основной допускаемой погрешности колонок при измерении:
- минимальной дозы выдачи топлива – ± 0,5%;
- других доз топлива – ± 0,25%.
Условия эксплуатации:
- температура окружающего воздуха – от минус 35 до +45 °С;
- относительная влажность воздуха – до 100 % при температуре 25 °С;
- питание от сети переменного тока номинальным напряжением 220/380 В, номинальной частотой 50 Гц.
Условный проход всасывающего трубопровода:
- для жидкого топлива – 40 мм;
- для сжиженного газа – 25 мм
Диаметр условного прохода раздаточного рукава:
- для жидкого топлива – 20 мм;
- для сжиженного газа – 18 мм
Тонкость фильтрования:
- для жидкого топлива – не более 60 мк;
- для сжиженного газа – не более 40 мк
Средняя наработка на отказ – не менее 7 000 часов.
Полный средний срок службы – не менее 12 лет
Присоединительные размеры колонок приведены в приложении В.
Максимальная мощность ТРК, не более 1,630 кВт
Максимальная мощность ТРК без насосов, не более 0,13 кВт
1.3 Состав изделия
1.3.1 Перечень составных частей некоторых колонок приведён в таблице 2.
Таблица 2
Модификация колонок
Наименование составных частей
«Шельф …»1(2) КЕД
50-0,25-1-1…/LPG
«Шельф …» 1(2) КЕД
50-0,25-1-2…/LPG
«Шельф …» 1(2) КЕД 50-0,25-1-3…/LPG
«Шельф …» 1(2) КЕД 50-0,25-1-4…/LPG
«Шельф …» 1(2) КЕД 50-0,25-1-5…/LPG
Количество составных частей
Электродвигатель
1 (1)
2 (2)
3 (3)
4 (4)
5 (5)
Моноблок
1 (1)
2 (2)
3 (3)
4 (4)
5 (5)
Измеритель объема
1 (2)/1 (2)
2 (4)/1 (2)
3 (6)/1 (2)
4 (8)/1 (2)
5 (10)/1 (2)
Электронно-счетный блок
1 (1)
1 (1)
1 (1)
1 (1)
1 (1)
Устройство индикации
2 (2)
2 (2)
2 (2)
2 (2)
2 (2)
Коробка распределительная
1 (1)
1 (1)
1 (1)
1 (1)
1 (1)
Датчик импульсов
1 (2)/1 (2)
2 (4)/1 (2)
3 (6)/1 (2)
4 (8)/1 (2)
5 (10)/1 (2)
Датчик положения
1 (2)/1 (2)
2 (4)/1 (2)
3 (6)/1 (2)
4 (8)/1 (2)
5 (10)/1 (2)
Шланг раздаточный с краном
2 (2)/1 (2)
4 (4)/1 (2)
6 (6)/1 (2)
8 (8)/1 (2)
10 (10)/1 (2)
Клапан электромагнитный
2 (2)/1 (2)
4 (4)/1 (2)
6 (6)/1 (2)
8 (8)/1 (2)
10 (10)/1 (2)
1.4 Устройство и работа
1.4.1 Колонка состоит из следующих элементов:
- нижний корпус с гидравлической и электрической частью;
- верхний корпус с электронной частью и табло (головка электронная);
- шлангоприёмник;
- раздаточный шланг с раздаточным краном;
- рама колонки
- газовый модуль.
1.4.2 На основной раме находится гидравлическая и электрическая часть, которая в свою очередь состоит, в зависимости от модификации и исполнения:
- от 1 до 5 насосов, центробежных, с лопастными элементами (самовсасывающим) с встроенным фильтром, обратным клапаном и отделителем газа;
- от 1 до 5 трёхфазных электродвигателей;
- от 1 до 10 четырёхпоршневых измерителей объёма.
Возможна комплектация ТРК без насосов, для работы с выносными насосами.
1.4.3 Шланговая часть состоит из от 1 до 10 раздаточных шлангов с автоматическими раздаточными кранами.
1.4.4 Газовый модуль состоит из:
- четырехпоршневого измерителя объема;
- отделителя газовой фазы;
- датчика импульсов;
- дифференциального клапана;
- указателя наличия газовой фазы в выдаваемом топливе;
- манометров для контроля давления топлива в гидросистеме колонки;
- клапанов снижения расхода и прекращения выдачи топлива;
- предохранительных клапанов;
- устройства для подключения эталонного мерника (эталонного проточного измерителя объема сжиженного газа) при контроле выдаваемой дозы или поверке;
- устройства для заземления колонки и пр.
1.4.5 Электронная часть состоит из:
- электронно-счетного блока – для обработки импульсов поступающих от датчиков импульсов, вычисления объема отпущенного топлива и его стоимости, выдачи команд на управление колонкой, индикации отпущенного объема топлива, цены и стоимости;
- узла управления – для управления двигателем насоса, вентилями, сигнализацией, деблокирования и других функций управления.
1.4.6 Несущая конструкция колонки состоит из рамы, сваренной и свинченной из угловой стали.
Корпус колонки состоит из вертикальных стоек, и боковых дверей. Все двери оснащены замками.
1.4.7 Моноблок и измеритель объёма соединены между собой медным трубопроводом. Узлы электрооборудования подсоединяются к распределительной коробке с помощью кабелей, которые прокладываются и закрепляются на каркасе колонки. Подача электроэнергии на каждую колонку должна осуществляться через отдельный выключатель в силовом шкафу.
1.4.8 Принцип действия колонки следующий.
После снятия раздаточного крана из держателя вмонтированный контакт датчика положения подает сигнал электронному блоку, который по команде оператора включает электродвигатель насоса.
Электродвигатель приводит в действие насос, служащий для подачи жидкого топлива. Вал четырёхпоршневого измерителя объёма соединён с электронным датчиком импульсов, который передаёт импульсы измеряемой величины к электронно-счетному блоку.
Насос засасывает топливо из ёмкости и подаёт его через фильтр в отделитель газов. После того, как возможно имевшиеся примеси газа и воздуха отделены, топливо под давлением подаётся в четырёхпоршневой измеритель объёма и через систему труб в раздаточный шланг. На конце раздаточного шланга находится раздаточный кран, в котором при помощи приводимого вручную рычага скорость потока топлива может быть изменена от 0 до максимального значения.
Если раздаточный кран будет подвешен в держатель, то встроенный там контакт датчика положения выключает электродвигатель насоса и заканчивается, таким образом, процесс заправки.
Связь между измерителем объёма и счётным устройством производится муфтой специальной.
Электронно-счетное устройство отсчитывает отмеренное количество жидкого топлива и подаёт сигнал на пульт дистанционного управления. По окончании заданной дозы отпуска жидкого топлива, колонка автоматически отключается.
Сжиженный газ из резервуара (газгольдера), к которому подсоединена колонка, подводится к патрубку жидкой фазы насосом и через электромагнитный клапан, фильтр и сепаратор поступает в четырехпоршневой измеритель объема. Затем через дифференциальный клапан, указатель наличия газовой фазы в выдаваемом топливе, разрывную муфту и раздаточный рукав со струбциной поступает в баллон транспортного средства.
Газовая фаза после сепаратора поступает обратно в резервуар.
Сжиженный газ приводит поршни измерителя объема в возвратно-поступательное движение, которое превращается кулисным механизмом во вращательное движение вала измерителя объема.
Угол поворота этого вала, пропорционален объему сжиженного газа, прошедшего через измеритель объема, превращается преобразователем импульсов в последовательность электрических импульсов. Импульсные сигналы поступают в электронный блок, где превращается в кодовые сигналы, которые обрабатываются процессором по заданному алгоритму.
Результаты измерений объема сжиженного газа и результаты вычисления стоимости выводятся на цифровые отсчетные устройства (LCD (жидкокристаллический) – или СДИ (светодиодная индикация) – дисплей) при предварительно заданной цене 1-го литра сжиженного газа, которая также индицируется на дисплее.
Газовые модули могут быть оборудованы предохранительными клапанами, которые защищают колонку от повышения внутреннего давления и обеспечивают нормальную работу колонки при температуре до +55оС.
Управление пуском и остановкой подачи сжиженного газа в колонку потребитель осуществляет с помощью поворотной кнопки, для контроля положения которой используется датчик ДПВ-1У2. Кнопка может быть переведена из одного положения в другое путем одновременного нажатия и поворота.
Все ТРК в зависимости от их модификации могут быть оборудованы механической, электронной и комбинированной (механическая и электронная) калибровками, которые позволяют регулировать дозу в пределах 15%. В случае наличия электронной калибровки доступ к ней возможен согласно инструкции. Количество калибровок сохраняется в памяти ТРК и выводится на индикатор при каждой калибровке. Подробнее смотрите в инструкции по эксплуатации электроники ТРК.
Дополнительно ТРК могут комплектоваться системой рекуперации паров топлива.
1.5 Указания по поверке
1.5.1 При вводе в эксплуатацию, а также периодически в процессе эксплуатации колонки должны подвергаться поверке по методике МИ 1864-88.
1.5.2 Для контроля погрешности колонок при регулировке дозы, поверке или при передаче смены применяются эталонные мерники 2-го разряда по ГОСТ 8.400-80.
1.5.3 Для контроля, регулирования (настройки), выполнения работ по техническому обслуживанию и текущему ремонту колонок и её составных частей специальных способов измерений, инструмента и приспособлений не требуется.
1.6 Маркировка и пломбирование
1.6.1 На каркасе колонки закреплена маркировочная табличка, содержащая следующую информацию:
- товарный знак предприятия-изготовителя;
- условное обозначение колонки согласно технических условий;
- порядковый номер по системе нумерации предприятия-изготовителя;
- номинальное значение напряжение питающей сети;
- знак утверждения типа по ДСТУ 3400;
- год и месяц выпуска.
1.6.2 На отсчётном устройстве нанесены название или товарный знак производителя, единица измерения объема топлива, единицы цены и стоимости и основная погрешность.
1.6.3 Маркировка транспортной тары содержит сведения:
- условное обозначение колонки;
- манипуляционные знаки №1, №11, основные, дополнительные и информационные надписи по ГОСТ 14192.
1.6.4 Конструкция сборочных единиц, влияющих на метрологические показатели, предусматривает их пломбирование представителем Госстандарта после проверки метрологических характеристик на соответствие их техническим условиям на колонки. Пломбированию подлежат измеритель объёма, датчик импульсов и электронный блок.
Порядок пломбирования приведен в
Запрещается нарушать указанную пломбировку во всё время эксплуатации колонки.
Допускается снаружи колонку закрывать на замок, ключ помещают в замок раздаточного крана, прикручивают проволокой к колонке и пломбируют представителем ОТК завода-изготовителя.
1.7 Упаковка
1.7.1 Колонки упаковываются в полиэтиленовую пленку. Допускается использование гофрокартона с закреплением колонки на деревянном поддоне.
Упаковка исключает перемещение колонки внутри тары и обеспечивает её сохранность при погрузке, разгрузке и транспортировании. Колонки крепятся к основанию тары с помощью болтов.
Положение колонки в таре при хранении и транспортировании – вертикальное.
1.7.2 Колонки перед упаковкой подвергают консервации.
Внутренние полости узлов гидросистемы колонки законсервированы поверочной жидкостью (керосин, дизтопливо) с добавкой АКОР-1 ГОСТ 15171 в количестве 10-15%.
1.7.3 Сведения о консервировании указаны в формуляре раздел 7, таблица 2.
1.7.4 Эксплуатационная документация размещена внутри колонки или внутри упаковки.
1.7.5 Сведения об упаковке указаны в формуляре колонки.
1.8 Описание и работа основных частей изделия
1.8.1 Под действием разрежения, создаваемого насосом моноблока, жидкое топливо из резервуара поступает в насос. Насос подает топливо через газоотделитель в измеритель объёма. Отмеренное измерителем объёма топливо направляется через клапан долива, индикатор, и раздаточный кран в бак потребителя.
Ротор насоса моноблока приводится во вращение электродвигателем через клиноременную передачу.
Вращательное движение кривошип измерителя объёма передаёт на датчик импульсов, из которого импульсы подаются в электронно-счетный блок.
Моноблок состоит из следующих основных составных частей:
- фильтра тонкой очистки;
- ротора насоса;
- клапана редукционного;
- газоотделителя;
- поплавка;
- клапана отсечного;
- клапана предохранительного;
- клапана обратного.
Фильтр предназначен для очистки жидкого топлива от частиц механических примесей, размер которых превышает 60 мкм. Фильтрующий элемент выполнен из бронзовой сетки.
Ротор насоса при вращении за счёт перемещающихся в нём лопастей перекачивает из всасывающей полости в нагнетательную.
Клапаном редукционным регулируется давление в нагнетательной полости насоса и расход колонки. При повороте регулировочного винта по часовой стрелке давление в нагнетательной полости увеличивается, против часовой стрелки – уменьшается. При закрытом раздаточном кране редукционный клапан обеспечивает перепуск жидкого топлива из нагнетательной полости во всасывающую полость насоса.
Газоотделитель служит для отделения воздуха и паров топлива. При поступлении жидкого топлива в газоотделитель скорость потока резко снижается из-за увеличения проходного сечения, в результате чего из топлива выделяются воздух и пары, которые через отверстие отводятся в поплавковую камеру.
Пары и воздух из поплавковой камеры через трубку выходят в атмосферу, а топливо, по мере накопления, поднимает поплавок, который открывает отверстие, через которое топливо уходит в фильтр.
Клапан отсечной предназначен для удержания жидкого топлива в раздаточной системе (измеритель объёма топлива, клапан долива и напорный рукав) при неработающей колонке.
Клапан предохранительный сбрасывает избыточное давление топлива из раздаточной системы в том случае, когда при неработающей колонке и закрытом отсечном клапане в раздаточной системе под действием атмосферного нагрева создаётся избыточное давление топлива, превышающее давление топлива в раздаточной системе при работающей колонке.
1.8.2 Измеритель объёма предназначен для измерения объёма жидкого топлива, проходящего через одну раздаточную линию колонки.
Он представляет собой четырёхцилиндровый гидравлический измеритель, цилиндры которого отлиты в одном корпусе.
В цилиндрах размещены шатуны с поршнями и уплотняющими манжетами.
Поток жидкого топлива с помощью бегунка направляется поочерёдно в каждый из цилиндров, перемещая поршни из одного крайнего положения в другое. Поступательное движение шатунов с поршнями преобразуется во вращательное движение кривошипа.
За один оборот кривошипа через измерительные цилиндры проходит объём топлива, равный объёму четырёх цилиндров. Рабочий объём каждого цилиндра равен 0,125 л., а выдаваемый объём жидкого топлива за один полный оборот кривошипа равен 0,500 л.
Вращательное движение кривошипа передаётся на оптоэлектрический датчик импульсов.
Одна пара поршней имеет возможность некоторого свободного хода за счёт зазора между кривошипом и калибровочным шатуном. Ход этих поршней регулируется винтами лимба, благодаря чему имеется возможность изменять объём топлива.
В лимбе имеется 21 отверстие, в одно из которых вставляется блокировочный стержень, а конец его выходит из двух отверстий на регулировочной крышке. Такая конструкция позволяет перемещать лимб на половину шага между отверстиями лимба.
Поворот лимба по часовой стрелке уменьшает объём выдачи, а против часовой стрелки – увеличивает объём выдачи.
При повороте лимба на одно отверстие объём выдаваемого топлива изменяется примерно на 4 кубических см при выдаче 10-литровой дозы.
После проведения регулировки стержень пломбируется через находящееся в нем отверстие.
1.8.3 Клапан долива предназначен для снижения расхода жидкого топлива перед окончанием выдачи дозы.
При выключенной колонке мембрана под действием пружины закрывает проход топлива к раздаточному крану.
При пуске колонки на верхнюю и нижнюю катушки подаётся напряжение, верхний и нижний сердечники перемещаются вверх. Под действием давления топлива поднимается мембрана и топливо из измерителя объема перетекает через трубопровод в раздаточный шланг, обеспечивая нормальный расход топлива.
Перед окончанием выдачи топлива выключается напряжение на нижнюю катушку, нижний сердечник под действием пружины опускается вниз. Давление возрастает, вследствие чего мембрана опускается и закрывает проход, через который шел основной поток топлива. Теперь жидкое топливо через отверстие в мембране поступает в трубопровод, обеспечивая малый расход топлива.
После прекращения выдачи дозы жидкого топлива выключается напряжение на верхнюю катушку, сердечник верхний под действием пружины опускается вниз. Поступление топлива полностью прекращается.
1.8.4 Сепаратор предназначен для отделения паровой фазы и возврата ее в емкость с сжиженным газом. Газ, поступая в нижнюю часть сепаратора расширяется, паровая фаза поднимается в верхнюю часть, к отводящему трубопроводу. Жидкая фаза проходит через фильтр и поступает в 4-х поршневой объемомер. Устройство и работа объемомера для сжиженного газа аналогична объемомеру для жидкого топлива.
Из объемомера жидкая фаза попадает в дифференциальный клапан, который предназначен для предотвращения попадания паровой фазы в заправляемую емкость. При попадании в клапан паровой фазы пружина и давление паровой фазы перемещают поршень, который блокирует поступление газа к электромагнитному клапану. Работа и назначение электромагнитного клапана для сжиженного газа аналогична работе электромагнитного клапана для жидкого топлива.
Заправочная струбцина предназначена для подачи сжиженного газа в заправочную емкость.
1.8.5 Работа газового модуля начинается с проверки исправности заземления и включения автомата подачи напряжения на колонку и электродвигатель насоса подачи топлива в колонку.
На пульт дистанционного управления задается заказанная доза и заправочная струбцина снимается с колонки и устанавливается на входной штуцер топливного баллона автотранспортного средства.
Поворотная кнопка на газовом модуле приводится в положение пуска и производится заправка баллона.
Во время заправки необходимо следить за показаниями манометров для измерения давления топлива в гидросистеме колонки и за стеклянным смотровым окном для контроля наличия газовой фазы в отпускаемой дозе.
После остановки двигателя насоса струбцина снимается с топливного баллона автотранспортного средства и устанавливается в посадочное гнездо газового модуля.
После окончания заправки необходимо проследить, чтобы показания на отсчетном устройстве колонки об объеме выданной дозы и ее стоимости сохранялись до снятия струбцины для отпуска следующей дозы.
1.8.6 Кран раздаточный с раздаточным шлангом предназначен для подачи топлива в заправочные ёмкости транспортных средств.
Раздаточный кран (пистолет) – это автоматический пистолет.
Правильное рабочее положение пистолета – выпускное отверстие направлено вниз. Пистолет – это выпускной клапан со спусковым рычагом, позволяющим вручную закрывать и открывать клапан, отсекающий протекание топлива. В пистолете установлен автоматический обратный клапан, открываемый сверхдавлением, предохраняющий от вытекания топлива из системы при открытом отсекающим клапане (вручную) и неработающей колонке.
Автоматические функции раздаточного крана это:
- автоматическая блокировка вытекающего топлива при погружении наконечника пистолета в топливо, что предохраняет от перелива топливных баков транспортных средств (OPV, ZVA);
- автоматическая блокировка вытекания топлива при неправильном положении пистолета (наконечник направлен вверх) (ZVA).
Раздаточный шланг состоит из закреплённого с помощью ткани электропроводящего резинового шланга, и в связи с этим раздаточный кран не требует дополнительного заземления. В случае замены шланга на другой, не имеющий внутреннего антистатического слоя, раздаточный кран необходимо заземлить.
Коробка распределительная служит для соединения и разветвления силовых кабелей и цепей переменного тока согласно «Правилам эксплуатации электроустановок – потребителей» (ПЭП).
Устройство и другие технические данные приведены в эксплуатационной документации на коробку.
1.8.7 Головка электронная.
Головка электронная состоит из шкафа, электронно-счётного блока и двух панелей (дверец). Корпус головки обеспечивает степень защиты от внешних воздействий IP54 согласно ГОСТ 14254, и расположен за пределами взрывоопасных зон (см. Приложение Б).
Электронно-счётный блок колонки состоит из следующих модулей:
- микроконтроллерного модуля управления;
- клавиатурного модуля;
- силового модуля;
- двух ЖКИ (жидкокристаллических индикаторных) модулей отображения информации.
Все межблочные соединения выполнены при помощи разъёмов с защёлками.
Микроконтроллерный блок управления обеспечивает полное управление всей колонкой и отслеживает состояние всех питающих силовых цепей. При падении любого (или всех) фазных питающих напряжений ниже 160 В относительно нейтрали, микроконтроллерный блок управления принимает сигнал с силового блока об аварийном отключении энергии и принудительно прекращает работу топливных агрегатов, сохраняя при этом текущие наработанные показания в энергозависимой памяти.
2 ВЗРЫВОЗАЩИЩЕННОЕ ЭЛЕКТРООБОРУДОВАНИЕ КОЛОНОК
2.1 Взрывоопасные условия и перечень взрывозащищенного электрооборудования
Внутреннее пространство колонок и внешнее пространство вокруг колонок являются взрывоопасными зонами, классы и размеры которых приведены в приложении Б.
В состав колонок входит взрывозащищенное электрооборудование, соответствующее взрывоопасным условиям эксплуатации, а именно: взрывоопасная зона класса 1 согласно главе 4 НПАОП 40.1-1.32-01 «Правил устройства электроустановок. Электрооборудование специальных установок», в которых возможно образование взрывоопасных смесей категории IIA, IIВ и группы Т1, Т2, Т3 согласно ГОСТ 12.1.011.
Перечень взрывозащищенного электрооборудования, применяемого в составе колонок, приведен в таблице 3.
Таблица 3 – Перечень взрывозащищенного электрооборудования, входящего в состав колонок "ШЕЛЬФ ..." Х КЕД-Х-0,25-Х-Х.../LPG
№
Наименование электрооборудования
Обозначение типа
Маркировка взрывозащиты по ГОСТ 12.2.020
Фирма-изготовитель
1
Электродвигатель
YBJY80M2-4
1ЕхdIIBT4 X
Shanghai Hengde Explosion Proof Motor Co., LTD (КНР)
2
Коробка распределительная
КРВ-6
1ЕхеIIT5 X
ООО „НПК „Шельф”,
(г. Дебальцево, Украина)
3
Датчик импульсов
ДИФВ-2
1ExdIIBT5
ООО „НПК „Шельф”,
(г. Дебальцево, Украина)
4
Соленоид электромагнитного клапана
EM5X
1ExsIIT3 Х
Asco (Голландия)
5
Клапаны электромагнитные
dSF-20, dSF-25
1ExdIIBT4
Wenzhoushi Pneumatic Elements Factory (КНР)
6
Датчик положения
ДПВ-1
1ExsIIT6 X
ООО „НПК „Шельф”,
(г. Дебальцево, Украина)
2.2 Обеспечение взрывозащищённости электрооборудования колонок
2.2.1 Электродвигатели YBJY80M2-4.
Электродвигатели имеют уровень взрывозащиты «взрывобезопасный» (1) по ГОСТ 12.2.020 с видом взрывозащиты «взрывонепроницаемая оболочка» по ГОСТ 22782.6 и маркировку взрывозащиты 1ExdIIBT4 X.
Уровень и вид взрывозащиты электродвигателей обеспечиваются следующими мерами и средствами:
а) статор и вводное отделение заключены во взрывонепроницаемые оболочки по ГОСТ 22782.6, которые выдерживают давление взрыва и исключают передачу взрыва в окружающую взрывоопасную среду, имеют высокую степень механической прочности по ГОСТ 22782.0;
б) степень защиты оболочек электродвигателя IP54 по ГОСТ 14254;
в) взрывонепроницаемость оболочек обеспечивается применением щелевой взрывозащиты (параметры взрывонепроницаемых соединений приведены в таблице 4);
г) на предприятии-изготовителе прочность каждой взрывонепроницаемой оболочки проверяется испытательным давлением;
д) температура нагрева наружных поверхностей оболочек не превышает допустимой по ГОСТ 22782.0 для электрооборудования температурного класса Т4 (135оС) с учётом максимальной температуры окружающей среды;
е) наличием на корпусе электродвигателя маркировки взрывозащиты 1ExdIIBT4 X;
ж) выполнением особых условий монтажа и/или эксплуатации, о которых указывает знак «Х» в маркировке взрывозащиты: «В виду того, что электродвигатель выпускается с присоединенным отрезком кабеля, подключение кабеля к электрической сети должно производиться через взрывозащищенные соединительные коробки, исполнение по взрывозащите которых соответствует классу взрывоопасной зоны, или за пределами взрывоопасной зоны. Не допускается также замена или демонтаж кабеля».
Таблица 4 – Параметры взрывонепроницаемых соединений электродвигателя YBJY80M2-4
№
Наименование сопрягаемых деталей
Вид соединения
Параметры соединений
1
Статор – передний подшипниковый щит
цилиндрическое
ширина щели Wd=0,2 мм (max)
длина щели L1=12,5 мм (min)
2
Вал - передний подшипниковый щит
цилиндрическое
ширина щели Wd=0,3 мм (max)
длина щели L1=12,5 мм (min)
3
Статор – задний подшипниковый щит
цилиндрическое
ширина щели Wd=0,2 мм (max)
длина щели L1=12,5 мм (min)
4
Вал - задний подшипниковый щит
цилиндрическое
ширина щели Wd=0,3 мм (max)
длина щели L1=12,5 мм (min)
5
Статор – панель с кабельным вводом
плоское
ширина щели W1=0,2 мм (max)
длина щели L1=12,5 мм (min)
длина щели до отверстия L2=8,0 мм (min)
2.2.2 Коробки распределительные КРВ-6 (ТУ У 31.)
Коробки имеют уровень взрывозащиты «взрывобезопасный» (1) по ГОСТ 12.2.020 с видом взрывозащиты «защита вида «е» по ГОСТ 22782.7 и маркировку взрывозащиты 1ExеIIT5 X.
Требования к эксплуатации коробок КРВ-6 приведены в руководстве по эксплуатации ШЕЛ 685554.001 РЭ.
Взрывозащищённость коробки достигается следующими мерами и средствами:
а) заключением неизолированных токоведущих частей в оболочку, имеющую высокую степень механической прочности по ГОСТ 22782.0 и степень защиты IP54 по ГОСТ 14254. Степень защиты обеспечивается применением уплотнительных прокладок в соединениях;
б) конструкцией кабельных вводных устройств, обеспечивающих надёжное уплотнение подводимых кабелей. Невозможность выдёргивания кабеля обеспечена применением крепежных устройств в системе его прокладки.
в) конструкцией электрических контактных зажимов, которые соответствуют ГОСТ 10434 и ГОСТ 22782.7: применяются безрезьбовые контактные зажимы, исключается передача контактного давления через электроизоляционный материал, применяется трекингостойкий материал для изоляционных частей, пути утечки и электрические зазоры превышают нормируемые значения в соответствии с группой трекингостойкости изоляционного материала;
г) ограничением температуры внутренних частей и наружной поверхности оболочки коробки, которая не превышает 1000С, допускаемую по ГОСТ 22782.0 для электрооборудования температурного класса Т5 с учетом максимальной температуры окружающей среды;
д) наличием на крышке коробки маркировки взрывозащиты 1ExeIIT5 X;
е) выполнением особых условий монтажа и/или эксплуатации, о которых указывает знак «Х» в маркировке взрывозащиты.
Особые условия монтажа и/или эксплуатации заключаются в следующем:
- в системе прокладки кабелей, вводимых в коробку КРВ-6, должны быть предусмотрены фиксирующие устройства для разгрузки жил кабеля от растягивающих и скручивающих усилий;
- неиспользуемые кабельные вводы должны быть надежно заглушены с помощью заглушек (металлических дисков соответствующего диаметра), входящих в комплект коробок.
2.2.3 Датчики импульсов ДИФВ-2 (ШЕЛ 30.00.00.000 ТУ)
Датчики имеют уровень взрывозащиты «взрывобезопасный» (1) по ГОСТ 12.2.020 с видом взрывозащиты «взрывонепроницаемая оболочка» по ГОСТ 22782.6 и маркировку взрывозащиты 1ExdIIBT5.
Уровень и вид взрывозащиты датчиков обеспечиваются следующими мерами и средствами:
а) все электрические части датчиков заключены во взрывонепроницаемую оболочку по ГОСТ 22782.6, которая выдерживает давление взрыва и исключает передачу взрыва в окружающую взрывоопасную среду, имеют высокую степень механической прочности по ГОСТ 22782.0;
б) степень защиты от внешних воздействий по ГОСТ 14254 оболочки датчиков составляет не менее IP54;
в) взрывонепроницаемость оболочек обеспечивается применением щелевой взрывозащиты (параметры взрывонепроницаемых соединений приведены в таблице 5);
г) взрывонепроницаемость ввода кабеля достигается путем его уплотнения эластичным резиновым кольцом, которое предназначено для кабеля диаметром не менее 8 мм;
д) на предприятии-изготовителе прочность взрывонепроницаемой оболочки проверена типовыми испытаниями на взрывоустойчивость четырехкратным значением давления взрыва;
е) температура нагрева наружных поверхностей оболочек не превышает допустимой по ГОСТ 22782.0 для электрооборудования температурного класса Т5 (100оС) с учётом максимальной температуры окружающей среды;
ж) на корпусе датчиков присутствует табличка с предупредительной надписью: «Открывать, отключив от сети» и маркировкой взрывозащиты 1ExdIIBT5.
Таблица 5 – Параметры взрывонепроницаемых соединений датчика импульсов ДИФВ-2
№
Наименование сопрягаемых деталей
Вид соединения
Параметры соединений
1
Корпус – крышка
цилиндрическое неподвижное
ширина щели Wd=0,2 мм (max)
длина щели L1=6,0 мм (min)
2
Корпус – втулка валика
прессовое цилиндрическое
длина щели L1=6,0 мм (min)
3
Валик - втулка
цилиндрическое подвижное
ширина щели Wd=0,6 мм (max)
длина щели L1=6,0 мм (min)
2.2.4 Соленоид электромагнитного клапана EM5X.
Электромагнит имеет уровень взрывозащиты «взрывобезопасный» (1) по ГОСТ 12.2.020, обеспечиваемый специальным видом взрывозащиты (S) по ГОСТ 22782.3 и маркировку взрывозащиты 1ExsIIT3 Х.
Взрывозащищённость электромагнита достигается:
б) заливкой в пластиковом корпусе электрических частей (обмотки катушки и разделки подводимого кабеля) герметиком, минимальная толщина изолирующего слоя герметика в корпусе –3 мм;
в) степенью защиты не ниже IP67 по ГОСТ 14254;
г) наличием внутреннего и наружного заземляющих зажимов и знака заземления по ГОСТ 21130;
д) максимальной температурой нагрева наружной поверхности корпуса класса электрооборудования Т3 (200 °С) и рабочую температуру герметика;
е) установкой в электрической схеме приводов, где используется электромагнит, защиты его от перегруза и токов короткого замыкания.
ж) наличием на корпусе соленоидов маркировки взрывозащиты 1ExsIIT3 Х;
з) выполнением особых условий монтажа и/или эксплуатации, о которых указывает знак «Х» в маркировке взрывозащиты.
Особые условия монтажа и/или эксплуатации заключаются в следующем:
- электрические цепи питания соленоидов электромагнитных клапанов должны быть оснащены предохранителями с плавкими вставками на ток, не превышающий трехкратного значения номинального тока, указанного на паспортных табличках. Разрывная мощность применяемых предохранителей должна быть больше или равна максимального ожидаемого тока короткого замыкания питающей сети;
- соленоиды изготавливаются с постоянно присоединенным кабелем, электрическое подключение которого должно выполняться в соответствующей взрывозащищенной соединительной коробке или за пределами взрывоопасной зоны;
- для предотвращения образования электростатического заряда на поверхности пластикового корпуса соленоида, чистку соленоида выполнять только влажной ветошью.
2.2.5 Клапаны электромагнитные dSF-20, dSF-25
Клапаны имеют уровень взрывозащиты «взрывобезопасный» (1) по ГОСТ 12.2.020 с видом взрывозащиты «взрывонепроницаемая оболочка» по ГОСТ 22782.6 и маркировку взрывозащиты 1ExdIIBT4.
Уровень и вид взрывозащиты клапанов обеспечиваются следующими мерами и средствами:
а) все электрические части клапанов заключены во взрывонепроницаемую оболочку по ГОСТ 22782.6, которая выдерживает давление взрыва и исключает передачу взрыва в окружающую взрывоопасную среду, и имеет высокую степень механической прочности по ГОСТ 22782.0;
б) степень защиты от внешних воздействий оболочек - IP54 по ГОСТ 14254;
в) взрывонепроницаемость оболочек обеспечивается применением щелевой взрывозащиты;
г) на предприятии-изготовителе прочность каждой взрывонепроницаемой оболочки проверяется испытательным давлением;
д) температура нагрева наружных поверхностей оболочек не превышает допустимой по ГОСТ 22782.0 для электрооборудования температурного класса Т4 (135оС) с учётом максимальной температуры окружающей среды.
Таблица 6 – Параметры взрывонепроницаемых соединений клапанов электромагнитных dSF-20, dSF-25
№
Наименование сопрягаемых деталей
Вид соединения
Параметры соединений
1
Корпус – основание
цилиндрическое
ширина щели Wd=0,2 мм (max)
длина щели L1=6,0 мм (min)
2.2.6 Датчики положения ДПВ-1 (ШЕЛ 20.00.00.000 ТУ)
Датчики положения имеют уровень взрывозащиты «взрывобезопасный» (1) по ГОСТ 12.2.020 с видом взрывозащиты «специальный» (S) по ГОСТ 22782.3 и маркировку взрывозащиты 1ExsIIT6 X.
Требования к эксплуатации датчиков ДПВ-1 приведены в руководстве по эксплуатации ШЕЛ 20.00.00.000 РЭ.
Уровень и вид взрывозащиты датчика достигаются следующими мерами и средствами:
а) в электрической схеме датчика отсутствуют элементы с нормально искрящими частями;
б) подпайка проводов питающего кабеля осуществляется припоем с содержанием олова менее 40%;
в) каждый проводник в отдельности и все вместе помещены в изоляционные термоусаживающиеся трубки;
г) элемент Холла с подпаянными проводниками кабеля помещен в латунный кожух и залит в нем эпоксидным компаундом НТ-6302, заливка без трещин и воздушных пузырей;
д) диапазон рабочих температур эпоксидного компаунда НТ-6302 производства фирмы Shanghai Huitian New Chemical Material Co., Ltd. (КНР) составляет от минус 400С до +900С;
е) толщина заливки между внутренними частями датчика и: фторопластовым диском (толщиной более 1 мм) – более 1 мм, металлическим корпусом - более 1 мм, наружной поверхностью заливки – более 3 мм;
ж) степень защиты датчика от внешних воздействий окружающей среды не ниже IP65 по ГОСТ 14254 обеспечивается заливкой герметикой;
з) температура нагрева наружных поверхностей датчика не превышает допустимой ГОСТ 22782.0-84 для температурного класса электрооборудования Т6 (85°С) и рабочую температуру примененного герметика с учетом максимальной температуры окружающей среды;
и) на табличке, прикрепленной к кабелю в непосредственной близости от корпуса датчика, имеется маркировка взрывозащиты 1ExsIIТ6 X;
к) выполнение особых условий монтажа и/или эксплуатации, о которых указывает знак «Х» в маркировке взрывозащиты;
л) датчик в течение 1 минуты выдерживает без пробоя и поверхностных разрядов испытание на электрическую прочность напряжением 500 В переменного тока.
Особые условия монтажа и/или эксплуатации датчиков ДПВ-1 заключаются в следующем:
- датчики имеют нормальную степень механической прочности, поэтому, на месте монтажа, должны быть предохранены от внешних воздействий защитным кожухом или конструктивными элементами технологических установок, в которых датчики применяются;
- датчики не имеют собственных средств заземления, поэтому должны устанавливаться внутри металлических заземленных корпусов технологических установок, в которых датчики применяются;
- датчики изготовлены с постоянно присоединенным кабелем, электрическое подсоединение которого должен осуществляться либо во взрывозащищенном электрооборудовании, либо за пределами взрывоопасных зон;
- электрические цепи датчиков должны быть оснащены соответствующими устройствами защиты от тока короткого замыкания. Разрывная мощность применяемых защитных устройств должна быть больше или равна максимальному ожидаемому току короткого замыкания.
2.3 Требования к взрывозащите при монтаже, эксплуатации и ремонте
2.3.1 При монтаже и эксплуатации взрывозащищённого электрооборудования колонок необходимо руководствоваться:
- главой 4 «Правил устройства электроустановок. Электрооборудование специальных установок» НПАОП 40.1-1.32-01;
- «Правилами безопасной эксплуатации электроустановок потребителей» НПАОП 40.1-1.21-98;
- «Правилами технической эксплуатации электроустановок потребителей»;
- «Инструкцией по монтажу силовых и осветительных сетей взрывоопасных зон» ВСН 332-74;
- руководствами по эксплуатации комплектующего электрооборудования;
- настоящим руководством по эксплуатации.
2.3.2 Перед монтажом колонок необходимо проверить соответствие данных (тип, предприятие–изготовитель, маркировка взрывозащиты), нанесенных на табличках электрооборудования, данным, указанных в таблице 3 настоящего руководства по эксплуатации, после чего провести внешний осмотр электрооборудования.
2.3.3 В процессе эксплуатации колонок взрывозащищенное электрооборудование должно подвергаться осмотрам в соответствии требованиями действующих нормативных документов.
2.3.4 При проведении внешних осмотров взрывозащищенного электрооборудования колонок следует обращать внимание на следующее:
- целостность оболочек электрооборудования и отсутствие механических повреждений;
- плотное прилегание деталей в соединениях частей оболочек электрооборудования;
- наличие всех крепежных элементов (болтов, гаек, шайб и т. д.) и их затяжку;
- наличие предупредительных надписей;
- наличие и состояние средств уплотнения, вводимых в оболочки электрооборудования кабелей;
- наличие заглушек в неиспользуемых вводных устройствах;
- наличие и состояние наружного заземления электрооборудования.
2.3.5 Эксплуатация электрооборудования с повреждениями и неисправностями категорически запрещается. Результаты осмотров должны быть документально зафиксированы в соответствии с требованиями нормативных документов.
2.3.6 Ремонт взрывозащищенного электрооборудования колонки должен производиться в соответствии с РД «Электрооборудование взрывозащищенное. Ремонт».
3 ИСПОЛЬЗОВАНИЕ ПО НАЗНАЧЕНИЮ
3.1 Эксплуатационные ограничения.
3.1.1 Запрещается работа колонки при закрытом раздаточном кране более 2 – х минут, т. к. это ведёт к перегреву насоса и электродвигателя и выходу их из строя.
3.1.2 При установке колонки в закрытом помещении необходимо паровоздушную смесь от поплавковой камеры насоса отводить в резервуар с топливом.
3.1.3 Эксплуатация колонки с превышением пределов основной погрешности категорически запрещена.
3.1.4 Запрещается отпуск топлива потребителю во время слива топлива в резервуар.
3.1.5 Во время грозы запрещается производить заправку, питание колонки должно быть отключено в силовом шкафу.
3.1.6 Монтаж колонки, подвод и ввод кабеля производится в строгом соответствии с требованиями: «Правил устройства электроустановок. Электрооборудование специальных установок» глава 4 НПАОП 40.1-1.32-01, «Инструкции по монтажу электрооборудования, силовых и осветительных сетей взрывоопасных зон» ВСН 332-74, «Правил безопасной эксплуатации электроустановок потребителей» НПАОП 40.1-1.21-98, ГОСТ 12.1.004 ССБТ «Пожарная безопасность. Общие требования», ГОСТ 12.1.010 ССБТ «Взрывобезопасность. Общие требования», ГОСТ 12.2.007.0 ССБТ «Изделия электротехнические. Общие требования безопасности», и других правил безопасности, действующих в данной отрасли промышленности и настоящего руководства по эксплуатации.
3.2 Требования безопасности при подготовке изделия к использованию.
3.2.1 Во время монтажа колонки должна быть обеспечена невозможность подачи электропитания на колонку.
3.2.2 Запрещается включать колонку при открытых крышках распределительной коробки и вводного отделения электродвигателя привода насоса.
3.2.3 Запрещается пуск колонки без выполнения всех требований, предъявляемых к монтажу.
3.2.4 Перед пуском колонки должны быть подготовлены средства пожаротушения (огнетушители, песок, лопаты и другой пожарный инвентарь).
К подготовке колонки и использованию допускаются лица, прошедшие инструктаж по технике безопасности по «Правилам безопасной эксплуатации электроустановок потребителей» ДНАОП 0.00-1.21-98 (ПБЭЭП), изучившие настоящее руководство по эксплуатации и имеющие квалификационную группу по безопасности не ниже третьей.
Монтаж колонки производится на открытой площадке или под навесом по проекту, утверждённому в установленном порядке, с соблюдением всех требований техники безопасности при монтаже и пуске ее в работу.
При отсутствии проекта на установку колонки, необходимо руководствоваться следующим: колонки должны устанавливаться друг от друга на расстоянии не менее 5 м, и не более 18 м от резервуара с топливом, при высоте вертикального участка всасывающего трубопровода не более 4 м.
Приёмный клапан, устанавливаемый в начале всасывающего трубопровода, должен располагаться на высоте не менее 200мм от дна резервуара, во избежание забора отстоявшейся воды и загрязненных осадков.
Всасывающий трубопровод должен иметь минимальное количество изгибов и других местных сопротивлений.
При монтаже колонки следует учитывать, что длина всасывающего трубопровода протяженностью в 10 м создаёт потерю высоты всасывания насоса примерно в 1 м.
Колонка устанавливается на бетонную горизонтальную площадку (фундамент), в которой залита фундаментная рама, взятая из комплекта поставки.
В фундаменте предусматривается возможность подвода снизу трубопроводов:
1) всасывающих трубопроводов для топлива;
2) трубопровода для прокладки силового кабеля;
3) трубопровода для прокладки контрольного;
4) трубопровода для возврата газовой фазы в резервуар (газгольдер).
Резервуар и всасывающий трубопровод должны быть тщательно промыты и опрессованы.
К месту монтажа колонка доставляется в заводской упаковке в вертикальном положении. На месте монтажа необходимо распаковать колонку, произвести внешний осмотр.
При внешнем осмотре проверить:
а. комплектность колонки и соответствие маркировки и номера на заводской табличке и в формуляре;
б. наличие эксплуатационной документации на колонку и её комплектующих изделий;
в. наличие маркировки взрывозащиты и предупредительных надписей на взрывозащищённом электрооборудовании колонки;
г. наличие и затяжку всех крепёжных элементов;
д. исправность кабельных вводных устройств;
е. наличие заземляющих устройств и знаков заземления;
ж. мегаометром на протяжение 2500 В проверить сопротивление изоляции силовых цепей относительно корпуса. Величина сопротивления должна быть не менее 20 Мом.
Перед монтажом расконсервирования не производится. Всасывающий трубопровод должен быть очищен от загрязнений и проверен на герметичность.
Колонку установить на фундамент, выставить её вертикально по отвесу и закрепить на фундаментной раме с помощью шайб и гаек, взятых из комплекта поставки.
Подсоединить всасывающий трубопровод к фланцу насоса.
Подсоединить подающий трубопровод и трубопровод отвода газовой фазы топлива в резервуар (газгольдер).
Установить выключатель в закрытом помещении вне колонки.
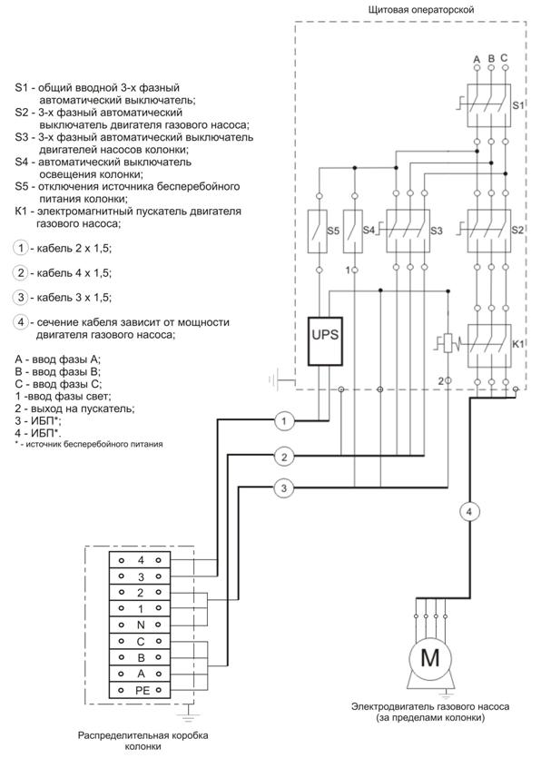
Произвести подвод электропитания в распределительной коробке в соответствии со схемой подключения (см. Приложение Г).
Разделать проводимый к коробке кабель, длину разделки жил уточнить по месту, на концах жил зачистить изоляцию на длине 8-9 мм. Концы жил лудить припоем ПОС-61.
Уплотнить кабель во вводном устройстве коробки. Надёжность уплотнения проверить визуально с внутренней стороны, а также приложением осевого усилия на кабель, при этом перемещений не должно быть
Колонку и электродвигатель заземлить путём подсоединения их наружных заземляющих зажимов к общему контуру заземления. Место контакта заземляющего провода с зажимом заземления должно быть тщательно зачищено (до металлического блеска) и предохранено от коррозии путём нанесения слоя консистентной смазки.
По окончании монтажа необходимо проверить:
а. сопротивление заземляющего устройства, которое должно быть не более 4 Ом;
б. величину сопротивления изоляции, которая должна быть не менее 20 МОм в холодном состоянии.
Снимавшиеся при монтаже электропитания детали распределительной коробки должны быть установлены на место, при этом обращается внимание на наличие всех крепёжных элементов и полную их затяжку.
После монтажа колонки необходимо произвести её разконсервацию. Разконсервация гидросистемы колонки производится в процессе её пробных пусков в работу, при этом топливо, прошедшее через гидросистему, должно быть осмотрено на предмет наличия в нём консервационной смазки.
Запрещается отпускать топливо потребителю до полного удаления консервации из гидросистемы колонки.
Перед пуском колонки проверить натяжение приводного ремня. При этом прогиб ремня по центру должен быть 4…6 мм при усилии 10 Н. Затем произвести пробный пуск.
3.3 Пробный пуск колонки.
3.3.1 При пробном пуске нужно проверить правильность функционирования всех составляющих узлов колонки, отсутствие подтекания или каплепадения топлива в узлах соединения гидросистемы.
3.3.2 При пробном пуске проверить правильность отпуска дозы топлива колонки с помощью образцовых мерников 2-го разряда ёмкостью 10 и 50 л. Остальные технические требования при вводе колонки в эксплуатацию должны соответствовать п. 1.5 настоящего руководства по эксплуатации.
3.4 Использование изделия
3.4.1 Ежедневно перед началом работы необходимо проверить правильность отпуска топлива. Для жидкого топлива применяются мерники образцовые 2-го разряда ёмкостью 10, 20 и 50 л. Погрешность отпуска жидкого топлива при этом не должна превышать ± 0,25% от измеряемого объёма. Для сжиженного газа применяются эталонные мерники; относительная погрешность при этом не должна превышать ± 1,0 %.
Каждый мерник должен иметь свидетельство и клеймо Государственной проверки.
3.4.2 Перед началом отпуска топлива оператор обязан записать показания счётчика суммарного учёта.
3.4.3 Набор дозы отпуска и установление разрешения на включение колонки осуществляет оператор с помощью пульта дистанционного управления.
3.4.4 Включение колонки на налив топлива осуществляется с пульта управления, при этом автоматически происходит установка указателя разового учета в положение “Нуль”.
По окончании выдачи заданной дозы топлива колонка автоматически отключается.
Подача сжиженного газа осуществляется только при перемещении поворотной кнопки на колонке в положение пуска.
3.4.5 Контроль за количеством отпущенного топлива оператор осуществляет по пульту. Контроль за количеством отпущенного топлива потребитель ведёт по модулю отображения информации на колонке.
3.4.6 Контроль за работоспособностью колонки в процессе эксплуатации оператор осуществляет по времени налива из расчёта её производительности, т. е. номинальному расходу.
3.4.7 Аварийное отключение подачи сжиженного газа производится с пульта управления оператором или потребителем с помощью поворотной кнопки на колонке.
3.4.8 Конструкция раздаточного крана для жидкого топлива позволяет производить налив топлива в бак, не допуская перелива его через край горловины в случае задания дозы большей, чем вместимость бака.
ЗАПРЕЩАЕТСЯ эксплуатация раздаточного крана при неисправном устройстве автоматического отключения выдачи топлива его перелива через горловину заправляемой ёмкости.
3.4.9 Перечень возможных неисправностей при эксплуатации колонки приведён в таблице 7.
3.4.10 Движущиеся части лотков раздаточного крана жидкого топлива рекомендуется обрабатывать влагоудаляющими составами (WD-40 и др.) не реже одного раза в месяц.
Таблица 7
Наименование неисправности, внешнее проявление
Вероятная причина
Способы устранения
Примечания
1. Ротор насоса вращается, но топливо насос не подает
1.1. Отсутствие топлива в резервуаре
1.2. Нарушена герметичность всасывающего трубопровода.
1.3. Предельный износ лопаток насоса
1.4. Неисправный приемный клапан
1.5. Вал насоса вращается в противоположную сторону
1.1. Залить топливо
1.2. Устранить негерметичность и опрессовать всасывающий трубопровод.
1.3. Вскрыть насос, произвести замену лопаток.
1.4. Снять приемный клапан, протереть его и промыть.
1.5. Устранить ошибку в подключении колонки.
2. Расход колонки ниже номинального.
2.1. Засорен фильтр.
2.2. Неисправен предохранительно перепускной клапан насоса из-за засорения или ослабления пружины
2.3. Засорена сетка в раздаточном кране
2.4. См. п.1.3.
2.1. Промыть фильтр.
2.2. Промыть клапан, отрегулировать пружину.
2.3. Прочистить сетку, отсоединив раздаточный кран от рукава.
2.4. См. п. 1.3.
2.1. Слышен гул низкого тона
3. Наличие пузырьков воздуха в потоке топлива, наблюдаемого в индикаторном устройстве
3.1. Нарушена герметичность всасывающей системы колонки
3.2. Не работает система газоотделения
3.3 Неполное прилегание иглы поплавка к седлу поплавковой камеры
3.1. Определить место и устранить негерметичность
3.2. Снять трубку, отводящую газы из газоотделителя в поплавковую камеру и прочистить.
3.3. Вынуть поплавок из поплавковой камеры и устранить причину неплотного прилегания иглы к седлу.
4. Основная погрешность колонки превышает допускаемую
4.1 Нарушена регулировка (тарировка) измерителя объема нефтепродуктов
4.1 Отрегулировать (оттарировать) измеритель объема нефтепродуктов
Выполняется специалистом в соответствии с инструкцией МИ 1864-88.
Пломбируется после регулировки и делается запись в формуляре.
5. Основная погрешность колонки превышает допустимую (колонка передает, а измеритель объема не тарируется)
5.1. Износ манжет
5.2. Выработка бегунка
5.1. Заменить манжеты
5.2. Притереть бегунок к корпусу
6. Отсчетное устройство не работает при работающем измерителе объема.
6.1. Сломан штифт муфты, соединяющий вал отсчетного устройства с валом измерителя объема
6.1. Выяснить причину поломки и заменить штифт отсчетного устройства вследствие его загрязнения, наличия в нем конденсата
Поломка может быть вызвана снятием счетного устройства и неправильной установкой
7. Шум в подшипниках двигателя
7.1. Износ подшипников
7.2. Загрязнены подшипники
7.1. Заменить подшипники
7.2.Промыть и смазать подшипники (Литол)
Добавление смазки в узел подшипников производится при выполнении технических осмотров колонки или при ремонте
8. Электродвигатель колонки работает с перегрузкой (греется)
8.1. Напряжение в сети ниже допустимого.
8.2. Заедание подшипников насоса вследствие загрязнения или разрушения
8.3. Засорен фильтр
8.1. Выяснить причину падения напряжения и устранить ее
8.2. Промыть и смазать подшипники насоса или заменить их
8.3.Промыть фильтр
9. Электродвигатель работает с перегрузкой (греется)
9.1.Сильно затянута пружина предохранительного перепускного клапана насоса
9.1. Ослабить затяжку пружины клапана
10. Подтекает топливо из раздаточного крана при закрытом раздаточном кране
10.1. Заедание штока раздаточного крана
10.2 Засорился клапан раздаточного крана
10.1 Разобрать кран, устранить заедание
10.2 Разобрать кран, очистить клапан
11. Подтекает топливо из раздаточного крана при открытом кране и неработающей колонке
11.1 См. п.10.2
11.2 Ослаблена пружина отсечки клапана
11.1 См. п. 10.2.
11.2 Заменить пружину
12. Двигатель гудит и не проворачивает вал насоса
1.2.1 Обрыв фазы
12.1 Проверить контакты в клеммной коробке и силовом шкафу
13. При выдаче топлива показания счетчика несоответствует показанию на пульте управления
13.1 Не работает датчик импульсов
13.1 Заменить датчик
14.Заклинивание ротора насоса
14.1 См. п. 1.3.
14.1 См. п. 1.3
15. Нет отпуска газа при работающем насосе
15.1 Закрыты краны жидкой фазы
15.2 Закрыт дифференциальный клапан
15.3 Сгорел предохранитель в распределительной коробке
15.4 Рассоединена разрывная муфта
15.1 Открыть краны в колонке и на емкости
15.2 Стравить жидкую фракцию из паровой фазы
15.3 Заменить предохранитель 6А
15.4 Сбросить давление в шлангах и соединить муфту
3.4.11 К обслуживанию колонок допускаются лица, имеющие допуск на право её эксплуатации. При эксплуатации колонок необходимо производить ежедневный технический уход.
Для этого необходимо произвести её осмотр на предмет подтекания топлива, целостности и сохранения пломб. Проверить погрешность отпуска топлива и раздаточного крана, счётных указателей и наличие защитных стёкол в индикаторе и блоке управления и индикации.
Не допускается пролив топлива в местах заправки.
В местах заправки ЗАПРЕЩАЕТСЯ курение, наличие искрящих установок, наличие неисправной электропроводки освещения, скопления обтирочного и другого легковоспламеняющегося материала. Ежемесячно проверять наличие средств пожаротушения. ОБЯЗАТЕЛЬНО возле каждой колонки должен быть ящик с песком.
3.4.12 При вводе в эксплуатацию; а также периодически в процессе эксплуатации в соответствии колонки должны подвергаться проверке по МИ 1864-88. “Рекомендации ГСОЕИ. Колонки топливораздаточные. Методика поверки”.
Категорически запрещена эксплуатация колонки с превышением допустимых пределов основной погрешности.
3.5 Действия в экстремальных условиях.
3.5.1 Экстремальными условиями при эксплуатации колонок являются:
- пролив топлива возле колонок в больших количествах;
- возгорание топлива.
Пролив топлива может возникнуть по причине:
- неисправности раздаточного крана, когда невозможно остановить вытекание топлива перекрытием крана;
- порывы раздаточного рукава или срыв его со штуцера индикаторного устройства колонки или со штуцера раздаточного крана.
3.5.2 При проливе топлива по вышеуказанным причинам необходимо СРОЧНО отключить электропитание колонки и принять меры к устранению причин пролива.
Место пролива должно быть ограждено и приняты меры к уборке разлитого топлива. Если возле колонки находиться автомобиль, его необходимо откатить вручную без включения двигателя.
3.5.3 При частичном возгорании или пожаре необходимо срочно выключить электропитание колонки, вызвать пожарную команду и принять меры к гашению пожара.
3.5.4 Облитую бензином одежду необходимо срочно снять и отправить в стирку.
3.5.5 Случайно пролитый бензин должен быть немедленно убран. Залитые бетонные и асфальтовые поверхности, настилы, оборудование и инструмент должны быть очищены и обезврежены. Обезвреживание производиться раствором хлорной извести.
4 ТЕХНИЧЕСКОЕ ОБСЛУЖИВАНИЕ
4.1 Общие указания.
4.1.1 Целью технического обслуживания является выявление и предупреждение неисправностей колонки в процессе её эксплуатации.
4.1.2 К техническому обслуживанию колонки допускаются лица, прошедшие инструктаж по технике безопасности, изучившие настоящее руководство по эксплуатации, эксплуатационную документацию на её составные части и имеющие квалификационную группу по электробезопасности не ниже третьей.
4.1.3 Техническое обслуживание колонок должно осуществляться без вскрытия опломбированных узлов и механизмов, влияющих на метрологические характеристики.
4.1.4 В целях поддержания колонок в рабочем состоянии в течение всего срока их эксплуатации необходимо проводить следующие виды технического обслуживания:
1) ежедневный технический уход;
2) еженедельное обслуживание;
3) ежемесячное техобслуживание;
4) ежегодное профилактическое обслуживание.
Кроме этого предусматривается также плановые текущий и средний ремонты.
4.1.5 Колонки являются средством измерения и они находятся под надзором Госстандарта. Надзор проводиться периодически 1 раз в год и внепланово – при ремонте средств измерений, по требованию потребителя, в порядке внепланового контроля.
4.1.6 При ежедневном техническом уходе за состоянием колонки должны быть выполнены следующие проверки:
а. на отсутствие механических повреждений обшивки колонки и раздаточного крана;
б. на целостность лампочек освещения табло;
в. на отсутствие механических повреждений и трещин на внешней оболочке рукава, на стекле табло;
г. на отсутствие подтекания топлива в гидравлической системе;
д. состояние заземляющих устройств. Заземляющие зажимы должны быть затянуты, на них не должно быть ржавчины. При необходимости очистить их и смазать консистентной смазкой;
е. на подвижность флажка лотков раздаточного крана, при заедании обработать WD-40;
ж. целостности и сохранности пломб.
4.1.7 При еженедельном техническом обслуживании выполняются работы в объёме ежедневного ухода, а также дополнительно проверяются:
а. натяжение ремня между шкивами электродвигателя и насоса;
б. целостность корпусов электрооборудования и оболочек электрических кабелей;
в. наличие всех крепёжных элементов: болты, винты и гайки должны быть равномерно затянуты;
г. производительность колонки.
После проведения проверок и устранения неисправностей колонка должна быть очищена от грязи, пыли, подтёков топлива и вымыта.
4.1.8 При ежемесячном техническом обслуживании выполняются работы в объёме еженедельного техобслуживания и дополнительно проверяются:
а. надёжность электрических соединений;
б. крепление колонки к фундаменту;
в. болтовые соединения деталей и сборочных единиц, при необходимости подтянуть;
г. состояние фильтра предварительной очистки в насосном блоке: при засорении – очистить и промыть фильтр.
4.1.9 Ежегодное профилактическое обслуживание проводится в объёме ежемесячного техобслуживания и дополнительно к нему выполняются:
а. проверка работоспособности колонки на всех режимах с определением величин отклонений и необходимости ремонта отдельных частей;
б. определение вакуума во всасывающей магистрали.
4.1.10 Все виды технического обслуживания колонок проводятся на месте их эксплуатации, без демонтажа.
4.1.11 Периодичность текущего ремонта устанавливается в зависимости от интенсивности и условий эксплуатации, но не реже одного раза в год.
4.1.12 Перечень работ при плановом текущем ремонте, а также периодичность проведения среднего ремонта и объём приводится в специальной ремонтной документации на колонки.
4.1.13 Техническое обслуживание составных частей колонок производится в соответствии с рекомендациями, привёдёнными в эксплуатационной документации составных частей.
4.1.14 Техническое обслуживание и ремонт узлов, опломбированных органом Госстандарта, требующих полной и частичной разборки этих узлов со снятием пломб, проводится на предприятиях, имеющих поверочные средства по ГОСТ 8.400, организация и проведение проверки по ГОСТ 8.513 в соответствии с методикой поверки МИ 1864-88. По согласованию с органами Госстандарта поверка может производиться на месте эксплуатации и ремонта колонки.
4.1.15 Все сведения о проведенном техническом обслуживании колонки заносятся в формуляр.
4.2 Требования безопасности.
4.2.1 Перед началом проведения технического обслуживания колонку необходимо отключить от источника энергопитания.
4.2.2 При проведении операций технического обслуживания колонок необходимо соблюдать правила пожарной безопасности согласно инструкции, действующей на данной автозаправочной станции или заправочном пункте.
4.2.3 При разборке колонки на месте её эксплуатации необходимо слить топливо из гидросистемы с соблюдением требований по защите экологии, т. е. пролив топлива возле колонки строго запрещён.
4.2.4 Запрещается производить техническое обслуживание во время работы автозаправочной станции.
4.2.5 При выполнении работ по техническому обслуживанию должен использоваться только искробезопасный инструмент.
4.2.6 Запрещается пользоваться открытым огнём и электрическими нагревательными приборами для подогрева узлов колонок в зимнее время года.
4.2.7 Меры безопасности при техническом обслуживании составных частей колонок изложены в эксплуатационных документах на эти изделия.
4.3 Техническое освидетельствование.
4.3.1 При выпуске из производства, после ремонта, а также периодически в процессе эксплуатации и хранения колонки подвергаются поверке соответственно первичной и периодической на соответствие основной погрешности. Кроме первичной и периодической поверок, колонки могут подвергаться внеочередной инспекционной и экспертной поверке.
4.3.2 В некоторых модификациях ТРК предусмотрена возможность электронной юстировки. Количество проведенных юстировок фиксируется в необнуляемой памяти процессора. Информация по количеству юстировок выводится на электронное табло. Подробнее в инструкции по управлению ТРК «Шельф».
4.3.3 Внеочередная поверка колонок производится при эксплуатации и хранении при:
- необходимости удостовериться в пригодности к применению;
- повреждении поверительного клейма, пломбы или утере свидетельства о поверке;
- вводе колонок в эксплуатацию после длительного хранения (более одного межповерочного интервала);
- продаже (отправке) потребителю колонок, не реализованных по истечению срока равного половине межповерочных интервалов.
Поверка колонок проводится органом Госстандарта в соответствии с требованиями ГОСТ 8.513 и методике поверки МИ 1864-88.
4.3.4 Межповерочный интервал периодической поверки устанавливает Госстандарт. Для колонок этот интервал составляет – 1 год.
4.3.5 При проведении периодической поверки колонки, данные поверки заносятся в формуляр, таблица 9.
4.4 Хранение.
4.4.1 Колонки хранить в упакованном виде в закрытых помещениях, под навесом при температурах от –50 С до +50 С и относительной влажности воздуха до 100% при температуре 25 С в атмосфере любых типов.
4.4.2 Хранение пульта дистанционного управления должно соответствовать условиям хранения согласно его паспорту.
4.4.3 Сведения о хранении заносятся в формуляр, таблица 11.
5 ТЕКУЩИЙ РЕМОНТ
5.1 Текущий ремонт изделия.
5.1.1 Текущий ремонт колонок производится персоналом, имеющим соответствующую квалификацию по ремонту колонок.
5.1.2 При проведении текущего ремонта необходимо строго соблюдать технику безопасности, действующей на данной автозаправочной станции или заправочном пункте.
5.1.3 Указания “Поиск неисправностей” и “Устранение неисправностей” следует выполнять в соответствии с таблицей 7 настоящего руководства по эксплуатации.
5.1.4 По проведению текущего ремонта узлов, опломбированных пломбами, следует проводить поверку колонок органом Госстандарта в соответствии с п. 3.1.14 настоящего руководства.
5.1.5 Текущий ремонт составных частей колонок, имеющих свою эксплуатационную документацию, производится в соответствии этой документации.
5.1.6 Ремонт взрывозащищённого электрооборудования колонок должен производиться в соответствии с РД «Электрооборудование взрывозащищенное. Ремонт».
5.1.7 Ремонт колонок, как правило, производится путём ремонта отдельных частей без разборки всей колонки.
Ремонт измерителя объёма, счётного устройства, электродвигателя привода насоса, насоса, датчика импульсов должен производиться в условиях специализированных ремонтных предприятий.
5.1.8 Все сведения о ремонтах колонки и её поверках заносятся в формуляр колонки в таблицу 9 и раздел 16.
5.2 Разборка и сборка изделия.
5.2.1 Рекомендации по разработке колонки и её составных частей в настоящем руководстве по эксплуатации не приводятся, т. к. их конструкция позволяет определиться в порядке последовательности разборки и сборки.
5.2.2 При ремонте измерителя объёма разбирать узел золотника не рекомендуется (сборка узла золотника производится в специальном приспособлении). При сборке измерителя объёма обратить внимание на величину осевого перемещения коленчатого вала, она должна быть не более 0,5 мм.
5.2.3 Разборка насоса-моноблока производится частично при техническом обслуживании или полностью – при его ремонте. Частичная разборка производится с целью профилактических осмотров и при устранении отказов, связанных с нарушением работоспособности лопаток, клапанов, поплавка, при засорении отверстий в жиклёре и фильтре. Полная разборка насоса-моноблока производится при ремонте с целью замены манжет, подшипников, фильтра и других деталей.
При сборке подшипники набить смазкой ЦИАТИМ-201 ГОСТ 6267 или ей равноценной. При установке ротора в корпус насоса проверить радиальный зазор, он должен быть не более 0,05 мм.
5.3 Требования безопасности при выполнении ремонтных работ.
5.3.1 Запрещается выполнение ремонтных работ во время работы колонок.
5.3.2 При выполнении ремонтных работ проверить исправность и готовность средств пожаротушения.
5.3.3 Перед началом проведения любых ремонтных работ колонка должна быть обесточена.
5.3.4 При необходимости разборки узлов гидросистемы колонки, предварительно слить топливо из гидросистемы.
5.3.5 При проведении ремонтных работ должен использоваться только искробезопасный инструмент.
ПРИЛОЖЕНИЕ А
(обязательное)
Перечень документов, на которые даны ссылки в руководстве по эксплуатации
Обозначение НТД, на которые даны ссылки
Номер пункта, подпункта, подраздела, разрабатываемого документа, в котором даны ссылки
ГОСТ 8.400-80
1.5.2, 4.1.14
ГОСТ 8.513-84
4.1.14, 4.3.3
ГОСТ 12.1.004
3.1.6
ГОСТ 12.2.007.0-75
3.1.6
ГОСТ 12.1.010
3.1.6
ГОСТ 12.1.011
2.1
ГОСТ 12.2.020-76
2.1, 2.2
ГОСТ 10434
2.2.2
ГОСТ
1.6.3
ГОСТ
1.8.7, 2.2.1 – 2.2.6
ГОСТ
1.1.2
ГОСТ
1.7.2
ГОСТ
2.2.4
ГОСТ 22782.0-81
2.2.1 – 2.2.6
ГОСТ 22782.3-77
2.2.4, 2.2.6
ГОСТ 22782.6-81
2.2.1, 2.2.3, 2.2.5
ГОСТ 22782.7-81
2.2.2
ГОСТ 27578
1.1.1
ПРИЛОЖЕНИЕ Б
(обязательное)
Чертеж взрывоопасных зон колонок "ШЕЛЬФ..." Х КЕД-Х-0,25-Х-Х.../LPG

1 – Взрвоопасные зоны колонок "ШЕЛЬФ 200" Х КЕД-Х-0,25-Х-Х.../LPG

2 – Взрвоопасные зоны колонок "ШЕЛЬФ 300" Х КЕД-Х-0,25-Х-Х.../LPG
ПРИЛОЖЕНИЕ В
(справочное)
Присоединительные размеры колонок

1 – Присоединительные размеры колонок "ШЕЛЬФ 200" Х КЕД-Х-0,25-Х-Х.../LPG
ПРИЛОЖЕНИЕ Г
(справочное)
Электрическая схема подключения колонок

ПРИЛОЖЕНИЕ Д
(справочное)
Порядок пломбирования отдельных элементов колонок

а) Порядок пломбирования датчика импульсов

б) Порядок пломбирования лимба регулятора измерителя объема
Лист регистрации изменений
Изм.
Номера листов (страниц)
Всего Листов (страниц) в докум.
№ докум.
Входящий № сопроводительного докум. и дата
Подп.
Дата
Измененных
Замененных
Новых
Аннулированных



