Особенностью этого стандарта является его рекомендательный характер. И хотя стандарт не обязателен для исполнения, необходимо помнить, что единообразие оформления документации позволяет организациям, предприятиям и учреждениям достигнуть единства информационного обмена. А значит, его следует соблюдать!
Требования к составу реквизитов определяются и другими государственными стандартами на управленческую документацию:
- ГОСТ 6.10.4-84 «Унифицированные системы документации. Придание юридической силы документам на машинном носителе и машинограмме, создаваемым средствами вычислительной техники. Основные положения».
- ГОСТ 6.10.5-87 «Унифицированные системы документации. Требования к построению формуляра-образца».
Эти стандарты устанавливают состав реквизитов, придающих документной записи юридическую силу документа, и являются обязательными.
Каждый документ состоит из ряда составляющих его элементов, которые называются реквизитами.
2.1. Требования к составу реквизитов
Государственный стандарт Российской Федерации Р 6.30-2003 «Унифицированные системы документации. Система организационно-распорядительной документации. Требования к оформлению документов» устанавливает состав реквизитов для управленческих документов и определяет их месторасположение на стандартном листе бумаги.
Реквизит – элемент официального документа.
Наименование документа (вид), автор, адресат, текст, дата и т. д. – это реквизиты документов. Различные документы состоят из разного набора реквизитов. Число реквизитов, характеризующих документы, определяется целями создания документа, его назначением, требованиями к содержанию и форме данного документа, способом документирования.
Для системы организационно-распорядительной документации установлен состав реквизитов, включающий 30 наименований.
01 – Государственный герб Российской Федерации;
02 – герб субъекта Российской Федерации;
03 – эмблема организации или товарный знак (знак обслуживания);
04 – код организации;
05 – основной государственный регистрационный номер (ОРГН) юридического лица;
06 – идентификационный номер налогоплательщика/код причины постановки на учет (ИНН/КПП)
07 – код формы документа;
08 – наименование организации;
09 – справочные данные об организации;
10 – наименование вида документа;
11 – дата документа;
12 – регистрационный номер документа;
13 – ссылка на регистрационный номер и дату документа;
14 – место составления или издания документа;
15 – адресат;
16– гриф утверждения документа;
17 – резолюция;
18 – заголовок к тексту;
19 – отметка о контроле;
20 – текст документа;
21 – отметка о наличии приложения;
22 – подпись;
23– гриф согласования документа;
24 – визы согласования документа;
25 – оттиск печати;
26 – отметка о заверении копии;
27 – отметка об исполнителе;
28 – отметка об исполнении документа и направлении его в дело;
29 – отметка о поступлении документа;
30 – идентификатор электронной копии документа.
Это максимальный перечень реквизитов, используемых в оформлении документов, составляющих эту систему. Для придания документам юридической силы и их идентификации служат реквизиты 01, 02, 03, 04, 05, 06, 07, 08, 09, 10, 11, 12, 16, 22, 23, 24, 25.
Реквизиты 13, 15, 17, 18,19, 21, 26, 27, 28, 29, 30 предназначены для поиска документа и фиксации его прохождения через управленческий аппарат.
Отметки на документах проставляются в процессе работы с ними в делопроизводственной службе или исполнителем при подготовке проекта документа. Этими отметками фиксируют дату получения, исполнения, фамилию исполнителя, постановку документа на контроль и др.
Реквизит 20 «текст» передает основное содержание документа.
Государственным стандартом установлено место размещения каждого реквизита на документе, которое «закреплено» за реквизитом в соответствии с традициями последовательности их заполнения и чтения при работе с документом в аппарате управления. Схема расположения реквизитов на документах, составляющих систему организационно-распорядительной документации, позволяет максимально увеличить «полезную» площадь – место для размещения текста – основного реквизита документа. Размещение реквизитов документа в соответствии с требованиями ГОСТ Р 6.30 – 2003 значительно улучшает качество документов, их внешний вид.
Документы оформляются главным образом на бумаге формата А4 (210х297) и А5 (148х210). Отдельные виды документов, содержащие таблицы и графики – ведомости, планы и т. д. оформляются на формате А3 (297х420).
Любой документ должен иметь поля, т. е. определенное пространство между краем листа и текстом. Поля необходимы для подшивки документа, для проставления некоторых служебных отметок. В соответствии с требованиями ГОСТ Р 6.30-2003 размеры полей должны быть не менее, мм:
левое поле – 20; верхнее поле – 20;
правое поле – 10; нижнее поле – 20 .
Это минимальные размеры полей, меньшие поля не допускаются, так как будет затруднено дальнейшее оформление и хранение документов, но большие поля допустимы.
2.2. Правила оформления отдельных реквизитов документов
Отбор реквизитов для включения в государственный стандарт проводился с целью закрепления на практике документирования только тех элементов, которые выполняют традиционно сложившиеся функции документа. Естественно, основная функция документа – сохранение информации. Но, кроме того, к документу предъявляются требования идентификации его автора, придания документу юридической силы, создания условий для использования (обработки, передачи, поиска, наведения справок и др.) документа в управленческом аппарате и в делопроизводстве.
Государственный герб Российской Федерации (01)
Государственный герб Российской Федерации помещают на бланках документов в соответствии с Федеральным конституционным законом «О Государственном Гербе Российской Федерации» (Собрание законодательства Российской Федерации, 2000, № 52, Ч. 1, ст. 5021). Право располагать государственный герб на официальных документах принадлежит органам государственного управления, суда, прокуратуры, арбитража, налоговых служб и т. д. Модификация изменения Государственного герба карается законом.
Герб субъекта Российской Федерации (02)
Герб субъекта Российской Федерации помещают на официальных документах в соответствии с правовыми актами субъектов Российской Федерации.
Эмблема организации или товарный знак (знак обслуживания) (03)
На бланках организаций всех форм собственности вместо герба может быть использован зарегистрированный в установленном порядке товарный знак или эмблема. Эмблема предприятия – это символическое графическое изображение. Эмблема помещается на бланке в соответствии с учредительными документами организации.
Код организации (04)
Реквизит служит для ускорения передачи документированной информации по каналам электронной связи и сокращения количества возможных ошибок, возникающих при передаче данных и сложно воспринимаемых названий организаций. Код является элементом электронной идентификации документа. В зависимости от принадлежности организации к определенной системе органов власти или предприятий используется Общероссийский классификатор органов государственной власти (ОКОГУ) или общероссийский классификатор учреждений, организаций и предприятий (ОКПО).
Основной государственный регистрационный номер (ОГРН) юридического лица (05)
Регистрационный номер юридического лица проставляют в соответствии с документами, выдаваемыми налоговыми органами.
Идентификационный номер налогоплательщика/код причины постановки на учет (06)
Проставляется в соответствии с документами, выдаваемыми налоговыми органами.
Код формы документа (07)
ГОСТ Р 6.30-2003 предусматривает проставление на бланке кода формы документа по Общероссийскому классификатору управленческой документации (ОКУД). Код формы является элементом идентификации документа.
Наименование организации (08)
Автор документа должен быть указан на каждом документе вне зависимости от того, изготовлен документ на бланке или без него. Автором документа в управленческой практике, как правило, выступает организация, учреждение, предприятие (или их структурное подразделение). На бланке дается наименование организации с указанием организационно-правовой формы, подчиненности, степени самостоятельности, т. е. тех сведений, которые характеризуют автора. Эти данные выполняют правовую функцию и необходимы для придания управленческому документу юридической силы.
Наименование организации – автора документа указывается в бланках в точном соответствии с положением (уставом) об организации. Сокращенное наименование организации или аббревиатура размещается на бланках после полного наименования и помещается в скобках организации, учреждения и предприятия, имеющие вышестоящие организации, должны помещать их наименования на своих бланках перед собственным наименованием. Если организация является филиалом другой организации, то ее название размещается перед наименованием организации – автора документа.
Справочные данные об организации (09)
В состав реквизита включают почтовый адрес, номера телефонов и другие сведения по усмотрению организации. Государственный стандарт не лимитирует состав сведений, входящих в справочные данные. Однако чем полнее сведения, помещенные на бланке, тем легче связаться с организацией – автором документа. Почтовый адрес должен быть указан в соответствии с действующими почтовыми правилами, т. е. обязательно включать индекс предприятия связи с указанием единиц административно - территориального деления.
Группы цифр в номерах телефонов (факсов) разделяются дефисом.
Блок справочных данных может быть дополнен по желанию организации – автора документа следующими данными: номер факса, телеграфный адрес, номер телетайпа (абонентского телеграфа), номер счета в банке и реквизиты банка, телекс, номер электронной почты. В качестве почтового адреса допускается указывать номер абонентского ящика.
Наименование вида документа (10)
Наименование вида документа регламентируется учредительными документами и должно соответствовать видам документов, предусмотренным ОКУД (класс 0200000). Должно отражать содержание документированного действия и компетенцию его автора. Наименование вида документа – обязательный реквизит при оформлении всех документов кроме письма. Например: ПРИКАЗ, РАСПОРЯЖЕНИЕ, УКАЗАНИЕ, АКТ и т. д.
Дата документа (11)
Дата документа является одним их основных реквизитов, которые обеспечивают его юридическую силу. Датой документа является дата его подписания, для документов, принимаемых коллегиальным органом, – дата его принятия, для утверждаемых документов – дата утверждения, для актов и протоколов – дата события. Дата проставляется должностным лицом, подписывающим документ.
ГОСТ Р 6.30-2003 устанавливает 3 способа оформления даты. Даты, содержащиеся в тексте документа, оформляются цифровым способом, арабскими цифрами. День месяца и месяц оформляются двумя парами арабских цифр, разделенными точкой; год – четырьмя арабскими цифрами. При этом Государственный стандарт предусматривает два варианта последовательности расположения элементов:
а) день месяца, месяц, год. Например: 01.09.2002.
в) год, месяц, день месяца. Например: 2002.09.01.
Второй вариант соответствует традициям оформления даты в европейских странах.
Допускается словесно-цифровой способ оформления даты, например, 1 сентября 2002 г. в основном в документах финансового характера
Регистрационный номер документа (12)
Регистрационный номер документа или индекс проставляется при его регистрации в организации – авторе документа. Это условное (цифровое, буквенное или комбинированное обозначение документа), присеваемое ему при регистрации, который указывает место его составления (исполнения) и хранения. Регистрационный номер присваивается каждому исходящему, внутреннему и входящему документу в соответствии с принятой системой индексации и проставляется в одной строке рядом с реквизитом «Дата». Для внутренних документов (приказов, договоров) индексом является обычный порядковый номер в пределах календарного года.
Для исходящих состоит из следующих частей:
- индекс структурного подразделения, составляющего документ;
- номер дела, куда подшивается копия отправленного документа;
- порядковый номер регистрации.
Например: № 05-24/149 где 05 – номер структурного подразделения, 24– номер дела по номенклатуре, 149 – порядковый номер документа.
Регистрационный номер документа, составленного двумя и более организациями, состоит из регистрационных номеров документа каждой организации, проставляемых через косую черту в порядке указания авторов в документе.
Ссылка на индекс и дату входящего документа (13)
Этот реквизит проставляется только на ответных письмах. Дата и номер для ссылки переписываются из инициативного (полученного) письма. Оформляется он следующим образом: На № 05-134/39 от 01.01.2001. Данная ссылка поможет организации, получившей письмо-ответ, найти свою копию инициативного письма. Этот реквизит не проставляется на внутренней переписке.
Место составления или издания документа (14)
Место составления или издания документа указывается в том случае, если затруднено его определение по реквизитам «Наименование организации» и «Справочные данные об организации». Место составления или издания указывают с учетом принятого административного - территориального деления, оно включает в себя только общепринятые сокращения. Например: Москва; г. Омск; с. Сосновка Любинского района Омской области.
Адресат (15)
Этот реквизит проставляется на исходящих документах и на всех видах внутренней переписки (заявления, докладные, служебные и объяснительные записки). В качестве адресата могут быть организации, их структурные подразделения, конкретные должностные или физические лица.
Максимально реквизит «Адресат» может состоять из следующих составных частей:
- наименование учреждения, организации, предприятия (в и. п.);
- наименование структурного подразделения (в и. п.);
- указание должности получателя (в д. п.);
- инициалы и фамилия (в д. п.);
- почтовый адрес.
Элементы почтового адреса в реквизите «Адресат» и при оформлении адреса в реквизите «Справочные данные» указываются в последовательности, установленной «Правилами оказания услуг почтовой связи», утвержденными Постановлением правительства РФ .
В соответствии с правилами установлен следующий порядок написания почтового адреса на конвертах и документах:
- наименование адресата (физическое или юридическое лицо);
- улица, № дома, № квартиры;
- населенный пункт (город, поселок);
- область, край, республика;
- страна (для международных писем);
- почтовый индекс.
Например, адрес организации будет выглядеть следующим образом:
Государственное учреждение
Всероссийский научно-исследовательский
институт документоведения и архивного дела
Профсоюзная ул., д. 82, Москва, 117393
Если письмо адресовано физическому лицу указывают фамилию и инициалы получателя, затем почтовый адрес, например:
ул. Н. Чернышевского, ,
г. Омск, 644062
При направлении документа в адрес организации фамилия его руководителя может быть корреспонденту не известна. В таком случае наименование учреждения пишется в именительном падеже, и адресование оформляется следующим образом:
Министерство финансов РФ
Управление налоговой реформы
При направлении документа должностному лицу название организации указывается в именительном падеже, а должность и фамилия адресата – в дательном, при этом инициалы должностного лица указываются перед фамилией, например:
Министерство финансов РФ
Начальнику Управления налоговой реформы
При направлении документа руководителю организации ее название входит в состав должностного адресата. Например:
Генеральному директору
регионы»
При адресовании документов нескольким однородным учреждениям фамилии опускаются, а должности указываются обобщенно. Например:
Ректорам вузов.
Допускается центрировать каждую строку реквизита «Адресат» по отношению к самой длинной строке. Например:
Главному редактору
Издательского дома
«Медиадом»
Помимо документов, направляемых за пределы организации, адресование используется и в оформлении внутренних документов с целью определения круга исполнителей, оперативного направления документа тем должностным лицам, в компетенцию которых входит их рассмотрение (приказы, распоряжения, указания), а также с целью регулирования направления отдельных документопотоков (докладные и объяснительные записки, заявления). Адресование внутренних документов оформляется либо с указанием конкретных должностных лиц, либо обобщенно. Например, приказ руководителя организации может иметь такой адрес:
Начальникам производственных служб
Реквизит может содержать несколько адресатов, но не более четырех, сведения о копийности документа при этом не указываются. При направлении документа более чем в четыре адреса составляется список рассылки, а на каждом документе проставляется только один адресат.
Гриф утверждения документа (16)
Документы, которые не могут быть введены в действие их авторами, приобретают юридическую силу после утверждения руководителем организации, коллегиальным (совещательным) органом или вышестоящим органом власти (управления). Процедура утверждения оформляется двумя способами, имеющими одинаковую силу: проставление на документе грифа утверждения или издание специального распорядительного документа с указанием его выходных данных на утверждаемом документе. При утверждении документа должностным лицом гриф утверждения должен состоять из слова УТВЕРЖДАЮ (без кавычек), наименования должности лица, утверждающего документ, его подписи, инициалов, фамилии и даты утверждения, например:
УТВЕРЖДАЮ
Генеральный директор
_______________
(подпись)
14.05.2006
Допускается в реквизите центрировать элементы относительно самой длинной строки.
УТВЕРЖДАЮ
Президент АО «Электрон»
___________
«___» ___________2006
При утверждении документа постановлением, решением, приказом, протоколом гриф утверждения состоит из слова УТВЕРЖДЕН (УТВЕРЖДЕНА, УТВЕРЖДЕНЫ или УТВЕРЖДЕНО), наименованием утверждающего документа в творительном падеже, его даты и номера.
Например:
УТВЕРЖДЕН
Протоколом Совета университета
УТВЕРЖДЕНО
приказом ВНИИДАД
Гриф утверждения располагают справа над текстом в верхнем углу документа.
Резолюция (17)
Резолюция составляется руководителем при рассмотрении поступивших или внутренних документов для организации их исполнения. Ее пишут от руки на первом листе поступившего документа под реквизитом «адресат». Допускается оформление резолюции на отдельном листе. В резолюции указывается фамилия и инициалы исполнителей, содержание поручения (при необходимости), срок исполнения, личная подпись руководителя и дата составления резолюции. Например:
Прошу подготовить смету
и проект договора к 30.07.2002
____________
(личная подпись)
10.07.2002
Заголовок к тексту (18)
Заголовок к тексту составляется исполнителем документа во всех случаях когда документ оформлен на бумаге формата А4. Заголовок к тексту – реквизит, выражающий в краткой форме основное содержание документа. Заголовок позволяет быстро определить степень информативности документа, его важность или срочность, помогает ориентироваться в содержании документа при его получении, рассмотрении. Заголовок обязательно используется при регистрации документов.
Заголовок должен быть кратким и точно передавать смысл текста, он должен быть грамматически согласован с названием вида документа. Например:
Приказ (о чем?) о создании структурного подразделения
Приказ об увольнении
Протокол заседания ученого совета
Должностная инструкция секретаря
Акт ревизии
Письмо о заключении договора
Место для размещения заголовка на документе обычно отмечается уголками при изготовлении бланка. Заголовок располагают слева над текстом документа, отступив от надписей бланка 2–3 межстрочных интервала. Длина заголовка не более 5-ти строчек, не более 28 печатных знаков в строчке. Точку в конце заголовка не ставят.
Отметка о контроле (19)
Проставляется только на тех документах, процесс исполнения (или сроки) которых контролируются. Согласно ГОСТ Р 6.30-2003 отметка о контроле представляет собой крупную букву «К», которую наносят от руки ярким фломастером или специальным резиновым штемпелем. Проставляется отметка на левом поле документа на уровне заголовка текста.
Текст документа (20)
Текст документа печатают, отступив 2-4 интервала от реквизита «заголовок текста».
Текст – главный реквизит, ради которого составляется и оформляется весь документ.
Текст документа по структуре непосредственно связан с видом (письмо, приказ, протокол, акт, и т. д.) и разновидностью документа (приказ по основной деятельности или приказ по личному составу, письмо-предложение или гарантийное письмо).
Текст документа составляют на русском языке или национальном языке в соответствии с законодательством РФ и субъектов РФ о государственных языках.
Тексты пишут только на русском языке при направлении их: в федеральные органы государственной власти; органы государственной власти субъектов РФ; на предприятия; в организации и их объединения, не находящиеся в ведении данного субъекта РФ или расположенные на территории других субъектов РФ.
Тексты документов оформляются в виде трафарета, анкеты, таблицы, связанного текста или в виде соединения этих структур.
Отметка о наличии приложений (21)
Отметка предназначена для фиксации внимания получателя и отправителя на документах, которые составляют с пересылаемым документом один комплект. Отметка размещается в документе после окончания текста, выше реквизита «подпись». Слово «приложение» печатается от левого поля, после него ставится двоеточие. Например:
Приложение: на 3 л. в 2 экз.
В распорядительных документах сведения о наличии приложения указываются в тексте. Если документ имеет приложение не названное в тексте, то указывается его наименование, количество листов и количество экземпляров. При наличии нескольких приложений они нумеруются, например:
Приложение: 1. Контракт /3 на 5 л. в 2 экз.
2. Акт приема работ на 1 л. в 4 экз.
Если приложения сброшюрованы, количество листов не указывается.
Если к документу прилагают другой документ, также имеющий приложение, отметку о наличии приложения оформляют следующим образом:
Приложение: письмо Росархива от 14.06.97 №02-4/156 и приложение к нему всего на 30 л.
Если приложение направляют не во все указанные в документе адреса, то отметку о его наличии оформляют следующим образом:
Приложение: на 3 л. в 5 экз. в первый адрес.
В приложении к распорядительному документу на первом его листе в правом верхнем углу пишут “Приложение” с указанием наименования распорядительного документа, его даты и регистрационного номера, например:
Приложение 2
к приказу директора школы
Допускается выражение «ПРИЛОЖЕНИЕ №» печатать прописными буквами, а также центрировать это выражение, наименование документа, его дату и регистрационный номер относительно самой длинной строки, например:
ПРИЛОЖЕНИЕ № 6
к приказу Минздрава России
от
Подпись (22)
Право подписи управленческих документов, как правило, является компетенцией руководителя организации или его заместителей в соответствии с распределением их обязанностей, установленным правовым актом (уставом, положением об организации, приказом о распределении обязанностей).
Документ может быть подписан двумя или более должностными лицами, если за его составление и содержание ответственны несколько должностных лиц. Например, документы, в которых содержатся сведения денежного, материального, кредитного характера, являющиеся основанием для приема и выдачи денег, товарно-материальных и другие ценностей; документы, изменяющие кредитные и другие кредитные и расчетные обязательства, подписывают и руководитель организации, и главный бухгалтер.
В состав реквизита «Подпись» входят: наименование должности лица, подписавшего документ (полное, если документ оформлен не на бланке документа, и сокращенное на документе, оформленном на бланке): личная подпись: расшифровка подписи (инициалы и фамилия).
Например:
Генеральный директор
АО «Сибирские системы» Личная подпись
или на бланке:
Генеральный директор Личная подпись
Допускается центрировать наименование должности лица, подписавшего документ, относительно самой длинной строки, например:
Исполнительный директор
Личная подпись
При оформлении документа на бланке должностного лица должность этого лица в подписи не указывается.
Если документ подготовлен двумя организациями, и его подписывают лица равных должностей, то их подписи располагаются двумя группами на одном уровне, например:
Генеральный директор
завода «Полет»
____________
(подпись)
Генеральный директор
завода «Сатурн»
______________
(подпись)
В таком случае документы оформляются не на бланках и подписывают столько экземпляров документов, сколько организаций принимало участие в их разработке.
Если документ подписывают несколько должностных лиц одной организации, их подписи располагают одна под другой в порядке, соответствующем степени значимости занимаемых ими должностей.
Например:
Директор института Личная подпись
Главный бухгалтер Личная подпись
Две подписи оформляются на документах коллегиальных органов – протоколы и выписки из них подписывают председатель и секретарь.
Документы, составленные комиссией (акты), подписывают председатель и члены комиссии. В таком документе, указывают не должности лиц, подписывающих документ, а их обязанности в составе комиссии в соответствии с распределением, например:
Председатель комиссии Личная подпись
Члены комиссии Личная подпись
Личная подпись
Личная подпись
Гриф согласования документа (23)
Согласование – это предварительное рассмотрение вопросов, содержащихся в проекте документа. Согласование может быть внешним и внутренним.
Проекты документов, подготовленные в одной организации и затрагивающие интересы другой, согласовываются с ними в установленной очередности. При этом согласование оформляется или на последнем листе проекта документа, ниже всех подписей, или выносится на отдельный лист согласования, который является приложением к подлиннику документа. Согласование при этом оформляется в виде грифа, включающего слово «СОГЛАСОВАНО», должности лица, с которым согласован документ, включая наименование организации, его личной подписи, инициалов, фамилии и даты.
Гриф согласования на документе располагают ниже подписи слева. Например:
СОГЛАСОВАНО
Начальник Управления
административного
__________
20.09.2002
Если согласование осуществляется отдельным документом вышестоящей организации или коллегиальным органом после обсуждения документа на его заседании, то гриф согласования оформляется следующим образом:
СОГЛАСОВАНО
Протокол заседания профкома
от 01.01.2001 №12
СОГЛАСОВАНО
Письмо Росархива
/135
Слово СОГЛАСОВАНО печатается прописными буквами без кавычек.
Виза согласования (24)
Согласование документов в пределах одной организации (внутреннее согласование) оформляется визой. При визировании документа указывают наименование должности, личную подпись, ее расшифровку и дату. Например:
Начальник юридического отдела
____________
(личная подпись)
05.09.2006
На внутренних документах виза проставляется на последнем листе первого экземпляра. На исходящих – на последнем листе того экземпляра, который будет оставлен в учреждении.
Возможно оформление виз документа на отдельном листе согласования.
Допускается, по усмотрению организации, полистное визирование документа и его приложения.
При наличии замечаний к документу визу оформляют следующем образом:
Замечания прилагаются
Начальник юридического отдела
_____________
(личная подпись)
05.09.2006
Замечания излагают на отдельном листе, подписывают и прилагают к документу.
Оттиск печати (25)
Заверение документов печатью организации – особый способ их удостоверения, подтверждения их юридической силы. Оттиск печати проставляется на подлинных документах, удостоверяющих права должностных лиц, факты расхода денежных средств и материальных ценностей, на расчетно-платежных документах, удостоверениях, доверенностях, на многих организационных документах (положениях, уставах, учредительных договорах, штатных расписаниях и др.). Печать применяется также во всех случаях удостоверения прав должностных лиц, подтверждающих расследование денежных средств и материальных ценностей и др.
Отметка о заверении копии (26)
Копия документа – воспроизведение всех его реквизитов. Заверение копии документа производится для придания ей юридической силы. Заверяют копии работники делопроизводственной службы, проставляя ниже реквизита «подпись» слово «Верно» с указанием должности, фамилии, личной подписи и даты. Например:
Верно
Инспектор отдела кадров Личная подпись
В ряде организаций устанавливается более жесткий порядок заверения, при котором верность копий удостоверяется, кроме того, проставлением печати. Проставление печати обязательно, если документ представляется в другие организации. В ряде случаев законодательно определено нотариальное заверение копий документов (устав, свидетельство о регистрации, лицензия, и др.).
Отметка об исполни
Отметка носит справочный характер и предназначена для оперативной связи получателя со специалистом, который непосредственно изготовил этот документ.
Отметка об исполнителе включает фамилию исполнителя и номер его телефона, размещается на лицевой или обратной стороне последнего листа документа в левом нижнем углу.
Реквизит может быть оформлен в двух вариантах:
- фамилия исполнителя (без инициалов) и номер телефона;
- имя, отчество, фамилия исполнителя и номер телефона.
Например:
Сидоркин
65 44 23
65 44 23
Отметка об исполнении документа и направлении его в дело (28)
Этот реквизит наносится на документ от руки после его исполнения и является свидетельством завершения работы над ним. Реквизит содержит в себе следующие данные: ссылку на дату и номер документа, свидетельствующего о его исполнении, или отсутствии такого документа, краткие сведения об исполнении, слова «В дело», номер дела, в котором будет храниться документ. Отметка об исполнении документа и направлении его в дело подписывается и датируется исполнителем документа или руководителем структурного подразделения, в котором исполнен документ.
Отметка о поступлении документа в организацию (29)
В правом углу нижнего поля входящих документов должны быть проставлены входящий учетный номер (очередной порядковый) и дата получения документа в организации, которой документ был адресован (при необходимости – часы и минуты). Отметка о поступлении документа проставляется от руки или для этой цели используются штампы. В штампах указываются наименование организации, номер (индекс входящего документа) и дата поступления. Например:
27.06.2006 Вх. № 14
Идентификатор электронной копии (30)
Реквизит предназначен для автоматизированного поиска и контроля информации. Идентификатором электронной копии является отметка (колонтитул), проставляемый в левом нижнем углу каждой страницы документа и содержащая наименование файла на машинном носителе, дату и другие поисковое данные, установленные в автоматизированной системе обработке документов данной организации. Например:
С:\ Мои документы \ RASP.3РТ4. DOC, где С – диск, Мои документы – наименование папки, RASP – вид документа, 3РТ4 – группа заочного отделения, DOC – формат.
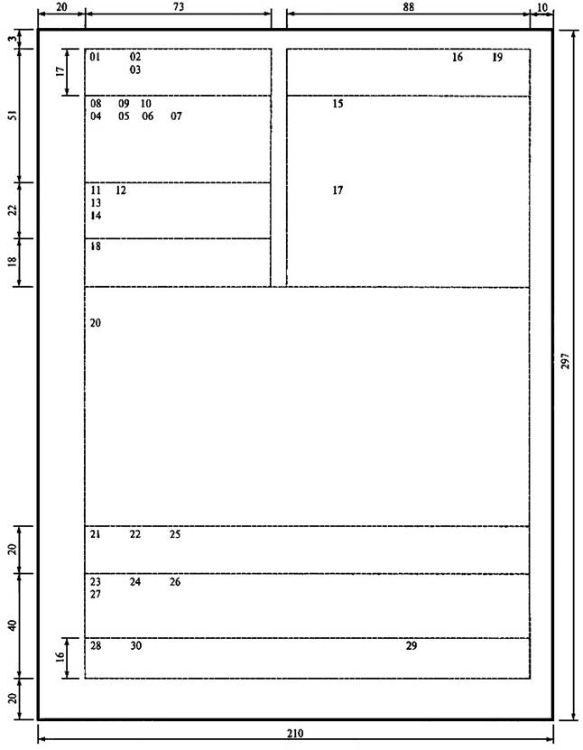
2.3. СХЕМЫ РАСПОЛОЖЕНИЯ РЕКВИЗИТОВ ДОКУМЕНТОВ
Рис. 1 – Расположение реквизитов и границы зон на формате А4 углового бланка

Рис. 2 – Расположение реквизитов и границы зон на формате А4 продольного бланка
2.4. Формуляр-образец документа
Для многих документов число реквизитов строго ограничено. Отсутствие или неправильное указание какого-либо реквизита в служебном документе делает его недействительным. Для ряда документов, выдаваемых органами государственной власти и государственного управления, состав реквизитов установлен в законодательных и нормативных актах. Например, для паспорта, трудовой книжки и т. д.
Совокупность реквизитов, из которых состоит документ, называется формуляром документа. Формуляр, характерный для конкретного вида документов, например, приказа, акта, называется типовым. Он характеризуется определенным количеством реквизитов, расположенных в строгой последовательности.
Формуляр-образец – это совокупность расположенных в определенной последовательности реквизитов, присущих всем видам данной системы документов. Это модель унифицированной формы документов. В нем перечисляются реквизиты документов и устанавливаются границы расположения каждого реквизита. Проектируется формуляр-образец на конструкционной сетке, соответствующей расположению на стандартном формате бумаги А4 (210х297 мм). На основе формуляра-образца строятся бланки документов. Расположение реквизитов всегда в одном и том же месте помогает быстро найти нужные данные при ознакомлении с документом, применить метод однократной модели.
РАЗДЕЛ 3. БЛАНКИ ДОКУМЕНТОВ
Официальные документы, как правило, создаются на бланках.
Бланки создает любое учреждение, организация или предприятие, пользующееся правами юридического лица. Разрабатывая бланк, стремятся к созданию благоприятного впечатления об организации, к созданию запоминающегося бланка, отражающего не только определенную информацию о фирме, но ее стиль.
Бланк – это стандартный лист бумаги, на котором отражена постоянная информация и отведено место для переменной. Применение бланков сокращает время, затрачиваемое на составление документа, повышает культуру документационного обеспечения управления.
Устанавливают два стандартных формата бланков документов:
– А4 (210х297 мм);
|
Из за большого объема этот материал размещен на нескольких страницах:
1 2 3 4 |



