Администрация города Нижнего Новгорода
Департамент архитектуры и градостроительства
Аннотация к документации по планировке территории:
«Проект планировки и межевания территории в границах улиц Анкундиновское шоссе, Цветочная, памятника природы «Щелоковский хутор», дублера проспекта Гагарина в Приокском районе города Нижнего Новгорода»
Заказчик – Департамент архитектуры и градостроительства администрации города Нижнего Новгорода
Проектная организация – МП ИРГ «НижегородгражданНИИпроект»
Основание для разработки проекта:
· постановление исполняющего обязанности главы администрации города Нижнего Новгорода «О разработке проекта планировки и межевания территории в границах улиц Анкундиновское шоссе, Цветочная, памятника природы «Щелоковский хутор», дублера проспекта Гагарина в Приокском районе города Нижнего Новгорода»;
Проект планировки и межевания территории утвержден постановлением исполняющего обязанности главы администрации города Нижнего Новгорода .
Проектом предусмотрено устройство транспортной развязки в двух уровнях на пересечении дублера проспекта Гагарина и Анкундиновского шоссе, транспортной развязки в двух уровнях на пересечении дублера проспекта Гагарина и продолжении улицы Ванеева, улицы общегородского значения непрерывного движения – дублер проспекта Гагарина, пешеходного бульвара параллельно дублеру проспекта Гагарина (бульвар Цветочный), а также реконструкция Анкундиновского шоссе.
Вдоль дублера проспекта Гагарина и бульвара Цветочный проектом планируется строительство жилых домов различной этажности (от 10-ти до 25-ти), объектов социального назначения (две общеобразовательные школы общей вместимостью 2000 мест, четыре детских дошкольных учреждения общей вместимостью 780 мест), а также торгово-развлекательного центра общей площадью 27 тыс. кв. м.
Проектом предусмотрено освоение территории в две очереди:
- первая очередь – до 2012 года;
- расчетный срок – 2017 год.
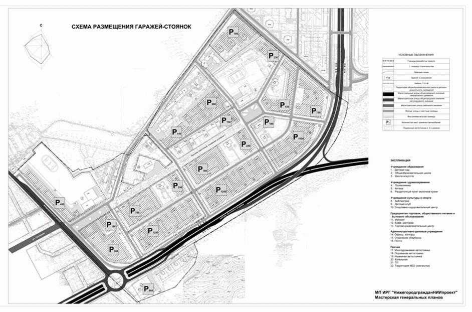
На первую очередь предусмотрено освоение территории в восточной части, в том числе строительство ДДУ (220 мест), общеобразовательной школы (1000 мест), спортивно-оздоровительного центра, двух 16-ти и 25-ти этажных жилых домов, одного 17-ти этажного жилого дома, подземных автостоянок под новыми жилыми домами и торговым центром – на 4430 машино-мест и многоярусного гаража-автостоянки на 900 машино-мест.
Межевание территории выполнено с учетом фактического землепользования и с учетом объектов нового строительства. Проектом межевания территории определены границы 36 земельных участков.
Технико-экономические показатели по проекту:
Территория в границах разработки проекта – 68,9 га;
Количество квартир – 7435;
Численность населения – 19,5 тыс. человек;
Детские дошкольные учреждения – 780 мест, в том числе:
существующий сохраняемый – 110 мест;
новое строительство – 670 мест (4 объекта);
Общеобразовательная школа – 2000 мест (2 объекта);
Встроено-пристроенные объекты обслуживания и прочие нежилые здания:
библиотека – 1700 кв. м.;
школа искусств – 1700 кв. м.;
детский клуб – 720 кв. м.;
спортивно-оздоровительные центры – 3820 кв. м.;
фитнес-клуб – 350 кв. м.;
поликлиника на 600 посещений в смену – 4000 кв. м.;
Многоярусная автостоянка на 740 машиномест;
Подземные автостоянки на 4355 машиномест.
Схема существующего использования территории

Генплан

Схема межевания территории

Схема размещения стоянок





